Images
Description
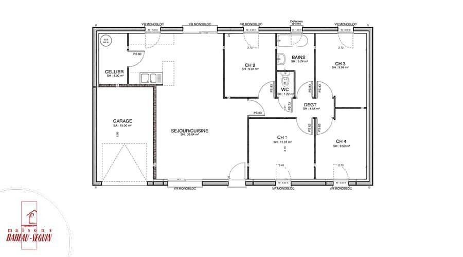
Sur ce terrain, nous vous proposons cette maison neuve : la Focus Family. Conçue par Babeau-Seguin, constructeur offrant le meilleur rapport qualité/prix du marché, cette maison familiale à tout petit prix est idéale pour ceux qui souhaitent allier confort et économies.
Avec une surface habitable de 89 m², la Focus Family vous offre un espace généreux et bien agencé. Elle comprend 4 chambres, parfaites pour accueillir toute votre famille, ainsi qu'un grand séjour traversant avec cuisine ouverte, pour un total de 4 pièces. Vous apprécierez également le garage intégré, pratique pour stationner votre véhicule ou pour du rangement supplémentaire.
L'enduit bi-ton de la façade apporte une touche moderne et élégante à cette maison. De plus, les options les plus demandées par nos clients, comme les menuiseries en aluminium, sont disponibles pour personnaliser votre future habitation selon vos goûts.
La Focus Family est une maison basse consommation, conforme à la réglementation environnementale RE2020. Elle est équipée des dernières innovations technologiques pour garantir une isolation thermique et phonique optimale, tout en étant économique et respectueuse de l'environnement.
Ne faites aucune concession sur la qualité avec cette maison low cost de luxe. Babeau-Seguin met tout son savoir-faire et son professionnalisme dans la construction de la gamme Focus, en utilisant les meilleurs matériaux et une charpente traditionnelle.
N'attendez plus pour réaliser votre projet de maison familiale à petit prix avec la Focus Family, une maison spacieuse, écolo et accessible à tous les budgets.
Logement susceptibles de vous intéresser
Nous vous proposons de découvrir aussi cette sélection de logements situés à moins de 10km de Valmy et qui seraient susceptibles de vous intéresser.
Saint-Jean-sur-Tourbe
TERRAINBelle parcelle de terrain constructible à l’entrée du village de SAINT JEAN SUR TOURBE.Situé à 10 minutes de SUIPPES, SAINT JEAN SUR TOURBE est un village attrayant. Il connaît un regain d’intérêt et attire de jeunes familles à la recherche d’un environnement calme et charmant pour un budget raisonnable.Investisseur, ou à la recherche d’un terrain pour bâtir un projet sans être contraint par l’espace utile, ce terrain est une belle opportunité à saisir.N’hésitez pas à m’appeler pour de plus amples renseignements ou une visite.
Valmy
TERRAINNous vous présentons un terrain à vendre d’une belle surface de 902m², situé à Valmy dans la Marne (Grand Est). Ce terrain non-viabilisé offre des caractéristiques uniques : un environnement calme, arboré et ensoleillé, parfait pour réaliser votre projet de construction de maison. Le cadre champêtre des lieux ajoute un charme indéniable, vous permettant de vous établir dans un havre de paix où il fait bon vivre. Valmy est une commune qui se distingue par son atmosphère sereine, tout en étant à proximité de commodités essentielles et d’attractions locales. Profitez d’une tranquillité de vie tout en pouvant accéder facilement aux services et infrastructures nécessaires. La région dynamique du Grand Est séduit par sa richesse naturelle et culturelle, vous offrant ainsi un cadre de vie exceptionnel. Que ce soit pour des activités de loisirs en plein air ou des moments de détente, Valmy saura vous séduire par son authenticité et son attrait. Ne manquez pas cette occasion unique d’acquérir un terrain au potentiel prometteur. Contactez-nous dès aujourd’hui pour discuter de cette opportunité d’achat ! À noter qu’en tant que constructeur, nous ne sommes pas mandatés pour réaliser la vente de ce terrain.
Valmy
TERRAIN ET MAISONSur ce terrain, nous vous proposons cette maison neuve : la Focus Family. Conçue par Babeau-Seguin, constructeur offrant le meilleur rapport qualité/prix du marché, cette maison familiale à tout petit prix est idéale pour ceux qui souhaitent allier confort et économies.Avec une surface habitable de 89 m², la Focus Family vous offre un espace généreux et bien agencé. Elle comprend 4 chambres, parfaites pour accueillir toute votre famille, ainsi qu’un grand séjour traversant avec cuisine ouverte, pour un total de 4 pièces. Vous apprécierez également le garage intégré, pratique pour stationner votre véhicule ou pour du rangement supplémentaire.L’enduit bi-ton de la façade apporte une touche moderne et élégante à cette maison. De plus, les options les plus demandées par nos clients, comme les menuiseries en aluminium, sont disponibles pour personnaliser votre future habitation selon vos goûts.La Focus Family est une maison basse consommation, conforme à la réglementation environnementale RE2020. Elle est équipée des dernières innovations technologiques pour garantir une isolation thermique et phonique optimale, tout en étant économique et respectueuse de l’environnement.Ne faites aucune concession sur la qualité avec cette maison low cost de luxe. Babeau-Seguin met tout son savoir-faire et son professionnalisme dans la construction de la gamme Focus, en utilisant les meilleurs matériaux et une charpente traditionnelle.N’attendez plus pour réaliser votre projet de maison familiale à petit prix avec la Focus Family, une maison spacieuse, écolo et accessible à tous les budgets.
Gizaucourt
TERRAINDécouvrez ce terrain unique en son genre, d’une surface de 1012m², situé dans la charmante commune de Gizaucourt, dans le département de la Marne. Ce terrain, encore non-viabilisé, offre un cadre idéal pour réaliser votre projet de construction de maison. Profitez d’un environnement calme et arboré, propice à l’épanouissement et à la tranquillité. Sa situation ensoleillée en fait un lieu de vie parfait pour ceux qui souhaitent s’installer dans un espace authentique et préservé. Gizaucourt, située au cœur de la région Grand Est, est une ville à taille humaine qui séduit par son cadre champêtre et sa qualité de vie. À proximité, vous trouverez de nombreuses attractions locales, ainsi que des commodités essentielles telles qu’écoles, commerces et services de santé. La région est également riche en paysages naturels, offrant ainsi de multiples possibilités d’activités de plein air pour les amoureux de la nature. Cet emplacement privilégié présente un potentiel immense pour quiconque désire s’implanter dans une communauté dynamique et accueillante. Ne manquez pas cette opportunité rare d’acquérir un terrain prêt à accueillir votre projet de rêve. Contactez-nous dès aujourd’hui pour plus d’informations et pour envisager les possibilités qu’offre ce joli coin de la Marne. À noter qu’en tant que constructeur, nous ne sommes pas mandatés pour réaliser la vente de ce terrain.
Gizaucourt
TERRAIN ET MAISONSur ce terrain, nous vous proposons cette maison neuve : la Focus Family. Conçue par Babeau-Seguin, constructeur offrant le meilleur rapport qualité/prix du marché, cette maison familiale à tout petit prix est idéale pour ceux qui souhaitent allier confort et économies.Avec une surface habitable de 89 m², la Focus Family vous offre un espace généreux et bien agencé. Elle comprend 4 chambres, parfaites pour accueillir toute votre famille, ainsi qu’un grand séjour traversant avec cuisine ouverte, pour un total de 4 pièces. Vous apprécierez également le garage intégré, pratique pour stationner votre véhicule ou pour du rangement supplémentaire.L’enduit bi-ton de la façade apporte une touche moderne et élégante à cette maison. De plus, les options les plus demandées par nos clients, comme les menuiseries en aluminium, sont disponibles pour personnaliser votre future habitation selon vos goûts.La Focus Family est une maison basse consommation, conforme à la réglementation environnementale RE2020. Elle est équipée des dernières innovations technologiques pour garantir une isolation thermique et phonique optimale, tout en étant économique et respectueuse de l’environnement.Ne faites aucune concession sur la qualité avec cette maison low cost de luxe. Babeau-Seguin met tout son savoir-faire et son professionnalisme dans la construction de la gamme Focus, en utilisant les meilleurs matériaux et une charpente traditionnelle.N’attendez plus pour réaliser votre projet de maison familiale à petit prix avec la Focus Family, une maison spacieuse, écolo et accessible à tous les budgets.
Somme-Bionne
TERRAINNous vous présentons une opportunité d’investissement exceptionnelle avec ce terrain de 770 m² situé dans la charmante commune de Somme-Bionne, au cœur de la Marne dans la région Grand Est. Non viabilisé, ce terrain offre un cadre paisible et arboré, idéal pour donner vie à votre projet de construction de maison. Son environnement calme et sécurisant en fait un emplacement rêvé pour bâtir le foyer de vos rêves, tout en bénéficiant du charme d’un cadre champêtre. Somme-Bionne se distingue par son ambiance conviviale et ses commodités de proximité. La ville est entourée de paysages pittoresques, parfaits pour les amateurs de nature et de loisirs en plein air. Vous trouverez à proximité diverses attractions locales, ainsi que des services essentiels tels que des commerces, écoles et transports. Ce cadre de vie allie tranquillité et praticité, mettant en avant le meilleur de la vie rurale tout en restant accessible aux grandes villes. Ce terrain constitue une occasion unique d’investir dans un environnement séduisant et prometteur. Ne passez pas à côté de cette opportunité d’achat unique, qui pourrait devenir le lieu où vos rêves prennent forme. Contactez-nous dès aujourd’hui pour explorer le potentiel de ce terrain. À noter qu’en tant que constructeur, nous ne sommes pas mandatés pour réaliser la vente de ce terrain.
Somme-Bionne
TERRAIN ET MAISONSur ce terrain, nous vous proposons cette maison neuve : la Focus Family. Conçue par Babeau-Seguin, constructeur offrant le meilleur rapport qualité/prix du marché, cette maison familiale à tout petit prix est idéale pour ceux qui souhaitent allier confort et économies.Avec une surface habitable de 89 m², la Focus Family vous offre un espace généreux et bien agencé. Elle comprend 4 chambres, parfaites pour accueillir toute votre famille, ainsi qu’un grand séjour traversant avec cuisine ouverte, pour un total de 4 pièces. Vous apprécierez également le garage intégré, pratique pour stationner votre véhicule ou pour du rangement supplémentaire.L’enduit bi-ton de la façade apporte une touche moderne et élégante à cette maison. De plus, les options les plus demandées par nos clients, comme les menuiseries en aluminium, sont disponibles pour personnaliser votre future habitation selon vos goûts.La Focus Family est une maison basse consommation, conforme à la réglementation environnementale RE2020. Elle est équipée des dernières innovations technologiques pour garantir une isolation thermique et phonique optimale, tout en étant économique et respectueuse de l’environnement.Ne faites aucune concession sur la qualité avec cette maison low cost de luxe. Babeau-Seguin met tout son savoir-faire et son professionnalisme dans la construction de la gamme Focus, en utilisant les meilleurs matériaux et une charpente traditionnelle.N’attendez plus pour réaliser votre projet de maison familiale à petit prix avec la Focus Family, une maison spacieuse, écolo et accessible à tous les budgets.
La Neuville-au-Pont
TERRAIN ET MAISONSur ce terrain, nous vous proposons cette maison neuve : la Focus EVO, un modèle unique de 110 m² conçu par Babeau-Seguin, constructeur offrant le meilleur rapport qualité/prix du marché. Cette maison basse consommation est conforme à la norme RE2020, garantissant des performances énergétiques exceptionnelles.La Focus EVO se distingue par son concept évolutif, alliant une maison neuve prête à vivre et une maison prête à finir. Livrée avec 73 m² habitables, elle est conçue pour évoluer avec vos besoins futurs. Grâce à ses combles aménageables, vous pouvez facilement augmenter votre surface habitable à 110 m², ajoutant ainsi deux chambres supplémentaires et une salle de bain, pour un total de 4 chambres et 2 salles de bains.Les caractéristiques principales de cette maison incluent un garage intégré, un cellier, et des combles aménageables. Les options les plus demandées par nos clients, telles que la version Investisseur et les prises USB murales, sont également disponibles.La Focus EVO est idéale pour tous ceux qui recherchent une maison complète à un prix compétitif. Elle comprend une grande pièce de jour traversante, 4 chambres, une salle de bain, et un garage de 15 m². Que vous soyez un jeune couple, un célibataire ou une famille en pleine expansion, cette maison saura s’adapter à vos besoins et à vos envies.Ne manquez pas cette occasion unique de devenir propriétaire d’une maison évolutive, économe en énergie et conforme aux dernières normes environnementales. Contactez-nous dès aujourd’hui pour plus d’informations et pour planifier une visite.
Chaudefontaine
TERRAIN ET MAISONSur ce terrain, nous vous proposons cette maison neuve, le modèle Ménilière, une maison plain-pied moderne qui intègre de base un garage et une longue galerie sur la face avant. Avec une surface de 100 m², cette maison dispose de 4 chambres et de 4 pièces, offrant ainsi un espace de vie confortable et fonctionnel pour toute la famille.Véritable « »tout-en-un » » de la maison individuelle, ce modèle est idéal pour votre projet de construction sur-mesure. La Ménilière est disponible avec un toit à 2 pans ou 4 pans, selon vos préférences esthétiques. Le garage intégré et la galerie avant ajoutent une touche pratique et élégante à cette maison.Les options les plus demandées par nos clients, telles que les menuiseries en aluminium et le sous-sol, sont également disponibles pour personnaliser davantage votre future maison. De plus, cette maison neuve est basse consommation et conforme à la réglementation environnementale RE2020, garantissant ainsi des performances énergétiques optimales et un impact environnemental réduit.Le constructeur Babeau-Seguin, reconnu pour offrir le meilleur rapport qualité/prix du marché, vous accompagne dans la réalisation de votre projet immobilier. Avec un prix serré et une personnalisation facile, il n’est pas étonnant que la Ménilière soit dans le top 5 des ventes de Babeau-Seguin.Ne manquez pas cette opportunité unique de devenir propriétaire d’une maison moderne, économe en énergie et parfaitement adaptée à vos besoins. Contactez-nous dès maintenant pour plus d’informations et pour planifier une visite de ce modèle exceptionnel.
L’actualité immobilière à Valmy
27/11/2023
02/11/2023
30/10/2023
20/10/2023
16/10/2023
16/10/2023