Images
Description
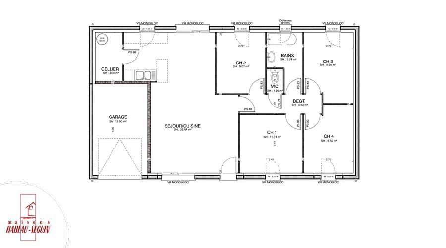
Sur ce terrain, nous vous proposons cette maison neuve : la Focus Family. Conçue par Babeau-Seguin, constructeur offrant le meilleur rapport qualité/prix du marché, cette maison familiale à tout petit prix est idéale pour ceux qui souhaitent allier confort et économies.
Avec une surface habitable de 89 m², la Focus Family vous offre un espace généreux et bien agencé. Elle comprend 4 chambres, parfaites pour accueillir toute votre famille, ainsi qu'un grand séjour traversant avec cuisine ouverte, pour un total de 4 pièces. Vous apprécierez également le garage intégré, pratique pour stationner votre véhicule ou pour du rangement supplémentaire.
L'enduit bi-ton de la façade apporte une touche moderne et élégante à cette maison. De plus, les options les plus demandées par nos clients, comme les menuiseries en aluminium, sont disponibles pour personnaliser votre future habitation selon vos goûts.
La Focus Family est une maison basse consommation, conforme à la réglementation environnementale RE2020. Elle est équipée des dernières innovations technologiques pour garantir une isolation thermique et phonique optimale, tout en étant économique et respectueuse de l'environnement.
Ne faites aucune concession sur la qualité avec cette maison low cost de luxe. Babeau-Seguin met tout son savoir-faire et son professionnalisme dans la construction de la gamme Focus, en utilisant les meilleurs matériaux et une charpente traditionnelle.
N'attendez plus pour réaliser votre projet de maison familiale à petit prix avec la Focus Family, une maison spacieuse, écolo et accessible à tous les budgets.
Logement susceptibles de vous intéresser
Nous vous proposons de découvrir aussi cette sélection de logements situés à moins de 10km de Somme-Bionne et qui seraient susceptibles de vous intéresser.

Somme-Bionne
TERRAINNous vous présentons une opportunité d’investissement exceptionnelle avec ce terrain de 770 m² situé dans la charmante commune de Somme-Bionne, au cœur de la Marne dans la région Grand Est. Non viabilisé, ce terrain offre un cadre paisible et arboré, idéal pour donner vie à votre projet de construction de maison. Son environnement calme et sécurisant en fait un emplacement rêvé pour bâtir le foyer de vos rêves, tout en bénéficiant du charme d’un cadre champêtre. Somme-Bionne se distingue par son ambiance conviviale et ses commodités de proximité. La ville est entourée de paysages pittoresques, parfaits pour les amateurs de nature et de loisirs en plein air. Vous trouverez à proximité diverses attractions locales, ainsi que des services essentiels tels que des commerces, écoles et transports. Ce cadre de vie allie tranquillité et praticité, mettant en avant le meilleur de la vie rurale tout en restant accessible aux grandes villes. Ce terrain constitue une occasion unique d’investir dans un environnement séduisant et prometteur. Ne passez pas à côté de cette opportunité d’achat unique, qui pourrait devenir le lieu où vos rêves prennent forme. Contactez-nous dès aujourd’hui pour explorer le potentiel de ce terrain. À noter qu’en tant que constructeur, nous ne sommes pas mandatés pour réaliser la vente de ce terrain.

Somme-Bionne
TERRAIN ET MAISONSur ce terrain, nous vous proposons cette maison neuve : la Focus Family. Conçue par Babeau-Seguin, constructeur offrant le meilleur rapport qualité/prix du marché, cette maison familiale à tout petit prix est idéale pour ceux qui souhaitent allier confort et économies.Avec une surface habitable de 89 m², la Focus Family vous offre un espace généreux et bien agencé. Elle comprend 4 chambres, parfaites pour accueillir toute votre famille, ainsi qu’un grand séjour traversant avec cuisine ouverte, pour un total de 4 pièces. Vous apprécierez également le garage intégré, pratique pour stationner votre véhicule ou pour du rangement supplémentaire.L’enduit bi-ton de la façade apporte une touche moderne et élégante à cette maison. De plus, les options les plus demandées par nos clients, comme les menuiseries en aluminium, sont disponibles pour personnaliser votre future habitation selon vos goûts.La Focus Family est une maison basse consommation, conforme à la réglementation environnementale RE2020. Elle est équipée des dernières innovations technologiques pour garantir une isolation thermique et phonique optimale, tout en étant économique et respectueuse de l’environnement.Ne faites aucune concession sur la qualité avec cette maison low cost de luxe. Babeau-Seguin met tout son savoir-faire et son professionnalisme dans la construction de la gamme Focus, en utilisant les meilleurs matériaux et une charpente traditionnelle.N’attendez plus pour réaliser votre projet de maison familiale à petit prix avec la Focus Family, une maison spacieuse, écolo et accessible à tous les budgets.

Valmy
TERRAINNous vous présentons un terrain exceptionnel de 902 m², situé dans la charmante commune de Valmy, dans le département de la Marne. Ce terrain, non viabilisé, offre une surface généreuse et un cadre champêtre, idéal pour votre projet de construction de maison. Il se distingue par sa pente plate, son ensoleillement et son environnement arboré qui garantissent une qualité de vie agréable et apaisante. Le Plan Local d’Urbanisme (PLU) non contraignant vous permettra d’imaginer un projet à votre image, dans un cadre de vie serein. Valmy, nichée au cœur de la Marne, est une commune riche en attraits. Elle offre un accès facile aux commodités locales et à un environnement naturel préservé qui séduira les amateurs de tranquillité. Les paysages environnants invitent à de belles balades, tables d’hôtes et marchés locaux, renforçant ainsi le charme de cette ville. À proximité, vous trouverez également des infrastructures essentielles telles que des écoles et des commerces. Valmy allie proximité des grands axes routiers et atmosphère bucolique, faisant de ce terrain un emplacement de choix pour votre future maison. Ne manquez pas l’opportunité de concrétiser votre rêve dans ce lieu d’exception, où chaque matin commence par un souffle de nature. Ce terrain est à saisir rapidement ! À noter qu’en tant que constructeur, nous ne sommes pas mandatés pour réaliser la vente de ce terrain.

Valmy
TERRAIN ET MAISONSur ce terrain, nous vous proposons cette maison neuve Aubetière Sud, un modèle traditionnel plain-pied qui fait partie du top 3 des modèles préférés de nos clients. Avec une surface de 88 m², cette maison est idéale pour les familles grâce à ses 3 chambres spacieuses et sa pièce de vie lumineuse.L’Aubetière Sud se distingue par son toit à faible pente et ses tuiles canal, offrant un charme authentique et une intégration parfaite sous le soleil. Vous avez le choix entre un toit à 2 pans ou à 4 pans, selon vos préférences esthétiques et pratiques.Cette maison est également personnalisable avec des options très demandées par nos clients, telles qu’une deuxième salle de bains, des menuiseries en aluminium, et un garage ou un sous-sol. Le porche accueillant ajoute une touche supplémentaire de convivialité à l’entrée de votre future maison.En choisissant l’Aubetière Sud, vous optez pour une maison neuve basse consommation, conforme à la réglementation environnementale RE2020, garantissant ainsi des performances énergétiques optimales et un confort de vie inégalé.Le constructeur Babeau-Seguin, reconnu pour offrir le meilleur rapport qualité/prix du marché, vous accompagne dans la réalisation de votre projet sur-mesure. Personnalisez le plan de votre Aubetière Sud pour qu’il réponde parfaitement à vos besoins et à vos envies.Ne manquez pas cette opportunité de construire la maison de vos rêves avec Babeau-Seguin, et profitez d’un cadre de vie agréable et économe en énergie. Contactez-nous dès maintenant pour plus d’informations et pour découvrir toutes les possibilités de personnalisation de l’Aubetière Sud.

Gizaucourt
TERRAINÀ vendre, un magnifique terrain non viabilisé de 1012 m², situé dans la charmante commune de Gizaucourt, dans le département de la Marne. Ce terrain plat offre un cadre champêtre, ensoleillé et arboré, idéal pour la construction de votre maison de rêve. Profitez d’un environnement calme, propice à la sérénité et au bien-être, tout en ayant la possibilité de réaliser un projet immobilier unique sous les douces lumières de la campagne. Le terrain se trouve à Gizaucourt, une localité paisible et accueillante, à proximité de la ville de Vitry-le-François. La commune est bien desservie, vous offrant un accès facile à des commodités telles que des commerces, des écoles et des espaces verts. Vous serez également à quelques kilomètres de superbes paysages naturels, parfaits pour les amateurs de randonnée et de découvertes. Gizaucourt est le lieu parfait pour ceux qui cherchent à allier tranquillité et qualité de vie. Ne manquez pas cette opportunité unique d’acquérir un terrain au potentiel exceptionnel. Envisagez de donner vie à vos projets dans ce cadre idyllique à Gizaucourt, propice à l’épanouissement et à la réalisation de vos rêves immobiliers. Contactez-nous dès aujourd’hui pour plus d’informations!

Gizaucourt
TERRAIN ET MAISONSur ce terrain, nous vous proposons cette maison neuve : la Focus EVO, un modèle unique de 110 m² conçu par Babeau-Seguin, constructeur offrant le meilleur rapport qualité/prix du marché. Cette maison basse consommation est conforme à la norme RE2020, garantissant des performances énergétiques exceptionnelles.La Focus EVO se distingue par son concept évolutif, alliant une maison neuve prête à vivre et une maison prête à finir. Livrée avec 73 m² habitables, elle est conçue pour évoluer avec vos besoins futurs. Grâce à ses combles aménageables, vous pouvez facilement augmenter votre surface habitable à 110 m², ajoutant ainsi deux chambres supplémentaires et une salle de bain, pour un total de 4 chambres et 2 salles de bains.Les caractéristiques principales de cette maison incluent un garage intégré, un cellier, et des combles aménageables. Les options les plus demandées par nos clients, telles que la version Investisseur et les prises USB murales, sont également disponibles.La Focus EVO est idéale pour tous ceux qui recherchent une maison complète à un prix compétitif. Elle comprend une grande pièce de jour traversante, 4 chambres, une salle de bain, et un garage de 15 m². Que vous soyez un jeune couple, un célibataire ou une famille en pleine expansion, cette maison saura s’adapter à vos besoins et à vos envies.Ne manquez pas cette occasion unique de devenir propriétaire d’une maison évolutive, économe en énergie et conforme aux dernières normes environnementales. Contactez-nous dès aujourd’hui pour plus d’informations et pour planifier une visite.

Tilloy-et-Bellay
TERRAINVous recherchez un terrain pour construire la maison de vos rêves ? Ne cherchez pas plus loin ! Ce magnifique terrain de 863 m² est situé dans un lotissement idéalement situé à Tilloy-et-Bellay, dans le département de la Marne. Situé dans un cadre champêtre, ce terrain plat et viabilisé vous offre un environnement paisible et serein pour construire votre futur chez-vous. Avec une façade de 22 mètres, vous aurez tout l’espace nécessaire pour réaliser votre projet immobilier dans les meilleures conditions. Le lotissement de Tilloy-et-Bellay bénéficie d’une qualité de vie exceptionnelle, avec des services de proximité tels que des commerces, des écoles et des transports en commun facilement accessibles. Vous pourrez également profiter de nombreuses attractions locales telles que des parcs, des monuments historiques et des espaces de loisirs pour toute la famille. De plus, le plan d’urbanisme de la commune n’impose pas de contraintes particulières, vous offrant ainsi une grande liberté pour construire votre maison de rêve. N’attendez plus pour saisir cette opportunité rare ! Ce terrain est le dernier disponible dans le lotissement et son emplacement est l’un des meilleurs de la région. Ne manquez pas cette occasion en or de devenir propriétaire dans un quartier prisé et de bénéficier d’un prix attractif pour le terrain et le modèle de maison qui y est proposé. Alors n’hésitez pas à nous contacter pour plus d’informations sur ce magnifique terrain à Tilloy-et-Bellay. Cette opportunité est à ne pas manquer !

Tilloy-et-Bellay
TERRAIN ET MAISONSur ce terrain, nous vous proposons cette maison neuve Aubetière. Avec une surface de 96 m² et équipée de 4 chambres, cette maison traditionnelle est appréciée pour son excellent rapport qualité/prix. L’Aubetière, fleuron de la gamme traditionnelle Babeau-Seguin, est une maison moderne qui se décline en plusieurs versions pour répondre à vos besoins spécifiques. Vous pouvez choisir entre une toiture à 2 pans ou à 4 pans, et personnaliser votre maison avec des options comme un garage ou un sous-sol.Cette maison de plain-pied est conçue pour être basse consommation et conforme à la RE2020, garantissant ainsi des économies d’énergie et un confort optimal tout au long de l’année. Babeau-Seguin, constructeur reconnu pour offrir le meilleur rapport qualité/prix du marché, vous accompagne dans la réalisation de votre projet de construction sur mesure. Donnez vie à votre projet en optant pour l’Aubetière et profitez d’une maison neuve, performante et personnalisable selon vos envies.
L’actualité immobilière à Somme-Bionne





