Images
Description
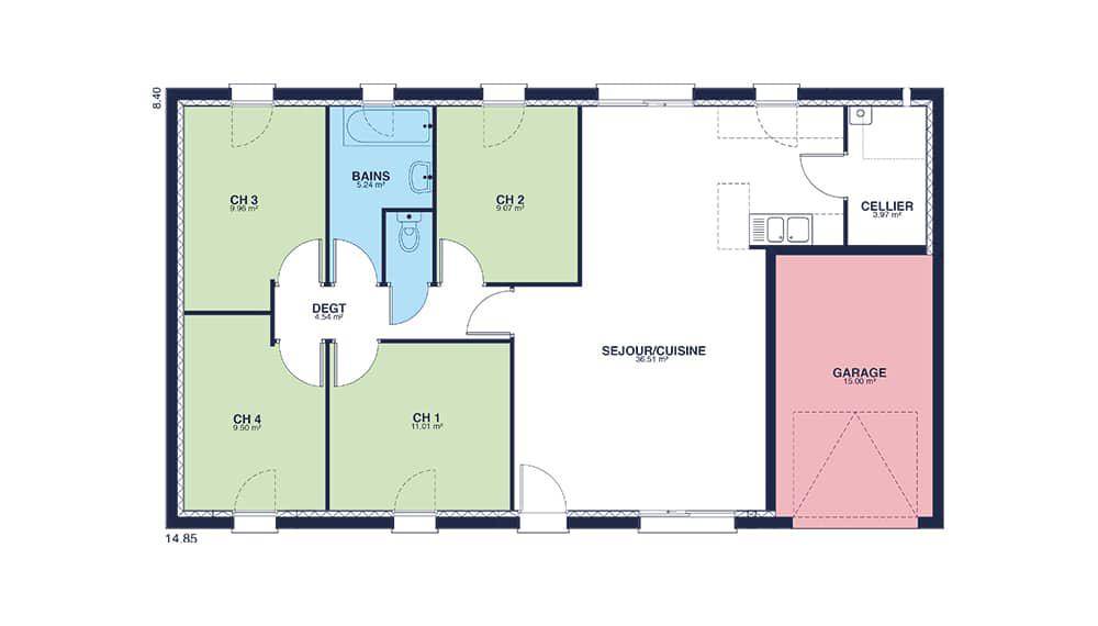
Sur ce terrain, nous vous proposons cette maison neuve : la Focus Family Sud. Conçue par Babeau-Seguin, constructeur reconnu pour offrir le meilleur rapport qualité/prix du marché, cette maison de 89 m² est idéale pour les familles à la recherche d'un logement moderne et économique.
Vous avez un budget serré et rêvez d’une maison au style urbain et contemporain ? La Focus Family Sud est faite pour vous. Cette maison compacte et élégante dispose de 4 chambres et de 4 pièces, offrant un espace de vie optimisé pour votre confort. Le garage intégré de près de 15 m², l'enduit bi-ton et les tuiles Canal ajoutent une touche de charme et de fonctionnalité à cette habitation.
Les options les plus demandées par nos clients, telles que les menuiseries en aluminium, sont disponibles pour personnaliser votre maison selon vos goûts. De plus, cette maison neuve est basse consommation et conforme à la réglementation environnementale RE2020, garantissant des économies d'énergie et un respect de l'environnement.
Ne manquez pas cette opportunité de construire une maison accessible à tous les budgets sans faire l’impasse sur les équipements. Avec ses 4 chambres, un cellier, un large séjour et un garage, la Focus Family Sud n’a rien à envier aux autres modèles de la gamme Babeau-Seguin. Profitez d'une habitation qui allie petit prix et grande prestation.
Logement susceptibles de vous intéresser
Nous vous proposons de découvrir aussi cette sélection de logements situés à moins de 10km de Tilloy-et-Bellay et qui seraient susceptibles de vous intéresser.
Courtisols
TERRAIN ET MAISONSur ce terrain, nous vous proposons cette maison neuve Aubetière. Avec une surface de 96 m² et équipée de 4 chambres, cette maison traditionnelle est appréciée pour son excellent rapport qualité/prix. L’Aubetière, fleuron de la gamme traditionnelle Babeau-Seguin, est une maison moderne qui se décline en plusieurs versions pour répondre à vos besoins spécifiques. Vous pouvez choisir entre une toiture à 2 pans ou à 4 pans, et personnaliser votre maison avec des options comme un garage ou un sous-sol.Cette maison de plain-pied est conçue pour être basse consommation et conforme à la RE2020, garantissant ainsi des économies d’énergie et un confort optimal tout au long de l’année. Babeau-Seguin, constructeur reconnu pour offrir le meilleur rapport qualité/prix du marché, vous accompagne dans la réalisation de votre projet de construction sur mesure. Donnez vie à votre projet en optant pour l’Aubetière et profitez d’une maison neuve, performante et personnalisable selon vos envies.
Courtisols
TERRAINNous sommes ravis de vous présenter ce superbe terrain à vendre, situé dans le charmant lotissement à 10 minutes de Courtisols. Avec une superficie généreuse de 1173 m², cet espace non viabilisé se prête parfaitement à un projet de construction de maison. Bénéficiant d’une localisation exceptionnelle, ce terrain offre un cadre champêtre privilégié, arboré et ensoleillé, tout en garantissant une tranquillité rare dans un quartier recherché. Le Plan Local d’Urbanisme (PLU) non contraignant vous permettra d’explorer un large éventail de possibilités pour concevoir la maison de vos rêves. Idéalement situé dans la commune de Courtisols, dans le département de la Marne, en région Grand Est, ce terrain vous permettra de profiter de la qualité de vie qu’offre cette localité dynamique. Les attractions locales, tant culturelles que naturelles, ne sont pas en reste, et vous serez à proximité de commerces, de services essentiels et d’écoles. Que ce soit pour des balades en pleine nature ou pour profiter des infrastructures locales, Courtisols est l’endroit parfait pour établir un foyer. La combinaison de la sécurité, du calme et des commodités à proximité en fait un emplacement de choix pour votre projet immobilier. Ne manquez pas cette occasion unique d’investir dans un terrain qui allie tranquillité et potentiel de construction. Contactez-nous dès maintenant pour découvrir toutes les possibilités qu’offre ce bien exceptionnel. À noter qu’en tant que constructeur, nous ne sommes pas mandatés pour réaliser la vente de ce terrain.
Courtisols
TERRAIN ET MAISONSur ce terrain, nous vous proposons cette maison neuve : la Focus Family. Conçue par Babeau-Seguin, constructeur offrant le meilleur rapport qualité/prix du marché, cette maison familiale à tout petit prix est idéale pour ceux qui souhaitent allier confort et économies.Avec une surface habitable de 89 m², la Focus Family vous offre un espace généreux et bien agencé. Elle comprend 4 chambres, parfaites pour accueillir toute votre famille, ainsi qu’un grand séjour traversant avec cuisine ouverte, pour un total de 4 pièces. Vous apprécierez également le garage intégré, pratique pour stationner votre véhicule ou pour du rangement supplémentaire.L’enduit bi-ton de la façade apporte une touche moderne et élégante à cette maison. De plus, les options les plus demandées par nos clients, comme les menuiseries en aluminium, sont disponibles pour personnaliser votre future habitation selon vos goûts.La Focus Family est une maison basse consommation, conforme à la réglementation environnementale RE2020. Elle est équipée des dernières innovations technologiques pour garantir une isolation thermique et phonique optimale, tout en étant économique et respectueuse de l’environnement.Ne faites aucune concession sur la qualité avec cette maison low cost de luxe. Babeau-Seguin met tout son savoir-faire et son professionnalisme dans la construction de la gamme Focus, en utilisant les meilleurs matériaux et une charpente traditionnelle.N’attendez plus pour réaliser votre projet de maison familiale à petit prix avec la Focus Family, une maison spacieuse, écolo et accessible à tous les budgets.
Courtisols
TERRAINDécouvrez ce terrain exceptionnel offrant une superficie généreuse de 1076 m², situé dans la charmante commune de Courtisols, au cœur de la Marne dans la région Grand Est. Ce terrain non-viabilisé, idéal pour concrétiser vos projets de construction de maison, bénéficie d’un cadre arboré et paisible, garantissant tranquillité et sécurité. Les caractéristiques uniques de cette ville en font un lieu de vie très prisé pour les familles cherchant à s’installer dans un environnement calme et serein. Courtisols est une ville qui séduira les amoureux de la nature et du calme, tout en restant proche de diverses commodités. Avec son cadre champêtre, vous pourrez profiter des paysages environnants tout en ayant accès aux services essentiels, tels que des écoles, des commerces et des infrastructures de loisirs. De plus, la proximité de la ville de Châlons-en-Champagne ajoute une dimension urbaine à ce havre de paix, offrant ainsi un parfait équilibre entre vie tranquille et activité citadine. Ce terrain représente une réelle opportunité d’investissement dans un secteur en plein développement. N’attendez plus pour envisager votre futur projet d’habitation dans ce cadre unique. À noter qu’en tant que constructeur, nous ne sommes pas mandatés pour réaliser la vente de ce terrain.
Tilloy-et-Bellay
TERRAIN ET MAISONSur ce terrain, nous vous proposons cette maison neuve : la Focus Family Sud. Conçue par Babeau-Seguin, constructeur reconnu pour offrir le meilleur rapport qualité/prix du marché, cette maison de 89 m² est idéale pour les familles à la recherche d’un logement moderne et économique.Vous avez un budget serré et rêvez d’une maison au style urbain et contemporain ? La Focus Family Sud est faite pour vous. Cette maison compacte et élégante dispose de 4 chambres et de 4 pièces, offrant un espace de vie optimisé pour votre confort. Le garage intégré de près de 15 m², l’enduit bi-ton et les tuiles Canal ajoutent une touche de charme et de fonctionnalité à cette habitation.Les options les plus demandées par nos clients, telles que les menuiseries en aluminium, sont disponibles pour personnaliser votre maison selon vos goûts. De plus, cette maison neuve est basse consommation et conforme à la réglementation environnementale RE2020, garantissant des économies d’énergie et un respect de l’environnement.Ne manquez pas cette opportunité de construire une maison accessible à tous les budgets sans faire l’impasse sur les équipements. Avec ses 4 chambres, un cellier, un large séjour et un garage, la Focus Family Sud n’a rien à envier aux autres modèles de la gamme Babeau-Seguin. Profitez d’une habitation qui allie petit prix et grande prestation.
Tilloy-et-Bellay
TERRAINDécouvrez un terrain d’une superficie généreuse de 707 m², situé dans le charmant lotissement de Tilloy-et-Bellay, département de la Marne, en région Grand Est. Ce terrain viabilisé est l’espace idéal pour envisager la construction de votre future maison. Profitez d’un cadre paisible et arboré, où la sécurité et l’ensoleillement sont à l’honneur, permettant ainsi de concevoir un projet résidentiel harmonieux au sein d’un environnement calme et champêtre. La ville de Tilloy-et-Bellay se démarque par ses paysages pittoresques et son ambiance conviviale. Située à proximité des commodités locales, cette commune offre un cadre de vie agréable avec des services variés, des espaces verts propices à la détente, et une proximité avec les grandes villes alentour. Que ce soit pour des activités de plein air, des sorties en famille ou des moments de convivialité entre amis, cette région saura répondre aux attentes de chacun. Ce terrain représente une opportunité rare de s’ancrer dans une localité dynamique et accueillante. Ne manquez pas cette occasion exceptionnelle d’acquérir un terrain dans une ville prometteuse. Imaginez votre futur chez-vous bercé par la tranquillité de la nature. Contactez-nous pour en savoir plus et échanger sur cette belle opportunité d’achat. À noter qu’en tant que constructeur, nous ne sommes pas mandatés pour réaliser la vente de ce terrain.
Courtisols
TERRAIN ET MAISONSur ce terrain, nous vous proposons cette maison neuve : l’Intimity U de la gamme Evasihome, le confort pour les parents?!Avec une surface de 109 m², cette maison en U est parfaitement conçue pour répondre aux besoins de toute la famille. Elle dispose de 3 chambres, dont une superbe suite parentale avec dressing et salle d’eau privative, offrant un espace de tranquillité pour les parents. Le grand séjour-cuisine central est idéal pour les moments de convivialité, et le garage intégré ajoute une touche de praticité au quotidien.Les caractéristiques principales de l’Intimity U incluent une verrière qui inonde la maison de lumière naturelle, des prises USB murales pour plus de modernité, et un garage intégré pour votre confort. De plus, cette maison est basse consommation et conforme à la RE2020, garantissant des économies d’énergie et un respect de l’environnement.Les options les plus demandées par nos clients, telles que l’enduit bi-ton et la domotique, sont également disponibles pour personnaliser votre maison selon vos goûts et vos besoins.Babeau-Seguin, constructeur offrant le meilleur rapport qualité/prix du marché, vous propose cette maison qui allie design et équipement sans compromis. Venez découvrir l’Intimity U et offrez-vous la tranquillité que vous méritez?!Rencontrons-nous en agence pour donner forme à votre rêve dès aujourd’hui?!
Courtisols
TERRAINÀ la recherche d’un terrain d’exception pour réaliser votre projet de construction de maison ? Découvrez ce charmant terrain non-viabilisé de 1600 m², situé à 15 MINUTES DE Courtisols, dans le département de la Marne. Ce bien présente un cadre champêtre, ensoleillé et arboré, offrant un environnement calme et propice à la vie familiale. Avec son prix attractif et son emplacement idéal, ce terrain constitue une opportunité à ne pas manquer pour concrétiser votre rêve de construction. Courtisols, une petite commune dynamique située dans la région Grand Est, se distingue par ses attraits locaux et ses commodités. Vous profiterez d’un cadre de vie agréable, à proximité de toutes les infrastructures nécessaires : écoles, commerces et transports. La ville est également à quelques kilomètres des magnifiques paysages de la région, parfaits pour les amateurs de nature. Ce terrain est véritablement le point de départ idéal pour une vie paisible, tout en restant connecté aux atouts de la région. N’attendez plus pour envisager cette opportunité d’achat unique et donner vie à votre projet immobilier dans un cadre enchanteur. À noter qu’en tant que constructeur, nous ne sommes pas mandatés pour réaliser la vente de ce terrain.
Somme-Vesle
TERRAINDécouvrez ce magnifique terrain viabilisé de 689 m², idéalement situé à Somme-Vesle, dans la charmante région de la Marne. Ce terrain plat et ensoleillé offre un cadre champêtre, arboré et au calme, parfait pour la construction de votre future maison. Profitez d’une opportunité unique de concrétiser votre projet de vie dans un environnement paisible, tout en bénéficiant d’un prix exceptionnel et d’un plan local d’urbanisme non contraignant. Somme-Vesle, localisée dans le département de la Marne, se distingue par son cadre de vie agréable et ses nombreuses attractions locales. La ville vous offre divers services de proximité, des commerces, ainsi qu’un accès facile aux infrastructures essentielles. En plus de son ambiance tranquille, la région bénéficie d’un riche patrimoine naturel et culturel, vous permettant de profiter pleinement des activités en plein air et des événements locaux. Un véritable havre de paix à quelques encablures des grandes villes. Ce terrain représente une opportunité à ne pas manquer pour les futurs bâtisseurs et amateurs de calme. N’hésitez pas à envisager cet achat unique pour donner vie à vos rêves immobiliers. À noter qu’en tant que constructeur, nous ne sommes pas mandatés pour réaliser la vente de ce terrain.
L’actualité immobilière à Tilloy-et-Bellay
27/11/2023
02/11/2023
30/10/2023
20/10/2023
16/10/2023
16/10/2023