Images
Description
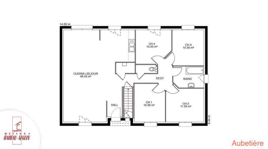
Sur ce terrain, nous vous proposons cette maison neuve Aubetière, un modèle traditionnel de la gamme Babeau-Seguin, constructeur reconnu pour offrir le meilleur rapport qualité/prix du marché. Avec une surface de 88 m², cette maison de plain-pied se compose de 4 pièces, dont 3 chambres spacieuses, idéales pour accueillir toute votre famille.
L'Aubetière se distingue par son excellent rapport qualité/prix et sa conformité aux normes RE2020, garantissant une basse consommation énergétique. Vous avez la possibilité de personnaliser votre maison en choisissant entre un toit à 2 pans ou à 4 pans, ainsi qu'en ajoutant un garage ou un sous-sol selon vos besoins.
Cette maison moderne et fonctionnelle est conçue pour s'adapter à vos envies et à votre mode de vie. Profitez de la flexibilité offerte par les nombreux plans et déclinaisons disponibles pour créer votre maison individuelle sur mesure.
Ne manquez pas cette opportunité de donner vie à votre projet de construction avec le modèle Aubetière, une maison neuve qui allie confort, économie d'énergie et personnalisation. Contactez-nous dès maintenant pour plus d'informations et pour découvrir toutes les options disponibles pour votre future maison.
Logement susceptibles de vous intéresser
Nous vous proposons de découvrir aussi cette sélection de logements situés à moins de 10km de Coole et qui seraient susceptibles de vous intéresser.
Pringy
TERRAINIdéalement situé à Pringy, dans le département de la Marne, ce terrain non-viabilisé de 1767m² constitue une opportunité unique pour réaliser votre projet de construction de maison. Avec son exposition ensoleillée et son environnement arboré, vous pourrez profiter d’un cadre champêtre au calme, parfait pour une vie sereine. Ce terrain plat se trouve dans un emplacement de choix, avec un prix attractif qui saura séduire les acquéreurs avisés. C’est le moment idéal pour donner vie à votre rêve immobilier. Pringy est une charmante commune du Grand Est qui bénéficie d’une proximité avec de nombreuses attractions locales et commodités. En plus de son ambiance paisible, vous découvrirez la richesse des paysages environnants et l’accès à des services essentiels, offrant ainsi une qualité de vie supérieure. Le secteur est également connu pour son PLU non contraignant, apportant une flexibilité précieuse dans la réalisation de vos projets. De plus, la sécurité de la zone ainsi que son cadre naturel contribuent à faire de cet endroit un véritable havre de paix. Ne laissez pas passer cette occasion exceptionnelle d’acquérir un terrain avec un potentiel indéniable. Envisagez dès maintenant cette opportunité d’achat unique et réalisez le projet de vos rêves. À noter qu’en tant que constructeur, nous ne sommes pas mandatés pour réaliser la vente de ce terrain.
Pringy
TERRAIN ET MAISONSur ce terrain, nous vous proposons cette maison neuve : la Focus Family Sud. Conçue par Babeau-Seguin, constructeur reconnu pour offrir le meilleur rapport qualité/prix du marché, cette maison de 89 m² est idéale pour les familles à la recherche d’un logement moderne et économique.Vous avez un budget serré et rêvez d’une maison au style urbain et contemporain ? La Focus Family Sud est faite pour vous. Cette maison compacte et élégante dispose de 4 chambres et de 4 pièces, offrant un espace de vie optimisé pour votre confort. Le garage intégré de près de 15 m², l’enduit bi-ton et les tuiles Canal ajoutent une touche de charme et de fonctionnalité à cette habitation.Les options les plus demandées par nos clients, telles que les menuiseries en aluminium, sont disponibles pour personnaliser votre maison selon vos goûts. De plus, cette maison neuve est basse consommation et conforme à la réglementation environnementale RE2020, garantissant des économies d’énergie et un respect de l’environnement.Ne manquez pas cette opportunité de construire une maison accessible à tous les budgets sans faire l’impasse sur les équipements. Avec ses 4 chambres, un cellier, un large séjour et un garage, la Focus Family Sud n’a rien à envier aux autres modèles de la gamme Babeau-Seguin. Profitez d’une habitation qui allie petit prix et grande prestation.
Coole
TERRAINDécouvrez ce magnifique terrain de 650 m², idéalement situé dans la charmante commune de Coole, au cœur du département de la Marne. Ce terrain non-viabilisé offre un cadre champêtre ensoleillé, arboré et paisible, parfait pour réaliser votre projet de construction de maison. Imaginez votre future demeure sur ce terrain plat, entouré de nature, où chaque jour sera une invitation à la sérénité et à l’évasion. Coole, une ville du Grand Est, se distingue par son ambiance conviviale et son environnement propice aux familles. À proximité, vous trouverez de nombreuses commodités, dont des commerces, des écoles et des loisirs divers. Les attractions locales, telles que les paysages pittoresques et les sentiers de randonnée, sauront ravir les amoureux de la nature. Ce terrain bénéficie ainsi d’un emplacement stratégique, alliant tranquillité et accès facile aux services essentiels. Ne manquez pas cette opportunité unique d’acquérir un terrain à fort potentiel dans un cadre enchanteur. Contactez-nous dès aujourd’hui pour envisager la réalisation de votre futur projet ! À noter qu’en tant que constructeur, nous ne sommes pas mandatés pour réaliser la vente de ce terrain.
Coole
TERRAIN ET MAISONSur ce terrain, nous vous proposons cette maison neuve Aubetière, un modèle traditionnel de la gamme Babeau-Seguin, constructeur reconnu pour offrir le meilleur rapport qualité/prix du marché. Avec une surface de 88 m², cette maison de plain-pied se compose de 4 pièces, dont 3 chambres spacieuses, idéales pour accueillir toute votre famille.L’Aubetière se distingue par son excellent rapport qualité/prix et sa conformité aux normes RE2020, garantissant une basse consommation énergétique. Vous avez la possibilité de personnaliser votre maison en choisissant entre un toit à 2 pans ou à 4 pans, ainsi qu’en ajoutant un garage ou un sous-sol selon vos besoins.Cette maison moderne et fonctionnelle est conçue pour s’adapter à vos envies et à votre mode de vie. Profitez de la flexibilité offerte par les nombreux plans et déclinaisons disponibles pour créer votre maison individuelle sur mesure.Ne manquez pas cette opportunité de donner vie à votre projet de construction avec le modèle Aubetière, une maison neuve qui allie confort, économie d’énergie et personnalisation. Contactez-nous dès maintenant pour plus d’informations et pour découvrir toutes les options disponibles pour votre future maison.
Dommartin-Lettrée
TERRAIN ET MAISONSur ce terrain, nous vous proposons cette maison neuve Aubetière, un modèle traditionnel de la gamme Babeau-Seguin, constructeur reconnu pour offrir le meilleur rapport qualité/prix du marché. Avec une surface de 88 m², cette maison de plain-pied se compose de 4 pièces, dont 3 chambres spacieuses, idéales pour accueillir toute votre famille.L’Aubetière se distingue par son excellent rapport qualité/prix et sa conformité aux normes RE2020, garantissant une basse consommation énergétique. Vous avez la possibilité de personnaliser votre maison en choisissant entre un toit à 2 pans ou à 4 pans, ainsi qu’en ajoutant un garage ou un sous-sol selon vos besoins.Cette maison moderne et fonctionnelle est conçue pour s’adapter à vos envies et à votre mode de vie. Profitez de la flexibilité offerte par les nombreux plans et déclinaisons disponibles pour créer votre maison individuelle sur mesure.Ne manquez pas cette opportunité de donner vie à votre projet de construction avec le modèle Aubetière, une maison neuve qui allie confort, économie d’énergie et personnalisation. Contactez-nous dès maintenant pour plus d’informations et pour découvrir toutes les options disponibles pour votre future maison.
Dommartin-Lettrée
TERRAINDécouvrez cette incroyable opportunité d’acquérir un terrain de 5052 m² situé à Dommartin-Lettrée, dans la Marne. Ce terrain, bien proportionné avec une largeur de façade de 70 m, offre un cadre idéal pour construire la maison de vos rêves. Bien qu’il soit actuellement non viabilisé, il représente un potentiel exceptionnel pour un projet résidentiel, tout en permettant de profiter d’une qualité de vie unique dans ce charmant village. Prêt à accueillir votre futur projet de construction, ce terrain saura séduire les acquéreurs en quête de tranquillité et d’authenticité. Dommartin-Lettrée, niché dans la Marne, est un village qui allie le charme de la campagne française à un accès facilité aux commodités locales. À quelques kilomètres des commerces, écoles et services nécessaires au quotidien, vous apprécierez la proximité de la nature, idéale pour les amateurs de randonnées et de plein air. De plus, la région est riche en patrimoine et offre des activités culturelles diversifiées, garantissant ainsi un cadre de vie agréable et dynamique. Ce domaine en pleine expansion saura ravir les futurs résidents par sa tranquillité et sa convivialité. Ce terrain à Dommartin-Lettrée est une opportunité rare à ne pas manquer. Que vous soyez un promoteur à la recherche d’un espace à transformer ou un particulier désireux de bâtir votre maison idéale, ce terrain vous offre un potentiel infini dans un cadre enchanteur. N’attendez plus pour envisager cette offre unique !
L’actualité immobilière à Coole
27/11/2023
02/11/2023
30/10/2023
20/10/2023
16/10/2023
16/10/2023