Images
Description
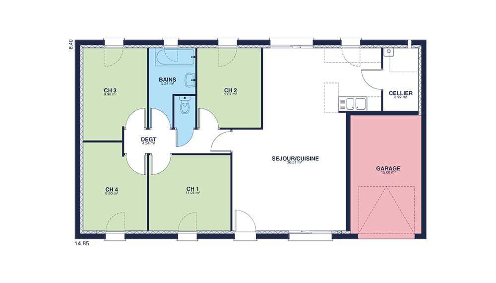
Sur ce terrain, nous vous proposons cette maison neuve : la Focus Family Sud. Conçue par Babeau-Seguin, constructeur reconnu pour offrir le meilleur rapport qualité/prix du marché, cette maison de 89 m² est idéale pour les familles à la recherche d'un logement moderne et économique.
Vous avez un budget serré et rêvez d’une maison au style urbain et contemporain ? La Focus Family Sud est faite pour vous. Cette maison compacte et élégante dispose de 4 chambres et de 4 pièces, offrant un espace de vie optimisé pour votre confort. Le garage intégré de près de 15 m², l'enduit bi-ton et les tuiles Canal ajoutent une touche de charme et de fonctionnalité à cette habitation.
Les options les plus demandées par nos clients, telles que les menuiseries en aluminium, sont disponibles pour personnaliser votre maison selon vos goûts. De plus, cette maison neuve est basse consommation et conforme à la réglementation environnementale RE2020, garantissant des économies d'énergie et un respect de l'environnement.
Ne manquez pas cette opportunité de construire une maison accessible à tous les budgets sans faire l’impasse sur les équipements. Avec ses 4 chambres, un cellier, un large séjour et un garage, la Focus Family Sud n’a rien à envier aux autres modèles de la gamme Babeau-Seguin. Profitez d'une habitation qui allie petit prix et grande prestation.
Logement susceptibles de vous intéresser
Nous vous proposons de découvrir aussi cette sélection de logements situés à moins de 10km de Pringy et qui seraient susceptibles de vous intéresser.

Pringy
TERRAINIdéalement situé à Pringy, dans le département de la Marne, ce terrain non-viabilisé de 1767m² constitue une opportunité unique pour réaliser votre projet de construction de maison. Avec son exposition ensoleillée et son environnement arboré, vous pourrez profiter d’un cadre champêtre au calme, parfait pour une vie sereine. Ce terrain plat se trouve dans un emplacement de choix, avec un prix attractif qui saura séduire les acquéreurs avisés. C’est le moment idéal pour donner vie à votre rêve immobilier. Pringy est une charmante commune du Grand Est qui bénéficie d’une proximité avec de nombreuses attractions locales et commodités. En plus de son ambiance paisible, vous découvrirez la richesse des paysages environnants et l’accès à des services essentiels, offrant ainsi une qualité de vie supérieure. Le secteur est également connu pour son PLU non contraignant, apportant une flexibilité précieuse dans la réalisation de vos projets. De plus, la sécurité de la zone ainsi que son cadre naturel contribuent à faire de cet endroit un véritable havre de paix. Ne laissez pas passer cette occasion exceptionnelle d’acquérir un terrain avec un potentiel indéniable. Envisagez dès maintenant cette opportunité d’achat unique et réalisez le projet de vos rêves. À noter qu’en tant que constructeur, nous ne sommes pas mandatés pour réaliser la vente de ce terrain.

Pringy
TERRAIN ET MAISONSur ce terrain, nous vous proposons cette maison neuve : la Focus Family Sud. Conçue par Babeau-Seguin, constructeur reconnu pour offrir le meilleur rapport qualité/prix du marché, cette maison de 89 m² est idéale pour les familles à la recherche d’un logement moderne et économique.Vous avez un budget serré et rêvez d’une maison au style urbain et contemporain ? La Focus Family Sud est faite pour vous. Cette maison compacte et élégante dispose de 4 chambres et de 4 pièces, offrant un espace de vie optimisé pour votre confort. Le garage intégré de près de 15 m², l’enduit bi-ton et les tuiles Canal ajoutent une touche de charme et de fonctionnalité à cette habitation.Les options les plus demandées par nos clients, telles que les menuiseries en aluminium, sont disponibles pour personnaliser votre maison selon vos goûts. De plus, cette maison neuve est basse consommation et conforme à la réglementation environnementale RE2020, garantissant des économies d’énergie et un respect de l’environnement.Ne manquez pas cette opportunité de construire une maison accessible à tous les budgets sans faire l’impasse sur les équipements. Avec ses 4 chambres, un cellier, un large séjour et un garage, la Focus Family Sud n’a rien à envier aux autres modèles de la gamme Babeau-Seguin. Profitez d’une habitation qui allie petit prix et grande prestation.

Coole
TERRAINDécouvrez ce magnifique terrain de 650 m², idéalement situé dans la charmante commune de Coole, au cœur du département de la Marne. Ce terrain non-viabilisé offre un cadre champêtre ensoleillé, arboré et paisible, parfait pour réaliser votre projet de construction de maison. Imaginez votre future demeure sur ce terrain plat, entouré de nature, où chaque jour sera une invitation à la sérénité et à l’évasion. Coole, une ville du Grand Est, se distingue par son ambiance conviviale et son environnement propice aux familles. À proximité, vous trouverez de nombreuses commodités, dont des commerces, des écoles et des loisirs divers. Les attractions locales, telles que les paysages pittoresques et les sentiers de randonnée, sauront ravir les amoureux de la nature. Ce terrain bénéficie ainsi d’un emplacement stratégique, alliant tranquillité et accès facile aux services essentiels. Ne manquez pas cette opportunité unique d’acquérir un terrain à fort potentiel dans un cadre enchanteur. Contactez-nous dès aujourd’hui pour envisager la réalisation de votre futur projet ! À noter qu’en tant que constructeur, nous ne sommes pas mandatés pour réaliser la vente de ce terrain.

Coole
TERRAIN ET MAISONSur ce terrain, nous vous proposons cette maison neuve Aubetière, un modèle traditionnel de la gamme Babeau-Seguin, constructeur reconnu pour offrir le meilleur rapport qualité/prix du marché. Avec une surface de 88 m², cette maison de plain-pied se compose de 4 pièces, dont 3 chambres spacieuses, idéales pour accueillir toute votre famille.L’Aubetière se distingue par son excellent rapport qualité/prix et sa conformité aux normes RE2020, garantissant une basse consommation énergétique. Vous avez la possibilité de personnaliser votre maison en choisissant entre un toit à 2 pans ou à 4 pans, ainsi qu’en ajoutant un garage ou un sous-sol selon vos besoins.Cette maison moderne et fonctionnelle est conçue pour s’adapter à vos envies et à votre mode de vie. Profitez de la flexibilité offerte par les nombreux plans et déclinaisons disponibles pour créer votre maison individuelle sur mesure.Ne manquez pas cette opportunité de donner vie à votre projet de construction avec le modèle Aubetière, une maison neuve qui allie confort, économie d’énergie et personnalisation. Contactez-nous dès maintenant pour plus d’informations et pour découvrir toutes les options disponibles pour votre future maison.

Vitry-le-François
TERRAINTerrain à batir sur PRINGYRéseaux très procheFacade environ 18 mD’une longueur d’environ 90 mètresTout à l’égout prochePrix: 42990 euros FAI. Honoraires inclus charge vendeur.Pour visiter et vous accompagner dans votre projet, contactez Philippe GUYOT, au (Numéro supprimé) ou par courriel à (Email supprimé)Selon l’article L.561.5 du Code Monétaire et Financier, pour l’organisation de la visite, la présentation d’une pièce d’identité vous sera demandée.Cette vente est garantie 12 mois.Cette présente annonce a été rédigée sous la responsabilité éditoriale de Philippe GUYOT agissant sous le statut d’agent commercial immatriculé au RSAC 820268886 auprès de la SAS PROPRIETES PRIVEES, au capital de 44 920 euros, ZAC LE CHÊNE FERRÉ – 44 ALLÉE DES CINQ CONTINENTS 44120 VERTOU; SIRET 487 624 777 00040, RCS Nantes. Carte professionnelle Transactions sur immeubles et fonds de commerce (T) et Gestion immobilière (G) n° CPI 4401 2016 000 010 388 délivrée par la CCI Nantes – Saint Nazaire. Compte séquestre n(Numéro supprimé)67 BPA SAINT-SEBASTIEN-SUR-LOIRE (44230) ; Garantie GALIAN – 89 rue de la Boétie, 75008 Paris – n°28137 J pour 2 000 000 euros pour T et 120 000 euros pour G. Assurance responsabilité civile professionnelle par MMA Entreprise n° de police 120.137.405Mandat réf : 389425 – Le professionnel garantit et sécurise votre projet immobilier.les informations sur les risques auxquels ce bien est exposé sont disponiblessur le site Géorisques: www.georisques.gouv.fr Philippe GUYOT (EI) Agent Commercial – Numéro RSAC : 820268886 – .

La Chaussée-sur-Marne
TERRAINNous vous proposons un terrain d’une superficie généreuse de 1060 m², idéalement situé à La Chaussée-sur-Marne, dans le département de la Marne. Ce terrain non-viabilisé, plat et arboré, bénéficie d’une situation en plein cœur d’un cadre champêtre, offrant un environnement sécurisé et calme, parfait pour un projet de construction de maison. Le Plan Local d’Urbanisme (PLU) non contraignant ouvre de nombreuses possibilités pour concrétiser vos projets d’habitation. La Chaussée-sur-Marne, charmante commune située à proximité de la ville de Châlons-en-Champagne, vous séduira par ses multiples atouts. Profitez de la beauté de la nature environnante et d’un cadre de vie paisible, tout en ayant accès à des attractions locales telles que des promenades le long de la Marne et des activités de plein air. Cette commune dispose également de toutes les commodités nécessaires : commerces, services de santé et écoles, facilitant votre quotidien et celui de votre famille. Ce terrain représente une opportunité rare sur le marché immobilier. N’attendez plus pour envisager un projet de vie sur mesure dans ce coin idyllique de la Marne. Contactez-nous dès aujourd’hui pour explorer ce potentiel d’achat unique.

La Chaussée-sur-Marne
TERRAIN ET MAISONNous vous proposons un terrain d’une superficie généreuse de 1060 m², idéalement situé à La Chaussée-sur-Marne, dans le département de la Marne. Ce terrain non-viabilisé, plat et arboré, bénéficie d’une situation en plein cœur d’un cadre champêtre, offrant un environnement sécurisé et calme, parfait pour un projet de construction de maison. Le Plan Local d’Urbanisme (PLU) non contraignant ouvre de nombreuses possibilités pour concrétiser vos projets d’habitation. La Chaussée-sur-Marne, charmante commune située à proximité de la ville de Châlons-en-Champagne, vous séduira par ses multiples atouts. Profitez de la beauté de la nature environnante et d’un cadre de vie paisible, tout en ayant accès à des attractions locales telles que des promenades le long de la Marne et des activités de plein air. Cette commune dispose également de toutes les commodités nécessaires : commerces, services de santé et écoles, facilitant votre quotidien et celui de votre famille. Ce terrain représente une opportunité rare sur le marché immobilier. N’attendez plus pour envisager un projet de vie sur mesure dans ce coin idyllique de la Marne. Contactez-nous dès aujourd’hui pour explorer ce potentiel d’achat unique.
L’actualité immobilière à Pringy





