Images
Description
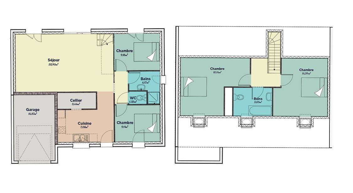
Sur ce terrain, nous vous proposons cette maison neuve : la Focus EVO, un modèle unique de 110 m² conçu par Babeau-Seguin, constructeur offrant le meilleur rapport qualité/prix du marché. Cette maison basse consommation est conforme à la norme RE2020, garantissant des performances énergétiques exceptionnelles.
La Focus EVO se distingue par son concept évolutif, alliant une maison neuve prête à vivre et une maison prête à finir. Livrée avec 73 m² habitables, elle est conçue pour évoluer avec vos besoins futurs. Grâce à ses combles aménageables, vous pouvez facilement augmenter votre surface habitable à 110 m², ajoutant ainsi deux chambres supplémentaires et une salle de bain, pour un total de 4 chambres et 2 salles de bains.
Les caractéristiques principales de cette maison incluent un garage intégré, un cellier, et des combles aménageables. Les options les plus demandées par nos clients, telles que la version Investisseur et les prises USB murales, sont également disponibles.
La Focus EVO est idéale pour tous ceux qui recherchent une maison complète à un prix compétitif. Elle comprend une grande pièce de jour traversante, 4 chambres, une salle de bain, et un garage de 15 m². Que vous soyez un jeune couple, un célibataire ou une famille en pleine expansion, cette maison saura s'adapter à vos besoins et à vos envies.
Ne manquez pas cette occasion unique de devenir propriétaire d'une maison évolutive, économe en énergie et conforme aux dernières normes environnementales. Contactez-nous dès aujourd'hui pour plus d'informations et pour planifier une visite.
Logement susceptibles de vous intéresser
Nous vous proposons de découvrir aussi cette sélection de logements situés à moins de 10km de La Cheppe et qui seraient susceptibles de vous intéresser.
Vadenay
TERRAIN ET MAISONRéalisez votre projet de construction de maison RE 2020 avec PAVILLONS D'ÎLE-DE-FRANCE (constructeur de maisons de gamme et sur-mesure depuis plus de 50 ans) :- Plan sur-mesure et personnalisé de 2 à 5 chambres- Mode de chauffage au choix- Grands choix d'équipements et de prestations- Matériaux de qualité selon les normes en vigueur- Accompagnement dans le choix et l’acquisition du terrainInformations du terrain : Sur axe Reims/Chalons, à 10mm de Mourmelon et de Suippes.Belle parcelle arborée.Demandez une étude gratuite et personnalisée de votre projet de construction !Contactez Vincent AUGE au (Numéro supprimé) ou au (Numéro supprimé) (Pavillons d'Île-de-France – Agence de Reims).Prix avec assurance dommages-ouvrage comprise, hors VRD, terrain viabilisé, assainissement non compris, frais de notaire non compris, taxes non comprises, frais divers non compris. Terrain sélectionné et vu pour vous sous réserve de disponibilité et au prix indiqué par notre partenaire foncier. Visuels non contractuels.Cette annonce a été créée et diffusée avec le logiciel VITAHOME.
Vadenay
TERRAIN ET MAISONRéalisez votre projet de construction de maison RE 2020 avec PAVILLONS D'ÎLE-DE-FRANCE (constructeur de maisons de gamme et sur-mesure depuis plus de 50 ans) :- Plan sur-mesure et personnalisé de 2 à 5 chambres- Mode de chauffage au choix- Grands choix d'équipements et de prestations- Matériaux de qualité selon les normes en vigueur- Accompagnement dans le choix et l’acquisition du terrainInformations du terrain : Sur axe Reims/Chalons, à 10mm de Mourmelon et de Suippes.Belle parcelle arborée.Demandez une étude gratuite et personnalisée de votre projet de construction !Contactez Vincent AUGE au (Numéro supprimé) ou au (Numéro supprimé) (Pavillons d'Île-de-France – Agence de Reims).Prix avec assurance dommages-ouvrage comprise, hors VRD, terrain viabilisé, assainissement non compris, frais de notaire non compris, taxes non comprises, frais divers non compris. Terrain sélectionné et vu pour vous sous réserve de disponibilité et au prix indiqué par notre partenaire foncier. Visuels non contractuels.Cette annonce a été créée et diffusée avec le logiciel VITAHOME.
Vadenay
TERRAINSur axe Reims/Chalons, à 10mm de Mourmelon et de Suippes.Belle parcelle arborée.Prix : 47000 €.Sur ce terrain, réalisez votre projet de construction de maison RE 2020 avec PAVILLONS D'ÎLE-DE-FRANCE (constructeur de maisons de gamme et sur-mesure depuis plus de 50 ans) :- Plan sur-mesure et personnalisé de 2 à 5 chambres- Mode de chauffage au choix- Grands choix d'équipements et de prestations- Matériaux de qualité selon les normes en vigueur- Accompagnement dans le choix et l’acquisition du terrainDemandez une étude gratuite et personnalisée de votre projet de construction sur ce terrain !Contactez Vincent AUGE au (Numéro supprimé) ou au (Numéro supprimé) (Pavillons d'Île-de-France – Agence de Reims).Prix hors frais de notaire. Terrain sélectionné et vu pour vous sous réserve de disponibilité et au prix indiqué par notre partenaire foncier. Visuels non contractuels.Cette annonce a été créée et diffusée avec le logiciel VITAHOME.
Vadenay
TERRAIN ET MAISONRéalisez votre projet de construction de maison RE 2020 avec PAVILLONS D'ÎLE-DE-FRANCE (constructeur de maisons de gamme et sur-mesure depuis plus de 50 ans) :- Plan sur-mesure et personnalisé de 2 à 5 chambres- Mode de chauffage au choix- Grands choix d'équipements et de prestations- Matériaux de qualité selon les normes en vigueur- Accompagnement dans le choix et l’acquisition du terrainInformations du terrain : Sur axe Reims/Chalons, à 10mm de Mourmelon et de Suippes.Belle parcelle arborée.Demandez une étude gratuite et personnalisée de votre projet de construction !Contactez Vincent AUGE au (Numéro supprimé) ou au (Numéro supprimé) (Pavillons d'Île-de-France – Agence de Reims).Prix avec assurance dommages-ouvrage comprise, hors VRD, terrain viabilisé, assainissement non compris, frais de notaire non compris, taxes non comprises, frais divers non compris. Terrain sélectionné et vu pour vous sous réserve de disponibilité et au prix indiqué par notre partenaire foncier. Visuels non contractuels.Cette annonce a été créée et diffusée avec le logiciel VITAHOME.
Courtisols
TERRAIN ET MAISONSur ce terrain, nous vous proposons cette maison neuve Aubetière. Avec une surface de 96 m² et équipée de 4 chambres, cette maison traditionnelle est appréciée pour son excellent rapport qualité/prix. L’Aubetière, fleuron de la gamme traditionnelle Babeau-Seguin, est une maison moderne qui se décline en plusieurs versions pour répondre à vos besoins spécifiques. Vous pouvez choisir entre une toiture à 2 pans ou à 4 pans, et personnaliser votre maison avec des options comme un garage ou un sous-sol.Cette maison de plain-pied est conçue pour être basse consommation et conforme à la RE2020, garantissant ainsi des économies d’énergie et un confort optimal tout au long de l’année. Babeau-Seguin, constructeur reconnu pour offrir le meilleur rapport qualité/prix du marché, vous accompagne dans la réalisation de votre projet de construction sur mesure. Donnez vie à votre projet en optant pour l’Aubetière et profitez d’une maison neuve, performante et personnalisable selon vos envies.
Courtisols
TERRAINNous sommes ravis de vous présenter ce superbe terrain à vendre, situé dans le charmant lotissement à 10 minutes de Courtisols. Avec une superficie généreuse de 1173 m², cet espace non viabilisé se prête parfaitement à un projet de construction de maison. Bénéficiant d’une localisation exceptionnelle, ce terrain offre un cadre champêtre privilégié, arboré et ensoleillé, tout en garantissant une tranquillité rare dans un quartier recherché. Le Plan Local d’Urbanisme (PLU) non contraignant vous permettra d’explorer un large éventail de possibilités pour concevoir la maison de vos rêves. Idéalement situé dans la commune de Courtisols, dans le département de la Marne, en région Grand Est, ce terrain vous permettra de profiter de la qualité de vie qu’offre cette localité dynamique. Les attractions locales, tant culturelles que naturelles, ne sont pas en reste, et vous serez à proximité de commerces, de services essentiels et d’écoles. Que ce soit pour des balades en pleine nature ou pour profiter des infrastructures locales, Courtisols est l’endroit parfait pour établir un foyer. La combinaison de la sécurité, du calme et des commodités à proximité en fait un emplacement de choix pour votre projet immobilier. Ne manquez pas cette occasion unique d’investir dans un terrain qui allie tranquillité et potentiel de construction. Contactez-nous dès maintenant pour découvrir toutes les possibilités qu’offre ce bien exceptionnel. À noter qu’en tant que constructeur, nous ne sommes pas mandatés pour réaliser la vente de ce terrain.
Courtisols
TERRAIN ET MAISONSur ce terrain, nous vous proposons cette maison neuve : la Focus Family. Conçue par Babeau-Seguin, constructeur offrant le meilleur rapport qualité/prix du marché, cette maison familiale à tout petit prix est idéale pour ceux qui souhaitent allier confort et économies.Avec une surface habitable de 89 m², la Focus Family vous offre un espace généreux et bien agencé. Elle comprend 4 chambres, parfaites pour accueillir toute votre famille, ainsi qu’un grand séjour traversant avec cuisine ouverte, pour un total de 4 pièces. Vous apprécierez également le garage intégré, pratique pour stationner votre véhicule ou pour du rangement supplémentaire.L’enduit bi-ton de la façade apporte une touche moderne et élégante à cette maison. De plus, les options les plus demandées par nos clients, comme les menuiseries en aluminium, sont disponibles pour personnaliser votre future habitation selon vos goûts.La Focus Family est une maison basse consommation, conforme à la réglementation environnementale RE2020. Elle est équipée des dernières innovations technologiques pour garantir une isolation thermique et phonique optimale, tout en étant économique et respectueuse de l’environnement.Ne faites aucune concession sur la qualité avec cette maison low cost de luxe. Babeau-Seguin met tout son savoir-faire et son professionnalisme dans la construction de la gamme Focus, en utilisant les meilleurs matériaux et une charpente traditionnelle.N’attendez plus pour réaliser votre projet de maison familiale à petit prix avec la Focus Family, une maison spacieuse, écolo et accessible à tous les budgets.
Bouy
TERRAIN ET MAISONRéalisez votre projet de construction de maison RE 2020 avec PAVILLONS D'ÎLE-DE-FRANCE (constructeur de maisons de gamme et sur-mesure depuis plus de 50 ans) :- Plan sur-mesure et personnalisé de 2 à 5 chambres- Mode de chauffage au choix- Grands choix d'équipements et de prestations- Matériaux de qualité selon les normes en vigueur- Accompagnement dans le choix et l’acquisition du terrainDemandez une étude gratuite et personnalisée de votre projet de construction !Contactez Vincent AUGE au (Numéro supprimé) ou au (Numéro supprimé) (Pavillons d'Île-de-France – Agence de Reims).Prix avec assurance dommages-ouvrage comprise, hors VRD, terrain viabilisé, assainissement non compris, frais de notaire non compris, taxes non comprises, frais divers non compris. Terrain sélectionné et vu pour vous sous réserve de disponibilité et au prix indiqué par notre partenaire foncier. Visuels non contractuels.Cette annonce a été créée et diffusée avec le logiciel VITAHOME.
Bouy
TERRAINPrix : 79500 €.Sur ce terrain, réalisez votre projet de construction de maison RE 2020 avec PAVILLONS D'ÎLE-DE-FRANCE (constructeur de maisons de gamme et sur-mesure depuis plus de 50 ans) :- Plan sur-mesure et personnalisé de 2 à 5 chambres- Mode de chauffage au choix- Grands choix d'équipements et de prestations- Matériaux de qualité selon les normes en vigueur- Accompagnement dans le choix et l’acquisition du terrainDemandez une étude gratuite et personnalisée de votre projet de construction sur ce terrain !Contactez Vincent AUGE au (Numéro supprimé) ou au (Numéro supprimé) (Pavillons d'Île-de-France – Agence de Reims).Prix hors frais de notaire. Terrain sélectionné et vu pour vous sous réserve de disponibilité et au prix indiqué par notre partenaire foncier. Visuels non contractuels.Cette annonce a été créée et diffusée avec le logiciel VITAHOME.
L’actualité immobilière à La Cheppe
27/11/2023
02/11/2023
30/10/2023
20/10/2023
16/10/2023
16/10/2023