Images
Description
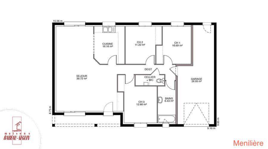
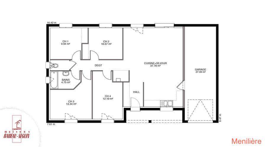
Sur ce terrain, nous vous proposons cette maison neuve, le modèle Ménilière, une maison plain-pied moderne qui intègre de base un garage et une longue galerie sur la face avant. Avec une surface de 100 m², cette maison dispose de 4 chambres et de 4 pièces, offrant ainsi un espace de vie confortable et fonctionnel pour toute la famille.
Véritable ""tout-en-un"" de la maison individuelle, ce modèle est idéal pour votre projet de construction sur-mesure. La Ménilière est disponible avec un toit à 2 pans ou 4 pans, selon vos préférences esthétiques. Le garage intégré et la galerie avant ajoutent une touche pratique et élégante à cette maison.
Les options les plus demandées par nos clients, telles que les menuiseries en aluminium et le sous-sol, sont également disponibles pour personnaliser davantage votre future maison. De plus, cette maison neuve est basse consommation et conforme à la réglementation environnementale RE2020, garantissant ainsi des performances énergétiques optimales et un impact environnemental réduit.
Le constructeur Babeau-Seguin, reconnu pour offrir le meilleur rapport qualité/prix du marché, vous accompagne dans la réalisation de votre projet immobilier. Avec un prix serré et une personnalisation facile, il n'est pas étonnant que la Ménilière soit dans le top 5 des ventes de Babeau-Seguin.
Ne manquez pas cette opportunité unique de devenir propriétaire d'une maison moderne, économe en énergie et parfaitement adaptée à vos besoins. Contactez-nous dès maintenant pour plus d'informations et pour planifier une visite de ce modèle exceptionnel.
Logement susceptibles de vous intéresser
Nous vous proposons de découvrir aussi cette sélection de logements situés à moins de 10km de Sarry et qui seraient susceptibles de vous intéresser.
Courtisols
TERRAIN ET MAISONSur ce terrain, nous vous proposons cette maison neuve Aubetière. Avec une surface de 96 m² et équipée de 4 chambres, cette maison traditionnelle est appréciée pour son excellent rapport qualité/prix. L’Aubetière, fleuron de la gamme traditionnelle Babeau-Seguin, est une maison moderne qui se décline en plusieurs versions pour répondre à vos besoins spécifiques. Vous pouvez choisir entre une toiture à 2 pans ou à 4 pans, et personnaliser votre maison avec des options comme un garage ou un sous-sol.Cette maison de plain-pied est conçue pour être basse consommation et conforme à la RE2020, garantissant ainsi des économies d’énergie et un confort optimal tout au long de l’année. Babeau-Seguin, constructeur reconnu pour offrir le meilleur rapport qualité/prix du marché, vous accompagne dans la réalisation de votre projet de construction sur mesure. Donnez vie à votre projet en optant pour l’Aubetière et profitez d’une maison neuve, performante et personnalisable selon vos envies.
Courtisols
TERRAINNous sommes ravis de vous présenter ce superbe terrain à vendre, situé dans le charmant lotissement à 10 minutes de Courtisols. Avec une superficie généreuse de 1173 m², cet espace non viabilisé se prête parfaitement à un projet de construction de maison. Bénéficiant d’une localisation exceptionnelle, ce terrain offre un cadre champêtre privilégié, arboré et ensoleillé, tout en garantissant une tranquillité rare dans un quartier recherché. Le Plan Local d’Urbanisme (PLU) non contraignant vous permettra d’explorer un large éventail de possibilités pour concevoir la maison de vos rêves. Idéalement situé dans la commune de Courtisols, dans le département de la Marne, en région Grand Est, ce terrain vous permettra de profiter de la qualité de vie qu’offre cette localité dynamique. Les attractions locales, tant culturelles que naturelles, ne sont pas en reste, et vous serez à proximité de commerces, de services essentiels et d’écoles. Que ce soit pour des balades en pleine nature ou pour profiter des infrastructures locales, Courtisols est l’endroit parfait pour établir un foyer. La combinaison de la sécurité, du calme et des commodités à proximité en fait un emplacement de choix pour votre projet immobilier. Ne manquez pas cette occasion unique d’investir dans un terrain qui allie tranquillité et potentiel de construction. Contactez-nous dès maintenant pour découvrir toutes les possibilités qu’offre ce bien exceptionnel. À noter qu’en tant que constructeur, nous ne sommes pas mandatés pour réaliser la vente de ce terrain.
Saint-Germain-la-Ville
TERRAINÀ la recherche d’un terrain pour concrétiser votre projet de construction ? Découvrez ce terrain viabilisé de 596 m², situé à Saint-Germain-la-Ville, dans le département de la Marne. Ce lotissement offre une qualité de vie exceptionnelle, entouré d’un cadre champêtre arboré et calme. Profitez d’un emplacement prisé, idéal pour bâtir la maison de vos rêves, où sécurité et ensoleillement se rejoignent harmonieusement. Saint-Germain-la-Ville, localisé dans la région Grand Est, est une commune dynamique qui saura séduire les familles et les amoureux de la nature. Grâce à ses commodités locales, vous bénéficiez d’un cadre de vie agréable tout en étant à proximité des principales attractions de la région. Des services de première nécessité et des espaces de loisirs à portée de main vous assurent un quotidien confortable. Cet environnement privilégie le calme et la sérénité, tout en restant accessible pour des escapades en ville ou vers les charmantes villes environnantes. Ne manquez pas cette opportunité unique d’investir dans un terrain d’exception à Saint-Germain-la-Ville. Ce projet est parfait pour ceux qui souhaitent allier tranquillité et accessibilité. Contactez-nous vite pour en savoir plus ! À noter qu’en tant que constructeur, nous ne sommes pas mandatés pour réaliser la vente de ce terrain.
Saint-Germain-la-Ville
TERRAIN ET MAISONSur ce terrain, nous vous proposons cette maison neuve : la Versière Sud. Avec une surface de 92 m², cette maison de plain-pied se distingue par son design moderne et original, grâce à ses plans en V qui s’intègrent parfaitement aux paysages du sud. La Versière Sud comprend 4 pièces, dont 3 chambres spacieuses, offrant un espace de vie confortable et fonctionnel. Vous avez la possibilité de personnaliser l’aménagement intérieur selon vos besoins et vos envies, pour créer un espace qui vous ressemble.Cette maison est également compatible avec de nombreuses options, telles qu’un garage ou un sous-sol, pour répondre à toutes vos exigences. Vous pouvez choisir entre une toiture à 2 pans ou à 4 pans, selon vos préférences esthétiques.En plus de son design attrayant, la Versière Sud est une maison basse consommation, conforme à la réglementation environnementale RE2020. Cela garantit une performance énergétique optimale et un confort de vie tout au long de l’année, tout en respectant l’environnement.Le constructeur Babeau-Seguin, reconnu pour offrir le meilleur rapport qualité/prix du marché, vous accompagne dans la réalisation de ce projet. Avec la Versière Sud, vous optez pour une villa coup de cœur, alliant modernité, originalité et performance énergétique.N’attendez plus pour découvrir cette maison unique et personnalisable, qui saura répondre à toutes vos attentes.
Châlons-en-Champagne
TERRAINTerrain à bâtir d’une surface 719M2 vendu Borné et viabilisé en eau et électricitésitué dans un environnement calme à quelques kms de Châlons en ChampagneMais ce n’est pas tout :Vous êtes propriétaire d’une Maison, Appartement ou d’un Terrain et vous réfléchissez à le mettre en vente ? Profitez d’une estimation professionnelle, fiable et gratuite, même si vous n’êtes pas encore décidé. Acheter, vendre, comparer : je vous accompagne avec transparence et expertise pour optimiser votre projet. Contactez moi pour découvrir les terrains disponibles ou pour évaluer la valeur réelle de votre bien.Cette annonce référence 313919 vous est présentée par votre agent commercial BSK Immobilier JÉROME JOUAULT (EI) immatriculé au RSAC de CHALONS-EN-CHAMPAGNE (51000) sous le numéro 88834723400039.Prix du bien : 64 900,00 €Les honoraires d’agence sont à la charge du vendeur.Les informations sur les risques auxquels ce bien est exposé sont disponibles sur le site Géorisques : www.georisques.gouv.fr
Sarry
TERRAINTerrain à bâtir d’une surface 643M2 vendu Borné et viabilisé en eau et électricitésitué dans un environnement calme à quelques kms de Châlons en ChampagneMais ce n’est pas tout :Vous êtes propriétaire d’une Maison, Appartement ou d’un Terrain et vous réfléchissez à le mettre en vente ? Profitez d’une estimation professionnelle, fiable et gratuite, même si vous n’êtes pas encore décidé. Acheter, vendre, comparer : je vous accompagne avec transparence et expertise pour optimiser votre projet. Contactez moi pour découvrir les terrains disponibles ou pour évaluer la valeur réelle de votre bien.Cette annonce référence 313921 vous est présentée par votre agent commercial BSK Immobilier JÉROME JOUAULT (EI) immatriculé au RSAC de CHALONS-EN-CHAMPAGNE (51000) sous le numéro 88834723400039.Prix du bien : 59 900,00 €Les honoraires d’agence sont à la charge du vendeur.Les informations sur les risques auxquels ce bien est exposé sont disponibles sur le site Géorisques : www.georisques.gouv.fr
Pogny
TERRAINTerrain à bâtir d’une surface 645M2 vendu Borné et viabilisé en eau et électricitésitué dans un environnement calme à quelques kms de Châlons en ChampagneMais ce n’est pas tout :Vous êtes propriétaire d’une Maison, Appartement ou d’un Terrain et vous réfléchissez à le mettre en vente ? Profitez d’une estimation professionnelle, fiable et gratuite, même si vous n’êtes pas encore décidé. Acheter, vendre, comparer : je vous accompagne avec transparence et expertise pour optimiser votre projet. Contactez moi pour découvrir les terrains disponibles ou pour évaluer la valeur réelle de votre bien.Cette annonce référence 313917 vous est présentée par votre agent commercial BSK Immobilier JÉROME JOUAULT (EI) immatriculé au RSAC de CHALONS-EN-CHAMPAGNE (51000) sous le numéro 88834723400039.Prix du bien : 59 900,00 €Les honoraires d’agence sont à la charge du vendeur.Les informations sur les risques auxquels ce bien est exposé sont disponibles sur le site Géorisques : www.georisques.gouv.fr
Moncetz-Longevas
TERRAINOPPORTUNITÉ À SAISIR – Terrain à bâtir – Moncetz-LongevasÀ 10 minutes de Châlons-en-Champagne – Terrain à bâtir de 879 m², situé dans une commune agréable et bien desservie. Ce terrain constructible offre un cadre idéal pour votre projet de construction.Le terrain est libre de constructeur. Tous les réseaux sont à proximité pour une viabilisation facilitée.Un emplacement stratégique, un projet prêt à démarrer.À visiter rapidement !Référence : 2346 – 13065Prenez contact avec votre agent :Charlotte DUVAL EI(Numéro supprimé)Agent commercial n°RSAC Reims 980 722 235
Châlons-en-Champagne
TERRAIN ET MAISONRéalisez votre projet de construction de maison RE 2020 avec PAVILLONS D'ÎLE-DE-FRANCE (constructeur de maisons de gamme et sur-mesure depuis plus de 50 ans) :- Plan sur-mesure et personnalisé de 2 à 5 chambres- Mode de chauffage au choix- Grands choix d'équipements et de prestations- Matériaux de qualité selon les normes en vigueur- Accompagnement dans le choix et l’acquisition du terrainInformations du terrain : Dans rue calme, proche centre ville.Demandez une étude gratuite et personnalisée de votre projet de construction !Contactez Vincent AUGE au (Numéro supprimé) ou au (Numéro supprimé) (Pavillons d'Île-de-France – Agence de Reims).Prix avec assurance dommages-ouvrage comprise, hors VRD, terrain viabilisé, assainissement non compris, frais de notaire non compris, taxes non comprises, frais divers non compris. Terrain sélectionné et vu pour vous sous réserve de disponibilité et au prix indiqué par notre partenaire foncier. Visuels non contractuels.Cette annonce a été créée et diffusée avec le logiciel VITAHOME.
L’actualité immobilière à Sarry
27/11/2023
02/11/2023
30/10/2023
20/10/2023
16/10/2023
16/10/2023