Images
Description
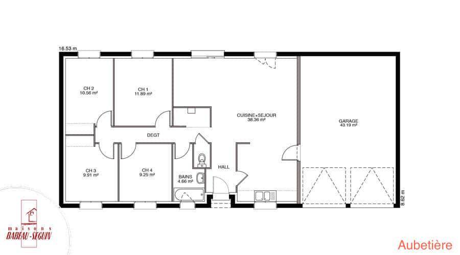
Sur ce terrain, nous vous proposons cette maison neuve Aubetière. Avec une surface de 96 m² et équipée de 4 chambres, cette maison traditionnelle est appréciée pour son excellent rapport qualité/prix.
L'Aubetière, fleuron de la gamme traditionnelle Babeau-Seguin, est une maison moderne qui se décline en plusieurs versions pour répondre à vos besoins spécifiques. Vous pouvez choisir entre une toiture à 2 pans ou à 4 pans, et personnaliser votre maison avec des options comme un garage ou un sous-sol.
Cette maison de plain-pied est conçue pour être basse consommation et conforme à la RE2020, garantissant ainsi des économies d'énergie et un confort optimal tout au long de l'année.
Babeau-Seguin, constructeur reconnu pour offrir le meilleur rapport qualité/prix du marché, vous accompagne dans la réalisation de votre projet de construction sur mesure. Donnez vie à votre projet en optant pour l'Aubetière et profitez d'une maison neuve, performante et personnalisable selon vos envies.
Logement susceptibles de vous intéresser
Nous vous proposons de découvrir aussi cette sélection de logements situés à moins de 10km de Sainte-Menehould et qui seraient susceptibles de vous intéresser.

La Neuville-au-Pont
TERRAIN ET MAISONSur ce terrain, nous vous proposons cette maison neuve : la Focus Family Sud. Conçue par Babeau-Seguin, constructeur reconnu pour offrir le meilleur rapport qualité/prix du marché, cette maison de 89 m² est idéale pour les familles à la recherche d’un logement moderne et économique.Vous avez un budget serré et rêvez d’une maison au style urbain et contemporain ? La Focus Family Sud est faite pour vous. Cette maison compacte et élégante dispose de 4 chambres et de 4 pièces, offrant un espace de vie optimisé pour votre confort. Le garage intégré de près de 15 m², l’enduit bi-ton et les tuiles Canal ajoutent une touche de charme et de fonctionnalité à cette habitation.Les options les plus demandées par nos clients, telles que les menuiseries en aluminium, sont disponibles pour personnaliser votre maison selon vos goûts. De plus, cette maison neuve est basse consommation et conforme à la réglementation environnementale RE2020, garantissant des économies d’énergie et un respect de l’environnement.Ne manquez pas cette opportunité de construire une maison accessible à tous les budgets sans faire l’impasse sur les équipements. Avec ses 4 chambres, un cellier, un large séjour et un garage, la Focus Family Sud n’a rien à envier aux autres modèles de la gamme Babeau-Seguin. Profitez d’une habitation qui allie petit prix et grande prestation.

Chaudefontaine
TERRAIN ET MAISONSur ce terrain, nous vous proposons cette maison neuve, le modèle Ménilière, une maison plain-pied moderne qui intègre de base un garage et une longue galerie sur la face avant. Avec une surface de 100 m², cette maison dispose de 4 chambres et de 4 pièces, offrant ainsi un espace de vie confortable et fonctionnel pour toute la famille.Véritable « »tout-en-un » » de la maison individuelle, ce modèle est idéal pour votre projet de construction sur-mesure. La Ménilière est disponible avec un toit à 2 pans ou 4 pans, selon vos préférences esthétiques. Le garage intégré et la galerie avant ajoutent une touche pratique et élégante à cette maison.Les options les plus demandées par nos clients, telles que les menuiseries en aluminium et le sous-sol, sont également disponibles pour personnaliser davantage votre future maison. De plus, cette maison neuve est basse consommation et conforme à la réglementation environnementale RE2020, garantissant ainsi des performances énergétiques optimales et un impact environnemental réduit.Le constructeur Babeau-Seguin, reconnu pour offrir le meilleur rapport qualité/prix du marché, vous accompagne dans la réalisation de votre projet immobilier. Avec un prix serré et une personnalisation facile, il n’est pas étonnant que la Ménilière soit dans le top 5 des ventes de Babeau-Seguin.Ne manquez pas cette opportunité unique de devenir propriétaire d’une maison moderne, économe en énergie et parfaitement adaptée à vos besoins. Contactez-nous dès maintenant pour plus d’informations et pour planifier une visite de ce modèle exceptionnel.

Chaudefontaine
TERRAINNous vous proposons un terrain exceptionnel d’une superficie de 1509 m², idéal pour la construction de votre future maison. Situé à Chaudefontaine, dans le département de la Marne, ce terrain non-viabilisé offre des caractéristiques uniques telles qu’un environnement arboré, ensoleillé et calme. Le cadre champêtre et plat de cette parcelle en fait un lieu parfait pour accueillir votre projet de vie. Chaudefontaine, une charmante commune du Grand Est, se distingue par son ambiance paisible et ses nombreux atouts. À proximité, vous pourrez profiter des attractions locales ainsi que de commodités variées qui garantissent un confort au quotidien. Les paysages pittoresques, la sécurité et l’accès à la nature font de cette ville un endroit privilégié pour les familles et les amoureux de la tranquillité. Ne manquez pas cette opportunité unique d’investir dans un terrain avec un potentiel remarquable. Nous vous invitons à considérer ce projet qui pourrait devenir votre havre de paix. À noter qu’en tant que constructeur, nous ne sommes pas mandatés pour réaliser la vente de ce terrain.

Sainte-Menehould
TERRAINDécouvrez ce magnifique terrain de 756 m², idéalement situé dans le charmant lotissement de Sainte-Menehould, dans la Marne. Ce terrain viabilisé et plat offre un cadre de vie paisible et enchanteur, propice à la construction de votre future maison. Avec ses espaces arborés et ensoleillés, cet emplacement se distingue par sa qualité de vie et son ambiance chaleureuse, garantissant un lieu de vie comme vous l’avez toujours imaginé. Sainte-Menehould est une ville dynamique au cœur de la région Grand Est, offrant un équilibre parfait entre tranquillité et commodités modernes. Vous bénéficiez d’un accès facile aux commerces, écoles et différents services essentiels, tout en étant proche de la nature grâce à un environnement arboré et calme. La ville se distingue également par sa riche histoire, ses événements culturels et ses activités de loisirs, faisant de cette localité un choix privilégié pour un cadre de vie agréable. Ne manquez pas cette occasion unique d’investir dans un terrain au potentiel exceptionnel, propice à la concrétisation de votre projet de construction. Contactez-nous pour plus d’informations et envisager cette belle opportunité ! À noter qu’en tant que constructeur, nous ne sommes pas mandatés pour réaliser la vente de ce terrain.

Sainte-Menehould
TERRAIN ET MAISONSur ce terrain, nous vous proposons cette maison neuve Aubetière. Avec une surface de 96 m² et équipée de 4 chambres, cette maison traditionnelle est appréciée pour son excellent rapport qualité/prix. L’Aubetière, fleuron de la gamme traditionnelle Babeau-Seguin, est une maison moderne qui se décline en plusieurs versions pour répondre à vos besoins spécifiques. Vous pouvez choisir entre une toiture à 2 pans ou à 4 pans, et personnaliser votre maison avec des options comme un garage ou un sous-sol.Cette maison de plain-pied est conçue pour être basse consommation et conforme à la RE2020, garantissant ainsi des économies d’énergie et un confort optimal tout au long de l’année. Babeau-Seguin, constructeur reconnu pour offrir le meilleur rapport qualité/prix du marché, vous accompagne dans la réalisation de votre projet de construction sur mesure. Donnez vie à votre projet en optant pour l’Aubetière et profitez d’une maison neuve, performante et personnalisable selon vos envies.

La Neuville-au-Pont
TERRAINIdéalement situé à La Neuville-au-Pont, dans le département de la Marne. Ce terrain offre une occasion rare de concrétiser votre projet de construction de maison, permettant à votre nouvelle demeure de s’épanouir dans un cadre enchanteur, arboré et ensoleillé. La qualité de vie ici est incomparable, avec un environnement calme qui saura séduire les passionnés de la nature à la recherche d’un havre de paix loin de l’agitation urbaine. La Neuville-au-Pont se distingue par son charme et ses attraits locaux. Dans cette petite ville, vous pourrez profiter d’un cadre champêtre propice aux activités en plein air, tout en ayant accès à des commodités essentielles. Les commerces de proximité, les écoles et les infrastructures sportives sont à quelques minutes, rendant la vie quotidienne agréable et pratique. De plus, la proximité des grands axes routiers vous permettra d’accéder facilement aux villes environnantes tout en conservant l’attrait d’un lieu paisible. Ce terrain représente une opportunité unique pour réaliser votre rêve immobilier. N’attendez plus pour envisager l’achat de ce bien d’exception et construire la maison qui vous ressemble au cœur de La Neuville-au-Pont.
L’actualité immobilière à Sainte-Menehould





