Images
Description
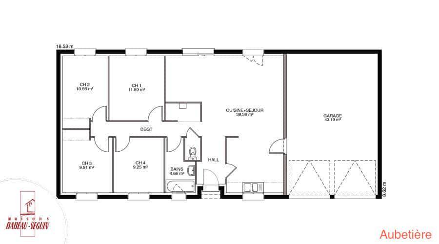
Sur ce terrain, nous vous proposons cette maison neuve Aubetière. Avec une surface de 96 m² et équipée de 4 chambres, cette maison traditionnelle est appréciée pour son excellent rapport qualité/prix.
L'Aubetière, fleuron de la gamme traditionnelle Babeau-Seguin, est une maison moderne qui se décline en plusieurs versions pour répondre à vos besoins spécifiques. Vous pouvez choisir entre une toiture à 2 pans ou à 4 pans, et personnaliser votre maison avec des options comme un garage ou un sous-sol.
Cette maison de plain-pied est conçue pour être basse consommation et conforme à la RE2020, garantissant ainsi des économies d'énergie et un confort optimal tout au long de l'année.
Babeau-Seguin, constructeur reconnu pour offrir le meilleur rapport qualité/prix du marché, vous accompagne dans la réalisation de votre projet de construction sur mesure. Donnez vie à votre projet en optant pour l'Aubetière et profitez d'une maison neuve, performante et personnalisable selon vos envies.
Logement susceptibles de vous intéresser
Nous vous proposons de découvrir aussi cette sélection de logements situés à moins de 10km de Tilloy-et-Bellay et qui seraient susceptibles de vous intéresser.

Courtisols
TERRAINNous vous proposons un terrain exceptionnel d’une superficie de 1139 m², situé dans la charmante commune de Courtisols, dans le département de la Marne, au cœur de la région Grand Est. Ce terrain, idéal pour la construction de votre maison de rêve, se distingue par son environnement calme et arboré, offrant un cadre champêtre propice à la détente. Le Plan Local d’Urbanisme (PLU) non contraignant laisse place à votre imagination pour réaliser le projet qui vous tient à cœur. Idéalement positionné, ce terrain bénéficie de la proximité avec le centre-ville où vous trouverez toutes les commodités nécessaires : commerces, services et écoles. Courtisols offre également un cadre de vie agréable grâce à ses espaces verts et son ambiance paisible. N’hésitez pas à explorer les riches attractions locales qui font la renommée de la région, ainsi que les diverses activités de loisirs à proximité, contribuant à faire de Courtisols un lieu prisé pour s’établir. Ce terrain présente un potentiel remarquable pour tous ceux qui envisagent de bâtir leur future maison dans un cadre paisible et verdoyant. Ne manquez pas cette opportunité unique d’investir dans un bien propre à réaliser vos projets futurs. À noter qu’en tant que constructeur, nous ne sommes pas mandatés pour réaliser la vente de ce terrain.

Courtisols
TERRAIN ET MAISONSur ce terrain, nous vous proposons cette maison neuve : l’Intimity U de la gamme Evasihome, conçue par Babeau-Seguin, constructeur offrant le meilleur rapport qualité/prix du marché.Avec une surface de 95 m², cette maison en U vous séduira par sa conception ingénieuse et ses équipements modernes. Elle dispose de 3 chambres, dont une superbe suite parentale avec dressing et salle d’eau privative, offrant un espace de tranquillité pour les parents. Le grand séjour-cuisine central, baigné de lumière grâce à une verrière, est idéal pour les moments en famille. Les caractéristiques principales de cette maison incluent également des prises USB murales pour plus de praticité et un garage intégré pour votre confort. Les options les plus demandées par nos clients, telles que l’enduit bi-ton et la domotique, sont également disponibles pour personnaliser votre future demeure.Cette maison neuve est basse consommation et conforme à la RE2020, garantissant des économies d’énergie et un respect de l’environnement. Offrez-vous la tranquillité et le confort que vous méritez avec l’Intimity U. Rencontrons-nous en agence pour donner forme à votre rêve dès aujourd’hui !

Somme-Vesle
TERRAINÀ la recherche d’un terrain idéal pour réaliser votre projet de maison ? Ne cherchez plus ! Nous vous proposons un terrain viabilisé de 1113m², parfaitement plat, situé dans un cadre champêtre ensoleillé et arboré à Somme-Vesle. Ce bien offre un environnement calme, propice à la construction de votre futur chez-vous. Fonctionnel et agréable, ce terrain représente une opportunité en or pour les futurs propriétaires souhaitant allier confort et sérénité. Située dans le département de la Marne en région Grand Est, Somme-Vesle est une commune qui séduit par son charme et ses nombreux atouts. À proximité, vous pourrez profiter des commodités locales, telles que des commerces, des écoles et des infrastructures sportives. Son cadre verdoyant en fait un lieu de vie agréable, tout en offrant des infrastructures permettant de belles promenades en pleine nature. De plus, la ville bénéficie d’un accès rapide aux axes routiers, facilitant ainsi vos déplacements vers les grandes agglomérations voisines. Découvrez le potentiel unique de ce terrain et laissez libre cours à vos envies de construction ! Ne manquez pas cette opportunité rare d’acquérir un terrain au potentiel illimité à Somme-Vesle. Contactez-nous dès aujourd’hui pour en savoir plus ! À noter qu’en tant que constructeur, nous ne sommes pas mandatés pour réaliser la vente de ce terrain.

Somme-Vesle
TERRAIN ET MAISONSur ce terrain, nous vous proposons cette maison neuve Perrière Sud, un modèle de plain-pied au design typique du sud, alliant tradition et modernité. Avec une surface de 97 m², cette maison est idéale pour une famille grâce à ses 3 chambres et ses 4 pièces. La Perrière Sud se distingue par ses deux hauteurs de toits, qui cassent la monotonie de la façade et apportent une touche d’originalité. Vous avez le choix entre une toiture à 2 pans ou à 4 pans, selon vos préférences esthétiques. De plus, cette maison peut être agrémentée d’un garage ou d’un sous-sol en option, pour répondre à vos besoins de rangement et de stationnement.Les tuiles Canal ajoutent une note de charme et d’authenticité à cette maison moderne. Pour encore plus de confort et de personnalisation, les options les plus demandées par nos clients sont disponibles : un enduit bi-ton pour une façade élégante et des menuiseries en aluminium pour une meilleure isolation et un design contemporain.Cette maison neuve est basse consommation et conforme à la réglementation environnementale RE2020, garantissant des performances énergétiques optimales et un impact environnemental réduit. Le constructeur Babeau-Seguin, reconnu pour offrir le meilleur rapport qualité/prix du marché, vous propose cette maison familiale par excellence, qui saura vous séduire par son design et ses nombreuses possibilités de personnalisation. N’attendez plus pour faire de la Perrière Sud votre future maison !

Courtisols
TERRAINDécouvrez ce magnifique terrain non viabilisé de 1196 à 10 minutes de Courtisols, dans le département de la Marne (Grand Est). Ce bien rare est idéal pour un projet de construction de maison, offrant une surface généreusement proportionnée pour réaliser vos rêves d’habitat. Situé dans un quartier privilégié, ce terrain se distingue par sa tranquillité, son ensoleillement et son cadre champêtre. Ne laissez pas passer cette opportunité dans un secteur recherché, où qualité de vie et sécurité se conjuguent parfaitement. Courtisols, à proximité de la ville de Châlons-en-Champagne, vous séduira par son ambiance paisible et sa proximité avec toutes les commodités nécessaires. Les attractions locales telles que les parcs, les écoles et les petits commerces contribuent à une qualité de vie exceptionnelle. Profitez de l’accès aisé aux routes principales et des activités de plein air à proximité. Ce cadre verdoyant et arboré est propice à l’épanouissement et à la détente, tout en étant à proximité des services et des animations urbaines. Ce terrain représente une opportunité unique pour les investisseurs et futurs propriétaires souhaitant bâtir la maison de leurs rêves. N’hésitez pas à nous contacter pour en savoir plus et saisir cette occasion exceptionnelle. À noter qu’en tant que constructeur, nous ne sommes pas mandatés pour réaliser la vente de ce terrain.

Courtisols
TERRAIN ET MAISONSur ce terrain, nous vous proposons cette maison neuve Perrière Sud, un modèle de plain-pied au design typique du sud, alliant tradition et modernité. Avec une surface de 97 m², cette maison est idéale pour une famille grâce à ses 3 chambres et ses 4 pièces. La Perrière Sud se distingue par ses deux hauteurs de toits, qui cassent la monotonie de la façade et apportent une touche d’originalité. Vous avez le choix entre une toiture à 2 pans ou à 4 pans, selon vos préférences esthétiques. De plus, cette maison peut être agrémentée d’un garage ou d’un sous-sol en option, pour répondre à vos besoins de rangement et de stationnement.Les tuiles Canal ajoutent une note de charme et d’authenticité à cette maison moderne. Pour encore plus de confort et de personnalisation, les options les plus demandées par nos clients sont disponibles : un enduit bi-ton pour une façade élégante et des menuiseries en aluminium pour une meilleure isolation et un design contemporain.Cette maison neuve est basse consommation et conforme à la réglementation environnementale RE2020, garantissant des performances énergétiques optimales et un impact environnemental réduit. Le constructeur Babeau-Seguin, reconnu pour offrir le meilleur rapport qualité/prix du marché, vous propose cette maison familiale par excellence, qui saura vous séduire par son design et ses nombreuses possibilités de personnalisation. N’attendez plus pour faire de la Perrière Sud votre future maison !

Somme-Bionne
TERRAINNous vous présentons une opportunité d’investissement exceptionnelle avec ce terrain de 770 m² situé dans la charmante commune de Somme-Bionne, au cœur de la Marne dans la région Grand Est. Non viabilisé, ce terrain offre un cadre paisible et arboré, idéal pour donner vie à votre projet de construction de maison. Son environnement calme et sécurisant en fait un emplacement rêvé pour bâtir le foyer de vos rêves, tout en bénéficiant du charme d’un cadre champêtre. Somme-Bionne se distingue par son ambiance conviviale et ses commodités de proximité. La ville est entourée de paysages pittoresques, parfaits pour les amateurs de nature et de loisirs en plein air. Vous trouverez à proximité diverses attractions locales, ainsi que des services essentiels tels que des commerces, écoles et transports. Ce cadre de vie allie tranquillité et praticité, mettant en avant le meilleur de la vie rurale tout en restant accessible aux grandes villes. Ce terrain constitue une occasion unique d’investir dans un environnement séduisant et prometteur. Ne passez pas à côté de cette opportunité d’achat unique, qui pourrait devenir le lieu où vos rêves prennent forme. Contactez-nous dès aujourd’hui pour explorer le potentiel de ce terrain. À noter qu’en tant que constructeur, nous ne sommes pas mandatés pour réaliser la vente de ce terrain.

Somme-Bionne
TERRAIN ET MAISONSur ce terrain, nous vous proposons cette maison neuve : la Focus Family. Conçue par Babeau-Seguin, constructeur offrant le meilleur rapport qualité/prix du marché, cette maison familiale à tout petit prix est idéale pour ceux qui souhaitent allier confort et économies.Avec une surface habitable de 89 m², la Focus Family vous offre un espace généreux et bien agencé. Elle comprend 4 chambres, parfaites pour accueillir toute votre famille, ainsi qu’un grand séjour traversant avec cuisine ouverte, pour un total de 4 pièces. Vous apprécierez également le garage intégré, pratique pour stationner votre véhicule ou pour du rangement supplémentaire.L’enduit bi-ton de la façade apporte une touche moderne et élégante à cette maison. De plus, les options les plus demandées par nos clients, comme les menuiseries en aluminium, sont disponibles pour personnaliser votre future habitation selon vos goûts.La Focus Family est une maison basse consommation, conforme à la réglementation environnementale RE2020. Elle est équipée des dernières innovations technologiques pour garantir une isolation thermique et phonique optimale, tout en étant économique et respectueuse de l’environnement.Ne faites aucune concession sur la qualité avec cette maison low cost de luxe. Babeau-Seguin met tout son savoir-faire et son professionnalisme dans la construction de la gamme Focus, en utilisant les meilleurs matériaux et une charpente traditionnelle.N’attendez plus pour réaliser votre projet de maison familiale à petit prix avec la Focus Family, une maison spacieuse, écolo et accessible à tous les budgets.

Courtisols
TERRAINDécouvrez un terrain exceptionnel de 689 m² situé à 10 minutes de Courtisols, au cœur de la Marne, dans la région Grand Est. Ce terrain plat et non viabilisé est idéal pour concrétiser votre projet de construction de maison dans un cadre champêtre, arboré et ensoleillé. Profitez d’un environnement calme et serein, propice à la création d’un véritable havre de paix. Grâce à un Plan Local d’Urbanisme non contraignant, laissez libre cours à votre imagination pour bâtir la maison de vos rêves ! Idéalement situé à Courtisols, ce terrain bénéficie d’un accès facile aux commodités locales, tout en étant proche des attractions touristiques de la région. Vous apprécierez la tranquillité de ce charmant village tout en jouissant de la proximité avec Reims, célèbre pour sa cathédrale et son histoire viticole. Le département de la Marne offre également une multitude d’activités de plein air et des paysages pittoresques à explorer. Ne manquez pas cette opportunité unique d’acquérir un terrain avec un potentiel exceptionnel dans un cadre de vie agréable ! Ne laissez pas passer cette chance de construire votre future maison dans un endroit enchanteur. Contactez-nous dès maintenant pour plus d’informations sur ce terrain à vendre ! À noter qu’en tant que constructeur, nous ne sommes pas mandatés pour réaliser la vente de ce terrain.
L’actualité immobilière à Tilloy-et-Bellay





