Maison à construire à Inzinzac-Lochrist (56650)
Images
Description
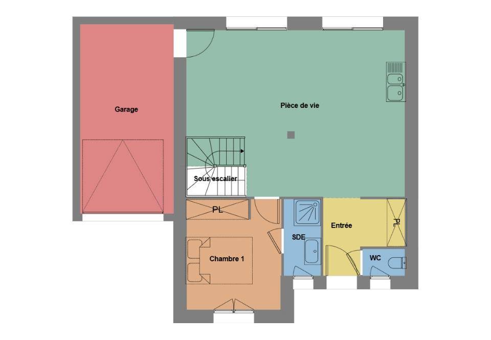
VENTE d'une maison de 5 pièces (110 m²) à Inzinzac-Lochrist
PROCHE DE LORIENT - MAISON 5 PIÈCES NEUVE
À vendre : localisée à 22 km de la côte atlantique et à deux pas de Lorient, nous vous présentons cette maison de 5 pièces de 110 m² à Inzinzac-Lochrist (56650).
Il s'agit d'une maison de 2 niveaux. Son intérieur dispose de quatre chambres, d'une cuisine et de deux salles de bains.
Le terrain de la propriété s'étend sur 309 m².
Elle est à vendre pour la somme de 321 900 €.
Contactez Anne-Sophie LAPART (tél : (Numéro supprimé)) pour toute question sur la maison ou sur les modalités de vente. Concrétisez vos projets immobiliers avec Maisons de l'Avenir Lorient.
Logement susceptibles de vous intéresser
Nous vous proposons de découvrir aussi cette sélection de logements situés à moins de 10km de Inzinzac-Lochrist et qui seraient susceptibles de vous intéresser.
Lanvaudan
TERRAINVENTE d’un terrain de 359 m² à LanvaudanQUARTIER RECHERCHÉ – PROCHE DE LORIENTÀ Lanvaudan (56240) à 28 km de la côte atlantique et à 18 km de Lorient, donnez vie à votre résidence principale ou secondaire sur ce terrain de 359 m². Dans un secteur recherché, le terrain construit dans un quartier attractif est proche des commerces et des écoles. Il y a l’École Primaire Publique les Chaumières à moins de 10 minutes à pied. Il y a un accès à la nationale N24 à 10 km. On trouve un tennis à proximité.Il est proposé à l’achat pour 26 000 €. Prenez contact avec notre agence (COLLOCH Christophe : (Numéro supprimé)) pour toute information sur ce terrain.
Lanvaudan
TERRAIN ET MAISONMaison F4 (70 m²) à vendre à LanvaudanQUARTIER RECHERCHÉ – MAISON 4 PIÈCES NEUVEÀ 28 km de la côte atlantique et à quelques kilomètres de Lorient, notre agence Maisons de l’Avenir Lorient est heureuse de vous présenter en vente, dans un quartier prisé de Lanvaudan (56240), cette maison de 4 pièces de plain-pied de 70 m².Son intérieur compte trois chambres, une cuisine et une salle de bains. Cette maison est neuve.Le terrain de la propriété s’étend sur 359 m².La propriété se situe dans un secteur attractif. L’École Primaire Publique les Chaumières est implantée à moins de 10 minutes à pied. La nationale N24 est accessible à 10 km. On trouve un tennis à proximité.Elle est proposée à l’achat pour 199 000 €.N’hésitez pas à prendre contact avec Christophe COLLOCH (tél : (Numéro supprimé)) pour tout renseignement sur la maison. Maisons de l’Avenir Lorient vous accompagne à toutes les étapes de l’achat et dans tous vos projets immobiliers.
Lanvaudan
TERRAINLanvaudan : terrain de 401 m² à vendreEMPLACEMENT PRIVILÉGIÉ – PROCHE DE LORIENTÀ vendre à 28 km de l’océan Atlantique et à deux pas de Lorient à Lanvaudan (56240), terrain de 401 m². Réalisez-y votre résidence principale ou secondaire. Dans un quartier prisé, ce terrain bénéficiant d’un emplacement d’exception est proche des commerces et des écoles. L’École Primaire Publique les Chaumières est implantée à moins de 10 minutes à pied. La nationale N24 est accessible à 10 km. Il y a un tennis à proximité du bien.Il est à vendre pour la somme de 35 500 €. N’hésitez pas à prendre contact avec Christophe COLLOCH ((Numéro supprimé)) pour obtenir de plus amples renseignements sur ce terrain.
Lanvaudan
TERRAIN ET MAISONVENTE : maison F4 (67 m²) à LanvaudanEMPLACEMENT PRIVILÉGIÉ – MAISON 4 PIÈCES NEUVEÀ 28 km de la côte atlantique et à quelques kilomètres de Lorient, à vendre bénéficiant d’un emplacement d’exception dans Lanvaudan (56240), laissez vous charmer par cette maison de 4 pièces de 67 m². Elle inclut trois chambres, une cuisine et une salle de bains.Le terrain de la propriété s’étend sur 401 m².C’est une maison de 2 niveaux. Elle est neuve.Cette maison se situe dans un quartier attractif. L’École Primaire Publique les Chaumières est implantée à moins de 10 minutes à pied. On trouve un accès à la nationale N24 à 10 km. Il y a un tennis à quelques minutes à peine.Son prix de vente est de 176 000 €.Contactez Christophe COLLOCH (tél : (Numéro supprimé)) pour obtenir de plus amples informations sur la maison, sur les modalités de vente ou sur les démarches à suivre.
Lanvaudan
TERRAIN ET MAISONVENTE d’une maison F5 (102 m²) à LanvaudanEMPLACEMENT PRIVILÉGIÉ – MAISON 5 PIÈCES NEUVEÀ 28 km de l’océan Atlantique et à deux pas de Lorient, en vente bénéficiant d’un emplacement d’exception dans Lanvaudan (56240), nous vous proposons cette maison de 5 pièces de 102 m².Il s’agit d’une maison de 2 niveaux. Son intérieur compte quatre chambres, une cuisine et deux salles de bains. Cette maison est neuve.Le terrain de la propriété est de 401 m².Le bien se situe dans un quartier attractif. On trouve l’École Primaire Publique les Chaumières à moins de 10 minutes à pied. La nationale N24 est accessible à 10 km. Il y a un tennis dans les environs.Il est à vendre pour la somme de 243 000 €.Prenez contact avec notre agence (COLLOCH Christophe : (Numéro supprimé)) pour obtenir de plus amples renseignements sur la maison. Maisons de l’Avenir Lorient vous accompagne dans toutes vos démarches et dans tous vos projets immobiliers.
Lanvaudan
TERRAIN ET MAISONVENTE d’une maison T4 (70 m²) à LanvaudanEMPLACEMENT PRIVILÉGIÉ – MAISON 4 PIÈCES NEUVEEn vente à 28 km de l’océan Atlantique et à 18 km de Lorient, nous sommes heureux de vous présenter cette maison de 4 pièces de plain-pied de 70 m², bénéficiant d’un emplacement privilégié dans Lanvaudan (56240).Elle offre trois chambres, une cuisine et une salle de bains. La maison est neuve.Le terrain du bien est de 401 m².Ce bien se situe dans un quartier convoité. L’École Primaire Publique les Chaumières se trouve à moins de 10 minutes à pied. Il y a un accès à la nationale N24 à 10 km. Il y a un tennis à proximité.Son prix de vente est de 209 000 €.Prenez contact avec notre agence (Christophe COLLOCH : (Numéro supprimé)) pour plus de renseignements sur la maison. Maisons de l’Avenir Lorient vous accompagne à toutes les étapes de votre projet et dans tous vos projets immobiliers.
Lanvaudan
TERRAIN ET MAISONMaison T4 (75 m²) en vente à LanvaudanEMPLACEMENT PRIVILÉGIÉ – MAISON 4 PIÈCES NEUVEÀ 28 km de la côte atlantique et à deux pas de Lorient, Maisons de l’Avenir Lorient vous propose cette maison de 4 pièces de 75 m² bénéficiant d’un emplacement privilégié dans Lanvaudan (56240).Cette maison compte 2 niveaux. Son intérieur se divise en trois chambres, une cuisine et une salle de bains. Cette maison est neuve.Le terrain de la propriété est de 401 m².La maison se trouve dans un secteur convoité. L’École Primaire Publique les Chaumières est implantée à moins de 10 minutes à pied. La nationale N24 est accessible à 10 km. On trouve un tennis dans les environs.Elle est proposée à l’achat pour 195 000 €.Contactez notre agence (Christophe COLLOCH : (Numéro supprimé)) pour plus de renseignements sur la maison. Maisons de l’Avenir Lorient vous accompagne à toutes les étapes de votre projet et dans toutes vos démarches.
Lanvaudan
TERRAIN ET MAISONVENTE : maison de 5 pièces (87 m²) à LanvaudanEMPLACEMENT PRIVILÉGIÉ – MAISON 5 PIÈCES NEUVEÀ vendre : à 28 km de la côte atlantique et à deux pas de Lorient, nous vous proposons, bénéficiant d’un emplacement d’exception dans Lanvaudan (56240), cette maison de 5 pièces de 87 m². Son intérieur dispose de quatre chambres, d’une cuisine et d’une salle de bains.Le terrain de la propriété s’étend sur 401 m².Cette maison compte 2 niveaux. Elle est neuve.Cette maison se trouve dans un quartier attractif. Il y a l’École Primaire Publique les Chaumières à moins de 10 minutes à pied. La nationale N24 est accessible à 10 km. On trouve un tennis à proximité.Elle est proposée à l’achat pour 249 000 €.Prenez contact avec Christophe COLLOCH ((Numéro supprimé)) pour toute information sur la maison. Maisons de l’Avenir Lorient vous accompagne dans toutes vos démarches et dans tous vos projets immobiliers.
Lanvaudan
TERRAIN ET MAISONVENTE : maison T6 (118 m²) à LanvaudanEMPLACEMENT PRIVILÉGIÉ – MAISON 6 PIÈCES NEUVEEn vente : située à 28 km de la côte atlantique et à deux pas de Lorient, venez découvrir, bénéficiant d’un emplacement d’exception dans Lanvaudan (56240), cette maison de 6 pièces de 118 m² et de 401 m² de terrain.Il s’agit d’une maison de 2 niveaux. Son intérieur dispose de cinq chambres, d’une cuisine et de deux salles de bains. La maison est neuve.La maison se situe dans un quartier prisé. L’École Primaire Publique les Chaumières se trouve à moins de 10 minutes à pied. La nationale N24 est accessible à 10 km. Il y a un tennis à proximité.Son prix de vente est de 259 000 €.Prenez contact avec Christophe COLLOCH ((Numéro supprimé)) pour toute question sur la maison.
L’actualité immobilière à Inzinzac-Lochrist
27/11/2023
02/11/2023
30/10/2023
20/10/2023
16/10/2023
16/10/2023