Maison à construire à Lanvaudan (56240)
Images
Description
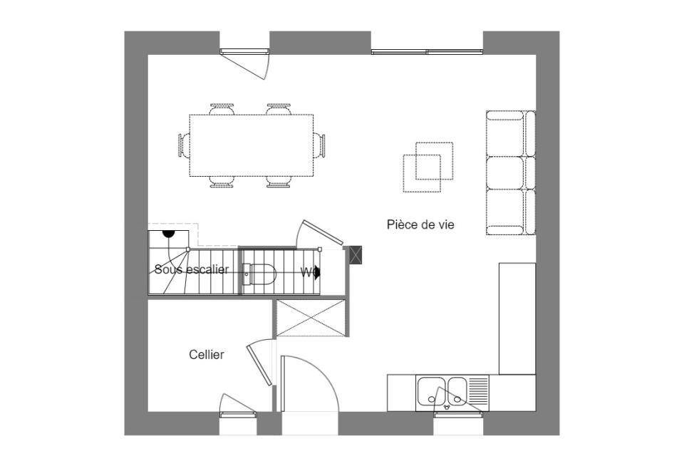
VENTE : maison F4 (67 m²) à Lanvaudan
EMPLACEMENT PRIVILÉGIÉ - MAISON 4 PIÈCES NEUVE
À 28 km de la côte atlantique et à quelques kilomètres de Lorient, à vendre bénéficiant d'un emplacement d'exception dans Lanvaudan (56240), laissez vous charmer par cette maison de 4 pièces de 67 m². Elle inclut trois chambres, une cuisine et une salle de bains.
Le terrain de la propriété s'étend sur 401 m².
C'est une maison de 2 niveaux. Elle est neuve.
Cette maison se situe dans un quartier attractif. L'École Primaire Publique les Chaumières est implantée à moins de 10 minutes à pied. On trouve un accès à la nationale N24 à 10 km. Il y a un tennis à quelques minutes à peine.
Son prix de vente est de 176 000 €.
Contactez Christophe COLLOCH (tél : (Numéro supprimé)) pour obtenir de plus amples informations sur la maison, sur les modalités de vente ou sur les démarches à suivre.
Logement susceptibles de vous intéresser
Nous vous proposons de découvrir aussi cette sélection de logements situés à moins de 10km de Lanvaudan et qui seraient susceptibles de vous intéresser.
Plouay
TERRAINPlouay : terrain de 251 m² en venteEMPLACEMENT PRIVILÉGIÉ – PROCHE DE LORIENTTerrain de 251 m² à vendre à 26 km de l’océan Atlantique et à quelques kilomètres de Lorient. Ce terrain se situe bénéficiant d’un emplacement privilégié dans Plouay (56240). Dans un quartier convoité, le terrain est proche des écoles et des commerces. Cinq établissements scolaires sont implantés à moins de 10 minutes à pied. Les nationales N165 et N24 sont accessibles à moins de 14 km. On trouve un tennis, des commerces, des boulangeries, trois supermarchés, un bureau de poste et deux boucheries-charcuteries à quelques minutes du bien.Ce terrain est à vendre pour la somme de 50 000 €. Contactez Christophe COLLOCH (tél : (Numéro supprimé)) pour obtenir de plus amples renseignements sur le terrain ou sur les démarches à suivre. Maisons de l’Avenir Lorient vous accompagne dans tous vos projets immobiliers et à toutes les étapes de votre projet.
Plouay
TERRAIN ET MAISONMaison T3 (55 m²) à vendre à PlouayEMPLACEMENT PRIVILÉGIÉ – MAISON 3 PIÈCES NEUVEÀ 26 km de l’océan Atlantique et à deux pas de Lorient, ayez le coup de coeur pour en vente, bénéficiant d’un emplacement d’exception dans Plouay (56240), cette maison de 3 pièces de plain-pied de 55 m² et de 251 m² de terrain. Elle comporte deux chambres, une cuisine et une salle de bains.La maison est neuve.Cette maison est située dans un secteur recherché. On trouve cinq établissements scolaires à moins de 10 minutes à pied. Les nationales N165 et N24 sont accessibles à moins de 14 km. Il y a un tennis, des commerces, des boulangeries, trois supermarchés, trois épiceries et un bureau de poste à proximité.Elle est à vendre pour la somme de 189 000 €.Contactez notre agence (COLLOCH Christophe : (Numéro supprimé)) pour obtenir de plus amples renseignements sur le bien.
Plouay
TERRAIN ET MAISONVENTE : maison F4 (62 m²) à PlouayEMPLACEMENT PRIVILÉGIÉ – MAISON 4 PIÈCES NEUVEEn vente à 26 km de la côte atlantique et à quelques kilomètres de Lorient, bénéficiant d’un emplacement privilégié dans Plouay (56240), Maisons de l’Avenir Lorient vous présente cette maison de 4 pièces de 62 m² et de 251 m² de terrain.Cette maison possède 2 niveaux. Elle comporte trois chambres, une cuisine et une salle de bains. La maison est neuve.La maison se situe dans un quartier recherché. Cinq établissements scolaires sont implantés à moins de 10 minutes à pied. Les nationales N165 et N24 sont accessibles à moins de 14 km. On trouve un tennis, des commerces, des boulangeries, trois supermarchés, un bureau de poste et trois épiceries à proximité.Son prix de vente est de 199 000 €.Contactez notre agence (Christophe COLLOCH : (Numéro supprimé)) pour toute question sur la maison, sur les modalités de vente ou sur les démarches à suivre. Maisons de l’Avenir Lorient vous accompagne dans tous vos projets immobiliers et dans toutes vos démarches.
Plouay
TERRAIN ET MAISONPlouay : maison T4 (89 m²) à vendreEMPLACEMENT PRIVILÉGIÉ – MAISON 4 PIÈCES NEUVEÀ vendre : à 26 km de l’océan Atlantique et à 20 km de Lorient, votre agence Maisons de l’Avenir Lorient est heureuse de vous proposer, bénéficiant d’un emplacement privilégié dans Plouay (56240), cette maison de 4 pièces de 89 m² et de 251 m² de terrain. Son intérieur offre trois chambres, une cuisine et deux salles de bains.Il s’agit d’une maison de 2 niveaux. Elle est neuve.La maison se situe dans un quartier prisé. Cinq établissements scolaires se trouvent à moins de 10 minutes à pied. Les nationales N165 et N24 sont accessibles à moins de 14 km. Il y a un tennis, des commerces, des boulangeries, trois supermarchés, trois épiceries et un bureau de poste dans les environs.Elle est proposée à l’achat pour 290 000 €.Contactez Christophe COLLOCH (tél : (Numéro supprimé)) pour toute question sur la maison. Maisons de l’Avenir Lorient vous accompagne dans tous vos projets immobiliers et dans toutes vos démarches.
Plouay
TERRAIN ET MAISONVENTE : maison T4 (100 m²) à PlouayEMPLACEMENT PRIVILÉGIÉ – MAISON 4 PIÈCES NEUVEEn vente : à 26 km de l’océan Atlantique et à quelques kilomètres de Lorient, bénéficiant d’un emplacement privilégié dans Plouay (56240), notre agence Maisons de l’Avenir Lorient est ravie de vous proposer cette maison de 4 pièces de 100 m².Il s’agit d’une maison de 2 niveaux. Son intérieur comporte quatre chambres, une cuisine et deux salles de bains. Cette maison est neuve.Le terrain du bien est de 251 m².La maison se trouve dans un quartier convoité. Il y a cinq établissements scolaires à moins de 10 minutes à pied. Les nationales N165 et N24 sont accessibles à moins de 14 km. On trouve un tennis, des commerces, des boulangeries, trois supermarchés, un bureau de poste et trois épiceries dans les environs.Son prix de vente est de 310 000 €.Contactez notre agence (COLLOCH Christophe : (Numéro supprimé)) pour toute question sur la maison.
Plouay
TERRAINPlouay : terrain de 339 m² en venteIDÉALEMENT SITUÉ – PROCHE DE LORIENTÀ Plouay (56240) à 26 km de l’océan Atlantique et à deux pas de Lorient, imaginez la maison de vos rêves sur ce terrain de 339 m². Dans un secteur recherché, ce terrain idéalement situé est proche des commerces et des écoles. Cinq établissements scolaires sont implantés à moins de 10 minutes à pied. Les nationales N165 et N24 sont accessibles à moins de 14 km. Il y a un tennis, des commerces, des boulangeries, trois supermarchés, un bureau de poste et trois épiceries dans les environs.Il est proposé à l’achat pour 69 900 €. N’hésitez pas à prendre contact avec notre agence (COLLOCH Christophe : (Numéro supprimé)) pour toute information sur ce terrain ou sur les démarches à suivre.
Plouay
TERRAIN ET MAISONVENTE d’une maison de 4 pièces (70 m²) à PlouayIDÉALEMENT SITUÉE – MAISON 4 PIÈCES NEUVEÀ 26 km de l’océan Atlantique et à quelques kilomètres de Lorient, laissez vous charmer par en vente, idéalement située dans Plouay (56240), cette maison de 4 pièces de plain-pied de 70 m². Son intérieur se divise en trois chambres, une cuisine et une salle de bains.Le terrain de la propriété est de 339 m².Cette maison est neuve.La maison est située dans un secteur recherché. On trouve cinq établissements scolaires à moins de 10 minutes à pied. Les nationales N165 et N24 sont accessibles à moins de 14 km. Il y a un tennis, des commerces, des boulangeries, trois supermarchés, un bureau de poste et deux boucheries-charcuteries à proximité.Elle est proposée à l’achat pour 240 000 €.Contactez notre agence (COLLOCH Christophe : (Numéro supprimé)) pour obtenir de plus amples renseignements sur la maison et sur les modalités de vente. Faites de vos projets immobiliers une réalité avec Maisons de l’Avenir Lorient.
Plouay
TERRAIN ET MAISONMaison de 4 pièces (73 m²) à vendre à PlouayIDÉALEMENT SITUÉE – MAISON 4 PIÈCES NEUVEÀ vendre à 26 km de l’océan Atlantique et à quelques kilomètres de Lorient, idéalement située dans Plouay (56240), nous vous présentons cette maison de 4 pièces de 73 m² et de 339 m² de terrain. Son intérieur offre trois chambres, une cuisine et une salle de bains.C’est une maison de 2 niveaux. Elle est neuve.Cette maison se situe dans un quartier prisé. Cinq établissements scolaires se trouvent à moins de 10 minutes à pied. Les nationales N165 et N24 sont accessibles à moins de 14 km. Il y a un tennis, des commerces, des boulangeries, trois supermarchés, un bureau de poste et deux boucheries-charcuteries à quelques minutes de la maison.Son prix de vente est de 250 000 €.N’hésitez pas à prendre contact avec notre agence (Christophe COLLOCH : (Numéro supprimé)) pour plus de renseignements sur la maison, sur les démarches à suivre ou sur les modalités de vente. Maisons de l’Avenir Lorient est là pour vous accompagner dans tous vos projets immobiliers.
Plouay
TERRAIN ET MAISONPlouay : maison de 5 pièces (89 m²) en venteIDÉALEMENT SITUÉE – MAISON 5 PIÈCES NEUVEEn vente : située à 26 km de la côte atlantique et à deux pas de Lorient, votre agence Maisons de l’Avenir Lorient est heureuse de vous proposer cette maison de 5 pièces de 89 m² et de 339 m² de terrain idéalement située dans Plouay (56240).Il s’agit d’une maison de 2 niveaux. Elle offre quatre chambres, une cuisine et deux salles de bains. La maison est neuve.La maison est située dans un quartier recherché. Cinq établissements scolaires sont implantés à moins de 10 minutes à pied. Les nationales N165 et N24 sont accessibles à moins de 14 km. Il y a un tennis, des commerces, des boulangeries, trois supermarchés, un bureau de poste et trois épiceries dans les environs.Elle est proposée à l’achat pour 280 000 €.N’hésitez pas à prendre contact avec notre agence (Christophe COLLOCH : (Numéro supprimé)) pour toute question sur la maison ou sur les modalités de vente. Maisons de l’Avenir Lorient est là pour vous accompagner à toutes les étapes de l’achat.
L’actualité immobilière à Lanvaudan
27/11/2023
02/11/2023
30/10/2023
20/10/2023
16/10/2023
16/10/2023