Maison à construire à Plouay (56240)
Images
Description
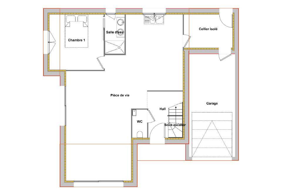
VENTE : maison T4 (100 m²) à Plouay
EMPLACEMENT PRIVILÉGIÉ - MAISON 4 PIÈCES NEUVE
En vente : à 26 km de l'océan Atlantique et à quelques kilomètres de Lorient, bénéficiant d'un emplacement privilégié dans Plouay (56240), notre agence Maisons de l'Avenir Lorient est ravie de vous proposer cette maison de 4 pièces de 100 m².
Il s'agit d'une maison de 2 niveaux. Son intérieur comporte quatre chambres, une cuisine et deux salles de bains. Cette maison est neuve.
Le terrain du bien est de 251 m².
La maison se trouve dans un quartier convoité. Il y a cinq établissements scolaires à moins de 10 minutes à pied. Les nationales N165 et N24 sont accessibles à moins de 14 km. On trouve un tennis, des commerces, des boulangeries, trois supermarchés, un bureau de poste et trois épiceries dans les environs.
Son prix de vente est de 310 000 €.
Contactez notre agence (COLLOCH Christophe : (Numéro supprimé)) pour toute question sur la maison.
Logement susceptibles de vous intéresser
Nous vous proposons de découvrir aussi cette sélection de logements situés à moins de 10km de Plouay et qui seraient susceptibles de vous intéresser.
Berné
TERRAINTerrain de 560 m² en vente à BernéEMPLACEMENT PRIVILÉGIÉ – PROCHE DE LORIENTÀ Berné (56240) à 29 km de la côte atlantique et à quelques kilomètres de Lorient, venez découvrir ce terrain de 560 m². Dans un quartier convoité, le terrain bénéficiant d’un emplacement d’exception est proche des commerces et des écoles. L’École Primaire Publique Georges Brassens et l’École Primaire Privée Sainte Hélène sont implantées à moins de 10 minutes à pied. La nationale N165 est accessible à 19 km. Il y a une boulangerie, un bureau de poste et une boucherie-charcuterie à quelques minutes.Son prix de vente est de 40 000 €. N’hésitez pas à prendre contact avec Christophe COLLOCH (tél : (Numéro supprimé)) pour toute information sur ce terrain.
Berné
TERRAIN ET MAISONVENTE d’une maison F3 (55 m²) à BernéEMPLACEMENT PRIVILÉGIÉ – MAISON 3 PIÈCES NEUVEEn vente : à 29 km de l’océan Atlantique et à quelques kilomètres de Lorient, Maisons de l’Avenir Lorient vous propose cette maison de 3 pièces de plain-pied de 55 m², bénéficiant d’un emplacement privilégié dans Berné (56240). Conçue de plain-pied, elle comporte deux chambres, une cuisine et une salle de bains.Le terrain de cette maison est de 560 m².La maison est neuve.Cette maison est située dans un secteur recherché. On trouve l’École Primaire Publique Georges Brassens et l’École Primaire Privée Sainte Hélène à moins de 10 minutes à pied. La nationale N165 est accessible à 19 km. Il y a une boulangerie, un bureau de poste et une boucherie-charcuterie à proximité.Son prix de vente est de 175 000 €.Contactez Christophe COLLOCH ((Numéro supprimé)) pour toute information sur la maison, sur les démarches à suivre ou sur les modalités de vente.
Berné
TERRAIN ET MAISONVENTE : maison T4 (62 m²) à BernéEMPLACEMENT PRIVILÉGIÉ – MAISON 4 PIÈCES NEUVEEn vente : à 29 km de la côte atlantique et à deux pas de Lorient, bénéficiant d’un emplacement privilégié dans Berné (56240), Maisons de l’Avenir Lorient vous présente cette maison de 4 pièces de 62 m².Cette maison comporte 2 niveaux. Elle se divise en trois chambres, une cuisine et une salle de bains. Cette maison est neuve.Le terrain du bien s’étend sur 560 m².La maison se trouve dans un quartier prisé. L’École Primaire Publique Georges Brassens et l’École Primaire Privée Sainte Hélène sont implantées à moins de 10 minutes à pied. La nationale N165 est accessible à 19 km. On trouve une boulangerie, une boucherie-charcuterie et un bureau de poste à proximité du logement.Elle est proposée à l’achat pour 190 000 €.Prenez contact avec Christophe COLLOCH ((Numéro supprimé)) pour toute question sur la maison ou sur les modalités de vente.
Berné
TERRAIN ET MAISONMaison F5 (87 m²) en vente à BernéEMPLACEMENT PRIVILÉGIÉ – MAISON 5 PIÈCES NEUVEÀ vendre à 29 km de l’océan Atlantique et à quelques kilomètres de Lorient, Maisons de l’Avenir Lorient vous propose cette maison de 5 pièces de 87 m² et de 560 m² de terrain bénéficiant d’un emplacement privilégié dans Berné (56240). Elle dispose de quatre chambres, d’une cuisine et d’une salle de bains.Il s’agit d’une maison de 2 niveaux. Elle est neuve.La maison se trouve dans un quartier prisé. L’École Primaire Publique Georges Brassens et l’École Primaire Privée Sainte Hélène sont implantées à moins de 10 minutes à pied. La nationale N165 est accessible à 19 km. On trouve une boulangerie, un bureau de poste et une boucherie-charcuterie dans les environs.Elle est proposée à l’achat pour 255 000 €.N’hésitez pas à prendre contact avec Christophe COLLOCH ((Numéro supprimé)) pour plus de renseignements sur la maison. Maisons de l’Avenir Lorient est là pour vous accompagner à toutes les étapes de l’achat.
Berné
TERRAIN ET MAISONVENTE d’une maison de 4 pièces (95 m²) à BernéEMPLACEMENT PRIVILÉGIÉ – MAISON 4 PIÈCES NEUVEEn vente à 29 km de l’océan Atlantique et à 26 km de Lorient, bénéficiant d’un emplacement d’exception dans Berné (56240), notre agence Maisons de l’Avenir Lorient est ravie de vous proposer cette maison de 4 pièces de 95 m² et de 560 m² de terrain. Son intérieur offre trois chambres, une cuisine et deux salles de bains.Cette maison possède 2 niveaux. Elle est neuve.La maison est située dans un secteur prisé. L’École Primaire Publique Georges Brassens et l’École Primaire Privée Sainte Hélène sont implantées à moins de 10 minutes à pied. La nationale N165 est accessible à 19 km. On trouve une boulangerie, un bureau de poste et une boucherie-charcuterie à proximité de la maison.Elle est proposée à l’achat pour 290 000 €.Prenez contact avec Christophe COLLOCH ((Numéro supprimé)) pour plus de renseignements sur la maison. Maisons de l’Avenir Lorient vous accompagne dans tous vos projets immobiliers et à toutes les étapes de l’achat.
Berné
TERRAINVENTE d’un terrain de 614 m² à BernéEMPLACEMENT PRIVILÉGIÉ – PROCHE DE LORIENTÀ Berné (56240) à 29 km de la côte atlantique et à deux pas de Lorient, projetez la maison de vos rêves sur ce terrain de 614 m². Dans un quartier convoité, ce terrain bénéficiant d’un emplacement d’exception est proche des commerces et des écoles. L’École Primaire Publique Georges Brassens et l’École Primaire Privée Sainte Hélène sont implantées à moins de 10 minutes à pied. On trouve un accès à la nationale N165 à 19 km. Il y a une boulangerie, une boucherie-charcuterie et un bureau de poste dans les environs.Son prix de vente est de 44 500 €. Contactez Christophe COLLOCH ((Numéro supprimé)) pour toute information sur ce terrain, sur les démarches à suivre ou sur les modalités de vente. Maisons de l’Avenir Lorient vous accompagne à toutes les étapes de votre projet et dans tous vos projets immobiliers.
Berné
TERRAIN ET MAISONBerné : maison de 4 pièces (70 m²) à vendreEMPLACEMENT PRIVILÉGIÉ – MAISON 4 PIÈCES NEUVEÀ 29 km de l’océan Atlantique et à deux pas de Lorient, venez découvrir cette maison de 4 pièces de plain-pied de 70 m² à vendre, bénéficiant d’un emplacement d’exception dans Berné (56240). Conçue de plain-pied, elle compte trois chambres, une cuisine et une salle de bains.Le terrain de cette maison est de 614 m².La maison est neuve.Cette maison se trouve dans un quartier recherché. L’École Primaire Publique Georges Brassens et l’École Primaire Privée Sainte Hélène sont implantées à moins de 10 minutes à pied. Il y a un accès à la nationale N165 à 19 km. On trouve une boulangerie, un bureau de poste et une boucherie-charcuterie dans les environs.Elle est proposée à l’achat pour 219 000 €.Prenez contact avec notre agence (Christophe COLLOCH : (Numéro supprimé)) pour plus d’informations sur la maison.
Berné
TERRAIN ET MAISONVENTE : maison de 4 pièces (73 m²) à BernéEMPLACEMENT PRIVILÉGIÉ – MAISON 4 PIÈCES NEUVEÀ 29 km de l’océan Atlantique et à deux pas de Lorient, nous vous proposons cette maison de 4 pièces de 73 m² en vente bénéficiant d’un emplacement d’exception dans Berné (56240).Il s’agit d’une maison de 2 niveaux. Son intérieur inclut trois chambres, une cuisine et une salle de bains. La maison est neuve.Le terrain du bien est de 614 m².Cette propriété se trouve dans un quartier convoité. Il y a l’École Primaire Publique Georges Brassens et l’École Primaire Privée Sainte Hélène à moins de 10 minutes à pied. On trouve un accès à la nationale N165 à 19 km. On trouve une boulangerie, un bureau de poste et une boucherie-charcuterie à quelques minutes de la maison.Son prix de vente est de 234 000 €.N’hésitez pas à prendre contact avec notre agence (COLLOCH Christophe : (Numéro supprimé)) pour tout renseignement sur la maison ou sur les modalités de vente.
Berné
TERRAIN ET MAISONBerné : maison F4 (89 m²) en venteEMPLACEMENT PRIVILÉGIÉ – MAISON 4 PIÈCES NEUVEÀ vendre à 29 km de la côte atlantique et à quelques kilomètres de Lorient, nous sommes ravis de vous présenter cette maison de 4 pièces de 89 m² et de 614 m² de terrain bénéficiant d’un emplacement privilégié dans Berné (56240). Elle dispose de trois chambres, d’une cuisine et de deux salles de bains.C’est une maison de 2 niveaux. Elle est neuve.La maison est située dans un secteur recherché. Il y a l’École Primaire Publique Georges Brassens et l’École Primaire Privée Sainte Hélène à moins de 10 minutes à pied. La nationale N165 est accessible à 19 km. On trouve une boulangerie, une boucherie-charcuterie et un bureau de poste à quelques minutes à peine.Elle est proposée à l’achat pour 288 000 €.Contactez notre agence (COLLOCH Christophe : (Numéro supprimé)) pour tout renseignement sur la maison, sur les modalités de vente ou sur les démarches à suivre. Maisons de l’Avenir Lorient vous accompagne dans tous vos projets immobiliers et à toutes les étapes de votre projet.
L’actualité immobilière à Plouay
27/11/2023
02/11/2023
30/10/2023
20/10/2023
16/10/2023
16/10/2023