Images
Description
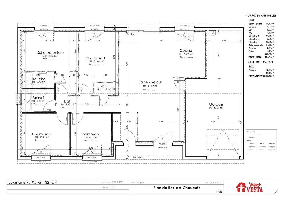
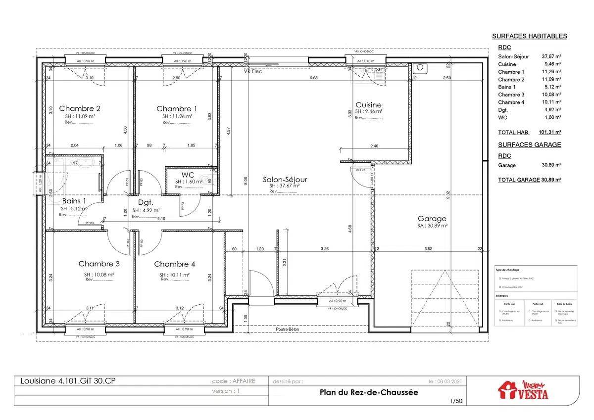
Nous vous proposons cette maison neuve, baptisée LOUISIANE, un modèle qui incarne l'excellence et l'innovation dans notre catalogue depuis ses débuts. La LOUISIANE, avec sa surface de 87 m² et son plan en L, est conçue pour répondre aux attentes les plus exigeantes en matière de confort et de fonctionnalité. Ce modèle de plain-pied, intégrant un garage, se distingue par sa capacité à s'adapter à diverses configurations familiales grâce à ses 3 chambres et ses 4 pièces au total, offrant ainsi un cadre de vie idéal pour tous.
La maison LOUISIANE est avant tout pensée pour être en parfaite harmonie avec les exigences de la norme RE2020, garantissant une performance énergétique de premier plan. Cette maison basse consommation est un choix judicieux pour ceux qui cherchent à réduire leur empreinte écologique tout en bénéficiant d'un confort optimal tout au long de l'année. L'enduit bi-ton, l'une des options les plus plébiscitées par nos clients, ajoute une touche d'élégance et de modernité à l'architecture extérieure, soulignant le caractère unique de ce modèle.
Le modèle LOUISIANE est le fruit de nombreuses années d'évolution, restant fidèle à notre engagement de fournir des maisons qui allient esthétique et fonctionnalité. Son plan en L n'est pas seulement un choix esthétique mais aussi pratique, offrant une séparation naturelle entre les espaces de vie et la partie nuit, pour un confort et une intimité accrus. Le garage intégré est un atout considérable, offrant non seulement un espace de stationnement sécurisé mais aussi des possibilités de rangement supplémentaires.
En choisissant la maison LOUISIANE, vous optez pour une demeure qui a su évoluer avec son temps, tout en restant la star de notre catalogue grâce à sa popularité inégalée auprès de nos clients. Que vous soyez une jeune famille en quête de votre premier foyer ou que vous désiriez simplement profiter du confort d'une maison de plain-pied bien conçue, la LOUISIANE est faite pour vous. Donnez libre cours
Logement susceptibles de vous intéresser
Nous vous proposons de découvrir aussi cette sélection de logements situés à moins de 10km de Anzeling et qui seraient susceptibles de vous intéresser.

Oberdorff
TERRAIN ET MAISONNous vous proposons cette maison neuve, baptisée FUTUNA, une demeure qui allie élégance, fonctionnalité et respect de l’environnement. Conçue pour s’adapter à tous les terrains, y compris les plus pentus, FUTUNA offre une surface habitable de 99 m², répartie en 4 pièces lumineuses et spacieuses, dont 4 chambres confortables pour accueillir toute votre famille.Ce modèle se distingue par son plan en T, optimisant chaque espace de vie pour une circulation fluide et agréable. Le garage intégré, d’une grande capacité, répondra à vos besoins de stationnement et de rangement, tandis que le porche accueillant vous invite à découvrir l’intérieur chaleureux et bien agencé de la maison.L’architecture de FUTUNA est couronnée par un toit plat, très demandé pour son esthétique moderne et sa capacité à s’intégrer harmonieusement dans tous les environnements. Les menuiseries en aluminium, à la fois élégantes et durables, assurent une excellente isolation thermique et phonique, tout en apportant une touche de modernité à l’ensemble.À l’intérieur, vous serez séduit par le vaste espace jour, comprenant une cuisine ouverte sur un salon-séjour lumineux, idéal pour partager des moments conviviaux en famille ou entre amis. Le cellier attenant à la cuisine offre un espace de rangement pratique, tandis que le vide sur hall d’entrée accentue la sensation d’espace et de volume dès votre entrée dans la maison.La partie nuit se compose de trois chambres, dont une spacieuse chambre parentale, offrant intimité et confort à chaque membre de la famille. Une salle de bains moderne et un WC séparé complètent cet espace, conçu pour le bien-être de tous.Le grand sous-sol, pouvant atteindre 100 m², offre un potentiel d’aménagement exceptionnel, que ce soit pour un très grand garage, un atelier, ou encore un espace de loisirs supplémentaire.Conforme à la norme RE2020, cette maison basse consommation est un choix responsable, garantissant des économies d’énergie significatives et un confort de

Ébersviller
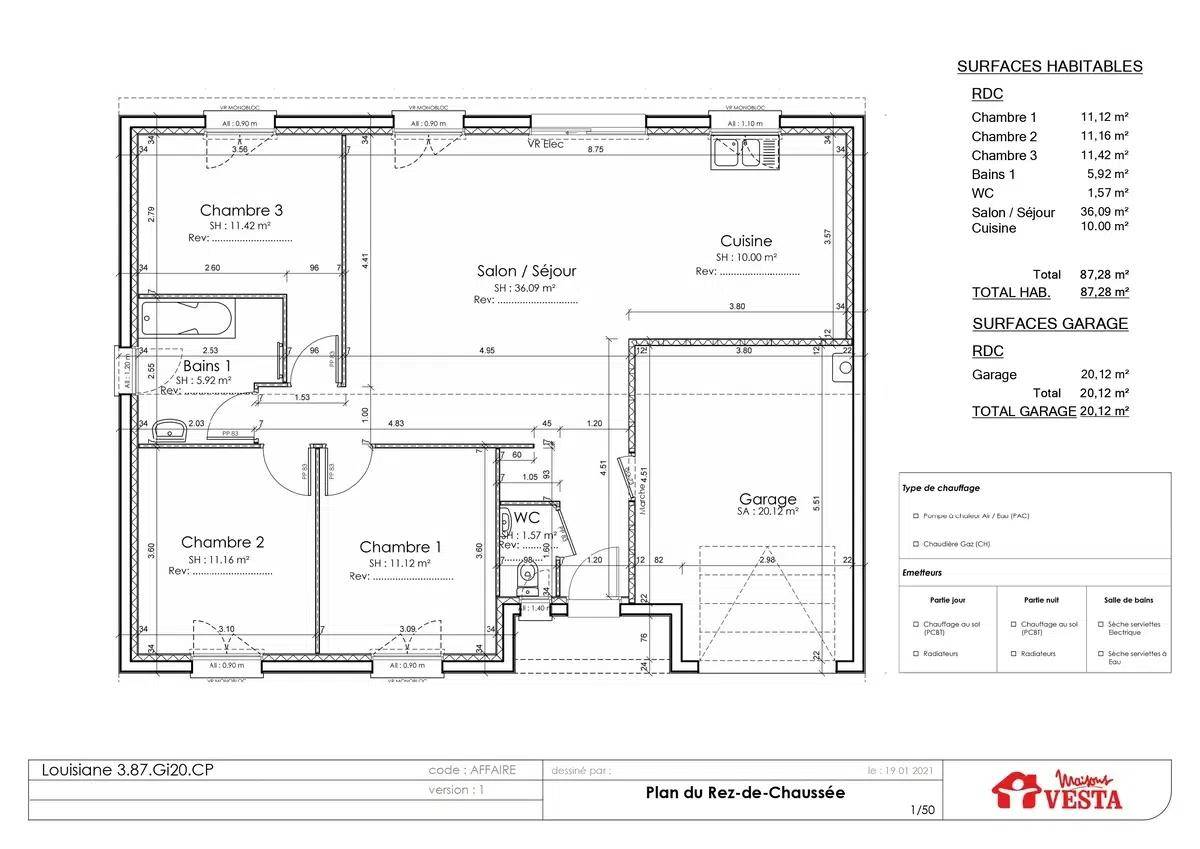
TERRAIN ET MAISONNous vous proposons cette maison neuve, modèle CAVIANA, une habitation qui allie esthétique contemporaine et fonctionnalité, idéale pour ceux qui rêvent d’un plain-pied pratique aux lignes modernes. Avec une surface de 89 m² judicieusement répartie, cette maison est conçue pour répondre aux besoins de confort et d’espace de toute la famille.Le design en L de la CAVIANA permet une intégration harmonieuse de l’entrée de garage, offrant ainsi une façade plus élégante et discrète. Dès l’entrée, vous serez accueilli dans un espace fermé, équipé d’un WC indépendant et d’un dressing intégré, pensé pour organiser votre quotidien.La pièce de vie, cœur de cette maison, est un espace ouvert et lumineux comprenant un salon-séjour et une cuisine à l’américaine. Grâce à une baie coulissante de 2m40, la lumière naturelle est omniprésente, créant une atmosphère chaleureuse et accueillante. Cet espace est idéal pour partager des moments en famille ou entre amis.La partie nuit se compose de trois chambres spacieuses, offrant à chaque membre de la famille un espace personnel confortable. La salle de bains, fonctionnelle et élégante, complète cet espace dédié au repos et à la détente.La CAVIANA est une maison basse consommation, conçue dans le respect des normes RE2020. Ce modèle répond aux attentes les plus exigeantes en matière d’économie d’énergie et de respect de l’environnement, garantissant ainsi un confort optimal tout en maîtrisant vos dépenses énergétiques.Parmi les options les plus plébiscitées par nos clients, vous trouverez des solutions innovantes pour personnaliser votre maison selon vos envies et vos besoins. La CAVIANA est plus qu’une maison, c’est un lieu de vie pensé pour votre bien-être et celui de votre famille.N’attendez plus pour faire de ce modèle votre futur chez-vous. La CAVIANA, c’est la promesse d’un habitat contemporain, confortable et éco-responsable, conçu pour s’adapter à votre style de vie.

Oberdorff
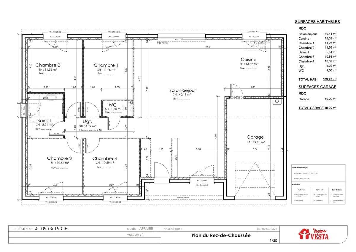
TERRAIN ET MAISONNous vous proposons cette maison neuve, baptisée MALAGA, une demeure qui allie élégance, confort et modernité. Conçue pour répondre aux attentes des familles en quête d’espace et de bien-être, la MALAGA offre une surface habitable de 105 m², judicieusement répartie pour maximiser le confort de vie.Le modèle MALAGA se distingue par son architecture en L avec une avancée à l’avant, offrant ainsi une discrétion appréciable par rapport à la rue et un espace extérieur plus intime. Le porche d’entrée vous accueille, ajoutant une touche d’élégance à l’ensemble. À l’intérieur, la pièce de vie spacieuse de plus de 40 m² baigne dans la lumière naturelle grâce à ses nombreuses ouvertures sur trois murs, créant un espace de vie chaleureux et accueillant.La maison MALAGA comprend également quatre chambres confortables, permettant à chaque membre de la famille de bénéficier de son propre espace. Un grand cellier de 7 m² et un garage intégré offrent des solutions de rangement pratiques et accessibles, répondant ainsi aux besoins des familles modernes.Les caractéristiques techniques de la MALAGA incluent une dalle d’étage en béton, garantissant solidité et durabilité. Les options les plus plébiscitées, telles que l’enduit bi-ton pour une façade personnalisée et des combles aménageables pour un espace supplémentaire, sont disponibles pour faire de cette maison le reflet de vos désirs.Construite dans le respect des normes de la RE2020, cette maison basse consommation est un choix responsable, assurant un confort optimal tout en minimisant l’impact environnemental. La MALAGA est donc une invitation à vivre dans un espace sain, économique en énergie et respectueux de l’environnement.Choisir la maison MALAGA, c’est opter pour une demeure où chaque détail a été pensé pour votre bien-être. Vivez l’expérience d’une maison neuve, moderne et éco-responsable, conçue pour s’adapter à l’évolution de votre famille. Bienvenue chez vous, bienvenue dans la maison MALAGA.

Chémery-les-Deux
TERRAIN ET MAISONVENTE : maison de 5 pièces (100 m²) à Chémery-les-DeuxIdéalement située – À Chémery-les-Deux (57320), maison neuve à vendre de 5 pièces, 2 niveaux, 100 m² sur 1 038 m² de terrain. Elle inclut trois chambres, une cuisine et une salle de bains. Vue panoramique.À proximité : établissements scolaires, crèche, tennis, bassin de natation, bibliothèque, commerces, boulangeries, supermarchés, épiceries et boucheries-charcuteries. Marché Place du marché le mardi matin. Allemagne à 17 km et Luxembourg à 20 km. Metz à 28 km.Cette maison de 5 pièces est à vendre pour la somme de 279 000 €.Prenez contact avec Emmanuel LEONARDI ((Numéro supprimé)) pour toute information sur la maison ou sur les modalités de vente. Concrétisez vos projets immobiliers avec Maisons Horizon Yutz.

Anzeling
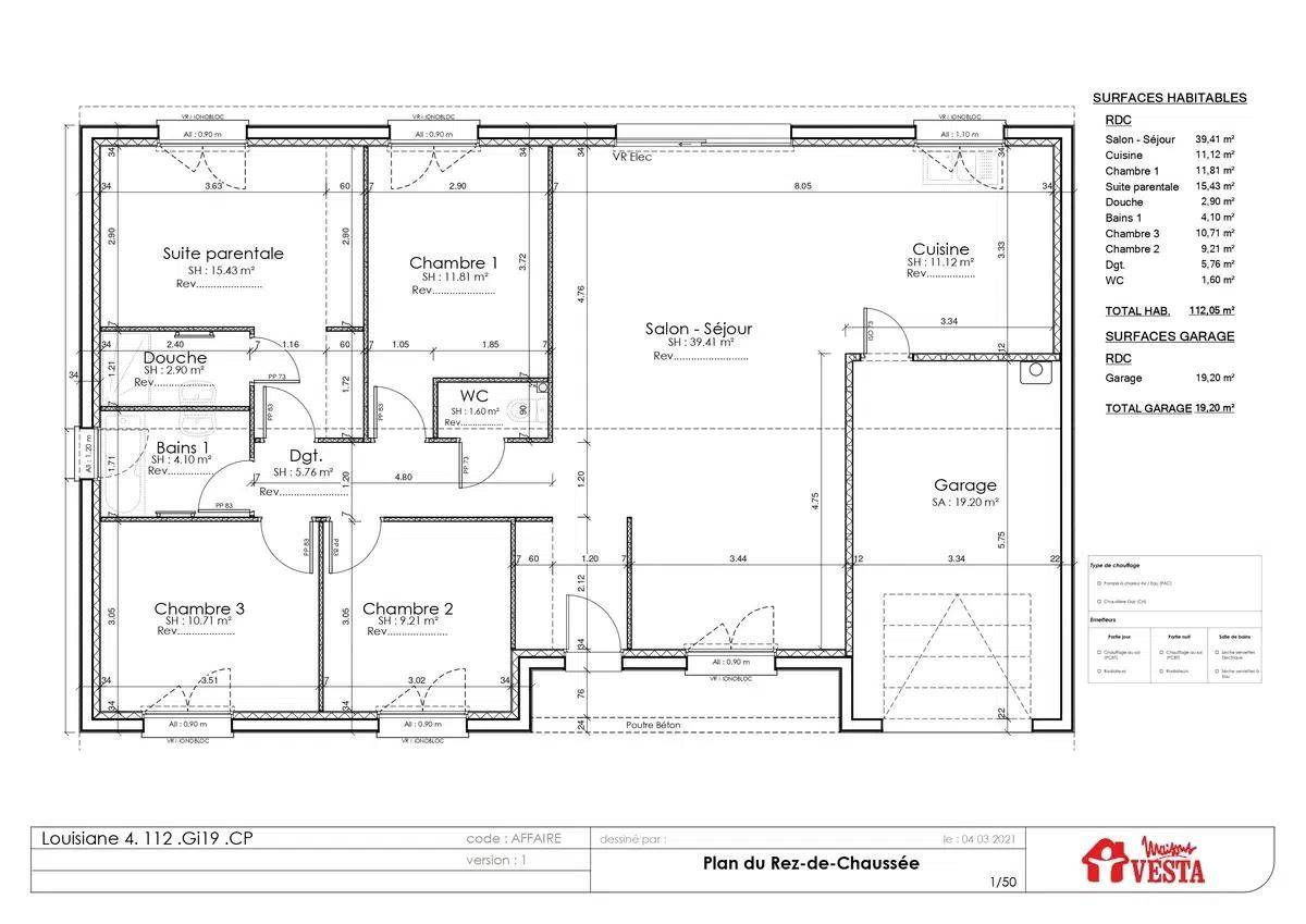
TERRAIN ET MAISONNous vous proposons cette maison neuve, baptisée LOUISIANE, un modèle qui incarne l’excellence et l’innovation dans notre catalogue depuis ses débuts. La LOUISIANE, avec sa surface de 87 m² et son plan en L, est conçue pour répondre aux attentes les plus exigeantes en matière de confort et de fonctionnalité. Ce modèle de plain-pied, intégrant un garage, se distingue par sa capacité à s’adapter à diverses configurations familiales grâce à ses 3 chambres et ses 4 pièces au total, offrant ainsi un cadre de vie idéal pour tous.La maison LOUISIANE est avant tout pensée pour être en parfaite harmonie avec les exigences de la norme RE2020, garantissant une performance énergétique de premier plan. Cette maison basse consommation est un choix judicieux pour ceux qui cherchent à réduire leur empreinte écologique tout en bénéficiant d’un confort optimal tout au long de l’année. L’enduit bi-ton, l’une des options les plus plébiscitées par nos clients, ajoute une touche d’élégance et de modernité à l’architecture extérieure, soulignant le caractère unique de ce modèle.Le modèle LOUISIANE est le fruit de nombreuses années d’évolution, restant fidèle à notre engagement de fournir des maisons qui allient esthétique et fonctionnalité. Son plan en L n’est pas seulement un choix esthétique mais aussi pratique, offrant une séparation naturelle entre les espaces de vie et la partie nuit, pour un confort et une intimité accrus. Le garage intégré est un atout considérable, offrant non seulement un espace de stationnement sécurisé mais aussi des possibilités de rangement supplémentaires.En choisissant la maison LOUISIANE, vous optez pour une demeure qui a su évoluer avec son temps, tout en restant la star de notre catalogue grâce à sa popularité inégalée auprès de nos clients. Que vous soyez une jeune famille en quête de votre premier foyer ou que vous désiriez simplement profiter du confort d’une maison de plain-pied bien conçue, la LOUISIANE est faite pour vous. Donnez libre cours

Freistroff
TERRAINClaude-Eric CHAUMIER de RE/MAX IMMO GROUP 2 Metz, spécialiste de l’immobilier, vous propose en exclusivité ce beau terrain de 5,47 ares hors lotissement et libre de constructeur sur la commune de Freistroff . Proximité Bouzonville (écoles, collège, banque, restaurant, boulangerie, pharmacie..). Un Bâtiment existant est à démolir (ancienne grange). Alors venez le voir une visite s’impose pour les amoureux de la nature. La présente annonce immobilière a été rédigée sous la responsabilité éditoriale de l’agent commercial : Claude-Eric CHAUMIER TEL: (Numéro supprimé) (N°SIRET 882 138 217 R.S.A.C. THIONVILLE) Prix 52000 € honoraires exclus.Honoraires de7500 TTC à la charge de l’acquéreur.Les informations sur les risques auxquels ce bien est exposé sont disponibles sur le site Géorisques : www.georisques.gouv.fr .

Freistroff
TERRAIN ET MAISONSur ce terrain, nous vous proposons cette maison neuve : la My First 91, un modèle signé Maisons Vesta. Avec une surface généreuse de 91 m², cette maison lumineuse et écologique est idéale pour les familles à la recherche d’un espace de vie confortable et de qualité, tout en respectant un budget maîtrisé.La My First 91 se distingue par son agencement parfaitement optimisé. Elle dispose de quatre chambres spacieuses, chacune de plus de 10 m², offrant ainsi un espace de vie confortable pour chaque membre de la famille. La maison comprend également une grande pièce de vie traversante et lumineuse avec une cuisine ouverte, un cellier attenant, une salle de bain avec baignoire et des WC séparés.Les caractéristiques principales de cette maison incluent une dalle étage en béton, un garage intégré et un garage accolé, répondant ainsi aux besoins de stationnement et de rangement de votre famille. De plus, les options les plus demandées par nos clients, telles que l’enduit bi-ton, les menuiseries en aluminium et la pergola, peuvent être ajoutées pour personnaliser votre maison selon vos goûts.Cette maison neuve est basse consommation et conforme à la réglementation environnementale RE2020, garantissant ainsi une habitation respectueuse de l’environnement et des économies d’énergie substantielles.Ne manquez pas cette opportunité unique d’acquérir une maison de qualité, parfaitement agencée et respectueuse de l’environnement, avec Maisons Vesta. Contactez-nous dès aujourd’hui pour plus d’informations et pour planifier une visite de ce modèle exceptionnel.

Anzeling
TERRAIN ET MAISONSur ce terrain, nous vous proposons cette maison neuve : le modèle SEATTLE de Maisons Vesta. Avec une surface de 96 m², cette maison à étage est idéale pour les familles souhaitant allier confort et économies d’énergie. Le modèle SEATTLE se distingue par son excellent rapport qualité/prix et sa capacité à s’adapter à des terrains avec une façade courte. Dès l’entrée, vous serez séduit par un espace salon/séjour/cuisine ouverte, entièrement modulable selon vos goûts et vos besoins. Un WC indépendant et un cellier viennent compléter le rez-de-chaussée, offrant ainsi des espaces de rangement pratiques et fonctionnels.À l’étage, vous découvrirez quatre chambres spacieuses, chacune conçue pour intégrer un dressing sur mesure, répondant ainsi aux besoins de rangement de toute la famille. Un second WC indépendant et une grande salle de bain, équipée pour accueillir à la fois une baignoire, une douche et une double vasque, complètent la partie nuit. Cette configuration est parfaite pour les matins chargés des familles actives.Cette maison neuve est basse consommation et conforme à la réglementation environnementale RE2020, garantissant ainsi des performances énergétiques optimales et un impact environnemental réduit. Ne manquez pas cette opportunité de construire la maison de vos rêves avec Maisons Vesta, un constructeur reconnu pour la qualité de ses réalisations et son engagement en faveur de l’environnement. Contactez-nous dès maintenant pour plus d’informations et pour découvrir les différentes configurations disponibles selon la surface désirée.

Filstroff
TERRAIN ET MAISONSur ce terrain, nous vous proposons cette maison neuve : le modèle SEATTLE, conçu par Maisons Vesta. Avec une surface de 81 m², cette maison à étage offre un excellent rapport qualité/prix et s’adapte parfaitement aux terrains avec une façade courte. Dès l’entrée, vous serez séduit par un espace salon/séjour/cuisine ouverte, entièrement modulable selon vos goûts et vos besoins. Le rez-de-chaussée comprend également un WC indépendant et un cellier, ajoutant une touche de praticité à votre quotidien.À l’étage, vous découvrirez trois chambres spacieuses, chacune conçue pour intégrer un dressing sur mesure, offrant ainsi un espace de rangement optimal. La partie nuit est complétée par un second WC indépendant et une très grande salle de bain, équipée pour accueillir à la fois une baignoire, une douche et une double vasque, idéale pour les matins animés des familles actives.Cette maison neuve est basse consommation et conforme à la RE2020, garantissant ainsi des performances énergétiques optimales et un confort de vie inégalé. Ne manquez pas cette opportunité unique de devenir propriétaire d’une maison moderne, fonctionnelle et éco-responsable avec Maisons Vesta. Contactez-nous dès aujourd’hui pour plus d’informations et pour découvrir les différentes configurations disponibles selon la surface désirée.
L’actualité immobilière à Anzeling





