Images
Description
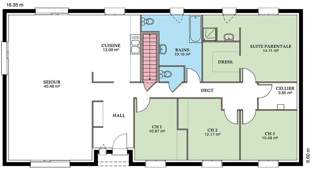
Nous vous proposons cette maison neuve, baptisée ""Aubetière"", un modèle de construction qui allie élégance et performance énergétique, conforme aux exigences de la norme RE2020. Avec une surface habitable de 90 m², cette maison est conçue pour offrir un confort optimal tout en minimisant son impact sur l'environnement.
L'Aubetière se décline en deux versions architecturales : vous avez le choix entre un toit traditionnel à 2 pans ou une version plus moderne à 4 pans, chacune pensée pour s'intégrer harmonieusement à son environnement. Cette maison basse consommation est un véritable engagement vers un avenir plus durable, garantissant une réduction significative de vos factures énergétiques grâce à une isolation optimale, une ventilation performante et l'utilisation de matériaux à faible impact environnemental.
Ce modèle se compose de 4 pièces lumineuses et spacieuses, dont 4 chambres confortables, offrant ainsi un cadre de vie idéal pour une famille. Chaque espace a été pensé pour maximiser le confort et la fonctionnalité, tout en respectant les critères de la norme RE2020. Vous bénéficierez d'un intérieur à la fois moderne et chaleureux, avec la possibilité de personnaliser les finitions selon vos goûts et vos besoins.
L'Aubetière représente l'opportunité de vivre dans une maison neuve, économique et respectueuse de l'environnement, sans compromis sur le style ou le confort. C'est l'assurance d'un investissement pérenne, conçu pour répondre aux défis de demain. N'attendez plus pour faire de ce lieu votre nouveau foyer, un espace où bien-être rime avec éco-responsabilité.
Logement susceptibles de vous intéresser
Nous vous proposons de découvrir aussi cette sélection de logements situés à moins de 10km de Challuy et qui seraient susceptibles de vous intéresser.
Saint-Éloi
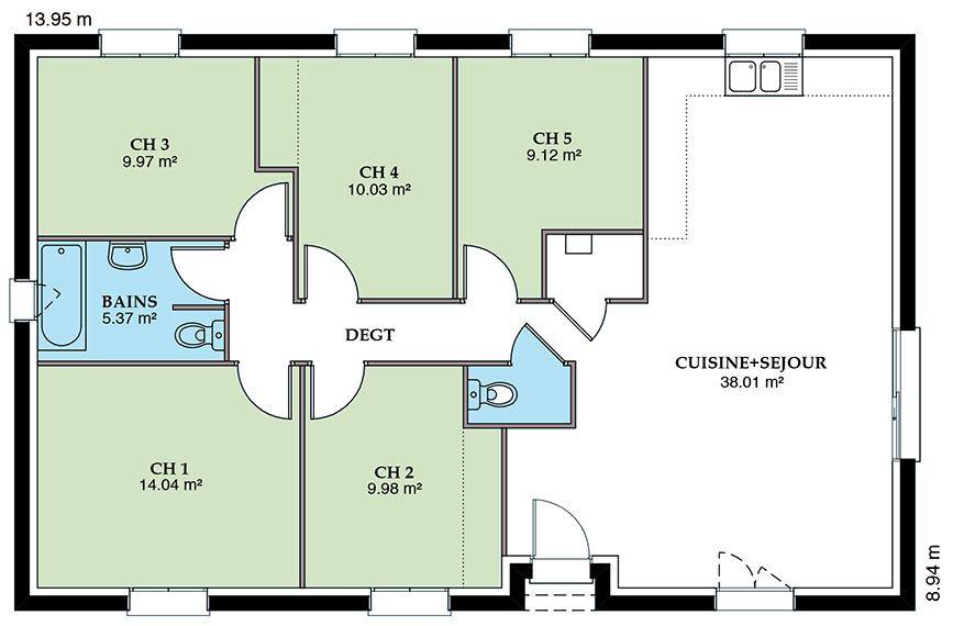
TERRAIN ET MAISONNous vous proposons cette maison neuve, modèle Focus 79 SG, une habitation conçue pour répondre aux attentes des familles modernes cherchant confort, économie et respect de l’environnement. Avec une surface habitable de 79 m², cette maison basse consommation est parfaitement conforme à la norme RE2020, garantissant ainsi une efficacité énergétique optimale et un impact environnemental minimal. Le modèle Focus 79 SG se distingue par son agencement intelligent et fonctionnel, offrant 4 pièces lumineuses et bien pensées pour un quotidien agréable et harmonieux. L’espace de vie se compose de trois chambres accueillantes, permettant à chaque membre de la famille de bénéficier de son propre espace de tranquillité et de confort. La pièce à vivre, spacieuse et conviviale, est conçue pour être le cœur de la maison, où les moments de partage prennent place. Cette maison est l’incarnation de l’habitat de demain, alliant performance énergétique et confort de vie. Grâce à sa conformité à la norme RE2020, elle bénéficie d’une isolation optimale, de systèmes de chauffage et de ventilation de dernière génération, réduisant ainsi considérablement les besoins en énergie pour le chauffage, la climatisation et l’eau chaude sanitaire. Cela se traduit par des factures d’énergie réduites et un confort accru tout au long de l’année. Le modèle Focus 79 SG est également pensé pour s’intégrer harmonieusement dans son environnement, avec une attention particulière portée à l’impact écologique de la construction. Les matériaux utilisés sont choisis pour leur durabilité et leur faible impact environnemental, contribuant à la préservation de notre planète. En choisissant cette maison, vous optez pour un habitat durable, économique et confortable, conçu pour répondre aux défis de notre époque. Ne manquez pas l’opportunité de construire la maison de vos rêves, une maison qui prend soin de vous et de l’environnement. »
Saint-Éloi
TERRAINEn accord avec notre partenaire foncier , Nous vous proposons un terrain exceptionnel de 435 m², idéalement situé dans le charmant lotissement de Saint-Éloi, au cœur de la Nièvre en Bourgogne-Franche-Comté. Ce terrain viabilisé, parfaitement plat et au calme, constitue une opportunité unique pour un projet de construction de maison. Bénéficiant d’un prix attractif, il représente le dernier lot à saisir dans ce cadre enchanteur, propice à l’épanouissement de votre future demeure. Saint-Éloi, une ville dynamique et accueillante, offre un cadre de vie agréable, grâce à sa proximité avec divers commerces et commodités. Les écoles, allant de la maternelle au collège et au lycée, sont facilement accessibles, ce qui ravira les familles. Le terrain est également bien desservi par les transports en commun, avec des arrêts de bus à proximité et un accès rapide aux axes routiers importants, facilitant vos déplacements vers les grandes villes voisines. Ce cadre idyllique et ses infrastructures font de Saint-Éloi un lieu de vie de choix pour réaliser vos projets. N’attendez plus pour envisager cette opportunité d’achat unique et bâtir votre avenir sur ce superbe terrain. À noter qu’en tant que constructeur, nous ne sommes pas mandatés pour réaliser la vente de ce terrain.
Challuy
TERRAIN ET MAISONNous vous proposons cette maison neuve, baptisée « »Aubetière » », un modèle de construction qui allie élégance et performance énergétique, conforme aux exigences de la norme RE2020. Avec une surface habitable de 90 m², cette maison est conçue pour offrir un confort optimal tout en minimisant son impact sur l’environnement. L’Aubetière se décline en deux versions architecturales : vous avez le choix entre un toit traditionnel à 2 pans ou une version plus moderne à 4 pans, chacune pensée pour s’intégrer harmonieusement à son environnement. Cette maison basse consommation est un véritable engagement vers un avenir plus durable, garantissant une réduction significative de vos factures énergétiques grâce à une isolation optimale, une ventilation performante et l’utilisation de matériaux à faible impact environnemental. Ce modèle se compose de 4 pièces lumineuses et spacieuses, dont 4 chambres confortables, offrant ainsi un cadre de vie idéal pour une famille. Chaque espace a été pensé pour maximiser le confort et la fonctionnalité, tout en respectant les critères de la norme RE2020. Vous bénéficierez d’un intérieur à la fois moderne et chaleureux, avec la possibilité de personnaliser les finitions selon vos goûts et vos besoins. L’Aubetière représente l’opportunité de vivre dans une maison neuve, économique et respectueuse de l’environnement, sans compromis sur le style ou le confort. C’est l’assurance d’un investissement pérenne, conçu pour répondre aux défis de demain. N’attendez plus pour faire de ce lieu votre nouveau foyer, un espace où bien-être rime avec éco-responsabilité.
Coulanges-lès-Nevers
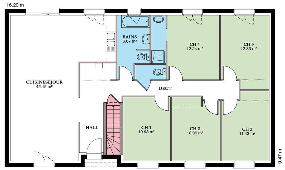
TERRAIN ET MAISONNous vous proposons cette maison neuve, baptisée « »Aubetière » », un modèle d’habitation qui allie élégance et performance énergétique, conforme aux exigences de la norme RE2020. Avec une surface habitable de 131 m², cette maison est conçue pour offrir confort et bien-être à ses occupants. L’Aubetière se distingue par son architecture moderne, disponible en versions à 2 ou 4 pans, permettant ainsi de s’adapter à vos préférences esthétiques et aux spécificités de votre terrain. Cette maison basse consommation est pensée pour minimiser son impact environnemental tout en garantissant des économies d’énergie significatives sur le long terme. Le logement se compose de 4 chambres spacieuses, promettant intimité et confort pour chaque membre de la famille. Les 4 pièces de la maison sont réparties de manière à optimiser les espaces de vie, offrant une circulation fluide et agréable entre les différentes zones de la maison. L’Aubetière est conçue selon les standards de la RE2020, la réglementation environnementale de 2020, qui vise à réduire les consommations énergétiques des bâtiments neufs et à améliorer leur performance environnementale. Cette maison neuve bénéficie donc des dernières innovations en matière d’isolation, de chauffage, et de production d’énergie renouvelable, assurant un confort optimal en toutes saisons tout en réduisant l’empreinte écologique. En choisissant l’Aubetière, vous optez pour une maison à la pointe de la technologie, conçue pour répondre aux défis de demain. Son design soigné et ses performances énergétiques en font un lieu de vie idéal pour ceux qui cherchent à allier qualité de vie et respect de l’environnement. N’attendez plus pour faire de l’Aubetière le foyer de vos rêves, un espace où bien-être rime avec durabilité.
Coulanges-lès-Nevers
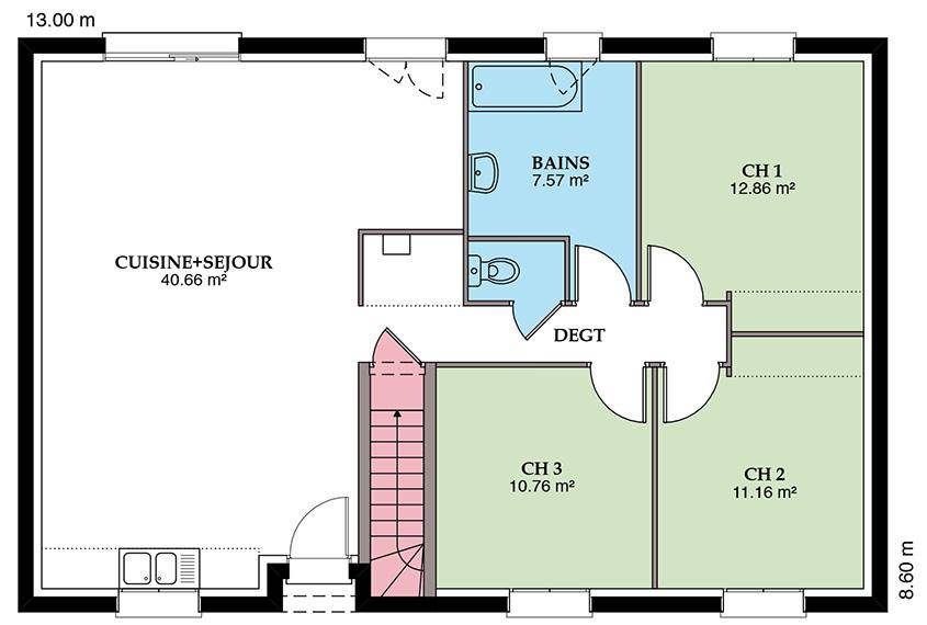
TERRAIN ET MAISONDécouvrez la Prunière, une maison neuve de 87,5 m² avec garage intégré, qui marie style moderne et confort au quotidien. Disponible en toit 2 ou 4 pans, elle séduit par son architecture élégante et son agencement fonctionnel, idéal pour un couple ou une jeune famille.L’intérieur se compose de 3 chambres lumineuses, d’un espace de vie ouvert et convivial, et d’un garage accolé offrant un rangement pratique et un accès direct à la maison. Chaque espace a été pensé pour offrir volume, clarté et bien-être.Conforme à la réglementation RE2020, la Prunière bénéficie d’une isolation performante, d’une consommation énergétique réduite et d’un confort thermique optimal tout au long de l’année.La Prunière 87,5 m² + garage, c’est le choix d’une maison moderne, économe et durable, pensée pour un mode de vie simple, serein et tourné vers l’avenir.
Coulanges-lès-Nevers
TERRAINNous avons le plaisir de vous présenter un terrain exceptionnel à vendre, d’une superficie de 1200 m², situé dans la charmante commune de Coulanges-lès-Nevers. Idéal pour concevoir la maison de vos rêves, ce terrain offre un cadre unique avec des caractéristiques naturelles préservées. Profitez d’un environnement calme et arboré, parfait pour un projet de construction qui combine confort et esthétisme. Situé dans le département de la Nièvre en Bourgogne-Franche-Comté, Coulanges-lès-Nevers bénéficie d’une localisation stratégique. Vous trouverez à proximité immédiate toutes les commodités nécessaires à votre quotidien, notamment des commerces, des écoles ainsi qu’un collège et un lycée, ce qui en fait un choix parfait pour les familles. Son accessibilité est facilitée grâce à un arrêt de bus à proximité et à un accès rapide aux axes routiers importants et à l’autoroute. Ce terrain présente une opportunité rare, dans un cadre champêtre ensoleillé, idéale pour ceux en quête de tranquillité et de qualité de vie. Ne manquez pas cette occasion unique d’acquérir un terrain avec un potentiel exceptionnel. Nous vous invitons à envisager sérieusement cet investissement qui répondra à toutes vos attentes. À noter qu’en tant que constructeur, nous ne sommes pas mandatés pour réaliser la vente de ce terrain.
Coulanges-lès-Nevers
TERRAINNous sommes ravis de vous présenter ce terrain à vendre d’une superficie généreuse de 2800 m², idéal pour un projet de construction de maison. Situé dans la charmante commune de Coulanges-lès-Nevers, ce terrain non viabilisé offre un cadre exceptionnel pour réaliser votre rêve immobilier. La ville bénéficie d’une ambiance accueillante et d’un environnement paisible, permettant de vivre en harmonie avec la nature tout en étant à proximité des commodités. Coulanges-lès-Nevers, dans le département de la Nièvre en Bourgogne-Franche-Comté, se distingue par sa proximité avec les commerces et les services essentiels. Cette commune dispose d’écoles, de collèges et de lycées à proximité, ce qui est un atout considérable pour les familles. Avec un ensoleillement optimal et un accès aisé aux axes routiers importants, ce terrain jouit d’une localisation propice pour un cadre de vie agréable. De plus, la division parcellaire est envisageable et le PLU non contraignant offre une flexibilité dans votre projet de construction. N’attendez plus pour découvrir le potentiel de ce terrain d’exception. Ce terrain représente une opportunité unique d’investissement et un espace idéal pour concrétiser vos aspirations. N’hésitez pas à nous contacter pour plus d’informations ! À noter qu’en tant que constructeur, nous ne sommes pas mandatés pour réaliser la vente de ce terrain.
Marzy
TERRAINTerrain à vendre 732 m² au centre de MarzySitué en plein coeur de Marzy, ce joli terrain de 732 m² bénéficie d’un emplacement idéal, à proximité immédiate des écoles, de la pharmacie, du médecin et de la boulangerie.Dans un quartier calme et agréable, il offre un cadre parfait pour construire votre future maison et profiter d’un quotidien pratique, à deux pas de tout.Localisation : Marzy (58180)Surface : 732 m²Prix : à définirUne belle opportunité pour un projet de vie paisible, au coeur d’un village recherché proche de Nevers.Prix de vente: 65 000 euros honoraires charge vendeur. Pour visiter et vous accompagner dans votre projet, contactez Ralib REHAHLI agissant sous le statut de conseiller immobilier indépendant auprès de la sas Propriétés privées au (Numéro supprimé) ou par mail à (Email supprimé) Mandat n°427571.Adresse du siège: SAS PROPRIETES PRIVEES ZAC du chêne ferré 44 allée des cinq continents 44120 VERTOU – Carte professionnelle CPI 4401 2016 000 010 388, CCI Nantes-Saint Nazaire – RCS NANTES 487 624 777.Les informations sur les risques auxquels ce bien est exposé sont disponibles sur le site Géorisques : www. georisques. gouv. fr
Saint-Éloi
TERRAIN ET MAISONDécouvrez la Prunière, une maison neuve de 87,5 m² avec garage intégré, qui marie style moderne et confort au quotidien. Disponible en toit 2 ou 4 pans, elle séduit par son architecture élégante et son agencement fonctionnel, idéal pour un couple ou une jeune famille.L’intérieur se compose de 3 chambres lumineuses, d’un espace de vie ouvert et convivial, et d’un garage accolé offrant un rangement pratique et un accès direct à la maison. Chaque espace a été pensé pour offrir volume, clarté et bien-être.Conforme à la réglementation RE2020, la Prunière bénéficie d’une isolation performante, d’une consommation énergétique réduite et d’un confort thermique optimal tout au long de l’année.La Prunière 87,5 m² + garage, c’est le choix d’une maison moderne, économe et durable, pensée pour un mode de vie simple, serein et tourné vers l’avenir.
L’actualité immobilière à Challuy
27/11/2023
02/11/2023
30/10/2023
20/10/2023
16/10/2023
16/10/2023