Images
Description
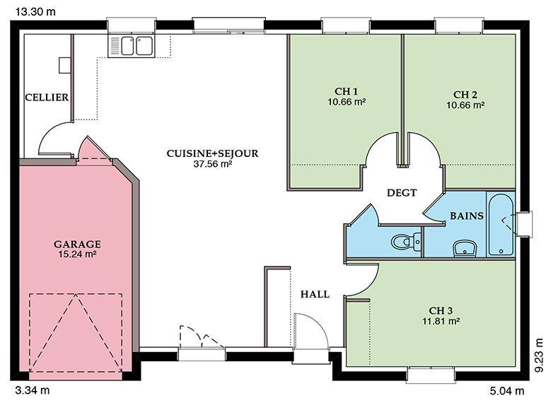
Découvrez la Prunière, une maison neuve de 87,5 m² avec garage intégré, qui marie style moderne et confort au quotidien. Disponible en toit 2 ou 4 pans, elle séduit par son architecture élégante et son agencement fonctionnel, idéal pour un couple ou une jeune famille.
L’intérieur se compose de 3 chambres lumineuses, d’un espace de vie ouvert et convivial, et d’un garage accolé offrant un rangement pratique et un accès direct à la maison. Chaque espace a été pensé pour offrir volume, clarté et bien-être.
Conforme à la réglementation RE2020, la Prunière bénéficie d’une isolation performante, d’une consommation énergétique réduite et d’un confort thermique optimal tout au long de l’année.
La Prunière 87,5 m² + garage, c’est le choix d’une maison moderne, économe et durable, pensée pour un mode de vie simple, serein et tourné vers l’avenir.
Logement susceptibles de vous intéresser
Nous vous proposons de découvrir aussi cette sélection de logements situés à moins de 10km de Coulanges-lès-Nevers et qui seraient susceptibles de vous intéresser.
Coulanges-lès-Nevers
TERRAIN ET MAISONNous vous proposons cette maison neuve, baptisée « »Aubetière » », un modèle d’habitation qui allie élégance et performance énergétique, conforme aux exigences de la norme RE2020. Avec une surface habitable de 131 m², cette maison est conçue pour offrir confort et bien-être à ses occupants. L’Aubetière se distingue par son architecture moderne, disponible en versions à 2 ou 4 pans, permettant ainsi de s’adapter à vos préférences esthétiques et aux spécificités de votre terrain. Cette maison basse consommation est pensée pour minimiser son impact environnemental tout en garantissant des économies d’énergie significatives sur le long terme. Le logement se compose de 4 chambres spacieuses, promettant intimité et confort pour chaque membre de la famille. Les 4 pièces de la maison sont réparties de manière à optimiser les espaces de vie, offrant une circulation fluide et agréable entre les différentes zones de la maison. L’Aubetière est conçue selon les standards de la RE2020, la réglementation environnementale de 2020, qui vise à réduire les consommations énergétiques des bâtiments neufs et à améliorer leur performance environnementale. Cette maison neuve bénéficie donc des dernières innovations en matière d’isolation, de chauffage, et de production d’énergie renouvelable, assurant un confort optimal en toutes saisons tout en réduisant l’empreinte écologique. En choisissant l’Aubetière, vous optez pour une maison à la pointe de la technologie, conçue pour répondre aux défis de demain. Son design soigné et ses performances énergétiques en font un lieu de vie idéal pour ceux qui cherchent à allier qualité de vie et respect de l’environnement. N’attendez plus pour faire de l’Aubetière le foyer de vos rêves, un espace où bien-être rime avec durabilité.
Coulanges-lès-Nevers
TERRAINNous sommes ravis de vous présenter ce terrain à vendre d’une superficie généreuse de 2800 m², idéal pour un projet de construction de maison. Situé dans la charmante commune de Coulanges-lès-Nevers, ce terrain non viabilisé offre un cadre exceptionnel pour réaliser votre rêve immobilier. La ville bénéficie d’une ambiance accueillante et d’un environnement paisible, permettant de vivre en harmonie avec la nature tout en étant à proximité des commodités. Coulanges-lès-Nevers, dans le département de la Nièvre en Bourgogne-Franche-Comté, se distingue par sa proximité avec les commerces et les services essentiels. Cette commune dispose d’écoles, de collèges et de lycées à proximité, ce qui est un atout considérable pour les familles. Avec un ensoleillement optimal et un accès aisé aux axes routiers importants, ce terrain jouit d’une localisation propice pour un cadre de vie agréable. De plus, la division parcellaire est envisageable et le PLU non contraignant offre une flexibilité dans votre projet de construction. N’attendez plus pour découvrir le potentiel de ce terrain d’exception. Ce terrain représente une opportunité unique d’investissement et un espace idéal pour concrétiser vos aspirations. N’hésitez pas à nous contacter pour plus d’informations ! À noter qu’en tant que constructeur, nous ne sommes pas mandatés pour réaliser la vente de ce terrain.
Coulanges-lès-Nevers
TERRAIN ET MAISONDécouvrez la Prunière, une maison neuve de 87,5 m² avec garage intégré, qui marie style moderne et confort au quotidien. Disponible en toit 2 ou 4 pans, elle séduit par son architecture élégante et son agencement fonctionnel, idéal pour un couple ou une jeune famille.L’intérieur se compose de 3 chambres lumineuses, d’un espace de vie ouvert et convivial, et d’un garage accolé offrant un rangement pratique et un accès direct à la maison. Chaque espace a été pensé pour offrir volume, clarté et bien-être.Conforme à la réglementation RE2020, la Prunière bénéficie d’une isolation performante, d’une consommation énergétique réduite et d’un confort thermique optimal tout au long de l’année.La Prunière 87,5 m² + garage, c’est le choix d’une maison moderne, économe et durable, pensée pour un mode de vie simple, serein et tourné vers l’avenir.
Coulanges-lès-Nevers
TERRAINNous avons le plaisir de vous présenter un terrain exceptionnel à vendre, d’une superficie de 1200 m², situé dans la charmante commune de Coulanges-lès-Nevers. Idéal pour concevoir la maison de vos rêves, ce terrain offre un cadre unique avec des caractéristiques naturelles préservées. Profitez d’un environnement calme et arboré, parfait pour un projet de construction qui combine confort et esthétisme. Situé dans le département de la Nièvre en Bourgogne-Franche-Comté, Coulanges-lès-Nevers bénéficie d’une localisation stratégique. Vous trouverez à proximité immédiate toutes les commodités nécessaires à votre quotidien, notamment des commerces, des écoles ainsi qu’un collège et un lycée, ce qui en fait un choix parfait pour les familles. Son accessibilité est facilitée grâce à un arrêt de bus à proximité et à un accès rapide aux axes routiers importants et à l’autoroute. Ce terrain présente une opportunité rare, dans un cadre champêtre ensoleillé, idéale pour ceux en quête de tranquillité et de qualité de vie. Ne manquez pas cette occasion unique d’acquérir un terrain avec un potentiel exceptionnel. Nous vous invitons à envisager sérieusement cet investissement qui répondra à toutes vos attentes. À noter qu’en tant que constructeur, nous ne sommes pas mandatés pour réaliser la vente de ce terrain.
Marzy
TERRAINTerrain à vendre 732 m² au centre de MarzySitué en plein coeur de Marzy, ce joli terrain de 732 m² bénéficie d’un emplacement idéal, à proximité immédiate des écoles, de la pharmacie, du médecin et de la boulangerie.Dans un quartier calme et agréable, il offre un cadre parfait pour construire votre future maison et profiter d’un quotidien pratique, à deux pas de tout.Localisation : Marzy (58180)Surface : 732 m²Prix : à définirUne belle opportunité pour un projet de vie paisible, au coeur d’un village recherché proche de Nevers.Prix de vente: 65 000 euros honoraires charge vendeur. Pour visiter et vous accompagner dans votre projet, contactez Ralib REHAHLI agissant sous le statut de conseiller immobilier indépendant auprès de la sas Propriétés privées au (Numéro supprimé) ou par mail à (Email supprimé) Mandat n°427571.Adresse du siège: SAS PROPRIETES PRIVEES ZAC du chêne ferré 44 allée des cinq continents 44120 VERTOU – Carte professionnelle CPI 4401 2016 000 010 388, CCI Nantes-Saint Nazaire – RCS NANTES 487 624 777.Les informations sur les risques auxquels ce bien est exposé sont disponibles sur le site Géorisques : www. georisques. gouv. fr
Saint-Éloi
TERRAIN ET MAISONDécouvrez la Prunière, une maison neuve de 87,5 m² avec garage intégré, qui marie style moderne et confort au quotidien. Disponible en toit 2 ou 4 pans, elle séduit par son architecture élégante et son agencement fonctionnel, idéal pour un couple ou une jeune famille.L’intérieur se compose de 3 chambres lumineuses, d’un espace de vie ouvert et convivial, et d’un garage accolé offrant un rangement pratique et un accès direct à la maison. Chaque espace a été pensé pour offrir volume, clarté et bien-être.Conforme à la réglementation RE2020, la Prunière bénéficie d’une isolation performante, d’une consommation énergétique réduite et d’un confort thermique optimal tout au long de l’année.La Prunière 87,5 m² + garage, c’est le choix d’une maison moderne, économe et durable, pensée pour un mode de vie simple, serein et tourné vers l’avenir.
Saint-Éloi
TERRAINNous vous proposons à la vente un terrain exceptionnel de 923 m², idéalement situé au sein d’un quartier privilégié de Saint-Éloi, dans le département de la Nièvre, en Bourgogne-Franche-Comté. Ce terrain viabilisé vous offre une opportunité parfaite pour un projet de construction de maison au sein d’un environnement paisible et arboré. Avec un terrain plat, ce cadre champêtre vous permet de concevoir votre future habitation selon vos goûts, tout en bénéficiant d’un PLU non contraignant. Saint-Éloi est une charmante ville qui offre un cadre de vie agréable, alliant tranquillité et proximité des commodités essentielles. Vous trouverez en effet toutes les infrastructures nécessaires à votre quotidien : commerces, écoles, collèges et lycées à proximité, ainsi qu’un accès facile aux transports en commun et aux axes routiers importants. Ce secteur dynamique vous séduira par sa qualité de vie, ses espaces verts et son ambiance conviviale, tout en étant proche des attractions locales qui font le charme de la région bourguignonne. Ne manquez pas cette opportunité unique d’investir dans un terrain avec un potentiel exceptionnel. Pour plus d’informations, n’hésitez pas à nous contacter. À noter qu’en tant que constructeur, nous ne sommes pas mandatés pour réaliser la vente de ce terrain.
Saint-Éloi
TERRAIN ET MAISONNous vous proposons cette maison neuve, baptisée « »Prunière » », un modèle de construction alliant élégance et fonctionnalité, conçu pour répondre aux attentes des familles modernes. Avec une surface habitable de 99 m², cette maison est parfaitement dimensionnée pour offrir confort et bien-être à ses occupants. La « »Prunière » » se distingue par son architecture soignée, disponible en versions à 2 ou 4 pans, selon vos préférences, intégrant harmonieusement un garage. Cette caractéristique non seulement ajoute à l’esthétique de la maison mais assure également une fonctionnalité accrue, offrant un espace supplémentaire pour votre véhicule ou pour du rangement. L’intérieur de la maison est judicieusement agencé pour maximiser l’espace et la lumière naturelle. Elle comprend quatre chambres spacieuses, promettant un espace privé confortable pour chaque membre de la famille. Les quatre pièces de la maison sont conçues pour faciliter une vie familiale harmonieuse, avec des espaces de vie communs accueillants et bien pensés. Au-delà de son design attrayant, la « »Prunière » » est une maison basse consommation, conçue dans le strict respect de la réglementation environnementale RE2020. Cette norme garantit une efficacité énergétique optimale et une réduction significative de votre empreinte carbone. Vivre dans la « »Prunière » », c’est choisir un habitat respectueux de l’environnement, tout en bénéficiant d’un confort inégalé et de réductions substantielles sur vos factures d’énergie. Cette maison neuve représente une opportunité exceptionnelle de posséder une demeure moderne, durable et économe en énergie. La « »Prunière » » est la promesse d’un foyer chaleureux, où chaque détail a été pensé pour votre bien-être et celui de votre famille. Ne manquez pas cette chance de construire la maison de vos rêves, un lieu où de nouveaux souvenirs seront créés et chéris pour les années à venir.
Saint-Éloi
TERRAINDécouvrez ce terrain d’exception de 923 m², idéalement situé à Saint-Éloi, dans le département de la Nièvre, en Bourgogne-Franche-Comté. C’est l’emplacement parfait pour réaliser votre projet de construction de maison dans un cadre verdoyant et serein. Ce terrain est entièrement viabilisé et offre une surface plate, garantissant une facilité de construction. Ne manquez pas l’opportunité de faire de cet espace arboré votre futur chez-vous dans un quartier privilégié, en toute tranquillité. Saint-Éloi se distingue par son atmosphère paisible et sécurisée, tout en étant proche de toutes les commodités nécessaires à la vie quotidienne. Vous bénéficierez d’écoles à proximité, d’arrêts de bus pour un accès facile aux transports en commun, ainsi que de la proximité d’un axe routier important, facilitant vos déplacements. Avec un cadre champêtre et arboré, ce terrain vous promet une qualité de vie appréciable, ainsi que des prix attractifs pour le dernier lot disponible. Imaginez donc votre futur habitat, harmonieux et au calme, dans cette belle région riche en nature. Ce terrain représente une opportunité d’achat unique pour tous les acquéreurs désireux de s’installer dans un environnement agréable et pratique. N’attendez plus pour envisager votre futur projet ! À noter qu’en tant que constructeur, nous ne sommes pas mandatés pour réaliser la vente de ce terrain.
L’actualité immobilière à Coulanges-lès-Nevers
27/11/2023
02/11/2023
30/10/2023
20/10/2023
16/10/2023
16/10/2023