Images
Description
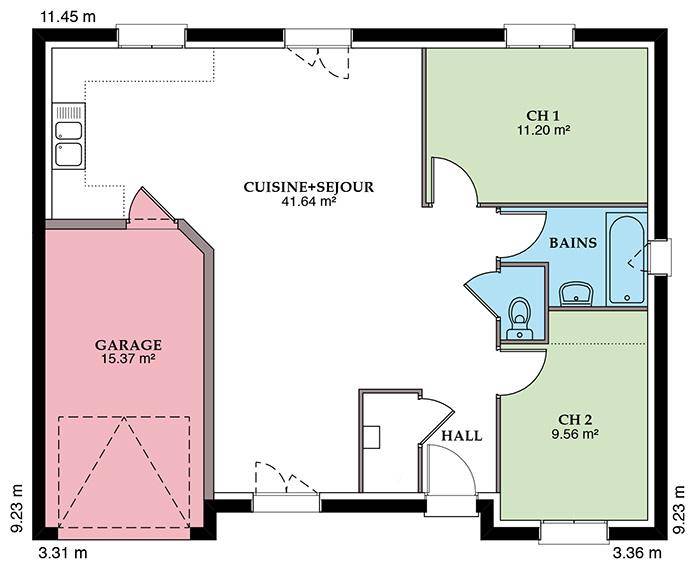
Nous vous proposons cette maison neuve, baptisée ""Prunière"", un modèle de construction alliant élégance et fonctionnalité, conçu pour répondre aux attentes des familles modernes. Avec une surface habitable de 99 m², cette maison est parfaitement dimensionnée pour offrir confort et bien-être à ses occupants.
La ""Prunière"" se distingue par son architecture soignée, disponible en versions à 2 ou 4 pans, selon vos préférences, intégrant harmonieusement un garage. Cette caractéristique non seulement ajoute à l'esthétique de la maison mais assure également une fonctionnalité accrue, offrant un espace supplémentaire pour votre véhicule ou pour du rangement.
L'intérieur de la maison est judicieusement agencé pour maximiser l'espace et la lumière naturelle. Elle comprend quatre chambres spacieuses, promettant un espace privé confortable pour chaque membre de la famille. Les quatre pièces de la maison sont conçues pour faciliter une vie familiale harmonieuse, avec des espaces de vie communs accueillants et bien pensés.
Au-delà de son design attrayant, la ""Prunière"" est une maison basse consommation, conçue dans le strict respect de la réglementation environnementale RE2020. Cette norme garantit une efficacité énergétique optimale et une réduction significative de votre empreinte carbone. Vivre dans la ""Prunière"", c'est choisir un habitat respectueux de l'environnement, tout en bénéficiant d'un confort inégalé et de réductions substantielles sur vos factures d'énergie.
Cette maison neuve représente une opportunité exceptionnelle de posséder une demeure moderne, durable et économe en énergie. La ""Prunière"" est la promesse d'un foyer chaleureux, où chaque détail a été pensé pour votre bien-être et celui de votre famille. Ne manquez pas cette chance de construire la maison de vos rêves, un lieu où de nouveaux souvenirs seront créés et chéris pour les années à venir.
Logement susceptibles de vous intéresser
Nous vous proposons de découvrir aussi cette sélection de logements situés à moins de 10km de Saint-Jean-aux-Amognes et qui seraient susceptibles de vous intéresser.
Saint-Éloi
TERRAIN ET MAISONDécouvrez la Prunière, une maison neuve de 87,5 m² avec garage intégré, qui marie style moderne et confort au quotidien. Disponible en toit 2 ou 4 pans, elle séduit par son architecture élégante et son agencement fonctionnel, idéal pour un couple ou une jeune famille.L’intérieur se compose de 3 chambres lumineuses, d’un espace de vie ouvert et convivial, et d’un garage accolé offrant un rangement pratique et un accès direct à la maison. Chaque espace a été pensé pour offrir volume, clarté et bien-être.Conforme à la réglementation RE2020, la Prunière bénéficie d’une isolation performante, d’une consommation énergétique réduite et d’un confort thermique optimal tout au long de l’année.La Prunière 87,5 m² + garage, c’est le choix d’une maison moderne, économe et durable, pensée pour un mode de vie simple, serein et tourné vers l’avenir.
Saint-Éloi
TERRAINNous vous proposons à la vente un terrain exceptionnel de 923 m², idéalement situé au sein d’un quartier privilégié de Saint-Éloi, dans le département de la Nièvre, en Bourgogne-Franche-Comté. Ce terrain viabilisé vous offre une opportunité parfaite pour un projet de construction de maison au sein d’un environnement paisible et arboré. Avec un terrain plat, ce cadre champêtre vous permet de concevoir votre future habitation selon vos goûts, tout en bénéficiant d’un PLU non contraignant. Saint-Éloi est une charmante ville qui offre un cadre de vie agréable, alliant tranquillité et proximité des commodités essentielles. Vous trouverez en effet toutes les infrastructures nécessaires à votre quotidien : commerces, écoles, collèges et lycées à proximité, ainsi qu’un accès facile aux transports en commun et aux axes routiers importants. Ce secteur dynamique vous séduira par sa qualité de vie, ses espaces verts et son ambiance conviviale, tout en étant proche des attractions locales qui font le charme de la région bourguignonne. Ne manquez pas cette opportunité unique d’investir dans un terrain avec un potentiel exceptionnel. Pour plus d’informations, n’hésitez pas à nous contacter. À noter qu’en tant que constructeur, nous ne sommes pas mandatés pour réaliser la vente de ce terrain.
Saint-Éloi
TERRAIN ET MAISONNous vous proposons cette maison neuve, baptisée « »Prunière » », un modèle de construction alliant élégance et fonctionnalité, conçu pour répondre aux attentes des familles modernes. Avec une surface habitable de 99 m², cette maison est parfaitement dimensionnée pour offrir confort et bien-être à ses occupants. La « »Prunière » » se distingue par son architecture soignée, disponible en versions à 2 ou 4 pans, selon vos préférences, intégrant harmonieusement un garage. Cette caractéristique non seulement ajoute à l’esthétique de la maison mais assure également une fonctionnalité accrue, offrant un espace supplémentaire pour votre véhicule ou pour du rangement. L’intérieur de la maison est judicieusement agencé pour maximiser l’espace et la lumière naturelle. Elle comprend quatre chambres spacieuses, promettant un espace privé confortable pour chaque membre de la famille. Les quatre pièces de la maison sont conçues pour faciliter une vie familiale harmonieuse, avec des espaces de vie communs accueillants et bien pensés. Au-delà de son design attrayant, la « »Prunière » » est une maison basse consommation, conçue dans le strict respect de la réglementation environnementale RE2020. Cette norme garantit une efficacité énergétique optimale et une réduction significative de votre empreinte carbone. Vivre dans la « »Prunière » », c’est choisir un habitat respectueux de l’environnement, tout en bénéficiant d’un confort inégalé et de réductions substantielles sur vos factures d’énergie. Cette maison neuve représente une opportunité exceptionnelle de posséder une demeure moderne, durable et économe en énergie. La « »Prunière » » est la promesse d’un foyer chaleureux, où chaque détail a été pensé pour votre bien-être et celui de votre famille. Ne manquez pas cette chance de construire la maison de vos rêves, un lieu où de nouveaux souvenirs seront créés et chéris pour les années à venir.
Saint-Éloi
TERRAINDécouvrez ce terrain d’exception de 923 m², idéalement situé à Saint-Éloi, dans le département de la Nièvre, en Bourgogne-Franche-Comté. C’est l’emplacement parfait pour réaliser votre projet de construction de maison dans un cadre verdoyant et serein. Ce terrain est entièrement viabilisé et offre une surface plate, garantissant une facilité de construction. Ne manquez pas l’opportunité de faire de cet espace arboré votre futur chez-vous dans un quartier privilégié, en toute tranquillité. Saint-Éloi se distingue par son atmosphère paisible et sécurisée, tout en étant proche de toutes les commodités nécessaires à la vie quotidienne. Vous bénéficierez d’écoles à proximité, d’arrêts de bus pour un accès facile aux transports en commun, ainsi que de la proximité d’un axe routier important, facilitant vos déplacements. Avec un cadre champêtre et arboré, ce terrain vous promet une qualité de vie appréciable, ainsi que des prix attractifs pour le dernier lot disponible. Imaginez donc votre futur habitat, harmonieux et au calme, dans cette belle région riche en nature. Ce terrain représente une opportunité d’achat unique pour tous les acquéreurs désireux de s’installer dans un environnement agréable et pratique. N’attendez plus pour envisager votre futur projet ! À noter qu’en tant que constructeur, nous ne sommes pas mandatés pour réaliser la vente de ce terrain.
Saint-Éloi
TERRAINNous vous présentons un terrain à vendre d’une surface généreuse de 1074 m², idéalement situé à Saint-Éloi, dans le département de la Nièvre en Bourgogne-Franche-Comté. Ce terrain viabilisé offre une multitude de possibilités pour réaliser votre projet de construction de maison, que ce soit pour une maison familiale ou un projet plus ambitieux. Profitez d’un cadre calme et sécurisé, parfait pour les amoureux de la nature, tout en étant proche des commodités nécessaires au quotidien. Saint-Éloi se situe dans une région riche en attraits, alliant tranquillité et accessibilité. À proximité, vous trouverez des écoles pour vos enfants, des transports en commun facilitant vos déplacements, ainsi qu’un accès rapide à un axe routier important. Les espaces verts et le cadre champêtre qui entourent le terrain vous offriront un cadre de vie agréable. De plus, des commerces et services de proximité garantiront votre confort au quotidien. C’est un endroit rêvé pour bâtir votre future maison ! Ne manquez pas cette opportunité unique d’acquérir un terrain au potentiel exceptionnel. Prenez contact dès maintenant pour explorer les possibilités qu’offre cette propriété ! À noter qu’en tant que constructeur, nous ne sommes pas mandatés pour réaliser la vente de ce terrain.
Saint-Éloi
TERRAIN ET MAISONNous vous proposons cette maison neuve, modèle Focus 91 SG, conçue pour répondre aux attentes des familles modernes à la recherche d’un habitat à la fois confortable, fonctionnel et respectueux de l’environnement. Avec une surface habitable de 91 m², cette maison basse consommation est parfaitement conforme à la norme RE2020, garantissant ainsi une efficacité énergétique optimale et un impact environnemental minimal. Le modèle Focus 91 SG se distingue par son agencement intelligent, offrant 4 chambres spacieuses et un total de 4 pièces bien réparties, permettant à chaque membre de la famille de bénéficier de son propre espace de vie. La conception de cette maison a été pensée pour maximiser le confort tout en minimisant les coûts énergétiques, grâce à une isolation performante, une excellente étanchéité à l’air, et l’utilisation de systèmes de chauffage et de production d’eau chaude sanitaire à haute efficacité énergétique. L’architecture de la Focus 91 SG allie esthétique et fonctionnalité, avec des lignes épurées et modernes qui s’intègrent harmonieusement dans tous les environnements. Les matériaux utilisés pour la construction sont choisis pour leur qualité, leur durabilité et leur faible impact écologique, conformément aux exigences de la RE2020. Cette maison est idéale pour les familles souhaitant s’installer dans un logement neuf, économique en énergie et respectueux de l’environnement. En choisissant le modèle Focus 91 SG, vous faites le choix d’un habitat durable qui contribuera à réduire votre empreinte carbone tout en offrant un cadre de vie exceptionnel à votre famille. N’attendez plus pour réaliser votre projet de vie dans une maison qui allie confort, modernité et responsabilité environnementale. La Focus 91 SG est la promesse d’un avenir durable et heureux pour vous et vos proches. Contactez-nous dès maintenant pour plus d’informations et débutons ensemble la construction de votre futur chez-vous.
Saint-Éloi
TERRAIN ET MAISONNous vous proposons cette maison neuve, baptisée « »Menilière » », un modèle de construction qui allie élégance et fonctionnalité, conçu pour répondre aux attentes des plus exigeants. Avec une surface habitable de 73 m², cette maison est idéalement pensée pour offrir confort et bien-être à ses occupants. La Menilière se distingue par son architecture moderne, disponible en versions à 2 ou 4 pans, permettant ainsi de s’adapter à vos préférences esthétiques et aux spécificités de votre terrain. Son design soigné et ses lignes épurées promettent une intégration harmonieuse dans son environnement. Ce modèle comprend 3 pièces bien agencées, dont 2 chambres spacieuses, offrant un cadre de vie idéal pour une petite famille ou un couple. Chaque espace a été pensé pour maximiser la lumière naturelle et le confort au quotidien. L’un des atouts majeurs de la Menilière est son garage intégré, une commodité appréciable qui ajoute une valeur fonctionnelle à l’ensemble, tout en préservant l’esthétique de la façade. Conscients des enjeux environnementaux actuels, nous avons conçu la Menilière pour qu’elle soit une maison basse consommation, pleinement conforme à la réglementation environnementale RE2020. Cela signifie que vous bénéficierez d’une isolation optimale, d’une excellente performance énergétique et d’une réduction significative de vos factures d’énergie, tout en contribuant à la protection de l’environnement. Choisir la Menilière, c’est opter pour une maison neuve qui combine confort, modernité et responsabilité écologique. Une opportunité à saisir pour ceux qui rêvent d’une habitation respectueuse de l’environnement sans compromis sur le style et le confort.
Saint-Éloi
TERRAINSébastien vous propose sur la commune de Saint Eloi , 2 terrains à bâtir d’une contenance d’environ 1200 m² . Proche des écoles , commerces et supermarchés , 5 minutes A77 et 10 minutes de NEVERS Viabilité en bordure de route
Saint-Benin-d'Azy
TERRAIN ET MAISONNous vous proposons cette maison neuve, baptisée « »Aubetière » », un modèle de construction qui allie élégance et performance énergétique, conforme aux exigences de la norme RE2020. Avec une surface habitable de 90 m², cette maison est conçue pour offrir un confort optimal tout en minimisant son impact sur l’environnement. L’Aubetière se décline en deux versions architecturales : vous avez le choix entre un toit traditionnel à 2 pans ou une version plus moderne à 4 pans, chacune pensée pour s’intégrer harmonieusement à son environnement. Cette maison basse consommation est un véritable engagement vers un avenir plus durable, garantissant une réduction significative de vos factures énergétiques grâce à une isolation optimale, une ventilation performante et l’utilisation de matériaux à faible impact environnemental. Ce modèle se compose de 4 pièces lumineuses et spacieuses, dont 4 chambres confortables, offrant ainsi un cadre de vie idéal pour une famille. Chaque espace a été pensé pour maximiser le confort et la fonctionnalité, tout en respectant les critères de la norme RE2020. Vous bénéficierez d’un intérieur à la fois moderne et chaleureux, avec la possibilité de personnaliser les finitions selon vos goûts et vos besoins. L’Aubetière représente l’opportunité de vivre dans une maison neuve, économique et respectueuse de l’environnement, sans compromis sur le style ou le confort. C’est l’assurance d’un investissement pérenne, conçu pour répondre aux défis de demain. N’attendez plus pour faire de ce lieu votre nouveau foyer, un espace où bien-être rime avec éco-responsabilité.
L’actualité immobilière à Saint-Jean-aux-Amognes
27/11/2023
02/11/2023
30/10/2023
20/10/2023
16/10/2023
16/10/2023