Maison à construire à Arsy (60190)
Images
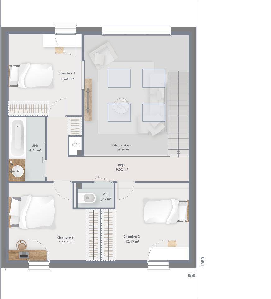
Description
Donnez vie à votre projet de construction avec Maison France Confort, n°1 en France ! Sur un terrain de 1060 m², nous vous proposons un projet complet : terrain, maison sur mesure et frais annexes inclus (viabilisation, raccordements, plans).
ARSY, charmante commune de l'Oise, offre un cadre paisible et verdoyant, idéal pour bâtir votre maison. Proche des écoles, des commerces et des grands axes, cet emplacement allie sérénité et praticité.
Exemple de projet : Maison familiale de 4 chambres avec une surface habitable de 122 m² comprenant 1 chambre parentale au rez de chaussée, 3 chambres et 1 salle de bain à l'étage.
Une opportunité unique à ne pas manquer ! Contactez XAVIER DOS SANTOS de chez MAISONS FRANCE CONFORT, au (Numéro supprimé), dès aujourd'hui pour en savoir plus et construire votre futur chez-vous.
Logement susceptibles de vous intéresser
Nous vous proposons de découvrir aussi cette sélection de logements situés à moins de 10km de Arsy et qui seraient susceptibles de vous intéresser.

Jaux
TERRAINVENTE d’un terrain de 1 448 m² à JauxIDÉALEMENT SITUÉ – VUE DÉGAGÉEÀ vendre à quelques kilomètres de Compiègne à Jaux (60880), grand terrain. Il est prêt à accueillir votre résidence principale ou secondaire pour toute la famille. Ce terrain, avec une exposition sud-ouest, profite d’une vue dégagée. Dans un secteur recherché, ce terrain idéalement situé est proche des écoles et des commerces. Il y a trois établissements scolaires dans la commune et dont l’École Primaire Privée Hors Contrat du Hêtre Bienveillant et le Collège du Hetre Bienveillant. Côté transports en commun, on trouve six gares à moins de 10 minutes en voiture. L’autoroute A1 et la nationale N31 sont accessibles à moins de 5 km. Il y a trois commerces à quelques minutes de la propriété.Il est proposé à l’achat pour 89 000 €. N’hésitez pas à prendre contact avec Xavier DOS SANTOS ((Numéro supprimé)) pour plus d’informations sur ce terrain ou sur les démarches à suivre. Maisons France Confort Compiègne vous accompagne dans tous vos projets immobiliers et à toutes les étapes de l’achat.

Jaux
TERRAIN ET MAISONJaux : maison de 3 pièces (71 m²) à vendreIDÉALEMENT SITUÉE – MAISON 3 PIÈCES NEUVEÀ vendre : à quelques kilomètres de Compiègne, nous sommes ravis de vous présenter cette maison de 3 pièces de plain-pied de 71 m² et de 1 448 m² de terrain, idéalement située dans Jaux (60880). Son intérieur propose deux chambres, une cuisine et une salle de bains.La maison est neuve.Cette maison se trouve dans un quartier prisé. Trois établissements scolaires y sont implantés et, parmi lesquels l’École Primaire Privée Hors Contrat du Hêtre Bienveillant et le Collège du Hetre Bienveillant. Côté transports, il y a six gares à moins de 10 minutes en voiture. L’autoroute A1 et la nationale N31 sont accessibles à moins de 5 km. On trouve trois commerces à quelques minutes à peine.Elle est proposée à l’achat pour 265 000 €.Prenez contact avec Xavier DOS SANTOS (tél : (Numéro supprimé)) pour toute question sur la maison ou sur les modalités de vente. Maisons France Confort Compiègne est là pour vous accompagner à toutes les étapes de votre projet.

Bailleul-le-Soc
TERRAIN ET MAISONMaison de plain-pied en L avec garage de 90 m², normes RE 2020 , située à BAILLEUL LE SOC , sur un terrain de 520 m².Vue dégagée , environnement paisible et verdoyant , à deux pas de l’école et du périscolaire , Autoroute A1 en 15 minutes , permettant de relier l’aéroport de Roissy en 30 minutes .Cette maison RE 2020, de 3 chambres avec rangements intégrés , séjour carrelé ,1 salle d’eau équipées ,cellier et garage , packs alarme et domotique , baie aluminium , volets roulants centralisés et intégrés à la maçonnerie, plancher béton.Plans 100% personnalisables et modifiables .Accompagnement intégral : Financement , étude technique du terrain , gestion administrative .Frais annexes ( raccordements , viabilisation , puisards, enlèvements des terres excédentaires , chemin d’accès )inclus dans le prix de cette annonce .Contactez moi pour une étude gratuite .Rendez vous en agence ou à votre domicile .M. DOS SANTOS XAVIER(Numéro supprimé)

Bailleul-le-Soc
TERRAIN ET MAISONMaison de Rez de chaussée + Combles aménagés de 150 m² de surface habitable avec une, normes RE 2020, située à BAILLEUL LE SOC, sur un terrain de 520 m².Vue dégagée, environnement paisible et verdoyant, à deux pas de l’école et du périscolaire, Autoroute A1 en 15 minutes, permettant de relier l’aéroport de Roissy en 30 minutes.Cette maison RE 2020, de 5 chambres avec rangements intégrés avec 2 suites parentales dont 1 au rez de chaussée, séjour carrelé ,1 salle d’eau équipées ,cellier et garage intégré, packs alarme et domotique, baie aluminium, volets roulants centralisés et intégrés à la maçonnerie, plancher béton.Plans 100% personnalisables et modifiables .Accompagnement intégral : Financement , étude technique du terrain , gestion administrative .Frais annexes ( raccordements , viabilisation , puisards, enlèvements des terres excédentaires , chemin d’accès )inclus dans le prix de cette annonce .Contactez moi pour une étude gratuite .Rendez vous en agence ou à votre domicile .M. DOS SANTOS XAVIER(Numéro supprimé)

Bailleul-le-Soc
TERRAIN ET MAISONMaison contemporaine avec un garage accolé, de type R+combles de 90 m² de surface habitable, normes RE 2020, située à BAILLEUL LE SOC, sur un terrain de 520 m².Vue dégagée, environnement paisible et verdoyant, à deux pas de l’école et du périscolaire, Autoroute A1 en 15 minutes, permettant de relier l’aéroport de Roissy en 30 minutes.Cette maison RE 2020, de 3 chambres avec rangements intégrés dont 1 chambre au rdc, séjour carrelé ,1 salle d’eau équipées ,cellier et garage intégré, packs alarme et domotique, baie aluminium, volets roulants centralisés et intégrés à la maçonnerie, plancher béton.Plans 100% personnalisables et modifiables .Accompagnement intégral : Financement , étude technique du terrain , gestion administrative .Frais annexes ( raccordements , viabilisation , puisards, enlèvements des terres excédentaires , chemin d’accès )inclus dans le prix de cette annonce .Contactez moi pour une étude gratuite .Rendez vous en agence ou à votre domicile .M. DOS SANTOS XAVIER(Numéro supprimé)

Bailleul-le-Soc
TERRAIN ET MAISONMaison contemporaine avec un garage accolé, de type R+combles de 90 m² de surface habitable, normes RE 2020, située à BAILLEUL LE SOC, sur un terrain de 520 m².Vue dégagée, environnement paisible et verdoyant, à deux pas de l’école et du périscolaire, Autoroute A1 en 15 minutes, permettant de relier l’aéroport de Roissy en 30 minutes.Cette maison RE 2020, de 3 chambres avec rangements intégrés dont 1 chambre au rdc, séjour carrelé ,1 salle d’eau équipées ,cellier et garage intégré, packs alarme et domotique, baie aluminium, volets roulants centralisés et intégrés à la maçonnerie, plancher béton.Plans 100% personnalisables et modifiables .Accompagnement intégral : Financement , étude technique du terrain , gestion administrative .Frais annexes ( raccordements , viabilisation , puisards, enlèvements des terres excédentaires , chemin d’accès )inclus dans le prix de cette annonce .Contactez moi pour une étude gratuite .Rendez vous en agence ou à votre domicile .M. DOS SANTOS XAVIER(Numéro supprimé)

Arsy
TERRAIN ET MAISONDonnez vie à votre projet de construction avec Maison France Confort, n°1 en France ! Sur un terrain de 1060 m², nous vous proposons un projet complet : terrain, maison sur mesure et frais annexes inclus (viabilisation, raccordements, plans).ARSY, charmante commune de l’Oise, offre un cadre paisible et verdoyant, idéal pour bâtir votre maison. Proche des écoles, des commerces et des grands axes, cet emplacement allie sérénité et praticité.Exemple de projet : Maison de type plain pied de 71 m² avec deux chambres et 1 salle de bain. SANS GARAGE.Une opportunité unique à ne pas manquer ! Contactez XAVIER DOS SANTOS de chez MAISONS FRANCE CONFORT, au (Numéro supprimé), dès aujourd’hui pour en savoir plus et construire votre futur chez-vous.

Arsy
TERRAIN ET MAISONDonnez vie à votre projet de construction avec Maison France Confort, n°1 en France ! Sur un terrain de 1060 m², nous vous proposons un projet complet : terrain, maison sur mesure et frais annexes inclus (viabilisation, raccordements, plans).ARSY, charmante commune de l’Oise, offre un cadre paisible et verdoyant, idéal pour bâtir votre maison. Proche des écoles, des commerces et des grands axes, cet emplacement allie sérénité et praticité.Exemple de projet : Maison familiale de 4 chambres, de type R+1 avec un garage intégré. Surface habitable de 96 m².Une opportunité unique à ne pas manquer ! Contactez XAVIER DOS SANTOS de chez MAISONS FRANCE CONFORT, au (Numéro supprimé), dès aujourd’hui pour en savoir plus et construire votre futur chez-vous.

Arsy
TERRAIN ET MAISONDonnez vie à votre projet de construction avec Maison France Confort, n°1 en France ! Sur un terrain de 1060 m², nous vous proposons un projet complet : terrain, maison sur mesure et frais annexes inclus (viabilisation, raccordements, plans).ARSY, charmante commune de l’Oise, offre un cadre paisible et verdoyant, idéal pour bâtir votre maison. Proche des écoles, des commerces et des grands axes, cet emplacement allie sérénité et praticité.Exemple de projet : Maison familiale de 4 chambres, de type R+1 avec un garage intégré. Surface habitable de 96 m².Une opportunité unique à ne pas manquer ! Contactez XAVIER DOS SANTOS de chez MAISONS FRANCE CONFORT, au (Numéro supprimé), dès aujourd’hui pour en savoir plus et construire votre futur chez-vous.
L’actualité immobilière à Arsy





