Images
Description
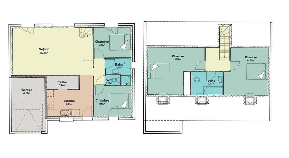
Sur ce terrain, nous vous proposons cette maison neuve : la Focus EVO, un modèle unique de 110 m² conçu par Babeau-Seguin, constructeur offrant le meilleur rapport qualité/prix du marché. Cette maison basse consommation est conforme à la norme RE2020, garantissant des performances énergétiques exceptionnelles.
La Focus EVO se distingue par son concept évolutif, alliant une maison neuve prête à vivre et une maison prête à finir. Livrée avec 73 m² habitables, elle est conçue pour évoluer avec vos besoins futurs. Grâce à ses combles aménageables, vous pouvez facilement augmenter votre surface habitable à 110 m², ajoutant ainsi deux chambres supplémentaires et une salle de bain, pour un total de 4 chambres et 2 salles de bains.
Les caractéristiques principales de cette maison incluent un garage intégré, un cellier, et des combles aménageables. Les options les plus demandées par nos clients, telles que la version Investisseur et les prises USB murales, sont également disponibles.
La Focus EVO est idéale pour tous ceux qui recherchent une maison complète à un prix compétitif. Elle comprend une grande pièce de jour traversante, 4 chambres, une salle de bain, et un garage de 15 m². Que vous soyez un jeune couple, un célibataire ou une famille en pleine expansion, cette maison saura s'adapter à vos besoins et à vos envies.
Ne manquez pas cette occasion unique de devenir propriétaire d'une maison évolutive, économe en énergie et conforme aux dernières normes environnementales. Contactez-nous dès aujourd'hui pour plus d'informations et pour planifier une visite.
Logement susceptibles de vous intéresser
Nous vous proposons de découvrir aussi cette sélection de logements situés à moins de 10km de Avricourt et qui seraient susceptibles de vous intéresser.

Carrépuis
TERRAINNous vous présentons un terrain exceptionnel à vendre, offrant une surface généreuse de 796 m². Ce terrain, situé à Carrépuis dans la magnifique région des Hauts-de-France, représente une opportunité rare pour tous ceux souhaitant réaliser un projet de construction de maison. Arboré et non-viabilisé, il possède des caractéristiques uniques qui séduiront les amateurs de tranquillité et de nature. Idéalement situé dans le département de la Somme, Carrépuis est une commune qui allie authenticité et modernité. Vous y trouverez toutes les commodités nécessaires à votre quotidien, ainsi que des attractions locales qui feront le bonheur de toute la famille. Que ce soit pour des activités de loisirs, des balades en pleine nature ou des visites culturelles, cette ville a tout pour plaire. Profitez de ce cadre de vie où la qualité de vie est au rendez-vous, tout en étant à proximité des grandes villes comme Amiens. Ne manquez pas cette opportunité unique d’acquérir un terrain au potentiel illimité. Prenez dès maintenant contact pour découvrir ce bien rare qui n’attend plus que votre projet d’avenir. À noter qu’en tant que constructeur, nous ne sommes pas mandatés pour réaliser la vente de ce terrain.

Carrépuis
TERRAIN ET MAISONSur ce terrain, nous vous proposons cette maison neuve, le modèle Ménilière, une maison plain-pied moderne qui intègre de base un garage et une longue galerie sur la face avant. Avec une surface de 100 m², cette maison dispose de 4 chambres et de 4 pièces, offrant ainsi un espace de vie confortable et fonctionnel pour toute la famille.Véritable « »tout-en-un » » de la maison individuelle, ce modèle est idéal pour votre projet de construction sur-mesure. La Ménilière est disponible avec un toit à 2 pans ou 4 pans, selon vos préférences esthétiques. Le garage intégré et la galerie avant ajoutent une touche pratique et élégante à cette maison.Les options les plus demandées par nos clients, telles que les menuiseries en aluminium et le sous-sol, sont également disponibles pour personnaliser davantage votre future maison. De plus, cette maison neuve est basse consommation et conforme à la réglementation environnementale RE2020, garantissant ainsi des performances énergétiques optimales et un impact environnemental réduit.Le constructeur Babeau-Seguin, reconnu pour offrir le meilleur rapport qualité/prix du marché, vous accompagne dans la réalisation de votre projet immobilier. Avec un prix serré et une personnalisation facile, il n’est pas étonnant que la Ménilière soit dans le top 5 des ventes de Babeau-Seguin.Ne manquez pas cette opportunité unique de devenir propriétaire d’une maison moderne, économe en énergie et parfaitement adaptée à vos besoins. Contactez-nous dès maintenant pour plus d’informations et pour planifier une visite de ce modèle exceptionnel.

Libermont
TERRAINDécouvrez ce superbe terrain de 1464 m² situé à Libermont, dans l’Oise. Ce terrain non viabilisé offre une vue dégagée et se trouve dans un cadre naturel agréable, idéal pour réaliser votre projet de construction de maison. Sa configuration spacieuse vous permettra de donner vie à vos ambitions architecturales, le tout dans un environnement calme et serein. La localisation de ce terrain vous garantit un cadre de vie agréable tout en étant accessible aux villes environnantes. Ce terrain présente un potentiel unique pour les acheteurs désireux de construire leur rêve dans un cadre idyllique. À noter qu’en tant que constructeur, nous ne sommes pas mandatés pour réaliser la vente de ce terrain.

Libermont
TERRAIN ET MAISONSur ce terrain, nous vous proposons cette maison neuve, le modèle Ménilière, une maison plain-pied moderne qui intègre de base un garage et une longue galerie sur la face avant. Avec une surface de 100 m², cette maison dispose de 4 chambres et de 4 pièces, offrant ainsi un espace de vie confortable et fonctionnel pour toute la famille.Véritable « »tout-en-un » » de la maison individuelle, ce modèle est idéal pour votre projet de construction sur-mesure. La Ménilière est disponible avec un toit à 2 pans ou 4 pans, selon vos préférences esthétiques. Le garage intégré et la galerie avant ajoutent une touche pratique et élégante à cette maison.Les options les plus demandées par nos clients, telles que les menuiseries en aluminium et le sous-sol, sont également disponibles pour personnaliser davantage votre future maison. De plus, cette maison neuve est basse consommation et conforme à la réglementation environnementale RE2020, garantissant ainsi des performances énergétiques optimales et un impact environnemental réduit.Le constructeur Babeau-Seguin, reconnu pour offrir le meilleur rapport qualité/prix du marché, vous accompagne dans la réalisation de votre projet immobilier. Avec un prix serré et une personnalisation facile, il n’est pas étonnant que la Ménilière soit dans le top 5 des ventes de Babeau-Seguin.Ne manquez pas cette opportunité unique de devenir propriétaire d’une maison moderne, économe en énergie et parfaitement adaptée à vos besoins. Contactez-nous dès maintenant pour plus d’informations et pour planifier une visite de ce modèle exceptionnel.

Évricourt
TERRAINDécouvrez cette parcelle de terrain non-viabilisé de 893 m², idéalement située à Évricourt, dans le département de l’Oise, en région Hauts-de-France. Ce terrain offre une superbe vue dégagée sur un cadre champêtre, garantissant un environnement calme et apaisant pour votre futur projet de construction de maison. Grâce à son prix attractif, c’est une opportunité parfaite pour les individus ou les familles souhaitant construire leur résidence dans un cadre serein. Ce terrain présente un potentiel indéniable pour ceux qui souhaitent investir dans une propriété unique. N’attendez plus pour saisir cette occasion ! À noter qu’en tant que constructeur, nous ne sommes pas mandatés pour réaliser la vente de ce terrain.

Évricourt
TERRAIN ET MAISONSur ce terrain, nous vous proposons cette maison neuve, la Ménilière, un modèle plain-pied moderne qui saura répondre à toutes vos attentes. Avec une surface de 73 m², cette maison dispose de 3 pièces, dont 2 chambres, et intègre de base un garage ainsi qu’une longue galerie sur la face avant.Véritable « »tout-en-un » » de la maison individuelle, la Ménilière est idéale pour votre projet de construction sur-mesure. Elle est disponible avec un toit à 2 pans ou 4 pans, selon vos préférences esthétiques. Le garage intégré et la galerie avant ajoutent une touche de praticité et de confort à votre quotidien.Parmi les options les plus demandées par nos clients, vous pouvez opter pour des menuiseries en aluminium et un sous-sol, afin de personnaliser encore davantage votre future maison.Cette maison neuve est basse consommation et conforme à la RE2020, garantissant ainsi des performances énergétiques optimales et un respect des normes environnementales actuelles.Le constructeur Babeau-Seguin, reconnu pour offrir le meilleur rapport qualité/prix du marché, vous accompagne dans la réalisation de votre projet de vie. Avec un prix serré et une personnalisation facile, il n’est pas étonnant que la Ménilière soit dans le top 5 des ventes de Babeau-Seguin.Ne manquez pas cette opportunité unique de devenir propriétaire d’une maison moderne, fonctionnelle et économe en énergie. Contactez-nous dès maintenant pour plus d’informations et pour visiter ce modèle sur notre terrain.

Cuy
TERRAINCe terrain non-viabilisé d’une superficie de 605 m², situé à Cuy dans l’Oise (60310), vous offre une opportunité rare pour réaliser le projet de construction de vos rêves. Ce cadre champêtre et au calme, sans vis-à-vis, est idéal pour bâtir une maison qui saura combiner modernité et respect de l’environnement. Vous profiterez ainsi d’une qualité de vie exceptionnelle entourée par la nature, tout en ayant un accès facile à toutes les commodités nécessaires. Ne laissez pas passer cette opportunité unique d’acquérir un terrain avec un potentiel incroyable. À noter qu’en tant que constructeur, nous ne sommes pas mandatés pour réaliser la vente de ce terrain.

Cuy
TERRAIN ET MAISONSur ce terrain, nous vous proposons cette maison neuve, modèle Prunière, l’un des modèles les plus vendus par Babeau-Seguin, constructeur offrant le meilleur rapport qualité/prix du marché. Figurant dans le top 5 des maisons individuelles Babeau-Seguin, cette maison plain-pied Prunière séduit par son renfoncement qui casse la monotonie de la façade avant et offre un abri de seuil.Avec une surface de 85 m², cette maison traditionnelle comprend 4 pièces, dont 3 chambres, et un garage intégré. Elle se décline en versions à 2 pans ou 4 pans, selon vos préférences. Parfaitement équipée, la Prunière est en effet la maison à petit prix par excellence.En plus de son design attrayant, cette maison neuve est basse consommation et conforme à la RE2020, garantissant ainsi des performances énergétiques optimales et un confort de vie inégalé. Ne manquez pas cette opportunité de construire la maison de vos rêves avec Babeau-Seguin, le constructeur qui allie qualité, prix et satisfaction client.

Avricourt
TERRAINDécouvrez un terrain d’exception à vendre, situé dans la belle commune d’Avricourt, dans le département de l’Oise en région Hauts-de-France. Avec une surface généreuse de 570 m², ce terrain non-viabilisé offre une vue dégagée et un cadre de vie au calme. Idéal pour concrétiser votre projet de construction de maison, il se distingue par son ambiance paisible, propice à la création d’un foyer chaleureux et accueillant. Ne manquez pas cette opportunité unique d’acquérir un terrain au potentiel élevé, parfait pour y bâtir votre future maison. Réfléchissez à cette chance de vous établir dans une commune qui allie tranquillité et proximité des services. À noter qu’en tant que constructeur, nous ne sommes pas mandatés pour réaliser la vente de ce terrain.
L’actualité immobilière à Avricourt





