Images
Description
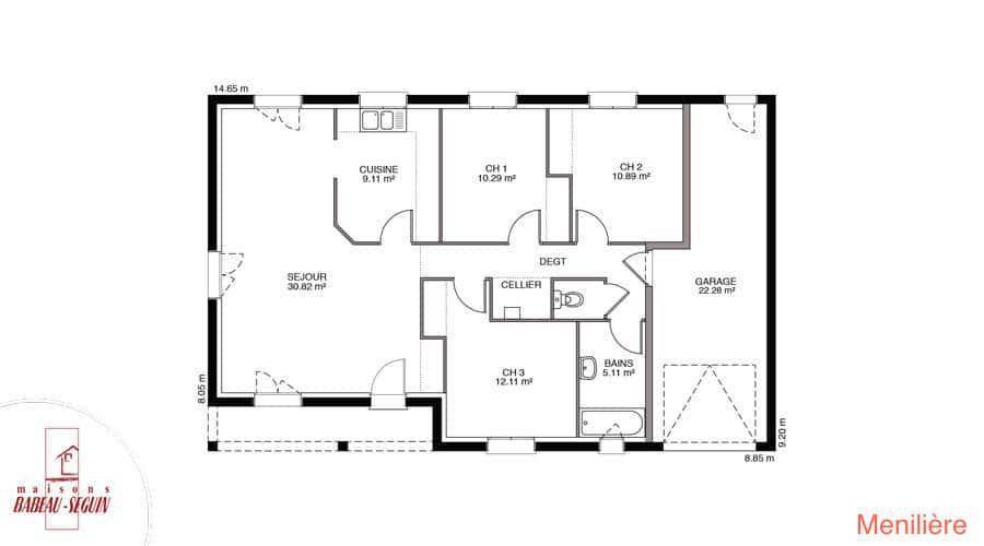
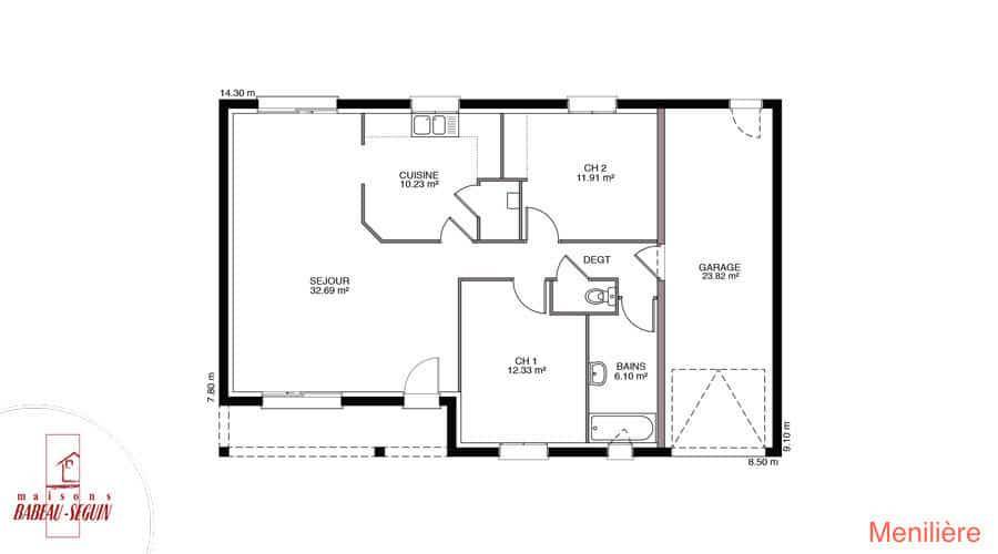
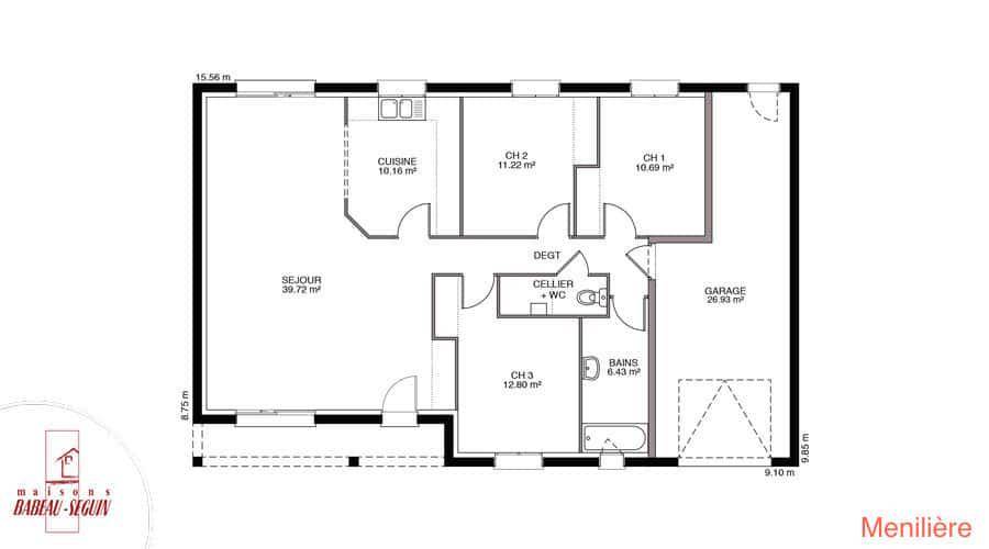
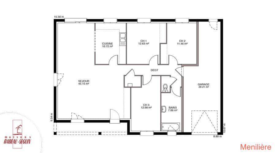
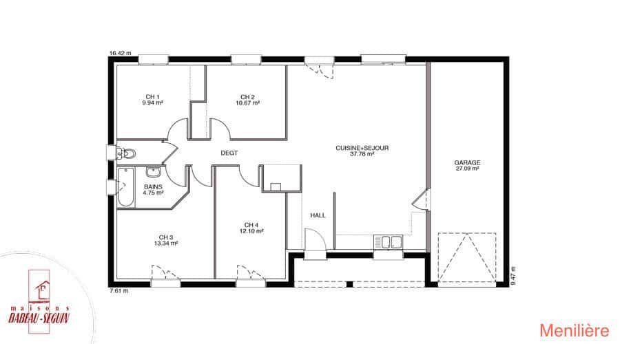
Sur ce terrain, nous vous proposons cette maison neuve, le modèle Ménilière, une maison plain-pied moderne qui intègre de base un garage et une longue galerie sur la face avant. Avec une surface de 100 m², cette maison dispose de 4 chambres et de 4 pièces, offrant ainsi un espace de vie confortable et fonctionnel pour toute la famille.
Véritable ""tout-en-un"" de la maison individuelle, ce modèle est idéal pour votre projet de construction sur-mesure. La Ménilière est disponible avec un toit à 2 pans ou 4 pans, selon vos préférences esthétiques. Le garage intégré et la galerie avant ajoutent une touche pratique et élégante à cette maison.
Les options les plus demandées par nos clients, telles que les menuiseries en aluminium et le sous-sol, sont également disponibles pour personnaliser davantage votre future maison. De plus, cette maison neuve est basse consommation et conforme à la réglementation environnementale RE2020, garantissant ainsi des performances énergétiques optimales et un impact environnemental réduit.
Le constructeur Babeau-Seguin, reconnu pour offrir le meilleur rapport qualité/prix du marché, vous accompagne dans la réalisation de votre projet immobilier. Avec un prix serré et une personnalisation facile, il n'est pas étonnant que la Ménilière soit dans le top 5 des ventes de Babeau-Seguin.
Ne manquez pas cette opportunité unique de devenir propriétaire d'une maison moderne, économe en énergie et parfaitement adaptée à vos besoins. Contactez-nous dès maintenant pour plus d'informations et pour planifier une visite de ce modèle exceptionnel.
Logement susceptibles de vous intéresser
Nous vous proposons de découvrir aussi cette sélection de logements situés à moins de 10km de Libermont et qui seraient susceptibles de vous intéresser.

Libermont
TERRAINDécouvrez ce superbe terrain de 1464 m² situé à Libermont, dans l’Oise. Ce terrain non viabilisé offre une vue dégagée et se trouve dans un cadre naturel agréable, idéal pour réaliser votre projet de construction de maison. Sa configuration spacieuse vous permettra de donner vie à vos ambitions architecturales, le tout dans un environnement calme et serein. La localisation de ce terrain vous garantit un cadre de vie agréable tout en étant accessible aux villes environnantes. Ce terrain présente un potentiel unique pour les acheteurs désireux de construire leur rêve dans un cadre idyllique. À noter qu’en tant que constructeur, nous ne sommes pas mandatés pour réaliser la vente de ce terrain.

Libermont
TERRAIN ET MAISONSur ce terrain, nous vous proposons cette maison neuve, le modèle Ménilière, une maison plain-pied moderne qui intègre de base un garage et une longue galerie sur la face avant. Avec une surface de 100 m², cette maison dispose de 4 chambres et de 4 pièces, offrant ainsi un espace de vie confortable et fonctionnel pour toute la famille.Véritable « »tout-en-un » » de la maison individuelle, ce modèle est idéal pour votre projet de construction sur-mesure. La Ménilière est disponible avec un toit à 2 pans ou 4 pans, selon vos préférences esthétiques. Le garage intégré et la galerie avant ajoutent une touche pratique et élégante à cette maison.Les options les plus demandées par nos clients, telles que les menuiseries en aluminium et le sous-sol, sont également disponibles pour personnaliser davantage votre future maison. De plus, cette maison neuve est basse consommation et conforme à la réglementation environnementale RE2020, garantissant ainsi des performances énergétiques optimales et un impact environnemental réduit.Le constructeur Babeau-Seguin, reconnu pour offrir le meilleur rapport qualité/prix du marché, vous accompagne dans la réalisation de votre projet immobilier. Avec un prix serré et une personnalisation facile, il n’est pas étonnant que la Ménilière soit dans le top 5 des ventes de Babeau-Seguin.Ne manquez pas cette opportunité unique de devenir propriétaire d’une maison moderne, économe en énergie et parfaitement adaptée à vos besoins. Contactez-nous dès maintenant pour plus d’informations et pour planifier une visite de ce modèle exceptionnel.

Avricourt
TERRAINDécouvrez un terrain d’exception à vendre, situé dans la belle commune d’Avricourt, dans le département de l’Oise en région Hauts-de-France. Avec une surface généreuse de 570 m², ce terrain non-viabilisé offre une vue dégagée et un cadre de vie au calme. Idéal pour concrétiser votre projet de construction de maison, il se distingue par son ambiance paisible, propice à la création d’un foyer chaleureux et accueillant. Ne manquez pas cette opportunité unique d’acquérir un terrain au potentiel élevé, parfait pour y bâtir votre future maison. Réfléchissez à cette chance de vous établir dans une commune qui allie tranquillité et proximité des services. À noter qu’en tant que constructeur, nous ne sommes pas mandatés pour réaliser la vente de ce terrain.

Avricourt
TERRAIN ET MAISONSur ce terrain, nous vous proposons cette maison neuve : la Focus EVO, un modèle unique de 110 m² conçu par Babeau-Seguin, constructeur offrant le meilleur rapport qualité/prix du marché. Cette maison basse consommation est conforme à la norme RE2020, garantissant des performances énergétiques exceptionnelles.La Focus EVO se distingue par son concept évolutif, alliant une maison neuve prête à vivre et une maison prête à finir. Livrée avec 73 m² habitables, elle est conçue pour évoluer avec vos besoins futurs. Grâce à ses combles aménageables, vous pouvez facilement augmenter votre surface habitable à 110 m², ajoutant ainsi deux chambres supplémentaires et une salle de bain, pour un total de 4 chambres et 2 salles de bains.Les caractéristiques principales de cette maison incluent un garage intégré, un cellier, et des combles aménageables. Les options les plus demandées par nos clients, telles que la version Investisseur et les prises USB murales, sont également disponibles.La Focus EVO est idéale pour tous ceux qui recherchent une maison complète à un prix compétitif. Elle comprend une grande pièce de jour traversante, 4 chambres, une salle de bain, et un garage de 15 m². Que vous soyez un jeune couple, un célibataire ou une famille en pleine expansion, cette maison saura s’adapter à vos besoins et à vos envies.Ne manquez pas cette occasion unique de devenir propriétaire d’une maison évolutive, économe en énergie et conforme aux dernières normes environnementales. Contactez-nous dès aujourd’hui pour plus d’informations et pour planifier une visite.

Beaurains-lès-Noyon
TERRAINNous sommes ravis de vous présenter ce terrain exceptionnel à vendre, situé dans la charmante commune de Beaurains-lès-Noyon, dans l’Oise. S’étendant sur une superficie de 517 m², ce terrain non viabilisé offre de nombreuses possibilités pour un projet de construction de maison. Avec sa vue dégagée et son emplacement au calme, ce bien se distingue par son potentiel à accueillir la maison de vos rêves. Ce terrain est une opportunité rare à saisir pour ceux qui souhaitent construire dans un environnement privilégié. N’attendez plus pour envisager votre futur projet immobilier dans cette belle région. À noter qu’en tant que constructeur, nous ne sommes pas mandatés pour réaliser la vente de ce terrain.

Beaurains-lès-Noyon
TERRAIN ET MAISONSur ce terrain, nous vous proposons cette maison neuve : la Focus EVO City, conçue par Babeau-Seguin, constructeur offrant le meilleur rapport qualité/prix du marché. Découvrez l’innovant concept de la Focus EVO City, une maison qui combine les atouts d’une maison neuve clé en main avec la flexibilité et l’avantage tarifaire du prêt à finir ! Cette maison de 100 m², conçue pour évoluer, vous offre à sa livraison, une vaste pièce de vie lumineuse, 4 chambres et une salle de bain, avec des performances énergétiques exceptionnelles et un coût de construction abordable. Surtout, cette maison est conçue dès le départ pour évoluer.Une maison prête à s’adapterQue votre famille s’agrandisse ou que vous ayez besoin d’une chambre d’amis, la Focus EVO City se distingue en tant que première maison Babeau-Seguin prête à évoluer. Elle intègre une trémie pour accueillir un futur escalier, ainsi que des chevêtres de toit prévus pour les fenêtres de vos futurs combles aménagés. Notre plan détaillé vous guide dans l’aménagement de vos combles, faisant passer votre maison de 100 m² à une surface encore plus généreuse avec des espaces supplémentaires, transformant la Focus EVO City en véritable maison familiale !Une maison qui évoluera avec vos besoinsQue vous soyez un jeune couple désirant savourer la vie à deux avant l’arrivée d’un heureux événement, ou bien un célibataire passionné de bricolage souhaitant sa salle de projection privée, la Focus EVO City est la maison qui saura évoluer au rythme de votre vie et de vos aspirations !Idéale pour ce terrain et pour les petits budgets, cette Focus EVO City est aussi bien équipée que l’ensemble de nos modèles. Cette dernière est une maison neuve écologique répondant aux standards stricts de la RE2020. Économie à la construction, économie à la consommation !Les caractéristiques principales de cette maison incluent des combles aménageables, un excellent rapport qualité/prix, une conception évolutive et un cellier. Les options les

Crisolles
TERRAINPrix : 40000 €.Sur ce terrain, réalisez votre projet de construction de maison RE 2020 avec PAVILLONS D'ÎLE-DE-FRANCE (constructeur de maisons de gamme et sur-mesure depuis plus de 50 ans) :- Plan sur-mesure et personnalisé de 2 à 5 chambres- Mode de chauffage au choix- Grands choix d'équipements et de prestations- Matériaux de qualité selon les normes en vigueur- Accompagnement dans le choix et l’acquisition du terrainDemandez une étude gratuite et personnalisée de votre projet de construction sur ce terrain !Contactez Anthony CALMELS au (Numéro supprimé) ou au (Numéro supprimé) (Pavillons d'Île-de-France – Agence de Noyon).Prix hors frais de notaire. Terrain sélectionné et vu pour vous sous réserve de disponibilité et au prix indiqué par notre partenaire foncier. Visuels non contractuels.Cette annonce a été créée et diffusée avec le logiciel VITAHOME.

Eppeville
TERRAINPrix : 45000 €.Sur ce terrain, réalisez votre projet de construction de maison RE 2020 avec PAVILLONS D'ÎLE-DE-FRANCE (constructeur de maisons de gamme et sur-mesure depuis plus de 50 ans) :- Plan sur-mesure et personnalisé de 2 à 5 chambres- Mode de chauffage au choix- Grands choix d'équipements et de prestations- Matériaux de qualité selon les normes en vigueur- Accompagnement dans le choix et l’acquisition du terrainDemandez une étude gratuite et personnalisée de votre projet de construction sur ce terrain !Contactez Anthony CALMELS au (Numéro supprimé) ou au (Numéro supprimé) (Pavillons d'Île-de-France – Agence de Noyon).Prix hors frais de notaire. Terrain sélectionné et vu pour vous sous réserve de disponibilité et au prix indiqué par notre partenaire foncier. Visuels non contractuels.Cette annonce a été créée et diffusée avec le logiciel VITAHOME.

Beaulieu-les-Fontaines
TERRAINPrix : 59000 €.Sur ce terrain, réalisez votre projet de construction de maison RE 2020 avec PAVILLONS D'ÎLE-DE-FRANCE (constructeur de maisons de gamme et sur-mesure depuis plus de 50 ans) :- Plan sur-mesure et personnalisé de 2 à 5 chambres- Mode de chauffage au choix- Grands choix d'équipements et de prestations- Matériaux de qualité selon les normes en vigueur- Accompagnement dans le choix et l’acquisition du terrainDemandez une étude gratuite et personnalisée de votre projet de construction sur ce terrain !Contactez Norbert DE SA au (Numéro supprimé) ou au (Numéro supprimé) (Pavillons d'Île-de-France – Agence de Noyon).Prix hors frais de notaire. Terrain sélectionné et vu pour vous sous réserve de disponibilité et au prix indiqué par notre partenaire foncier. Visuels non contractuels.Cette annonce a été créée et diffusée avec le logiciel VITAHOME.
L’actualité immobilière à Libermont





