Maison à construire à Compiègne (60200)
Images
Description
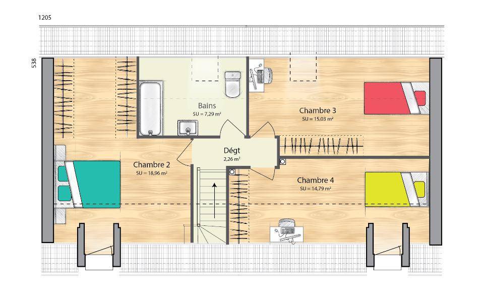
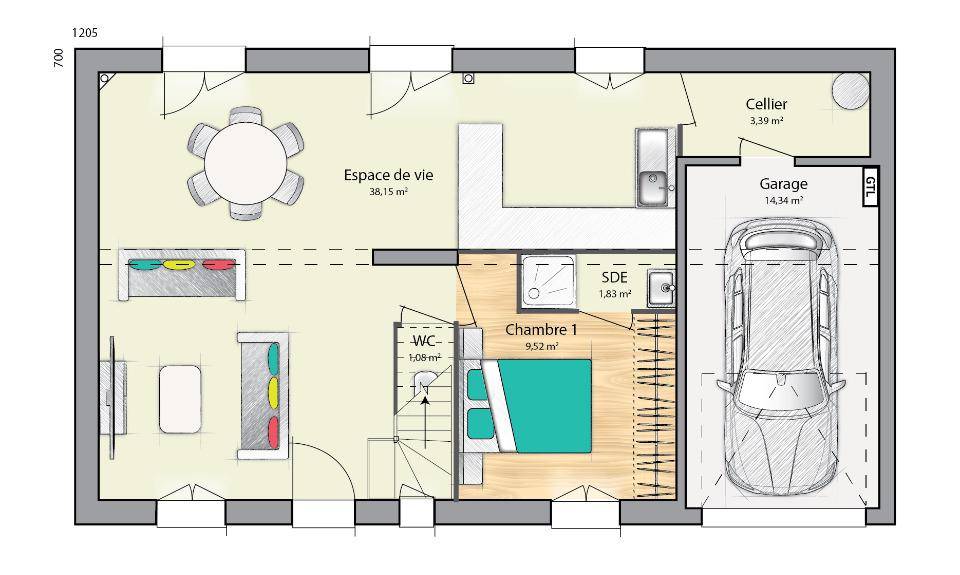
VENTE : maison de 5 pièces (94 m²) à Compiègne
À Compiègne (60200), maison neuve à vendre de 5 pièces, 2 niveaux, 94 m² sur 200 m² de terrain. Son intérieur compte quatre chambres, une cuisine et deux salles de bains.
À dix minutes : gare (Compiègne), établissements scolaires, crèches, port de plaisance, commerces, boulangeries, supermarchés, boucheries-charcuteries et bureau de poste. Marché Place du Change hebdomadaire. Autoroute A1 et nationale N31 accessibles à 10 km.
Cette maison de 5 pièces est proposée à l'achat pour 279 550 €.
N'hésitez pas à prendre contact avec notre agence (BORDES Guillaume : (Numéro supprimé)) pour toute question sur la maison ou sur les modalités de vente.
Annonce proposée par un Agent Commercial Partenaire.
Logement susceptibles de vous intéresser
Nous vous proposons de découvrir aussi cette sélection de logements situés à moins de 10km de Compiègne et qui seraient susceptibles de vous intéresser.
Trosly-Breuil
TERRAIN ET MAISONRéalisez votre projet de construction de maison RE 2020 avec PAVILLONS D'ÎLE-DE-FRANCE (constructeur de maisons de gamme et sur-mesure depuis plus de 50 ans) :- Plan sur-mesure et personnalisé de 2 à 5 chambres- Mode de chauffage au choix- Grands choix d'équipements et de prestations- Matériaux de qualité selon les normes en vigueur- Accompagnement dans le choix et l’acquisition du terrainInformations du terrain : Terrain à bâtir de 371 m² dans le lotissement LE CLOS ROQUIN. Terrain viabilisé.Demandez une étude gratuite et personnalisée de votre projet de construction !Contactez Anthony CALMELS au (Numéro supprimé) ou au (Numéro supprimé) (Pavillons d'Île-de-France – Agence de Noyon).Prix avec assurance dommages-ouvrage comprise, hors VRD, terrain viabilisé, assainissement compris, frais de notaire non compris, taxes non comprises, frais divers non compris. Terrain sélectionné et vu pour vous sous réserve de disponibilité et au prix indiqué par notre partenaire foncier. Visuels non contractuels.Cette annonce a été créée et diffusée avec le logiciel VITAHOME.
Compiègne
TERRAIN ET MAISONVENTE : maison de 4 pièces (100 m²) à CompiègneÀ découvrir à Compiègne (60200) : maison neuve 4 pièces en vente. 2 niveaux, surface de 100 m² et 200 m² de terrain. Elle comporte quatre chambres, une cuisine et deux salles de bains.Proche gare (Compiègne), établissements scolaires, crèches, port de plaisance, commerces, boulangeries, supermarchés, poissonnerie et boucheries-charcuteries. Marché Place du Change hebdomadaire. Autoroute A1 et nationale N31 accessibles à 10 km.Le prix de vente de cette maison de 4 pièces est de 279 500 €.Contactez notre agence (BORDES Guillaume : (Numéro supprimé)) pour obtenir de plus amples renseignements sur la maison, sur les démarches à suivre ou sur les modalités de vente. Maisons Evolution Mareuil-lès-Meaux est là pour vous accompagner dans tous vos projets immobiliers.Annonce proposée par un Agent Commercial Partenaire.
Trosly-Breuil
TERRAIN ET MAISONRéalisez votre projet de construction de maison RE 2020 avec PAVILLONS D'ÎLE-DE-FRANCE (constructeur de maisons de gamme et sur-mesure depuis plus de 50 ans) :- Plan sur-mesure et personnalisé de 2 à 5 chambres- Mode de chauffage au choix- Grands choix d'équipements et de prestations- Matériaux de qualité selon les normes en vigueur- Accompagnement dans le choix et l’acquisition du terrainInformations du terrain : Terrain à bâtir de 371 m² dans le lotissement LE CLOS ROQUIN. Terrain viabilisé.Demandez une étude gratuite et personnalisée de votre projet de construction !Contactez Anthony CALMELS au (Numéro supprimé) ou au (Numéro supprimé) (Pavillons d'Île-de-France – Agence de Noyon).Prix avec assurance dommages-ouvrage comprise, hors VRD, terrain viabilisé, assainissement compris, frais de notaire non compris, taxes non comprises, frais divers non compris. Terrain sélectionné et vu pour vous sous réserve de disponibilité et au prix indiqué par notre partenaire foncier. Visuels non contractuels.Cette annonce a été créée et diffusée avec le logiciel VITAHOME.
Margny-lès-Compiègne
TERRAIN ET MAISON🏡 Projet Terrain + Maison – Monchy-HumièresMaison 105 m² Style traditionnel & moderne 4 chambres dont 1 suite parentaleSur un terrain de 959 m² en impasse, découvrez ce projet mêlant charme traditionnel et lignes modernes :105 m² habitables4 chambres, dont 1 suite parentale au rez-de-chausséeBelle pièce de vie lumineusePlan fonctionnel et personnalisableSans garageTerrain non viabilisé – façade 25 ml.Frais annexes inclus (étude de sol, raccordements, taxes…).📞 Contactez XAVIER DOS SANTOS pour connaître le prix complet du projet, au (Numéro supprimé).
Compiègne
TERRAIN ET MAISONDécouvrez ce projet de construction à CHOISY AU BAC.Proposé par JOACHIM REICH et IDEAL pour concrétiser votre rêve de maison neuve sur un terrain proche de toutes les commodités. Cette maison a votre image offre des prestations modernes, une conception économe en énergie conforme à la norme RE 2020. « UNE MAISON RE 2020 CONSOMME 30% DE MOINS Q’UNE MAISON RT2012 ET 70% DE MOINS Q’UNE MAISON RT2005 »Contactez-moi pour accéder aux informations dont vous avez besoin, mon implication ainsi que mon accompagnement dans votre projet jusqu’à la remise de vos clés, est aujourd’hui reconnu par plus de 300 clients en Picardie, qui m’ont confié le rêve d’une vie : devenir propriétaire de leur maison. N’hésitez pas à me contacter du lundi au samedi au (Numéro supprimé) Joachim REICH Maisons France Confort 1er constructeur national.Exemple pour ce projet de maison de plain-pied (de nombreux modèles de maisons sont également possible sur ce terrain)2 belles chambres, séjour ouvert sur la cuisine le tout accompagné d’un garage (en option) et de prestations prémiums haut de gamme pour un budget allant de 199000 euros à 209000euros.
Trosly-Breuil
TERRAINTerrain à bâtir de 432 m² dans lotissement LE CLOS ROQUIN. Terrain viabilisé.Prix : 58000 €.Sur ce terrain, réalisez votre projet de construction de maison RE 2020 avec PAVILLONS D'ÎLE-DE-FRANCE (constructeur de maisons de gamme et sur-mesure depuis plus de 50 ans) :- Plan sur-mesure et personnalisé de 2 à 5 chambres- Mode de chauffage au choix- Grands choix d'équipements et de prestations- Matériaux de qualité selon les normes en vigueur- Accompagnement dans le choix et l’acquisition du terrainDemandez une étude gratuite et personnalisée de votre projet de construction sur ce terrain !Contactez Anthony CALMELS au (Numéro supprimé) ou au (Numéro supprimé) (Pavillons d'Île-de-France – Agence de Noyon).Prix hors frais de notaire. Terrain sélectionné et vu pour vous sous réserve de disponibilité et au prix indiqué par notre partenaire foncier. Visuels non contractuels.Cette annonce a été créée et diffusée avec le logiciel VITAHOME.
Margny-lès-Compiègne
TERRAIN ET MAISON🏡 Projet Terrain + Maison – Monchy-HumièresMaison plain-pied 70 m² 2 chambres Garage accoléSur un terrain de 959 m² en impasse, découvrez ce projet de maison plain-pied, idéal pour un premier achat ou un projet plus cosy :2 chambres1 salle de bainBelle pièce de vie lumineuseGarage accoléPlan fonctionnel et personnalisableTerrain non viabilisé – façade 25 ml.Frais annexes inclus (étude de sol, raccordements, taxes…).📞 Contactez XAVIER DOS SANTOS pour obtenir le prix global du projet, au (Numéro supprimé)
Margny-lès-Compiègne
TERRAIN🌿 Terrain à vendre – Monchy-Humières (60113)Surface : 959 m² Façade : 25 ml Prix : 80 000 €Découvrez ce beau terrain situé au coeur d’une impasse calme, dans la charmante commune de Monchy-Humières, idéal pour votre futur projet de construction.💡 Points forts :Superficie généreuse de 959 m²Façade de 25 mètres linéaires, offrant de nombreuses possibilités d’implantationEnvironnement paisible et verdoyantParcelle non viabilisée, libre de constructeurSituation en impasse, garantissant tranquillité et sécuritéCe terrain est parfait pour ceux qui recherchent le calme, l’espace et le charme d’un village, tout en restant proche des commodités des communes environnantes.📞 Pour en savoir plus ou organiser une visite, n’hésitez pas à contacter XAVIER DOS SANTOS au (Numéro supprimé)
Trosly-Breuil
TERRAINTerrain à bâtir de 371 m² dans le lotissement LE CLOS ROQUIN. Terrain viabilisé.Prix : 57500 €.Sur ce terrain, réalisez votre projet de construction de maison RE 2020 avec PAVILLONS D'ÎLE-DE-FRANCE (constructeur de maisons de gamme et sur-mesure depuis plus de 50 ans) :- Plan sur-mesure et personnalisé de 2 à 5 chambres- Mode de chauffage au choix- Grands choix d'équipements et de prestations- Matériaux de qualité selon les normes en vigueur- Accompagnement dans le choix et l’acquisition du terrainDemandez une étude gratuite et personnalisée de votre projet de construction sur ce terrain !Contactez Anthony CALMELS au (Numéro supprimé) ou au (Numéro supprimé) (Pavillons d'Île-de-France – Agence de Noyon).Prix hors frais de notaire. Terrain sélectionné et vu pour vous sous réserve de disponibilité et au prix indiqué par notre partenaire foncier. Visuels non contractuels.Cette annonce a été créée et diffusée avec le logiciel VITAHOME.
L’actualité immobilière à Compiègne
27/11/2023
02/11/2023
30/10/2023
20/10/2023
16/10/2023
16/10/2023