Maison à construire à Marest-sur-Matz (60490)
Images
Description
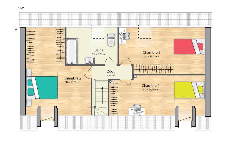
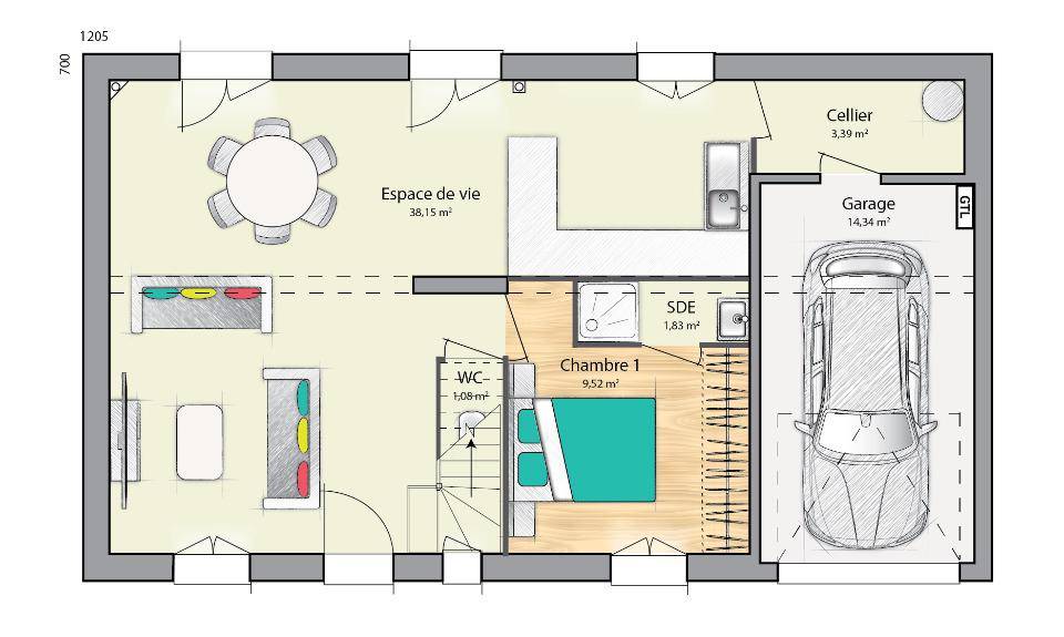
VENTE d'une maison de 5 pièces (90 m²) à Marest-sur-Matz
IDÉALEMENT SITUÉE - MAISON 5 PIÈCES NEUVE
À vendre : située à deux pas de Compiègne, votre agence Maisons France Confort Compiègne est heureuse de vous proposer cette maison de 5 pièces de 90 m² idéalement située dans Marest-sur-Matz (60490). Elle inclut quatre chambres, une cuisine et deux salles de bains.
Le terrain du bien s'étend sur 449 m².
C'est une maison de 2 niveaux. Elle est neuve.
La maison se trouve dans un secteur recherché. On y trouve une école élémentaire. Côté transports, il y a cinq gares à moins de 10 minutes en voiture. L'autoroute A1 et la nationale N31 sont accessibles à moins de 8 km. On trouve un tennis et une bibliothèque à proximité.
Son prix de vente est de 250 000 €.
Contactez Xavier DOS SANTOS (tél : (Numéro supprimé)) pour toute information sur la maison, sur les modalités de vente ou sur les démarches à suivre. Maisons France Confort Compiègne vous accompagne à toutes les étapes de votre projet et dans tous vos projets immobiliers.
Logement susceptibles de vous intéresser
Nous vous proposons de découvrir aussi cette sélection de logements situés à moins de 10km de Marest-sur-Matz et qui seraient susceptibles de vous intéresser.
Ribécourt-Dreslincourt
TERRAINTerrain à bâtir sur la charmante commune de RIBECOURT-DRESLINCOURT (60), très convoité, d’une superficie de 821 m²,plat, avec belle façade constructible de 20.00 ml, idéalement situé entre NOYON et COMPIEGNE.Commodité à proximité, groupe scolaire (maternelle et primaire) collège et lycée à RIBECOURT, commerce, gare sur place à 5 minutes.Projet clé en main.XAVIER de l’agence Maisons France Confort se fera un plaisir de vous recevoir pour plus de renseignements. tel : (Numéro supprimé).
Cambronne-lès-Ribécourt
TERRAINTerrain à bâtir – Cambronne-lès-Ribécourt (60170)À vendre, terrain constructible de 455 m² situé sur la commune de Cambronne-lès-Ribécourt, offrant une façade de 30,99 m.Caractéristiques :CU positifZone UD (urbanisme)Aléa argileux faibleTerrain plat, bien proportionné, idéal pour un projet de constructionLocalisation :Proche de toutes commodités : commerces, écoles, transports, servicesOpportunité rare dans un secteur calme et recherché !Prix : 59400 €.Sur ce terrain, réalisez votre projet de construction de maison RE 2020 avec PAVILLONS D'ÎLE-DE-FRANCE (constructeur de maisons de gamme et sur-mesure depuis plus de 50 ans) :- Plan sur-mesure et personnalisé de 2 à 5 chambres- Mode de chauffage au choix- Grands choix d'équipements et de prestations- Matériaux de qualité selon les normes en vigueur- Accompagnement dans le choix et l’acquisition du terrainDemandez une étude gratuite et personnalisée de votre projet de construction sur ce terrain !Contactez Anthony CALMELS au (Numéro supprimé) ou au (Numéro supprimé) (Pavillons d'Île-de-France – Agence de Noyon).Prix hors frais de notaire. Terrain sélectionné et vu pour vous sous réserve de disponibilité et au prix indiqué par notre partenaire foncier. Visuels non contractuels.Cette annonce a été créée et diffusée avec le logiciel VITAHOME.
Thiescourt
TERRAIN ET MAISONRéalisez votre projet de construction de maison RE 2020 avec PAVILLONS D'ÎLE-DE-FRANCE (constructeur de maisons de gamme et sur-mesure depuis plus de 50 ans) :- Plan sur-mesure et personnalisé de 2 à 5 chambres- Mode de chauffage au choix- Grands choix d'équipements et de prestations- Matériaux de qualité selon les normes en vigueur- Accompagnement dans le choix et l’acquisition du terrainDemandez une étude gratuite et personnalisée de votre projet de construction !Contactez Anthony CALMELS au (Numéro supprimé) ou au (Numéro supprimé) (Pavillons d'Île-de-France – Agence de Noyon).Prix avec assurance dommages-ouvrage comprise, hors VRD, terrain non viabilisé, assainissement non compris, frais de notaire non compris, taxes non comprises, frais divers non compris. Terrain sélectionné et vu pour vous sous réserve de disponibilité et au prix indiqué par notre partenaire foncier. Visuels non contractuels.Cette annonce a été créée et diffusée avec le logiciel VITAHOME.
Cambronne-lès-Ribécourt
TERRAIN ET MAISONDécouvrez ce projet de construction à Cambronne-lès-Ribécourt.Proposé par JOACHIM REICH et IDEAL pour concrétiser votre rêve de maison neuve sur un terrain proche de toutes les commodités. Cette maison a votre image offre des prestations modernes, une conception économe en énergie conforme à la norme RE 2020. « UNE MAISON RE 2020 CONSOMME 30% DE MOINS Q’UNE MAISON RT2012 ET 70% DE MOINS Q’UNE MAISON RT2005 »Contactez-moi pour accéder aux informations dont vous avez besoin, mon implication ainsi que mon accompagnement dans votre projet jusqu’à la remise de vos clés, est aujourd’hui reconnu par plus de 300 clients en Picardie, qui m’ont confié le rêve d’une vie : devenir propriétaire de leur maison. N’hésitez pas à me contacter du lundi au samedi au (Numéro supprimé) Joachim REICH Maisons France Confort 1er constructeur national.Exemple pour ce projet en plain-pied (de nombreux modèles de maisons sont également possible sur ce terrain)4 belles chambres, séjour ouvert sur la cuisine le tout accompagné d’un garage et de prestations prémiums haut de gamme pour un budget allant de 249000 euros à 259000euros.
Ressons-sur-Matz
TERRAIN ET MAISONRéalisez votre projet de construction de maison RE 2020 avec PAVILLONS D'ÎLE-DE-FRANCE (constructeur de maisons de gamme et sur-mesure depuis plus de 50 ans) :- Plan sur-mesure et personnalisé de 2 à 5 chambres- Mode de chauffage au choix- Grands choix d'équipements et de prestations- Matériaux de qualité selon les normes en vigueur- Accompagnement dans le choix et l’acquisition du terrainInformations du terrain : Magnifique terrain dans un secteur calme et proche toutes commodités. Viabilisé. Terrasse plein SUD. 15 mn d'Estrées St Denis 20 mn de Montdidier et 25 mn de Compiègne. Pas de contraintes ABF. R+1 possible. Ne passez pas à côté d'une si belle opportunitéDemandez une étude gratuite et personnalisée de votre projet de construction !Contactez Véronique LEMOUTON au (Numéro supprimé) ou au (Numéro supprimé) (Pavillons d'Île-de-France – Agence de Cauffry).Prix avec assurance dommages-ouvrage comprise, hors VRD, terrain viabilisé, assainissement compris, frais de notaire non compris, taxes non comprises, frais divers non compris. Terrain sélectionné et vu pour vous sous réserve de disponibilité et au prix indiqué par notre partenaire foncier. Visuels non contractuels.Cette annonce a été créée et diffusée avec le logiciel VITAHOME.
Margny-lès-Compiègne
TERRAIN ET MAISON🏡 Projet Terrain + Maison – Monchy-HumièresMaison 105 m² Style traditionnel & moderne 4 chambres dont 1 suite parentaleSur un terrain de 959 m² en impasse, découvrez ce projet mêlant charme traditionnel et lignes modernes :105 m² habitables4 chambres, dont 1 suite parentale au rez-de-chausséeBelle pièce de vie lumineusePlan fonctionnel et personnalisableSans garageTerrain non viabilisé – façade 25 ml.Frais annexes inclus (étude de sol, raccordements, taxes…).📞 Contactez XAVIER DOS SANTOS pour connaître le prix complet du projet, au (Numéro supprimé).
Cannectancourt
TERRAIN ET MAISONDécouvrez ce projet de construction à Cannectancourt.Proposé par JOACHIM REICH et IDEAL pour concrétiser votre rêve de maison neuve sur un terrain proche de toutes les commodités. Cette maison a votre image offre des prestations modernes, une conception économe en énergie conforme à la norme RE 2020. « UNE MAISON RE 2020 CONSOMME 30% DE MOINS Q’UNE MAISON RT2012 ET 70% DE MOINS Q’UNE MAISON RT2005 »Contactez-moi pour accéder aux informations dont vous avez besoin, mon implication ainsi que mon accompagnement dans votre projet jusqu’à la remise de vos clés, est aujourd’hui reconnu par plus de 300 clients en Picardie, qui m’ont confié le rêve d’une vie : devenir propriétaire de leur maison. N’hésitez pas à me contacter du lundi au samedi au (Numéro supprimé) Joachim REICH Maisons France Confort 1er constructeur national.Exemple pour ce projet de maison de plain-pied (de nombreux modèles de maisons sont également possible sur ce terrain)4 belles chambres, séjour ouvert sur la cuisine le tout accompagné d’un garage et de prestations prémiums haut de gamme pour un budget allant de 239000euros à 249000euros.
Ribécourt-Dreslincourt
TERRAINCristina CASALINHO vous propose EN EXCLUSIVITE :Ce beau terrain plat et rectangulaire situé à 5min des commodités.- D’une belle surface de 601m2.- Belle façade de 20ml.- Profondeur de 30ml.Il se situe dans un village calme et paisible.Celui-ci est DEJA VIABILISE pour le tout à l’égout.Certificat d’urbanisme positif.Etude de sol effectué.COS non réglementé.Emplacement idéal :- 5min des commodités centre commercial et petit commerces.- 5 min de la voie express.- 25 min de l’ Autoroute A1.- 45 min Roissy Charles de Gaulle.- 1 heure Gare du Nord.AXE :COMPIEGNE/NOYON : 10/15min .Au prix de vente de 60 000 euros charge vendeurMandat N° : 413036Pour visiter et vous accompagner dans votre projet, contactez Cristina CASALINHO, au (Numéro supprimé) ou, par courriel à (Email supprimé).Selon l’article L.561.5 du Code Monétaire et Financier, pour l’organisation de la visite, la présentation d’une pièce d’identité vous sera demandée.Cette présente annonce a été rédigée sous la responsabilité éditoriale de Cristina CASALINHO agissant sous le statut d’agent commercial immatriculé au RSAC COMPIEGNE 899 051 452 auprès de SAS PROPRIETES PRIVEES, au capital de 44 920 euros, ZAC LE CHÊNE FERRÉ – 44 ALLÉE DES CINQ CONTINENTS 44120 VERTOU; SIRET 487 624 777 00040, RCS Nantes. Carte Professionnelle Transactions sur immeubles et fonds de commerce (T) et Gestion immobilière (G) n°CPI 4401 2016 000 010 388 délivrée par la CCI Nantes – Saint Nazaire. Compte séquestre n(Numéro supprimé)67 BPA SAINT-SEBASTIEN-SUR-LOIRE (44230). Garantie GALIAN-SMABTP – 89 rue de la Boétie, 75008 Paris – n°28137 J pour 2 000 000 euros pour T et 120 000 euros pour G. Assurance responsabilité civile professionnelle par GALIAN-SMABTP n° de police 28137.JMandat réf :413036 – Le professionnel garantit et sécurise votre projet immobilier. Cristina CASALINHO (EI) Agent Commercial – Numéro RSAC : COMPIEGNE 899 051 452 – .
Ressons-sur-Matz
TERRAIN ET MAISONRéalisez votre projet de construction de maison RE 2020 avec PAVILLONS D'ÎLE-DE-FRANCE (constructeur de maisons de gamme et sur-mesure depuis plus de 50 ans) :- Plan sur-mesure et personnalisé de 2 à 5 chambres- Mode de chauffage au choix- Grands choix d'équipements et de prestations- Matériaux de qualité selon les normes en vigueur- Accompagnement dans le choix et l’acquisition du terrainDemandez une étude gratuite et personnalisée de votre projet de construction !Contactez Norbert DE SA au (Numéro supprimé) ou au (Numéro supprimé) (Pavillons d'Île-de-France – Agence de Noyon).Prix avec assurance dommages-ouvrage comprise, hors VRD, terrain non viabilisé, assainissement non compris, frais de notaire non compris, taxes non comprises, frais divers non compris. Terrain sélectionné et vu pour vous sous réserve de disponibilité et au prix indiqué par notre partenaire foncier. Visuels non contractuels.Cette annonce a été créée et diffusée avec le logiciel VITAHOME.
L’actualité immobilière à Marest-sur-Matz
27/11/2023
02/11/2023
30/10/2023
20/10/2023
16/10/2023
16/10/2023