Maison à construire à Senlis (60300)
Images
Description
VENTE d'une maison F6 (105 m²) à Rully
EMPLACEMENT PRIVILÉGIÉ - MAISON 6 PIÈCES NEUVE
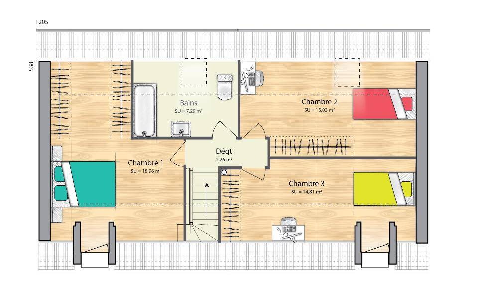
À vendre : située à deux pas de Compiègne, Maisons France Confort Beauvais vous propose cette maison de 6 pièces de 105 m² et de 515 m² de terrain bénéficiant d'un emplacement privilégié dans Rully (60810).
C'est une maison de 2 niveaux. Elle est composée de quatre chambres, d'une cuisine et de deux salles de bains. Cette maison est neuve.
Le bien est situé dans un quartier convoité. Une école primaire y est implantée. Côté transports en commun, il y a la gare Pont-Sainte-Maxence à moins de 10 minutes en voiture. L'autoroute A1 et la nationale N324 sont accessibles à moins de 7 km. On trouve un commerce dans les environs.
Il est à vendre pour la somme de 372 000 €.
Contactez notre agence (BONELLO Fabrice : (Numéro supprimé)) pour toute question sur la maison ou sur les modalités de vente.
Logement susceptibles de vous intéresser
Nous vous proposons de découvrir aussi cette sélection de logements situés à moins de 10km de Senlis et qui seraient susceptibles de vous intéresser.
Villers-Saint-Frambourg-Ognon
TERRAINTerrain à bâtir à PONTPOINT (60) situé à 15 minutes de VILLERS SAINT FRAMBOURG, d’une superficie de 507 m², façade de 16.46 ml, plat, allée privative, secteur pavillonnaire recherché.Commodité à proximité, groupe scolaire à 5 min, commerce, transports en commun, gare TER direction Paris Nord.Projet clé en main : Conception des plans sur-mesure, gestion administrative (permis, notaire), suivi travaux.XAVIER de l’agence Maisons France Confort se fera un plaisir de vous recevoir pour plus de renseignements. tel : (Numéro supprimé)
Villers-Saint-Frambourg-Ognon
TERRAIN ET MAISONVenez concevoir votre maison.Exemple de projet maison (combles aménagés) de 105 m² loi Carrez.AU RDC : Bel espace de vie traversant de plus de 40 m², 1 chambre magnifique suite parentale de + de 16 m², 1 wc indépendant, à l’étage palier desservant 3 belles chambres (14, 15 et 18 m²), 1 salle de bain avec WC.Tous nos projets sont entièrement réalisés sur-mesure, de nombreuses prestations incluses: baies coulissantes en aluminium, volets roulants intégrés à la maçonnerie (non-apparents) motorisés.Entrée, cuisine, pièce de vie, cellier et pièces d’eau carrelés,Pompe à chaleur (classe énergétique A+), plancher chauffant RDC (et ETAGE), sèche-serviettes, plusieurs choix de menuiseries intérieures, construction en brique. RE 2020.Pour tout renseignement contacter XAVIER de l’agence Maisons France Confort au : (Numéro supprimé)
Villers-Saint-Frambourg-Ognon
TERRAIN ET MAISONVENTE d’une maison de 3 pièces (71 m²) à Villers-Saint-FrambourgIDÉALEMENT SITUÉE – MAISON 3 PIÈCES NEUVEÀ deux pas de Compiègne, notre agence Maisons France Confort Compiègne est ravie de vous proposer cette maison de 3 pièces de plain-pied de 71 m² en vente, idéalement située dans Villers-Saint-Frambourg (60810). Son intérieur propose deux chambres, une cuisine et une salle de bains.Le terrain du bien s’étend sur 507 m².Cette maison est neuve.Cette maison est située dans un secteur convoité. On y trouve une école primaire. Niveau transports, on trouve trois gares (Pont-Sainte-Maxence, Chevrières et Rieux-Angicourt) à moins de 10 minutes en voiture. L’autoroute A1 et la nationale N324 sont accessibles à moins de 6 km. Il y a une bibliothèque et un commerce à proximité de la maison.Elle est proposée à l’achat pour 270 000 €.N’hésitez pas à prendre contact avec notre agence (DOS SANTOS Xavier : (Numéro supprimé)) pour toute question sur le bien, sur les modalités de vente ou sur les démarches à suivre.
Villers-Saint-Frambourg-Ognon
TERRAIN ET MAISONVenez concevoir votre maison.Exemple de projet maison de plain-pied de 90 m² loi Carrez + garage intégré:Bel espace de vie traversant de plus de 40 m² + wc indépendant, cellier attenant et garage intégré, 3 belles chambres dont une suite parentale, 1 salle de bain avec WC.Tous nos projets sont entièrement réalisés sur-mesure, de nombreuses prestations incluses: baies coulissantes en aluminium, volets roulants intégrés à la maçonnerie (non-apparents) motorisés.Entrée, cuisine, pièce de vie, cellier et pièces d’eau carrelés,Pompe à chaleur (classe énergétique A+), plancher chauffant RDC (et ETAGE), sèche-serviettes, plusieurs choix de menuiseries intérieures, construction en brique. RE 2020.Pour tout renseignement contacter XAVIER de l’agence Maisons France Confort au : (Numéro supprimé)
Villers-Saint-Frambourg-Ognon
TERRAIN ET MAISONVenez concevoir votre maison.Exemple de projet maison (combles aménagés) de 115 m² loi Carrez.Tous nos projets sont entièrement réalisés sur-mesure, de nombreuses prestations incluses: baies coulissantes en aluminium, volets roulants intégrés à la maçonnerie (non-apparents) motorisés.Entrée, cuisine, pièce de vie, cellier et pièces d’eau carrelés,Pompe à chaleur (classe énergétique A+), plancher chauffant RDC (et ETAGE), sèche-serviettes, plusieurs choix de menuiseries intérieures, construction en brique. RE 2020.Pour tout renseignement contacter XAVIER de l’agence Maisons France Confort : (Numéro supprimé)
Villers-Saint-Frambourg-Ognon
TERRAIN ET MAISONVenez concevoir votre maison.Exemple de projet maison (combles aménagés) de 115 m² loi Carrez.Tous nos projets sont entièrement réalisés sur-mesure, de nombreuses prestations incluses: baies coulissantes en aluminium, volets roulants intégrés à la maçonnerie (non-apparents) motorisés.Entrée, cuisine, pièce de vie, cellier et pièces d’eau carrelés,Pompe à chaleur (classe énergétique A+), plancher chauffant RDC (et ETAGE), sèche-serviettes, plusieurs choix de menuiseries intérieures, construction en brique. RE 2020.Pour tout renseignement contacter XAVIER de l’agence Maisons France Confort : (Numéro supprimé)
Chamant
TERRAINPrix : 165000 €.Sur ce terrain, réalisez votre projet de construction de maison RE 2020 avec PAVILLONS D'ÎLE-DE-FRANCE (constructeur de maisons de gamme et sur-mesure depuis plus de 50 ans) :- Plan sur-mesure et personnalisé de 2 à 5 chambres- Mode de chauffage au choix- Grands choix d'équipements et de prestations- Matériaux de qualité selon les normes en vigueur- Accompagnement dans le choix et l’acquisition du terrainDemandez une étude gratuite et personnalisée de votre projet de construction sur ce terrain !Contactez Stéphane VERHAUVEN au (Numéro supprimé) ou au (Numéro supprimé) (Pavillons d'Île-de-France – Agence de Meaux).Prix hors frais de notaire. Terrain sélectionné et vu pour vous sous réserve de disponibilité et au prix indiqué par notre partenaire foncier. Visuels non contractuels.Cette annonce a été créée et diffusée avec le logiciel VITAHOME.
Chamant
TERRAINTerrain viabilisé. Beau village voisin de SENLIS, seulement 20min de Roissy CDG, accès autoroute A1.Prix : 170000 €.Sur ce terrain, réalisez votre projet de construction de maison RE 2020 avec PAVILLONS D'ÎLE-DE-FRANCE (constructeur de maisons de gamme et sur-mesure depuis plus de 50 ans) :- Plan sur-mesure et personnalisé de 2 à 5 chambres- Mode de chauffage au choix- Grands choix d'équipements et de prestations- Matériaux de qualité selon les normes en vigueur- Accompagnement dans le choix et l’acquisition du terrainDemandez une étude gratuite et personnalisée de votre projet de construction sur ce terrain !Contactez Stéphane VERHAUVEN au (Numéro supprimé) ou au (Numéro supprimé) (Pavillons d'Île-de-France – Agence de Meaux).Prix hors frais de notaire. Terrain sélectionné et vu pour vous sous réserve de disponibilité et au prix indiqué par notre partenaire foncier. Visuels non contractuels.Cette annonce a été créée et diffusée avec le logiciel VITAHOME.
Chamant
TERRAIN ET MAISONRéalisez votre projet de construction de maison RE 2020 avec PAVILLONS D'ÎLE-DE-FRANCE (constructeur de maisons de gamme et sur-mesure depuis plus de 50 ans) :- Plan sur-mesure et personnalisé de 2 à 5 chambres- Mode de chauffage au choix- Grands choix d'équipements et de prestations- Matériaux de qualité selon les normes en vigueur- Accompagnement dans le choix et l’acquisition du terrainDemandez une étude gratuite et personnalisée de votre projet de construction !Contactez Stéphane VERHAUVEN au (Numéro supprimé) ou au (Numéro supprimé) (Pavillons d'Île-de-France – Agence de Meaux).Prix avec assurance dommages-ouvrage comprise, hors VRD, terrain viabilisé, assainissement compris, frais de notaire non compris, taxes non comprises, frais divers non compris. Terrain sélectionné et vu pour vous sous réserve de disponibilité et au prix indiqué par notre partenaire foncier. Visuels non contractuels.Cette annonce a été créée et diffusée avec le logiciel VITAHOME.
L’actualité immobilière à Senlis
27/11/2023
02/11/2023
30/10/2023
20/10/2023
16/10/2023
16/10/2023