Maison à construire à Thuir (66300)
Images
Description
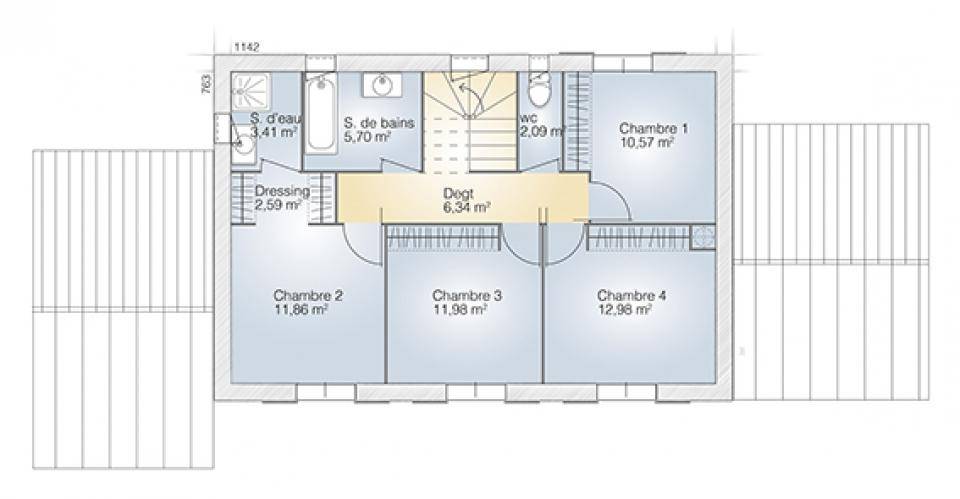
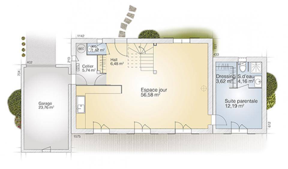
Thuir : maison de 140 m² en vente
Proche de Perpignan - À vendre à Thuir (66300) : maison neuve 7 pièces de 140 m² sur un terrain de 638 m². Autoroute A9 et nationale N116 accessibles à 10 km. Mer Méditerranée à 32 km. Espagne à 24 km.
Le prix de vente de cette maison de 7 pièces est de 384 500 €.
Contactez notre agence (MARIE Maryline : (Numéro supprimé)) pour toute question sur la maison, sur les modalités de vente ou sur les démarches à suivre. Maisons Balency Cabestany est là pour vous accompagner dans tous vos projets immobiliers. Plans sur mesure.
Logement susceptibles de vous intéresser
Nous vous proposons de découvrir aussi cette sélection de logements situés à moins de 10km de Thuir et qui seraient susceptibles de vous intéresser.
Canohès
TERRAINParcelle d’une surface totale de 507m² située sur un quartier de la commune de Canohes, offrant calme et cadre de vie agréable.Ce terrain est constructible et viabilisé.Libre de constructeur, il est idéal pour recevoir la maison de vos rêves.Forage existant.Cette annonce référence 314458 vous est présentée par votre agent commercial BSK Immobilier GWLADYS COTEILL DOLCEROCCA (EI) immatriculé au RSAC de PERPIGNAN (66000) sous le numéro 92483239700013.Prix du bien : 169 000,00 €Les honoraires d’agence sont à la charge du vendeur.Les informations sur les risques auxquels ce bien est exposé sont disponibles sur le site Géorisques : www.georisques.gouv.fr
Baho
TERRAINFiche N°Id-TCT179078 : BAHO Fiche BC179078 : Baho, Terrain de 388 m2 – – Equipements annexes : – chauffage : Aucun – Plus d’informations disponibles sur demande… – Mentions légales : Proposé à la vente à 100000 Euros (honoraires à la charge du vendeur) – Affaire suivie par Mr Renaud Gauthier (Conseiller immobilier salarié) – Reseau Immo-Diffusion Perpignan – Pour plus d’informations, contactez notre secrétariat au (Numéro supprimé) (Appel gratuit ou prix d’une communication locale)
Baho
TERRAINFiche N°Id-TCT179077 : BAHO Fiche BC179077 : Baho, Terrain de 1022 m2 – – Equipements annexes : – chauffage : Aucun – Plus d’informations disponibles sur demande… – Mentions légales : Proposé à la vente à 160000 Euros (honoraires à la charge du vendeur) – Affaire suivie par Mr Renaud Gauthier (Conseiller immobilier salarié) – Reseau Immo-Diffusion Perpignan – Pour plus d’informations, contactez notre secrétariat au (Numéro supprimé) (Appel gratuit ou prix d’une communication locale)
Pézilla-la-Rivière
TERRAINVENTE : terrain de 961 m² à Pézilla-la-RivièreProche de Perpignan, à Pézilla-la-Rivière (66370) : terrain de 961 m².Son prix de vente est de 195 000 €. Terrain présenté pour une construction MAISONS BALENCY. Prenez contact avec Maryline MARIE : (Numéro supprimé) pour convenir d’un rendez-vous en agence afin d’étudier votre projet de construction dans sa globalité. Etude personnalisée. Plans sur mesure pour une maison aux dernières normes par le groupe leader de la construction en France. Contrat CCMI.
Pézilla-la-Rivière
TERRAIN ET MAISONVENTE : maison de 140 m² à Pézilla-la-RivièreÀ vendre à Pézilla-la-Rivière (66370) : maison neuve de 140 m² et de 961 m² de terrain. Son intérieur offre cinq chambres et un espace jour de 56m². Cette maison de 7 pièces est proposée à l’achat pour 514 000 €.Contactez notre agence (Maryline MARIE : (Numéro supprimé)) pour toute question sur la maison, sur les démarches à suivre ou sur les modalités de vente. Maisons Balency Cabestany est là pour vous accompagner dans tous vos projets immobiliers. Plans sur mesure.
Pézilla-la-Rivière
TERRAIN ET MAISONVENTE : maison de 150 m² à Pézilla-la-RivièreÀ Pézilla-la-Rivière, maison neuve à vendre de 150 m² de surface sur 961 m² de terrain en 4 faces. Elle inclut quatre chambres dont une suite au RDC et un séjour de 50m². Le prix de vente de cette maison de 6 pièces est de 539 000 €.Prenez contact avec Maryline MARIE ((Numéro supprimé)) pour tout renseignement sur la maison ou sur les démarches à suivre. Maisons Balency Cabestany est là pour vous accompagner dans tous vos projets immobiliers. Plans sur mesure.
Thuir
TERRAIN ET MAISONA vendre sur THUIRSuperficie Maison : 71 m²Superficie Terrain : 333 m²Caractéristiques : Plain pied, 2 chambres, 1 cellier, une salle de bains avec WC, une pièce de vie avec cuisine ouverte et un garage.Cette maison est neuve et répond à la règlementation RE2020. Matériaux de qualité.La construction est entièrement personnalisable selon vos souhaits et vos besoins.Elle est proposée à l’achat pour 239 300 €.Intéressez par cette maison ? Ou envie d’un projet personnalisé ?N’hésitez pas à contacter Amélie : (Numéro supprimé) pour tout renseignement.Maisons de Manon Perpignan vous accompagne dans toutes vos démarches et dans tous vos projets immobiliers.
Castelnou
TERRAIN ET MAISONMAISON 5 PIÈCES NEUVEVotre agence Maisons de Manon Perpignan est ravie de vous présenter cette maison de 5 pièces de plain-pied de 110 m² à Castelnou.Conçue de plain-pied, elle se compose de quatre chambres dont une suite parentale, une pièce de vie avec cuisine ouverte, une salle de bains avec wc, un WC séparé, un cellier et un garage. Le terrain de la propriété s’étend sur 1 400 m².Son prix de vente est de 425 380 €.N’hésitez pas à prendre contact avec Amélie POC (tél : (Numéro supprimé)) pour toute question sur la maison ou pour un projet personnalisé.
Ponteilla
TERRAIN ET MAISONMaison à vendre à PonteillaSuperficie Maison : 78 m²Superficie Terrain : 284 m²Caractéristiques : R+1, 3 chambres, 1 cellier, 2 WC, 1 salle d’eau, un pièce de vie avec cuisine ouverte et un garage.Cette maison est neuve et répond à la règlementation RE2020. Matériaux de qualité.La construction est entièrement personnalisable selon vos souhaits et vos besoins.Elle est proposée à l’achat pour 249 800 €.Intéressez par cette maison ? Ou envie d’un projet personnalisé ?N’hésitez pas à contacter Amélie : (Numéro supprimé) pour tout renseignement.Maisons de Manon Perpignan vous accompagne dans toutes vos démarches et dans tous vos projets immobiliers.
L’actualité immobilière à Thuir
27/11/2023
02/11/2023
30/10/2023
20/10/2023
16/10/2023
16/10/2023