Images
Description
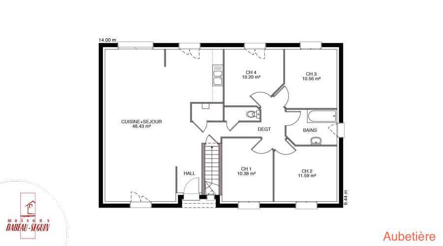
Sur ce terrain, nous vous proposons cette maison neuve Aubetière, un modèle traditionnel signé Babeau-Seguin, constructeur reconnu pour offrir le meilleur rapport qualité/prix du marché. Avec une surface de 111 m², cette maison de plain-pied se distingue par son design moderne et ses nombreuses options de personnalisation.
L'Aubetière dispose de 4 chambres spacieuses et de 4 pièces, offrant un espace de vie confortable et fonctionnel pour toute la famille. Vous avez le choix entre une toiture à 2 pans ou à 4 pans, ainsi que la possibilité d'ajouter un garage ou un sous-sol selon vos besoins et préférences.
Cette maison neuve est également basse consommation et conforme à la réglementation environnementale RE2020, garantissant des performances énergétiques optimales et un impact réduit sur l'environnement.
L'Aubetière est appréciée pour son excellent rapport qualité/prix et sa capacité à s'adapter à vos envies grâce à ses nombreuses déclinaisons et plans disponibles. Donnez vie à votre projet de construction en optant pour cette maison individuelle sur mesure, qui saura répondre à toutes vos attentes.
Ne manquez pas cette opportunité unique de construire la maison de vos rêves avec Babeau-Seguin, le constructeur qui allie qualité, performance et économie.
Logement susceptibles de vous intéresser
Nous vous proposons de découvrir aussi cette sélection de logements situés à moins de 10km de Saint-Sernin-du-Bois et qui seraient susceptibles de vous intéresser.
Le Creusot
TERRAINDécouvrez ce terrain d’une superficie généreuse de 871 m², idéalement situé dans un lotissement prisé dans la ville dynamique du Creusot, en Saône-et-Loire. Ce terrain viabilisé offre une opportunité unique pour la construction de votre future maison, offrant ainsi un cadre de vie agréable et personnalisé. Avec ses caractéristiques uniques, ce bien représente un véritable coup de cœur pour les amateurs de projets immobiliers. Le Creusot, situé en Bourgogne-Franche-Comté, est une ville offrant un mélange parfait d’histoire et de modernité. Vous profiterez d’un accès facile aux commerces, écoles, collèges et lycées à proximité, ainsi que des transports en commun et d’une gare à quelques pas. Profitez également des nombreuses attractions locales qui font la renommée de la région, de ses paysages pittoresques à ses activités de loisirs variées. Tout est à portée de main pour y construire votre idéal de vie. Ne laissez pas passer cette opportunité d’acquérir un terrain plein de potentiel au cœur d’un cadre de vie agréable. Envisagez ce projet de construction et commencez dès aujourd’hui à imaginer votre future maison. À noter qu’en tant que constructeur, nous ne sommes pas mandatés pour réaliser la vente de ce terrain.
Le Creusot
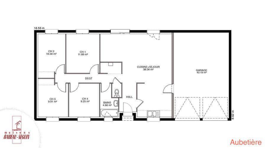
TERRAIN ET MAISONSur ce terrain, nous vous proposons cette maison neuve Aubetière, un modèle traditionnel de la gamme Babeau-Seguin, constructeur reconnu pour offrir le meilleur rapport qualité/prix du marché. Avec une surface de 88 m², cette maison de plain-pied se compose de 4 pièces, dont 3 chambres spacieuses, idéales pour accueillir toute votre famille.L’Aubetière se distingue par son excellent rapport qualité/prix et sa conformité aux normes RE2020, garantissant une basse consommation énergétique. Vous avez la possibilité de personnaliser votre maison en choisissant entre un toit à 2 pans ou à 4 pans, ainsi qu’en ajoutant un garage ou un sous-sol selon vos besoins.Cette maison moderne et fonctionnelle est conçue pour s’adapter à vos envies et à votre mode de vie. Profitez de la flexibilité offerte par les nombreux plans et déclinaisons disponibles pour créer votre maison individuelle sur mesure.Ne manquez pas cette opportunité de donner vie à votre projet de construction avec le modèle Aubetière, une maison neuve qui allie confort, économie d’énergie et personnalisation. Contactez-nous dès maintenant pour plus d’informations et pour découvrir toutes les options disponibles pour votre future maison.
Saint-Émiland
TERRAINNous vous proposons une opportunité rare d’acquérir un terrain d’une surface de 996 m², situé dans le charmant lotissement de Saint-Émiland dans la Saône-et-Loire. Ce terrain viabilisé est idéal pour un projet de construction de maison, offrant un cadre champêtre au calme, parfait pour ceux qui cherchent à s’installer dans un environnement paisible. Profitez de son dernier lot disponible pour réaliser la maison de vos rêves au cœur de la Bourgogne-Franche-Comté. Saint-Émiland est une ville qui attire par son authenticité et son désir de préserver la tranquillité de ses habitants. Les résidents peuvent apprécier la beauté des paysages environnants tout en ayant accès à diverses commodités locales, notamment des commerces de proximité et des infrastructures qui favorisent un cadre de vie agréable. De plus, la région offre un accès facile à de nombreuses attractions touristiques, promettant un équilibre parfait entre apaisement et dynamisme. Ce terrain en constitue l’emplacement idéal pour quiconque souhaite allier confort et qualité de vie. Ne manquez pas cette chance unique de devenir propriétaire d’un terrain au potentiel immense. N’attendez plus pour envisager votre futur projet de vie dans cette magnifique région. À noter qu’en tant que constructeur, nous ne sommes pas mandatés pour réaliser la vente de ce terrain.
Saint-Émiland
TERRAIN ET MAISONSur ce terrain, nous vous proposons cette maison neuve, la Prunière, l’un des modèles les plus vendus par Babeau-Seguin, constructeur offrant le meilleur rapport qualité/prix du marché. Figurant dans le top 5 des maisons individuelles Babeau-Seguin, cette maison plain-pied Prunière séduit par son renfoncement qui casse la monotonie de la façade avant et offre un abri de seuil.Avec une surface de 73 m², cette maison traditionnelle comprend 3 pièces, dont 2 chambres, et un garage intégré. Vous avez le choix entre une toiture à 2 pans ou à 4 pans, selon vos préférences esthétiques.La Prunière est également une maison basse consommation, conforme à la réglementation environnementale RE2020, ce qui vous garantit des économies d’énergie et un confort optimal tout au long de l’année.Si on devait retenir la Prunière, ce serait toutefois son prix ! La Prunière est en effet la maison à petit prix par excellence, tout en offrant des prestations de qualité.Ne manquez pas cette opportunité de construire une maison qui allie confort, économie et esthétisme. Contactez-nous pour plus d’informations et pour découvrir toutes les options disponibles pour personnaliser votre future maison.
Le Creusot
TERRAINDécouvrez ce terrain exceptionnel de 759 m², idéalement situé dans le charmant lotissement de Le Creusot, en Saône-et-Loire. Ce terrain viabilisé offre une opportunité unique pour concrétiser votre projet de construction de maison. Sa superficie généreuse vous permet de réaliser la maison de vos rêves, avec un espace extérieur propice à la détente et aux activités familiales. Le Creusot, situé en Bourgogne-Franche-Comté, se distingue par son ambiance conviviale et ses nombreuses attractions locales. À proximité, vous bénéficierez d’un accès facile à des commerces et des commodités variées. Les établissements scolaires, y compris des collèges et lycées, sont également à quelques pas. De plus, le réseau de transports en commun et la gare à proximité facilitent vos déplacements. Ce cadre de vie agréable et dynamique saura répondre à vos attentes et celles de votre famille. Ce terrain représente une opportunité d’achat unique pour les futurs propriétaires désireux d’investir dans un cadre de vie de qualité. N’attendez plus pour envisager votre projet immobilier dans ce secteur en pleine expansion. À noter qu’en tant que constructeur, nous ne sommes pas mandatés pour réaliser la vente de ce terrain.
Le Creusot
TERRAIN ET MAISONSur ce terrain, nous vous proposons cette maison neuve, le modèle Ménilière, une maison plain-pied moderne qui intègre de base un garage et une longue galerie sur la face avant. Avec une surface de 100 m², cette maison dispose de 4 chambres et de 4 pièces, offrant ainsi un espace de vie confortable et fonctionnel pour toute la famille.Véritable « »tout-en-un » » de la maison individuelle, ce modèle est idéal pour votre projet de construction sur-mesure. La Ménilière est disponible avec un toit à 2 pans ou 4 pans, selon vos préférences esthétiques. Le garage intégré et la galerie avant ajoutent une touche pratique et élégante à cette maison.Les options les plus demandées par nos clients, telles que les menuiseries en aluminium et le sous-sol, sont également disponibles pour personnaliser davantage votre future maison. De plus, cette maison neuve est basse consommation et conforme à la réglementation environnementale RE2020, garantissant ainsi des performances énergétiques optimales et un impact environnemental réduit.Le constructeur Babeau-Seguin, reconnu pour offrir le meilleur rapport qualité/prix du marché, vous accompagne dans la réalisation de votre projet immobilier. Avec un prix serré et une personnalisation facile, il n’est pas étonnant que la Ménilière soit dans le top 5 des ventes de Babeau-Seguin.Ne manquez pas cette opportunité unique de devenir propriétaire d’une maison moderne, économe en énergie et parfaitement adaptée à vos besoins. Contactez-nous dès maintenant pour plus d’informations et pour planifier une visite de ce modèle exceptionnel.
Le Creusot
TERRAINDécouvrez ce terrain exceptionnel de 910 m², situé dans un lotissement en plein développement à Le Creusot, en Saône-et-Loire. Ce terrain viabilisé est parfait pour concrétiser votre projet de construction de maison. Profitez d’un cadre de vie agréable tout en bénéficiant des caractéristiques uniques de la ville, alliant dynamisme et tranquillité. Le Creusot, un joyau de la Bourgogne-Franche-Comté, offre une multitude d’attractions locales et de commodités. Vous trouverez à proximité immédiate des commerces, des écoles, ainsi qu’un collège et un lycée, facilitant la vie quotidienne des familles. La gare à proximité permet également un accès rapide aux grandes villes environnantes. Ce secteur est idéal pour s’épanouir dans un environnement paisible et accessible. Ne manquez pas cette occasion unique d’acquérir un terrain au potentiel exceptionnel. Contactez-nous pour découvrir toutes les possibilités que ce bien immobilier a à offrir ! À noter qu’en tant que constructeur, nous ne sommes pas mandatés pour réaliser la vente de ce terrain.
Le Creusot
TERRAIN ET MAISONSur ce terrain, nous vous proposons cette maison neuve, la Mézière Sud, conçue par Babeau-Seguin, constructeur offrant le meilleur rapport qualité/prix du marché. Superbe maison typique du sud, inspirée du modèle à succès Mézière de chez Maisons Babeau-Seguin, cette demeure de 88 m² saura répondre à toutes vos attentes.Présentant 3 chambres et 4 pièces, la Mézière Sud est idéale pour les familles en quête de confort et de modernité. Son plan en L, disponible en version 2 pans ou 4 pans, offre une disposition harmonieuse et fonctionnelle. Vous pourrez également choisir entre un garage accolé ou un sous-sol, selon vos besoins. Un porche accueillant complète cette maison, ajoutant une touche de charme supplémentaire.Les options les plus demandées par nos clients, telles que les menuiseries en aluminium et la piscine, sont également disponibles pour personnaliser votre future maison selon vos envies.Insistons sur le fait que cette maison neuve est basse consommation et conforme à la RE2020, garantissant ainsi des performances énergétiques optimales et un respect de l’environnement.Véritable coup de cœur pour de nombreux clients Babeau-Seguin, la Mézière Sud est facilement modifiable, ce qui justifie pleinement son succès. Répondant aux besoins de nombreuses familles nous ayant fait confiance, cette maison est une opportunité à ne pas manquer.N’attendez plus pour découvrir cette maison d’exception et contactez-nous pour plus d’informations.
Le Creusot
TERRAINNous vous présentons une opportunité rare d’acquérir un terrain viabilisé de 700 m², idéalement situé dans le lotissement prisé du Creusot, en Saône-et-Loire. Ce terrain bénéficie d’un environnement paisible et offre les conditions parfaites pour la réalisation de votre projet de construction de maison. Avec son espace généreux et ses attributs uniques, il devient le cadre idéal pour accueillir votre future résidence, tout en vous permettant de profiter des charmes de la région Bourgogne-Franche-Comté. Le Creusot est une ville dynamique, réputée pour ses infrastructures et ses atouts. À proximité de ce terrain, vous profiterez de nombreuses commodités, notamment des commerces, des écoles, ainsi qu’un collège et un lycée pour vos enfants. La gare, quant à elle, facilite vos déplacements vers les grandes villes environnantes. En choisissant ce terrain, vous vous installerez dans un cadre de vie agréable, riche en attractions locales et offrant un accès rapide à la nature environnante. C’est l’endroit parfait pour réaliser un projet de vie. Ce terrain représente une opportunité unique pour ceux qui souhaitent s’implanter dans un secteur attractif de Bourgogne-Franche-Comté. N’attendez plus et envisagez sérieusement cette proposition d’achat séduisante. À noter qu’en tant que constructeur, nous ne sommes pas mandatés pour réaliser la vente de ce terrain.
L’actualité immobilière à Saint-Sernin-du-Bois
27/11/2023
02/11/2023
30/10/2023
20/10/2023
16/10/2023
16/10/2023