Images
Description
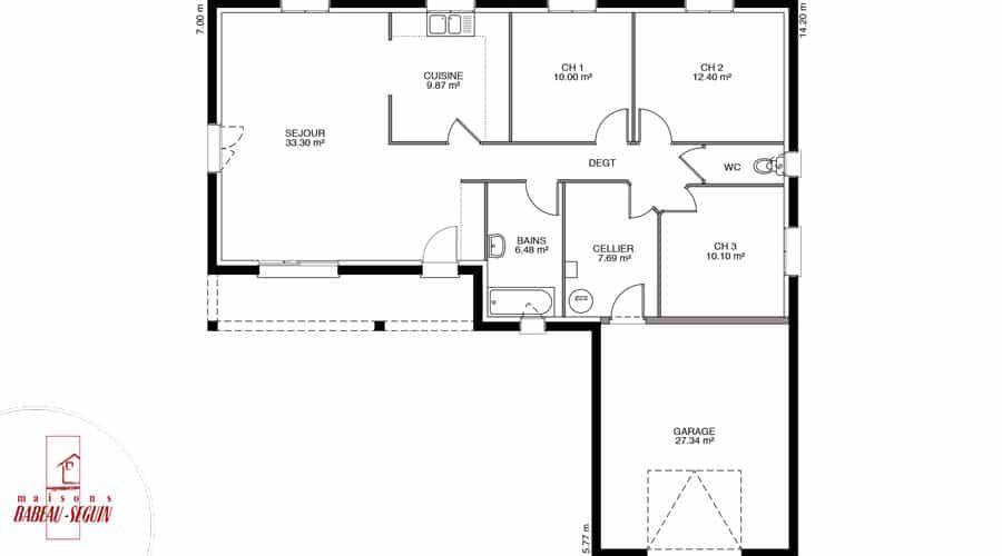
Sur ce terrain, nous vous proposons cette maison neuve, la Sauvetière, conçue par Babeau-Seguin, constructeur reconnu pour offrir le meilleur rapport qualité/prix du marché.
La Sauvetière est sans aucun doute à classer dans la catégorie maison moderne de notre catalogue. Cette maison plain-pied traditionnelle de 80 m² vous séduira par son audacieux plan en forme de L et ses touches résolument modernes. Elle dispose de 3 pièces, dont 2 chambres confortables, et d'un vaste séjour lumineux.
L'architecture en L de la Sauvetière abrite un garage accolé, offrant un accès direct à la maison. Vous avez le choix entre une toiture à 2 pans ou à 4 pans, selon vos préférences esthétiques.
Cette maison neuve est basse consommation et conforme à la RE2020, garantissant des performances énergétiques optimales et un confort de vie inégalé.
Ne manquez pas cette opportunité unique de devenir propriétaire d'une maison moderne, économe en énergie et parfaitement adaptée à vos besoins. Contactez-nous dès maintenant pour plus d'informations et pour planifier une visite du terrain.
Logement susceptibles de vous intéresser
Nous vous proposons de découvrir aussi cette sélection de logements situés à moins de 10km de Virey-le-Grand et qui seraient susceptibles de vous intéresser.
Chaudenay
TERRAINCHAUDENAYVenez découvrir ce terrain à bâtir d’une surface de 1203m2 situé à Chaudenay. Entièrement viabilisé. Terrain disposant des raccordements aux réseaux d’eau potable, d’électricité, d’assainissement collectif et de télécommunication en limite de parcelle. Surface de plancher autorisée de maximum 300 m2.A découvrir rapidement.Les informations sur les risques auxquels ce bien est exposé sont disponibles sur le site Géorisques : www.georisques.gouv.fr
Chaudenay
TERRAINCHAUDENAYTerrain à bâtir d’une surface de 1103m2 situé à Chaudenay. Entièrement viabilisé. Terrain disposant des raccordements aux réseaux d’eau potable, d’électricité, d’assainissement collectif et de télécommunication en limite de parcelle. Surface de plancher autorisée de maximum 300 m2.NEYRAT Immobilier – Antonin LECUELLE – (Numéro supprimé)Les informations sur les risques auxquels ce bien est exposé sont disponibles sur le site Géorisques : www.georisques.gouv.fr
Allériot
TERRAINÀ vendre, un terrain de 1001 m², idéalement situé dans la paisible commune d’Allériot, dans le département de la Saône-et-Loire. Ce terrain, non viabilisé, offre un cadre champêtre à couper le souffle et constitue l’emplacement parfait pour réaliser votre projet de construction de maison. Profitez d’un environnement calme et serein, où la verdure et la tranquillité sont au rendez-vous, tout en étant à proximité des commodités nécessaires pour un quotidien agréable. Allériot, au cœur de la région Bourgogne-Franche-Comté, se distingue par son charme rural et ses atouts locaux. Vous trouverez à proximité des attractions authentiques, ainsi que des services tels que des commerces, des écoles et des espaces de loisirs. Évoluez dans un cadre de vie convivial, où les promenades en nature et les rencontres entre voisins font partie intégrante de la vie quotidienne. Ce terrain représente une opportunité inégalée pour ceux qui rêvent de bâtir leur havre de paix dans un environnement privilégié. Ne manquez pas l’occasion d’acquérir ce terrain prometteur à Allériot, lieu idéal pour concrétiser votre projet de vie. Contactez-nous dès aujourd’hui pour profiter de cette offre ! À noter qu’en tant que constructeur, nous ne sommes pas mandatés pour réaliser la vente de ce terrain.
Allériot
TERRAIN ET MAISONSur ce terrain, nous vous proposons cette maison neuve, modèle Mézière, conçue par Babeau-Seguin, constructeur offrant le meilleur rapport qualité/prix du marché. Avec une surface de 108 m², cette maison basse consommation, conforme à la RE2020, saura répondre à toutes vos attentes.La Mézière se distingue par son plan en L, disponible en version 2 pans ou 4 pans, et ses 4 chambres spacieuses réparties sur 4 pièces. Grâce à ses nombreuses versions, elle sait séduire et s’adapter aux besoins de chacun, ce qui fait de la Mézière une véritable maison sur mesure.Les options les plus demandées par nos clients, telles que les menuiseries en aluminium, la domotique, ainsi que le garage ou le sous-sol, sont disponibles pour personnaliser votre maison selon vos envies et besoins.Véritable coup de cœur pour de nombreux clients Babeau-Seguin, la Mézière est facilement modifiable, ce qui justifie pleinement son succès. Craquerez-vous aussi pour elle ?N’attendez plus pour découvrir cette maison qui répondra aux besoins de nombreuses familles. Contactez-nous pour plus d’informations et pour organiser une visite.
Allériot
TERRAINDécouvrez ce terrain d’une surface de 940 m², idéalement situé dans le charmant lotissement de la commune d’Allériot, dans le département de Saône-et-Loire. Ce terrain viabilisé est une opportunité rare pour concrétiser votre projet de construction de maison dans un cadre champêtre, au calme. Avec ses caractéristiques uniques, ce terrain s’inscrit parfaitement dans un environnement paisible, propice à la détente et à l’épanouissement familial. Allériot, une commune de Bourgogne-Franche-Comté, bénéficie d’un emplacement privilégié, entourée de paysages verdoyants et de sentiers pittoresques. La région offre une multitude d’attractions locales, allant des activités de plein air aux charmantes petites boutiques du centre-ville. Vous aurez également accès à toutes les commodités nécessaires, telles que les écoles, les services de santé et les commerces, garantissant ainsi un cadre de vie agréable et fonctionnel. Ce terrain représente un point de départ idéal pour créer votre havre de paix, tout en étant proche des dynamiques urbaines de la région. Ne manquez pas cette opportunité unique de faire de votre rêve de construction une réalité dans un cadre idyllique. Nous vous invitons à envisager ce terrain exceptionnel pour votre futur projet de vie. À noter qu’en tant que constructeur, nous ne sommes pas mandatés pour réaliser la vente de ce terrain.
Allériot
TERRAIN ET MAISONSur ce terrain, nous vous proposons cette maison neuve, la Sauvetière, conçue par Babeau-Seguin, constructeur reconnu pour offrir le meilleur rapport qualité/prix du marché. La Sauvetière est sans aucun doute à classer dans la catégorie maison moderne de notre catalogue. Cette maison plain-pied traditionnelle de 80 m² vous séduira par son audacieux plan en forme de L et ses touches résolument modernes. Elle dispose de 3 pièces, dont 2 chambres confortables, et d’un vaste séjour lumineux.L’architecture en L de la Sauvetière abrite un garage accolé, offrant un accès direct à la maison. Vous avez le choix entre une toiture à 2 pans ou à 4 pans, selon vos préférences esthétiques.Cette maison neuve est basse consommation et conforme à la RE2020, garantissant des performances énergétiques optimales et un confort de vie inégalé. Ne manquez pas cette opportunité unique de devenir propriétaire d’une maison moderne, économe en énergie et parfaitement adaptée à vos besoins. Contactez-nous dès maintenant pour plus d’informations et pour planifier une visite du terrain.
Allériot
TERRAINNous vous présentons un terrain à vendre idéalement situé à Allériot, dans le département de la Saône-et-Loire, en région Bourgogne-Franche-Comté. Avec une superficie généreuse de 943 m², ce terrain non viabilisé offre un potentiel incroyable pour un projet de construction de maison. Profitez d’un cadre champêtre, au calme, qui saura séduire les amoureux de la nature désireux de créer leur havre de paix. Ce terrain est une occasion rare à saisir pour établir votre résidence dans un environnement serein et agréable. Allériot bénéficie d’une localisation privilégiée, entourée de paysages verdoyants et d’une atmosphère paisible, tout en conservant un accès facile aux commodités essentielles. La ville offre un cadre de vie agréable, avec des infrastructures locales accessibles, ainsi que des attractions naturelles à proximité. La région Bourgogne-Franche-Comté est réputée pour ses richesses culturelles et gastronomiques, et Allériot ne fait pas exception, promettant ainsi une qualité de vie incomparable. Que vous soyez en quête d’activités de plein air ou de tranquillité, ce secteur saura répondre à toutes vos attentes. Ce terrain représente une opportunité unique pour concrétiser votre rêve de construction. N’attendez plus pour envisager cette occasion exceptionnelle ! À noter qu’en tant que constructeur, nous ne sommes pas mandatés pour réaliser la vente de ce terrain.
Allériot
TERRAIN ET MAISONSur ce terrain, nous vous proposons cette maison neuve, la Ménilière, un modèle plain-pied moderne qui saura répondre à toutes vos attentes. Avec une surface de 73 m², cette maison dispose de 3 pièces, dont 2 chambres, et intègre de base un garage ainsi qu’une longue galerie sur la face avant.Véritable « »tout-en-un » » de la maison individuelle, la Ménilière est idéale pour votre projet de construction sur-mesure. Elle est disponible avec un toit à 2 pans ou 4 pans, selon vos préférences esthétiques. Le garage intégré et la galerie avant ajoutent une touche de praticité et de confort à votre quotidien.Parmi les options les plus demandées par nos clients, vous pouvez opter pour des menuiseries en aluminium et un sous-sol, afin de personnaliser encore davantage votre future maison.Cette maison neuve est basse consommation et conforme à la RE2020, garantissant ainsi des performances énergétiques optimales et un respect des normes environnementales actuelles.Le constructeur Babeau-Seguin, reconnu pour offrir le meilleur rapport qualité/prix du marché, vous accompagne dans la réalisation de votre projet de vie. Avec un prix serré et une personnalisation facile, il n’est pas étonnant que la Ménilière soit dans le top 5 des ventes de Babeau-Seguin.Ne manquez pas cette opportunité unique de devenir propriétaire d’une maison moderne, fonctionnelle et économe en énergie. Contactez-nous dès maintenant pour plus d’informations et pour visiter ce modèle sur notre terrain.
Virey-le-Grand
TERRAINDécouvrez ce terrain exceptionnel à vendre dans le charmant lotissement de Virey-le-Grand, offrant une surface généreuse de 697 m². Viabilisé, ce terrain dispose de toutes les infrastructures requises pour réaliser votre projet de construction de maison. Niché dans un cadre tranquille et arboré, il est idéal pour y bâtir un foyer de rêve dans un environnement paisible et serein. Située dans le département de la Saône-et-Loire, en Bourgogne-Franche-Comté, Virey-le-Grand bénéficie d’une localisation privilégiée à proximité des commerces et de toutes les commodités nécessaires. Les écoles, ainsi que le collège et le lycée, se trouvent à quelques pas, offrant ainsi une qualité de vie appréciable pour les familles. Ce village, avec son cadre champêtre et ses environs calmes, vous séduira par son ambiance conviviale et son accessibilité aux attractions locales. Ne manquez pas cette opportunité d’acquérir un terrain au fort potentiel dans une belle région. Contactez-nous pour explorer les possibilités qu’offre ce bien unique. À noter qu’en tant que constructeur, nous ne sommes pas mandatés pour réaliser la vente de ce terrain.
L’actualité immobilière à Virey-le-Grand
27/11/2023
02/11/2023
30/10/2023
20/10/2023
16/10/2023
16/10/2023