Images
Description
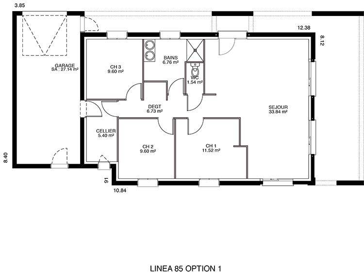
Nous vous proposons cette maison neuve, baptisée Linea, un modèle qui incarne la modernité, le charme et le raffinement. Conçue pour répondre aux attentes des plus exigeants, Linea offre une surface habitable de 95 m², intelligemment répartie entre 3 chambres et une pièce de vie spacieuse, promettant confort et bien-être au quotidien.
Ce modèle se distingue par son architecture audacieuse, avec un voile de béton qui lui confère une allure à la fois moderne et intemporelle, ainsi qu'un garage intégré pour plus de praticité. La structure linéaire de Linea, pensée pour optimiser chaque espace, s'accompagne d'une distribution des pièces favorisant une basse consommation énergétique. Cette maison est donc parfaitement conforme à la norme RE2020, garantissant une performance énergétique de premier plan pour un habitat respectueux de l'environnement.
Les options les plus plébiscitées par nos clients, telles que des solutions d'isolation avancées et des systèmes de chauffage performants, sont disponibles pour personnaliser votre maison selon vos besoins et vos envies. Linea se veut être un havre de paix où modernité rime avec écologie.
Laissez-vous séduire par le cachet unique de Linea, où chaque détail, des portiques à la pergola, en passant par les voiles architecturaux, a été pensé pour offrir un cadre de vie exceptionnel. Cette maison est une invitation à profiter d'un confort quotidien, tout en faisant un choix responsable pour l'avenir de notre planète.
Choisir Linea, c'est opter pour une maison neuve basse consommation, alliant esthétique et performances énergétiques, pour une qualité de vie inégalée. Ne manquez pas cette opportunité de construire la maison de vos rêves, conforme aux dernières normes environnementales. Linea, une maison où il fait bon vivre, aujourd'hui et demain.
Logement susceptibles de vous intéresser
Nous vous proposons de découvrir aussi cette sélection de logements situés à moins de 10km de Ardenay-sur-Mérize et qui seraient susceptibles de vous intéresser.
Ardenay-sur-Mérize
TERRAIN ET MAISONNous vous proposons cette maison neuve, baptisée Linea, un modèle qui incarne la modernité, le charme et le raffinement. Conçue pour répondre aux attentes des plus exigeants, Linea offre une surface habitable de 95 m², intelligemment répartie entre 3 chambres et une pièce de vie spacieuse, promettant confort et bien-être au quotidien.Ce modèle se distingue par son architecture audacieuse, avec un voile de béton qui lui confère une allure à la fois moderne et intemporelle, ainsi qu’un garage intégré pour plus de praticité. La structure linéaire de Linea, pensée pour optimiser chaque espace, s’accompagne d’une distribution des pièces favorisant une basse consommation énergétique. Cette maison est donc parfaitement conforme à la norme RE2020, garantissant une performance énergétique de premier plan pour un habitat respectueux de l’environnement.Les options les plus plébiscitées par nos clients, telles que des solutions d’isolation avancées et des systèmes de chauffage performants, sont disponibles pour personnaliser votre maison selon vos besoins et vos envies. Linea se veut être un havre de paix où modernité rime avec écologie.Laissez-vous séduire par le cachet unique de Linea, où chaque détail, des portiques à la pergola, en passant par les voiles architecturaux, a été pensé pour offrir un cadre de vie exceptionnel. Cette maison est une invitation à profiter d’un confort quotidien, tout en faisant un choix responsable pour l’avenir de notre planète.Choisir Linea, c’est opter pour une maison neuve basse consommation, alliant esthétique et performances énergétiques, pour une qualité de vie inégalée. Ne manquez pas cette opportunité de construire la maison de vos rêves, conforme aux dernières normes environnementales. Linea, une maison où il fait bon vivre, aujourd’hui et demain.
Ardenay-sur-Mérize
TERRAINÀ la recherche d’un terrain idéal pour votre projet de construction de maison ? Ne cherchez plus ! Ce terrain viabilisé de 26 m² situé à Ardenay-sur-Mérize, dans le département de la Sarthe, est une opportunité rare à saisir. Profitez d’un emplacement exceptionnel, au cœur de la ville, où vous bénéficierez d’un cadre de vie agréable et sécurisé pour votre future habitation. Cet espace est parfait pour réaliser la maison de vos rêves, dans une commune en pleine croissance, offrant ainsi un potentiel indéniable pour les acheteurs avisés. Ardenay-sur-Mérize est une charmante ville du Pays de la Loire, offrant un accès facile à de nombreuses commodités. Vous y trouverez des commerces de proximité, des écoles et des infrastructures sportives, tout en étant à quelques minutes des grandes attractions locales. La ville bénéficie d’un cadre verdoyant et d’une vie communautaire dynamique, faisant d’elle un lieu de vie idéal pour les familles, les jeunes professionnels et même les retraités. Ne laissez pas passer cette occasion unique de devenir propriétaire dans cette localité prisée au prix exceptionnel ! Investissez dans ce terrain qui regorge de potentiel. Contactez-nous dès maintenant pour découvrir cette offre exclusive ! À noter qu’en tant que constructeur, nous ne sommes pas mandatés pour réaliser la vente de ce terrain.
Soulitré
TERRAIN ET MAISONNous vous proposons cette maison neuve, baptisée « »Élégance » », un modèle qui se distingue par sa forme architecturale en L, offrant à la fois style et fonctionnalité sur une surface habitable de 103 m². Conçue pour répondre aux attentes des plus exigeants, cette maison de plain-pied combine harmonieusement espace et confort, avec un total de 4 pièces, dont 4 chambres spacieuses, promettant ainsi un cadre de vie idéal pour toute la famille.L’entrée s’ouvre sur un vaste salon-séjour baigné de lumière, grâce à sa conception ouverte qui s’étend jusqu’à la cuisine, créant un espace de vie convivial et accueillant. L’intégration d’un garage attenant et d’un cellier pratique souligne la pensée méticuleuse mise dans la conception de cette maison, visant à allier esthétique et fonctionnalité.L’une des caractéristiques les plus appréciées de ce modèle est son enduit bi-ton, qui ajoute une touche de modernité et d’élégance à l’extérieur, reflétant le nom même de la maison. De plus, cette maison est entièrement personnalisable, vous permettant d’adapter chaque espace à votre mode de vie et à vos préférences, assurant ainsi que votre futur foyer réponde parfaitement à vos attentes.Au-delà de son design attrayant, « »Élégance » » est une maison basse consommation, rigoureusement conçue pour respecter les normes de la RE2020. Cette caractéristique garantit non seulement un confort optimal tout au long de l’année mais aussi des économies significatives sur les factures d’énergie, soulignant notre engagement envers la durabilité et le respect de l’environnement.En choisissant « »Élégance » », vous optez pour une maison qui allie beauté, confort et responsabilité environnementale. Une opportunité à ne pas manquer pour ceux qui cherchent à construire leur nid familial dans un cadre de vie à la fois moderne et économe en énergie.
Soulitré
TERRAINDécouvrez ce magnifique terrain à vendre, idéalement situé au cœur de Soulitré, dans le département de la Sarthe, en Pays de la Loire. D’une surface généreuse de 509 m², ce terrain viabilisé offre un cadre charmant et arboré, propice à la construction de votre future maison. Avec ses caractéristiques uniques, ce bien constitue une opportunité rare et exclusive. Ne laissez pas passer cette chance de réaliser votre projet dans un environnement paisible et agréable. Profitez de la proximité immédiate du centre-ville et de ses commodités, avec un accès facile aux commerces de proximité, rendant votre quotidien plus pratique. La ville de Soulitré est appréciée pour son cadre champêtre au calme et sa convivialité. Vous serez également à quelques pas d’attractions locales qui ancrent ce territoire dans une dynamique de vie enrichissante. Ce terrain promet non seulement un espace de vie idéal, mais également un cadre de vie exceptionnel. Saisissez cette opportunité unique de construire la maison de vos rêves dans un emplacement de choix. N’attendez plus pour envisager cette belle aventure ! À noter qu’en tant que constructeur, nous ne sommes pas mandatés pour réaliser la vente de ce terrain.
Changé
TERRAINSitué dans la commune paisible de Changé, dans le département de la Sarthe, ce terrain à vendre de 792 m² est une opportunité exceptionnelle pour tous ceux qui envisagent de réaliser un projet de construction de maison. Ce lot vous offre un cadre de vie calme et agréable, avec une vue dégagée sur les paysages environnants, idéal pour se ressourcer. Sa superficie et sa forme plate facilitent toutes vos ambitions architecturales. La ville de Changé, intégrée au dynamique Pays de la Loire, est réputée pour sa proximité avec les commerces et ses nombreuses commodités. Vous découvrirez un environnement est propice à la vie de famille, avec des services accessibles à quelques minutes à pied. Ce secteur, apprécié pour son ambiance tranquille, permet de profiter pleinement de la nature tout en restant proche des activités urbaines. En choisissant ce terrain, vous placez votre projet au sein d’une communauté agréable, offrant ainsi un cadre de vie des plus harmonieux. Ne manquez pas cette opportunité unique d’acquérir un terrain prometteur, idéal pour bâtir la maison de vos rêves. Contactez-nous pour en savoir plus! À noter qu’en tant que constructeur, nous ne sommes pas mandatés pour réaliser la vente de ce terrain.
Changé
TERRAIN ET MAISONNous vous proposons cette maison neuve, baptisée « »Rubis » », une demeure qui incarne la perfection pour les familles en quête d’un foyer à la fois moderne, fonctionnel et économique. Avec une surface généreuse de 98 m², cette maison est conçue pour maximiser votre confort et répondre à toutes vos attentes.La Rubis se distingue par son excellent rapport qualité/prix, offrant non seulement 4 chambres spacieuses mais aussi un total de 4 pièces bien agencées, garantissant ainsi un espace de vie optimal pour chaque membre de la famille. La pièce de vie, véritable cœur de la maison, s’étend sur plus de 40 m², offrant un espace ouvert et lumineux, idéal pour partager des moments précieux en famille ou entre amis.L’un des atouts majeurs de cette maison est sans doute ses combles aménageables, qui offrent la possibilité d’agrandir l’espace habitable selon vos besoins et vos envies, ajoutant ainsi une valeur considérable à votre investissement. De plus, la Rubis intègre un garage, solution pratique pour sécuriser votre véhicule et stocker vos équipements.Construite dans le respect de la norme RT2020, la Rubis est une maison basse consommation, conçue pour minimiser votre empreinte écologique tout en réduisant vos factures d’énergie. Cette maison neuve est conforme à la RE2020, vous assurant ainsi un confort thermique de premier ordre et une qualité de vie inégalée.Les options les plus plébiscitées par nos clients, telles que la basse consommation énergétique, sont au cœur de la conception de la Rubis, reflétant notre engagement à répondre aux attentes les plus exigeantes en termes de durabilité et d’efficacité énergétique.La façade décalée de la Rubis lui confère un caractère unique, avec un séjour agréablement agencé qui se distingue nettement de la partie nuit, le tout à un prix des plus accessibles.Choisir la maison Rubis, c’est opter pour une demeure qui allie esthétique, fonctionnalité et respect de l’environnement, le tout conçu pour enrichir votre quotidien.
Ardenay-sur-Mérize
TERRAINNous avons le plaisir de vous présenter ce magnifique terrain à vendre, situé dans le charmant lotissement d’Ardenay-sur-Mérize, dans la Sarthe. D’une surface généreuse, ce terrain viabilisé offre un cadre idéal pour la construction de votre maison de rêve. Sa situation privilégiée au cœur de la nature préserve la tranquillité tout en offrant un accès facile aux commodités locales, en faisant un lieu de vie exceptionnel pour les familles ou ceux en quête de calme et de qualité de vie. Ce terrain constitue une opportunité rare, étant le dernier disponible dans le secteur. Ardenay-sur-Mérize est une ville dynamique qui combine charme provincial et convivialité. Située dans la région des Pays de la Loire, elle bénéficie d’un accès rapide aux principales infrastructures de transport, ainsi qu’à des activités de loisirs et culturelles. Vous y trouverez des commerces de proximité, des services, et une atmosphère paisible propice aux promenades. Profitez de la beauté des paysages environnants et des nombreux parcs qui embellissent la ville, offrant ainsi un cadre de vie idéal pour les amoureux de la nature tout en étant proche des attractions locales. Ce terrain représente une opportunité unique de bâtir votre futur projet de vie dans un environnement serein et agréable. N’attendez plus pour envisager cette chance d’acquérir un bien rare dans ce secteur prisé. À noter qu’en tant que constructeur, nous ne sommes pas mandatés pour réaliser la vente de ce terrain.
Ardenay-sur-Mérize
TERRAIN ET MAISONNous vous proposons cette maison neuve, baptisée « »Neptune » », un modèle de résidence qui allie avec brio fonctionnalité et esthétique, spécialement conçue pour s’intégrer harmonieusement en milieu urbain. Avec une surface habitable de 88 m² répartie sur deux niveaux, cette maison est l’incarnation même du confort moderne pour toute famille à la recherche d’un foyer chaleureux et accueillant.Neptune se distingue par ses combles aménagés, offrant ainsi un espace supplémentaire qui peut être transformé en bureau, salle de jeux, ou encore en une chambre d’amis, selon vos besoins et envies. Le garage intégré est un atout majeur, garantissant non seulement la sécurité de votre véhicule mais aussi une optimisation de l’espace extérieur de votre propriété.L’architecture de Neptune est pensée pour maximiser la lumière naturelle au sein de votre foyer, grâce à de grandes baies coulissantes qui ouvrent votre espace de vie sur l’extérieur, permettant ainsi une transition fluide entre votre jardin et votre intérieur. Cette maison à étage offre un cadre de vie des plus agréables, avec une vaste pièce à vivre au rez-de-chaussée et trois chambres à l’étage, conçues pour garantir l’intimité et le confort de chacun.Conforme à la norme RE2020, Neptune est une maison basse consommation, conçue avec des matériaux et des technologies de pointe pour réduire votre empreinte carbone tout en optimisant votre confort thermique tout au long de l’année. Ce modèle répond aux attentes les plus exigeantes en matière d’économie d’énergie et de respect de l’environnement, vous assurant ainsi des économies substantielles sur vos factures énergétiques.Choisir Neptune, c’est opter pour une maison qui combine esthétique, confort et performance énergétique, le tout dans un cadre de vie idéalement pensé pour le bien-être de toute la famille. Ne manquez pas l’opportunité de construire la maison de vos rêves, une demeure où chaque détail a été conçu pour répondre à vos attentes les plus élevées.
Changé
TERRAINTerrain de 1 085 m² en vente à ChangéIDÉALEMENT SITUÉ – PROCHE DU MANSÀ quelques kilomètres du Mans à Changé (72560), grand terrain. Il est prêt à accueillir votre projet de construction pour toute la famille. Ce terrain, avec vue sur bois, est exposé plein ouest. Dans un secteur recherché, le terrain idéalement situé est proche des écoles et des commerces. Il y a l’École Élémentaire Publique de l’Epau, le Collège Jacques Peletier et l’École Maternelle Publique de l’Auneau à moins de 10 minutes à pied. Niveau transports en commun, on trouve quatre gares à moins de 10 minutes en voiture. Les autoroutes A28 et A11 sont accessibles à moins de 7 km. Il y a un tennis, quatre commerces, deux boulangeries, un supermarché, une supérette et une boucherie-charcuterie à proximité de la propriété.Son prix de vente est de 180 000 €. Contactez notre agence (François HOUDAYER : (Numéro supprimé)) pour plus de renseignements sur ce terrain, sur les modalités de vente ou sur les démarches à suivre. Maine Construction Le Mans est là pour vous accompagner dans tous vos projets immobiliers.
L’actualité immobilière à Ardenay-sur-Mérize
27/11/2023
02/11/2023
30/10/2023
20/10/2023
16/10/2023
16/10/2023