Images
Description
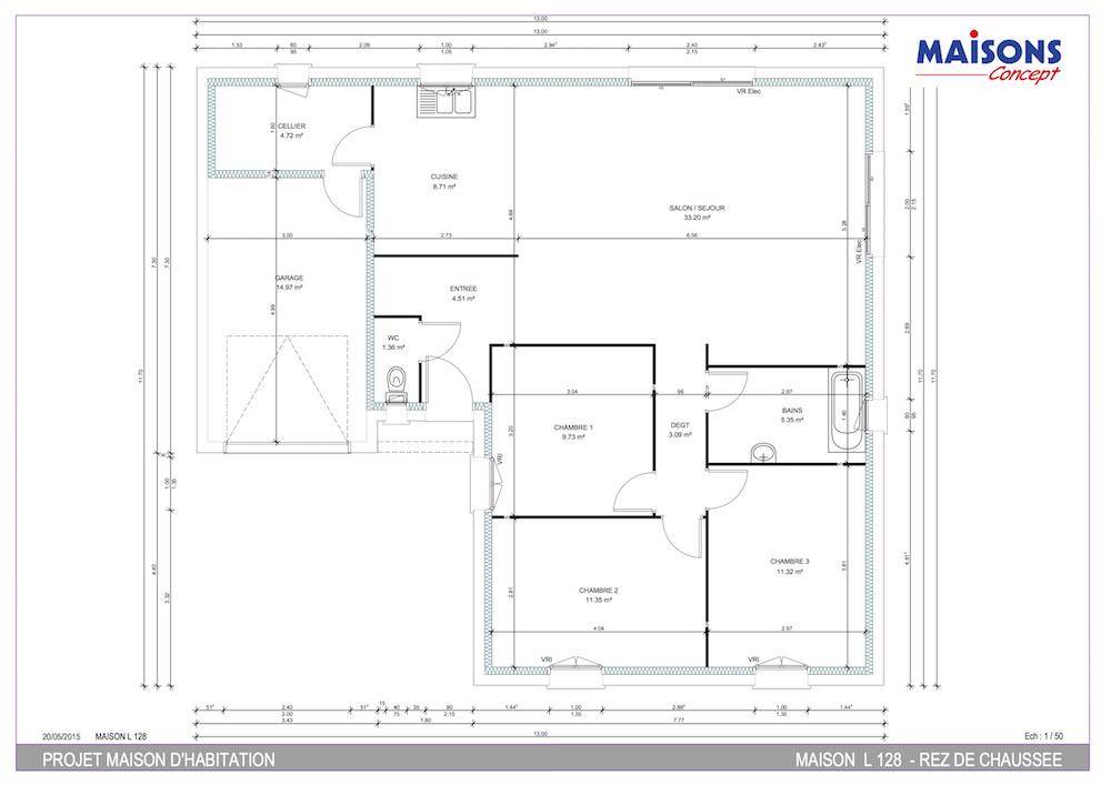
Nous vous proposons cette maison neuve, baptisée ""Élégance"", un modèle qui se distingue par sa forme architecturale en L, offrant à la fois style et fonctionnalité sur une surface habitable de 103 m². Conçue pour répondre aux attentes des plus exigeants, cette maison de plain-pied combine harmonieusement espace et confort, avec un total de 4 pièces, dont 4 chambres spacieuses, promettant ainsi un cadre de vie idéal pour toute la famille.
L'entrée s'ouvre sur un vaste salon-séjour baigné de lumière, grâce à sa conception ouverte qui s'étend jusqu'à la cuisine, créant un espace de vie convivial et accueillant. L'intégration d'un garage attenant et d'un cellier pratique souligne la pensée méticuleuse mise dans la conception de cette maison, visant à allier esthétique et fonctionnalité.
L'une des caractéristiques les plus appréciées de ce modèle est son enduit bi-ton, qui ajoute une touche de modernité et d'élégance à l'extérieur, reflétant le nom même de la maison. De plus, cette maison est entièrement personnalisable, vous permettant d'adapter chaque espace à votre mode de vie et à vos préférences, assurant ainsi que votre futur foyer réponde parfaitement à vos attentes.
Au-delà de son design attrayant, ""Élégance"" est une maison basse consommation, rigoureusement conçue pour respecter les normes de la RE2020. Cette caractéristique garantit non seulement un confort optimal tout au long de l'année mais aussi des économies significatives sur les factures d'énergie, soulignant notre engagement envers la durabilité et le respect de l'environnement.
En choisissant ""Élégance"", vous optez pour une maison qui allie beauté, confort et responsabilité environnementale. Une opportunité à ne pas manquer pour ceux qui cherchent à construire leur nid familial dans un cadre de vie à la fois moderne et économe en énergie.
Logement susceptibles de vous intéresser
Nous vous proposons de découvrir aussi cette sélection de logements situés à moins de 10km de Soulitré et qui seraient susceptibles de vous intéresser.
Ardenay-sur-Mérize
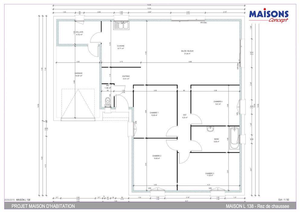
TERRAIN ET MAISONNous vous proposons cette maison neuve, baptisée Linea, un modèle qui incarne la modernité, le charme et le raffinement. Conçue pour répondre aux attentes des plus exigeants, Linea offre une surface habitable de 95 m², intelligemment répartie entre 3 chambres et une pièce de vie spacieuse, promettant confort et bien-être au quotidien.Ce modèle se distingue par son architecture audacieuse, avec un voile de béton qui lui confère une allure à la fois moderne et intemporelle, ainsi qu’un garage intégré pour plus de praticité. La structure linéaire de Linea, pensée pour optimiser chaque espace, s’accompagne d’une distribution des pièces favorisant une basse consommation énergétique. Cette maison est donc parfaitement conforme à la norme RE2020, garantissant une performance énergétique de premier plan pour un habitat respectueux de l’environnement.Les options les plus plébiscitées par nos clients, telles que des solutions d’isolation avancées et des systèmes de chauffage performants, sont disponibles pour personnaliser votre maison selon vos besoins et vos envies. Linea se veut être un havre de paix où modernité rime avec écologie.Laissez-vous séduire par le cachet unique de Linea, où chaque détail, des portiques à la pergola, en passant par les voiles architecturaux, a été pensé pour offrir un cadre de vie exceptionnel. Cette maison est une invitation à profiter d’un confort quotidien, tout en faisant un choix responsable pour l’avenir de notre planète.Choisir Linea, c’est opter pour une maison neuve basse consommation, alliant esthétique et performances énergétiques, pour une qualité de vie inégalée. Ne manquez pas cette opportunité de construire la maison de vos rêves, conforme aux dernières normes environnementales. Linea, une maison où il fait bon vivre, aujourd’hui et demain.
Ardenay-sur-Mérize
TERRAINÀ la recherche d’un terrain idéal pour votre projet de construction de maison ? Ne cherchez plus ! Ce terrain viabilisé de 26 m² situé à Ardenay-sur-Mérize, dans le département de la Sarthe, est une opportunité rare à saisir. Profitez d’un emplacement exceptionnel, au cœur de la ville, où vous bénéficierez d’un cadre de vie agréable et sécurisé pour votre future habitation. Cet espace est parfait pour réaliser la maison de vos rêves, dans une commune en pleine croissance, offrant ainsi un potentiel indéniable pour les acheteurs avisés. Ardenay-sur-Mérize est une charmante ville du Pays de la Loire, offrant un accès facile à de nombreuses commodités. Vous y trouverez des commerces de proximité, des écoles et des infrastructures sportives, tout en étant à quelques minutes des grandes attractions locales. La ville bénéficie d’un cadre verdoyant et d’une vie communautaire dynamique, faisant d’elle un lieu de vie idéal pour les familles, les jeunes professionnels et même les retraités. Ne laissez pas passer cette occasion unique de devenir propriétaire dans cette localité prisée au prix exceptionnel ! Investissez dans ce terrain qui regorge de potentiel. Contactez-nous dès maintenant pour découvrir cette offre exclusive ! À noter qu’en tant que constructeur, nous ne sommes pas mandatés pour réaliser la vente de ce terrain.
Soulitré
TERRAIN ET MAISONNous vous proposons cette maison neuve, baptisée « »Élégance » », un modèle qui se distingue par sa forme architecturale en L, offrant à la fois style et fonctionnalité sur une surface habitable de 103 m². Conçue pour répondre aux attentes des plus exigeants, cette maison de plain-pied combine harmonieusement espace et confort, avec un total de 4 pièces, dont 4 chambres spacieuses, promettant ainsi un cadre de vie idéal pour toute la famille.L’entrée s’ouvre sur un vaste salon-séjour baigné de lumière, grâce à sa conception ouverte qui s’étend jusqu’à la cuisine, créant un espace de vie convivial et accueillant. L’intégration d’un garage attenant et d’un cellier pratique souligne la pensée méticuleuse mise dans la conception de cette maison, visant à allier esthétique et fonctionnalité.L’une des caractéristiques les plus appréciées de ce modèle est son enduit bi-ton, qui ajoute une touche de modernité et d’élégance à l’extérieur, reflétant le nom même de la maison. De plus, cette maison est entièrement personnalisable, vous permettant d’adapter chaque espace à votre mode de vie et à vos préférences, assurant ainsi que votre futur foyer réponde parfaitement à vos attentes.Au-delà de son design attrayant, « »Élégance » » est une maison basse consommation, rigoureusement conçue pour respecter les normes de la RE2020. Cette caractéristique garantit non seulement un confort optimal tout au long de l’année mais aussi des économies significatives sur les factures d’énergie, soulignant notre engagement envers la durabilité et le respect de l’environnement.En choisissant « »Élégance » », vous optez pour une maison qui allie beauté, confort et responsabilité environnementale. Une opportunité à ne pas manquer pour ceux qui cherchent à construire leur nid familial dans un cadre de vie à la fois moderne et économe en énergie.
Soulitré
TERRAINDécouvrez ce magnifique terrain à vendre, idéalement situé au cœur de Soulitré, dans le département de la Sarthe, en Pays de la Loire. D’une surface généreuse de 509 m², ce terrain viabilisé offre un cadre charmant et arboré, propice à la construction de votre future maison. Avec ses caractéristiques uniques, ce bien constitue une opportunité rare et exclusive. Ne laissez pas passer cette chance de réaliser votre projet dans un environnement paisible et agréable. Profitez de la proximité immédiate du centre-ville et de ses commodités, avec un accès facile aux commerces de proximité, rendant votre quotidien plus pratique. La ville de Soulitré est appréciée pour son cadre champêtre au calme et sa convivialité. Vous serez également à quelques pas d’attractions locales qui ancrent ce territoire dans une dynamique de vie enrichissante. Ce terrain promet non seulement un espace de vie idéal, mais également un cadre de vie exceptionnel. Saisissez cette opportunité unique de construire la maison de vos rêves dans un emplacement de choix. N’attendez plus pour envisager cette belle aventure ! À noter qu’en tant que constructeur, nous ne sommes pas mandatés pour réaliser la vente de ce terrain.
Ardenay-sur-Mérize
TERRAINNous avons le plaisir de vous présenter ce magnifique terrain à vendre, situé dans le charmant lotissement d’Ardenay-sur-Mérize, dans la Sarthe. D’une surface généreuse, ce terrain viabilisé offre un cadre idéal pour la construction de votre maison de rêve. Sa situation privilégiée au cœur de la nature préserve la tranquillité tout en offrant un accès facile aux commodités locales, en faisant un lieu de vie exceptionnel pour les familles ou ceux en quête de calme et de qualité de vie. Ce terrain constitue une opportunité rare, étant le dernier disponible dans le secteur. Ardenay-sur-Mérize est une ville dynamique qui combine charme provincial et convivialité. Située dans la région des Pays de la Loire, elle bénéficie d’un accès rapide aux principales infrastructures de transport, ainsi qu’à des activités de loisirs et culturelles. Vous y trouverez des commerces de proximité, des services, et une atmosphère paisible propice aux promenades. Profitez de la beauté des paysages environnants et des nombreux parcs qui embellissent la ville, offrant ainsi un cadre de vie idéal pour les amoureux de la nature tout en étant proche des attractions locales. Ce terrain représente une opportunité unique de bâtir votre futur projet de vie dans un environnement serein et agréable. N’attendez plus pour envisager cette chance d’acquérir un bien rare dans ce secteur prisé. À noter qu’en tant que constructeur, nous ne sommes pas mandatés pour réaliser la vente de ce terrain.
Ardenay-sur-Mérize
TERRAIN ET MAISONNous vous proposons cette maison neuve, baptisée « »Neptune » », un modèle de résidence qui allie avec brio fonctionnalité et esthétique, spécialement conçue pour s’intégrer harmonieusement en milieu urbain. Avec une surface habitable de 88 m² répartie sur deux niveaux, cette maison est l’incarnation même du confort moderne pour toute famille à la recherche d’un foyer chaleureux et accueillant.Neptune se distingue par ses combles aménagés, offrant ainsi un espace supplémentaire qui peut être transformé en bureau, salle de jeux, ou encore en une chambre d’amis, selon vos besoins et envies. Le garage intégré est un atout majeur, garantissant non seulement la sécurité de votre véhicule mais aussi une optimisation de l’espace extérieur de votre propriété.L’architecture de Neptune est pensée pour maximiser la lumière naturelle au sein de votre foyer, grâce à de grandes baies coulissantes qui ouvrent votre espace de vie sur l’extérieur, permettant ainsi une transition fluide entre votre jardin et votre intérieur. Cette maison à étage offre un cadre de vie des plus agréables, avec une vaste pièce à vivre au rez-de-chaussée et trois chambres à l’étage, conçues pour garantir l’intimité et le confort de chacun.Conforme à la norme RE2020, Neptune est une maison basse consommation, conçue avec des matériaux et des technologies de pointe pour réduire votre empreinte carbone tout en optimisant votre confort thermique tout au long de l’année. Ce modèle répond aux attentes les plus exigeantes en matière d’économie d’énergie et de respect de l’environnement, vous assurant ainsi des économies substantielles sur vos factures énergétiques.Choisir Neptune, c’est opter pour une maison qui combine esthétique, confort et performance énergétique, le tout dans un cadre de vie idéalement pensé pour le bien-être de toute la famille. Ne manquez pas l’opportunité de construire la maison de vos rêves, une demeure où chaque détail a été conçu pour répondre à vos attentes les plus élevées.
Lombron
TERRAIN ET MAISONVotre conseillère Noovimo Babette Mercent vous propose Maison neuve de plain-pied 4 chambres avec garage à Lombron (72450) Vous rêvez d’une maison récente, spacieuse et économe, située au coeur d’un village dynamique et paisible ? Cette maison de 2022, construite par un constructeur professionnel reconnu, est faite pour vous ! Les atouts principaux :Maison de plain-pied d’environ 104 m2 habitables, parfaitement entretenueConstruction de 2022, encore sous garantie décennalePièce de vie lumineuse et conviviale : entrée, salon-séjour et cuisine ouverteCuisine aménagée et entièrement équipée, avec îlot central, réfrigérateur, congélateur, nombreux rangements et électroménager complet4 chambres dont une suite parentale spacieuse avec salle d’eau privativeSalle d’eau familiale, WC indépendantCellier/buanderie pratique donnant accès au garage (porte motorisée neuve) et au jardin Extérieurs soignés et sans travaux :Terrain clos, gravillonné et enrobéTerrasse bois récente (moins de 2 ans)Pergola bioclimatique installée en 2025Pompe à chaleur neuve (2025) : confort et économies d’énergie assurésDPE : anciennement B, potentiellement classée A avec le nouveau système de chauffage Situation idéale : Située au coeur du village de Lombron, à proximité immédiate des écoles, commerces et parcs de jeux — tout se fait à pied ! 2min des commerces locaux 5 min du supermarché 10 min de la gare 25 min du Mans Moins de 10 min de l’échangeur autoroutier Moins de 2 h de Paris Un bien rare sur le marché, parfait pour une famille, des seniors ou des jeunes retraités souhaitant s’installer sans aucun travaux dans un environnement calme et convivial. Venez découvrir cette maison coup de coeur lors d’une visite ! Babette Mercent Noovimo (Numéro supprimé) (Email supprimé) Honoraires : 3,8% de 221 000EUR ( prix de vente honoraires exclus). Soit 229 400EUR EUR honoraires inclus. Honoraires à la charge de l’acquéreur. Nos honoraires sont consultables sur : (Site supprimé).Les informations sur les risques auxquels ce bien est exposé sont disponibles sur le site Géorisques : (Lien supprimé) Ref : 25248 Votre agent indépendant Noovimo inscrit en portage salarial Free cadre sous couvert de la carte T n(Numéro supprimé)00028735Cette annonce vous est proposée par NOOVIMO OUEST – – NoRSAC: , Enregistré à de – Annonce rédigée et publiée par un Agent Mandataire –
Lombron
TERRAINDécouvrez cette opportunité rare d’acquérir un terrain viabilisé d’une superficie généreuse de 1 200 m², idéalement situé dans la charmante ville de Lombron, au cœur du département de la Sarthe en Pays de la Loire. Ce terrain se prête parfaitement à la réalisation de votre projet de construction de maison, offrant un cadre tranquille et arboré, propice à l’épanouissement familial. Profitez d’un emplacement de choix dans un environnement paisible et verdoyant, où le calme règne en maître tout en étant à proximité des commodités essentielles. Située à seulement quelques kilomètres du centre-ville de Lombron, cette localisation stratégique vous permet de bénéficier des attractions locales et des services variés. Vous trouverez à proximité des commerces, des écoles et des espaces verts, idéaux pour les promenades en famille. La ville de Lombron est reconnue pour son cadre champêtre et son ambiance conviviale, ce qui en fait un lieu de vie privilégié pour ceux en quête de sérénité tout en restant connectés à la vie urbaine. N’attendez plus pour imaginer votre futur chez-vous dans cette ville paisible et accueillante. Ne laissez pas passer cette occasion exceptionnelle d’investir dans un terrain au potentiel de construction prometteur. Contactez-nous dès maintenant pour en savoir plus sur cette offre unique ! À noter qu’en tant que constructeur, nous ne sommes pas mandatés pour réaliser la vente de ce terrain.
Lombron
TERRAIN ET MAISON« Nous vous proposons cette maison neuve, modèle « »Essentiel » », conçue pour allier fonctionnalité, esthétique et performance énergétique. Avec une surface habitable de 94 m², cette maison à étage offre un cadre de vie idéal pour toute la famille. Elle se compose de 4 chambres et totalise 4 pièces, offrant ainsi un espace de vie confortable et bien organisé.**Un prix très attractif**Le modèle Dynamique se distingue par son excellent rapport qualité/prix. Pensée pour répondre à toutes vos attentes, cette maison vous garantit un produit de qualité, fonctionnel et agréable à vivre. Malgré son prix très compétitif, elle ne fait aucun compromis sur la qualité et répond aux dernières normes en matière d’isolation et d’économie d’énergie, conformément à la réglementation environnementale RE2020. Vous bénéficierez ainsi d’une maison basse consommation, vous permettant de réaliser d’importantes économies sur vos factures énergétiques.**Une maison modulable et personnalisable**Le modèle Dynamique offre la possibilité de choisir entre des combles aménagés ou aménageables, selon vos besoins et vos préférences. Vous avez également la possibilité d’ajouter un garage accolé, avec un choix de toit plat ou mono-pente, pour répondre au mieux à vos attentes en termes d’esthétique et de fonctionnalité. La personnalisation est au cœur de notre proposition, vous permettant de sélectionner la couleur de vos tuiles, de vos menuiseries en aluminium, ainsi que la couleur de votre façade pour une maison qui vous ressemble. Les options les plus plébiscitées, telles que la domotique ou l’enduit bi-ton, sont également disponibles pour vous offrir un confort de vie optimal.Cette maison neuve est la solution idéale pour les primo-accédants désireux de s’installer dans un logement basse consommation, respectueux de l’environnement et conforme aux exigences de la RE2020. Avec le modèle Dynamique, vous faites le choix d’un habitat durable, économique et entièrement adapté à vos besoins.N’at
L’actualité immobilière à Soulitré
27/11/2023
02/11/2023
30/10/2023
20/10/2023
16/10/2023
16/10/2023