Images
Description
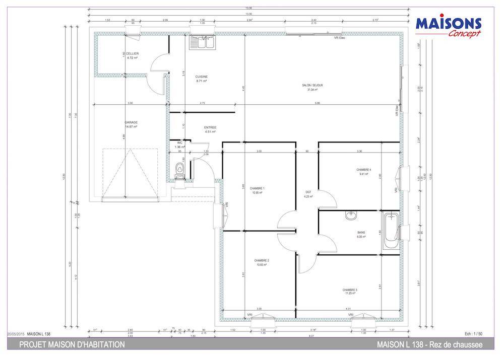
Nous vous proposons cette maison neuve, baptisée ""Élégance"", un modèle qui se distingue par sa forme architecturale en L, offrant à la fois style et fonctionnalité sur une surface habitable de 103 m². Conçue pour répondre aux attentes des plus exigeants, cette maison de plain-pied combine harmonieusement espace et confort, avec un total de 4 pièces, dont 4 chambres spacieuses, promettant ainsi un cadre de vie idéal pour toute la famille.
L'entrée s'ouvre sur un vaste salon-séjour baigné de lumière, grâce à sa conception ouverte qui s'étend jusqu'à la cuisine, créant un espace de vie convivial et accueillant. L'intégration d'un garage attenant et d'un cellier pratique souligne la pensée méticuleuse mise dans la conception de cette maison, visant à allier esthétique et fonctionnalité.
L'une des caractéristiques les plus appréciées de ce modèle est son enduit bi-ton, qui ajoute une touche de modernité et d'élégance à l'extérieur, reflétant le nom même de la maison. De plus, cette maison est entièrement personnalisable, vous permettant d'adapter chaque espace à votre mode de vie et à vos préférences, assurant ainsi que votre futur foyer réponde parfaitement à vos attentes.
Au-delà de son design attrayant, ""Élégance"" est une maison basse consommation, rigoureusement conçue pour respecter les normes de la RE2020. Cette caractéristique garantit non seulement un confort optimal tout au long de l'année mais aussi des économies significatives sur les factures d'énergie, soulignant notre engagement envers la durabilité et le respect de l'environnement.
En choisissant ""Élégance"", vous optez pour une maison qui allie beauté, confort et responsabilité environnementale. Une opportunité à ne pas manquer pour ceux qui cherchent à construire leur nid familial dans un cadre de vie à la fois moderne et économe en énergie.
Logement susceptibles de vous intéresser
Nous vous proposons de découvrir aussi cette sélection de logements situés à moins de 10km de Coulaines et qui seraient susceptibles de vous intéresser.
Champagné
TERRAINDécouvrez ce terrain d’une surface généreuse situé à Champagné à la limite avec la commune de Changé, dans le département de la Sarthe. Viabilisé et prêt à accueillir votre projet de construction, ce magnifique terrain est le dernier disponible dans cette exclusivité recherchée. Profitez d’un cadre champêtre ensoleillé, idéal pour créer la maison de vos rêves. Avec ses caractéristiques uniques, ce terrain représente une opportunité rare pour les acheteurs en quête d’un emplacement paisible et attrayant. Champagne, en Pays de la Loire, séduira les amoureux de la nature et de la tranquillité. Cette charmante ville offre un mélange d’activités locales et de commodités modernes, tout en conservant son authenticité. Proche des axes routiers, elle permet un accès facile aux grandes villes environnantes tout en conservant le charme de la vie rurale. Les attractions locales, telles que ses espaces verts et ses services de proximité, ajoutent à la convivialité de cette agréable commune. N’attendez plus pour découvrir le potentiel incroyable de ce terrain et envisager votre avenir dans ce cadre enchanteur. Une occasion unique d’investir dans un emplacement d’exception. À noter qu’en tant que constructeur, nous ne sommes pas mandatés pour réaliser la vente de ce terrain.
Champagné
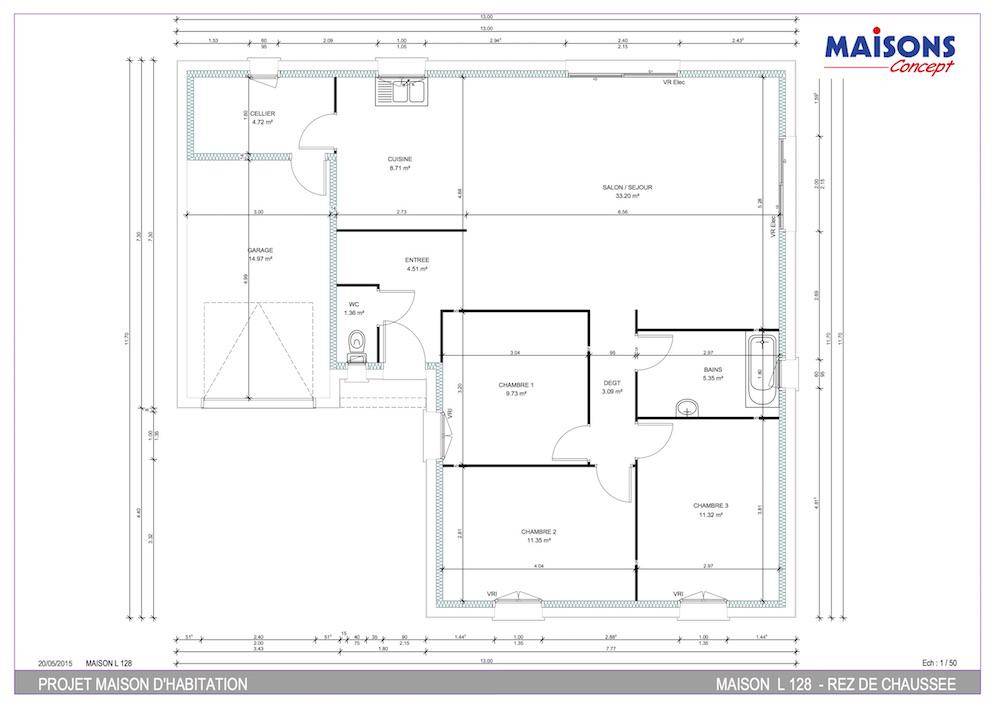
TERRAIN ET MAISONNous vous proposons cette maison neuve, baptisée « »Hilya » », un modèle d’exception qui allie avec brio charme et modernité. Conçue par un architecte, cette maison en L se distingue par son design contemporain, marqué par un toit plat élégant et un garage accolé, intégré harmonieusement à l’ensemble. Avec une surface habitable de 109 m², elle offre un espace de vie optimal réparti en 4 pièces, dont 4 chambres confortables, répondant ainsi parfaitement aux besoins d’une famille moderne.La Hilya se caractérise par ses finitions haut de gamme et ses équipements à la pointe de la technologie. Les menuiseries en aluminium, choisies pour leur durabilité et leur esthétique, s’associent à la perfection avec la possibilité d’opter pour une toiture quatre pans, ajoutant une touche de tradition à cette demeure résolument moderne. La domotique intégrée vous permettra de contrôler facilement votre environnement, assurant confort et sécurité à ses résidents.Cette maison neuve est également conçue dans le respect des normes environnementales les plus strictes, garantissant une basse consommation énergétique et une conformité totale avec la réglementation RE2020. Ce souci de l’efficacité énergétique se traduit par une réduction significative des charges et par un impact environnemental minimisé, faisant de la Hilya un choix responsable pour votre futur foyer.La Hilya représente l’harmonie parfaite entre esthétique et fonctionnalité, offrant un cadre de vie idéal pour ceux qui cherchent à allier confort moderne et respect de l’environnement. Ne manquez pas l’opportunité de construire la maison de vos rêves, une demeure qui promet de s’adapter à vos envies tout en répondant aux exigences d’un monde en constante évolution.
Champagné
TERRAIN ET MAISONNous vous proposons cette maison neuve, baptisée « »Jade » », un modèle d’habitation qui allie confort, modernité et respect de l’environnement. Conçue pour répondre aux besoins d’une famille moderne, la maison Jade offre une surface habitable de 97 m², répartie sur deux niveaux, avec un total de 4 pièces dont 3 chambres spacieuses, permettant d’accueillir confortablement une famille de 4 à 5 personnes.Le rez-de-chaussée se distingue par un vaste espace de vie de 36 m² comprenant une cuisine ouverte, idéale pour partager des moments conviviaux en famille ou entre amis. Cette pièce est baignée de lumière grâce à de grandes ouvertures qui apportent une luminosité naturelle tout au long de la journée. Un garage intégré de près de 17 m² assure un espace supplémentaire pour votre véhicule ou pour du rangement. Une chambre de 11,2 m² peut également servir d’espace de vie supplémentaire, offrant ainsi la possibilité d’agrandir l’espace commun à près de 50 m².L’étage, construit sur une dalle en béton, garantit solidité et isolation phonique. Il se compose de trois chambres confortables, d’une salle de bains supplémentaire et de toilettes séparées, répondant ainsi aux besoins d’intimité et de confort de chaque membre de la famille.La maison Jade est conçue pour être à la fois moderne et écologique. Elle est conforme à la réglementation environnementale RE2020, assurant une basse consommation énergétique. Cela se traduit par des coûts d’entretien et de fonctionnement nettement réduits, faisant de cette maison un investissement durable pour votre avenir.Les options les plus plébiscitées, telles que l’enduit bi-ton et les menuiseries en aluminium, sont disponibles pour personnaliser votre maison et la rendre unique. Ces finitions haut de gamme non seulement embellissent votre habitation mais contribuent également à son efficacité énergétique.En choisissant la maison Jade, vous optez pour une habitation familiale accessible, conçue pour offrir un cadre de vie exceptionnel
Champagné
TERRAINNous avons le plaisir de vous présenter ce terrain exceptionnel à vendre, idéalement situé au cœur de la ville. Avec sa surface généreuse de 410 m², ce terrain plat et viabilisé constitue un cadre parfait pour votre projet de construction de maison. Dans un quartier recherché et privilégié, vous bénéficierez d’une qualité de vie remarquable, ainsi que de toutes les commodités à proximité. Ne manquez pas cette opportunité unique, car il s’agit du dernier terrain disponible dans ce secteur prisé. Situé dans la commune de Diffus, au sein du département de la 53000, ce terrain se trouve à proximité immédiate des écoles, collèges et lycées, facilitant ainsi la vie familiale quotidienne. Vous serez à deux pas des diverses attractions locales et des services qui contribuent à l’animation de la vie citadine. Que ce soit pour flâner dans les parcs ou profiter des commerces de première nécessité, cet emplacement offre tous les atouts d’un cadre de vie agréable et pratique. Ce terrain représente une véritable opportunité d’achat, ne laissez pas passer cette chance de concrétiser votre projet de vie. Contactez-nous pour plus d’informations et envisagez cette occasion exceptionnelle. À noter qu’en tant que constructeur, nous ne sommes pas mandatés pour réaliser la vente de ce terrain.
Neuville-sur-Sarthe
TERRAINSitué dans un environnement calme et recherché de Neuville-sur-Sarthe, découvrez ce terrain à bâtir de 772 m², entièrement viabilisé (eau, électricité, télécom, assainissement) — idéal pour concrétiser rapidement votre projet de construction. Les atouts du terrain :Superficie : 772 m²Terrain plat, facile à aménagerEntièrement viabiliséEnvironnement résidentielAccès rapide aux axes principauxCadre de vie calme et verdoyantUn des derniers terrains disponibles sur ce secteur Avantage majeur : possibilité de vente en VEFACe terrain peut être proposé dans le cadre d’une Vente en l’État Futur d’Achèvement (VEFA), permettant :une sécurisation du projet,un délai de construction optimisé,une livraison rapide clé-en-main,une maîtrise totale du budget.Une solution idéale pour ceux qui souhaitent gagner du temps et bénéficier d’un projet encadré de A à Z. Localisation : Neuville-sur-SartheCommune dynamique et recherchée aux portes du Mans, offrant :proximité des commerces, écoles et services (10min à pied, 3min en voiture),accès rapide au Mans,cadre de vie agréable entre ville et nature. Contactez-moi dès maintenant pour obtenir le dossier complet, les plans possibles et étudier votre projet de construction.Une opportunité rare pour construire rapidement dans un secteur prisé !Cette annonce référence 314195 vous est présentée par votre agent commercial BSK Immobilier THIBAUT FLAHOU (EI) immatriculé au RSAC de LE MANS (72000) sous le numéro 5(Numéro supprimé)024.Prix du bien : 114 400,00 €Les honoraires d’agence sont à la charge du vendeur.Les informations sur les risques auxquels ce bien est exposé sont disponibles sur le site Géorisques : www.georisques.gouv.fr
Aigné
TERRAIN ET MAISONVENTE : maison de 4 pièces (90 m²) à AignéIDÉALEMENT SITUÉE – MAISON 4 PIÈCES NEUVEÀ vendre : située à quelques kilomètres du Mans, nous sommes heureux de vous présenter, idéalement située dans Aigné (72650), cette maison de 4 pièces de plain-pied de 90 m². Elle propose trois chambres, une cuisine et une salle de bains.Le terrain de la propriété s’étend sur 780 m².La maison est neuve.Cette maison se trouve dans un quartier prisé. Il y a l’École Primaire Publique Roger Bazille à moins de 10 minutes à pied. Niveau transports, on trouve quatre gares à moins de 10 minutes en voiture. On trouve un accès à l’autoroute A11 à 4 km. Il y a un tennis à quelques minutes à peine.Elle est proposée à l’achat pour 249 000 €.Contactez François HOUDAYER ((Numéro supprimé)) pour tout renseignement sur la propriété ou sur les démarches à suivre.
Aigné
TERRAIN ET MAISONMaison F4 (191 m²) à vendre à AignéIDÉALEMENT SITUÉE – MAISON 4 PIÈCES NEUVEEn vente : à deux pas du Mans, idéalement située dans Aigné (72650), laissez vous charmer par cette maison de 4 pièces de 191 m² et de 780 m² de terrain. Elle est composée de trois chambres, d’une cuisine et de deux salles de bains.Cette maison compte 2 niveaux. Elle est neuve.La maison se trouve dans un quartier attractif. Il y a l’École Primaire Publique Roger Bazille à moins de 10 minutes à pied. Côté transports en commun, on trouve quatre gares à moins de 10 minutes en voiture. On trouve un accès à l’autoroute A11 à 4 km. Il y a un tennis à proximité.Elle est proposée à l’achat pour 469 000 €.N’hésitez pas à prendre contact avec notre agence (HOUDAYER François : (Numéro supprimé)) pour tout renseignement sur la propriété ou sur les modalités de vente. Donnez vie à vos projets immobiliers avec Maine Construction Le Mans.
Le Mans
TERRAIN ET MAISONVENTE d’une maison de 5 pièces (110 m²) au MansPROCHE CENTRE-VILLE – MAISON 5 PIÈCES NEUVEEn vente : proche du centre-ville du Mans (72000), notre agence Maine Construction Le Mans est ravie de vous présenter cette maison de 5 pièces de plain-pied de 110 m².Son intérieur dispose de trois chambres, d’une cuisine et d’une salle de bains. La maison est neuve.Le terrain du bien est de 349 m².Le lycée Institut Technologique Européen des Métiers de la Musique est implanté à moins de 10 minutes à pied, deux structures d’accueil pour la petite enfance, tout comme l’Université du Mans et l’Institut supérieur des matériaux du Mans pour le supérieur. Côté transports en commun, il y a trois gares (Le Mans, Neuville-sur-Sarthe et Arnage) à moins de 10 minutes en voiture. L’autoroute A11 est accessible à 3 km. On trouve deux tennis, trois boulangeries, des commerces, un supermarché et un bureau de poste dans les environs.Elle est proposée à l’achat pour 335 000 €.Prenez contact avec notre constructeur (François HOUDAYER : (Numéro supprimé)) pour obtenir de plus amples renseignements sur la maison ou sur les modalités de vente.
Changé
TERRAIN ET MAISONVENTE : maison T6 (98 m²) à ChangéIDÉALEMENT SITUÉE – MAISON 6 PIÈCES NEUVEÀ vendre : située à quelques kilomètres du Mans, idéalement située dans Changé (72560), Maine Construction Le Mans vous présente cette maison de 6 pièces de plain-pied de 98 m².Conçue de plain-pied, elle se divise en trois chambres, une cuisine et deux salles de bains. La maison est neuve.Le terrain du bien s’étend sur 1 085 m².Cette maison se situe dans un secteur prisé. L’École Élémentaire Publique de l’Epau, le Collège Jacques Peletier et l’École Maternelle Publique de l’Auneau sont implantés à moins de 10 minutes à pied. Côté transports en commun, on trouve quatre gares à moins de 10 minutes en voiture. Les autoroutes A28 et A11 sont accessibles à moins de 7 km. Il y a un tennis, quatre commerces, deux boulangeries, un supermarché, une boucherie-charcuterie et une supérette à quelques minutes à peine.Elle est proposée à l’achat pour 395 000 €.Contactez notre agence (François HOUDAYER : (Numéro supprimé)) pour obtenir de plus amples renseignements sur la maison et sur les démarches à suivre. Maine Construction Le Mans est là pour vous accompagner dans tous vos projets immobiliers.
L’actualité immobilière à Coulaines
27/11/2023
02/11/2023
30/10/2023
20/10/2023
16/10/2023
16/10/2023