Images
Description
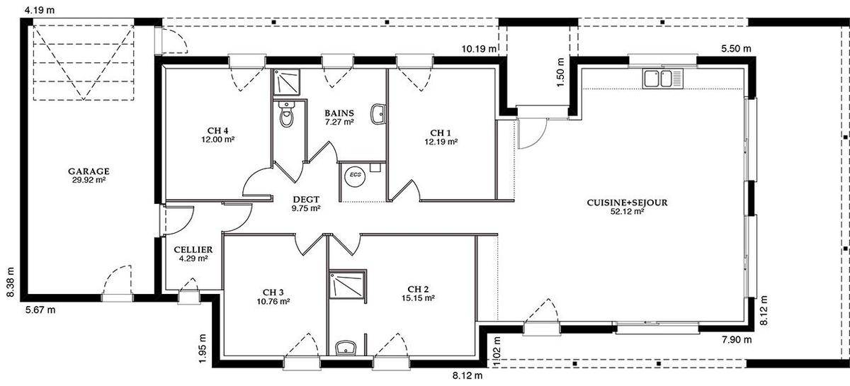
Nous vous proposons cette maison neuve, baptisée Linea, un modèle qui incarne la modernité, le charme et le raffinement. Conçue pour répondre aux attentes des plus exigeants, Linea offre une surface habitable de 95 m², intelligemment répartie entre 3 chambres et une pièce de vie spacieuse, promettant confort et bien-être au quotidien.
Ce modèle se distingue par son architecture audacieuse, avec un voile de béton qui lui confère une allure à la fois moderne et intemporelle, ainsi qu'un garage intégré pour plus de praticité. La structure linéaire de Linea, pensée pour optimiser chaque espace, s'accompagne d'une distribution des pièces favorisant une basse consommation énergétique. Cette maison est donc parfaitement conforme à la norme RE2020, garantissant une performance énergétique de premier plan pour un habitat respectueux de l'environnement.
Les options les plus plébiscitées par nos clients, telles que des solutions d'isolation avancées et des systèmes de chauffage performants, sont disponibles pour personnaliser votre maison selon vos besoins et vos envies. Linea se veut être un havre de paix où modernité rime avec écologie.
Laissez-vous séduire par le cachet unique de Linea, où chaque détail, des portiques à la pergola, en passant par les voiles architecturaux, a été pensé pour offrir un cadre de vie exceptionnel. Cette maison est une invitation à profiter d'un confort quotidien, tout en faisant un choix responsable pour l'avenir de notre planète.
Choisir Linea, c'est opter pour une maison neuve basse consommation, alliant esthétique et performances énergétiques, pour une qualité de vie inégalée. Ne manquez pas cette opportunité de construire la maison de vos rêves, conforme aux dernières normes environnementales. Linea, une maison où il fait bon vivre, aujourd'hui et demain.
Logement susceptibles de vous intéresser
Nous vous proposons de découvrir aussi cette sélection de logements situés à moins de 10km de Coulans-sur-Gée et qui seraient susceptibles de vous intéresser.
Aigné
TERRAINVENTE d »un terrain de 780 m² à AignéQUARTIER RECHERCHÉ – PROCHE DU MANSÀ Aigné (72650) en vente à 11 km du Mans, découvrez ce terrain de 780 m². Il donne sur un jardin et bénéficie d »une exposition nord-ouest. Dans un quartier attractif, le terrain construit dans un quartier prisé est proche des écoles et des commerces. L »École Primaire Publique Roger Bazille est implantée à moins de 10 minutes à pied. Niveau transports en commun, on trouve quatre gares à moins de 10 minutes en voiture. On trouve un accès à l »autoroute A11 à 4 km. Il y a un tennis à quelques minutes à peine.Ce terrain est proposé à l »achat pour 59 000 €. Contactez François HOUDAYER (tél : (Numéro supprimé)) pour tout renseignement sur le terrain, sur les modalités de vente ou sur les démarches à suivre. Faites de vos projets immobiliers une réalité avec Maine Construction Saint-Saturnin.
Aigné
TERRAIN ET MAISONAigné : maison de 3 pièces (92 m²) à vendreQUARTIER RECHERCHÉ – MAISON 3 PIÈCES NEUVEÀ 11 km du Mans, nous vous proposons cette maison de 3 pièces de 92 m² et de 780 m² de terrain nichée dans un quartier convoité d’Aigné (72650).C’est une maison de 2 niveaux. Elle compte trois chambres, une cuisine et une salle de bains. La maison est neuve.Ce bien est situé dans un secteur attractif. L’École Primaire Publique Roger Bazille est implantée à moins de 10 minutes à pied. Niveau transports en commun, on trouve quatre gares à moins de 10 minutes en voiture. On trouve un accès à l’autoroute A11 à 4 km. Il y a un tennis à proximité du logement.Il est à vendre pour la somme de 278 000 €.Contactez notre agence (François HOUDAYER : (Numéro supprimé)) pour toute question sur la maison ou sur les modalités de vente. Maine Construction Saint-Saturnin est là pour vous accompagner dans tous vos projets immobiliers.
Aigné
TERRAIN ET MAISONAigné : maison de 3 pièces (92 m²) à vendreQUARTIER RECHERCHÉ – MAISON 3 PIÈCES NEUVEÀ 11 km du Mans, nous vous proposons cette maison de 3 pièces de 92 m² et de 780 m² de terrain nichée dans un quartier convoité d’Aigné (72650).C’est une maison de 2 niveaux. Elle compte trois chambres, une cuisine et une salle de bains. La maison est neuve.Ce bien est situé dans un secteur attractif. L’École Primaire Publique Roger Bazille est implantée à moins de 10 minutes à pied. Niveau transports en commun, on trouve quatre gares à moins de 10 minutes en voiture. On trouve un accès à l’autoroute A11 à 4 km. Il y a un tennis à proximité du logement.Il est à vendre pour la somme de 278 000 €.Contactez notre agence (François HOUDAYER : (Numéro supprimé)) pour toute question sur la maison ou sur les modalités de vente. Maine Construction Saint-Saturnin est là pour vous accompagner dans tous vos projets immobiliers.
Louplande
TERRAINLouplande : terrain de 518 m² à vendreEMPLACEMENT PRIVILÉGIÉ – PROCHE DU MANSÀ Louplande (72210) en vente à 12 km du Mans, venez découvrir ce terrain de 518 m². Ce terrain, avec vue sur jardin, est orienté au nord. Dans un quartier prisé, le terrain bénéficiant d’un emplacement privilégié est proche des écoles et des commerces. On trouve l’École Primaire Publique Mozart à moins de 10 minutes à pied. Côté transports en commun, il y a deux gares (Voivres-lès-le-Mans et La Suze-sur-Sarthe) à moins de 10 minutes en voiture. L’autoroute A11 est accessible à 3 km. On trouve un tennis, une bibliothèque, un commerce et deux boulangeries dans les environs.Ce terrain est à vendre pour la somme de 49 100 €. Contactez notre agence (François HOUDAYER : (Numéro supprimé)) pour toute information sur le terrain, sur les démarches à suivre ou sur les modalités de vente. Concrétisez vos projets immobiliers avec Maine Construction Le Mans.
Louplande
TERRAIN ET MAISONVENTE : maison T3 (54 m²) à LouplandeEMPLACEMENT PRIVILÉGIÉ – MAISON 3 PIÈCES NEUVEEn vente à 12 km du Mans, Maine Construction Le Mans vous propose cette maison de 3 pièces de 54 m² et de 518 m² de terrain bénéficiant d’un emplacement privilégié dans Louplande (72210). Son intérieur inclut une chambre, une cuisine et une salle de bains.C’est une maison de 2 niveaux. Elle est neuve.La maison se situe dans un secteur prisé. Il y a l’École Primaire Publique Mozart à moins de 10 minutes à pied. Niveau transports en commun, on trouve les gares Voivres-lès-le-Mans et La Suze-sur-Sarthe à moins de 10 minutes en voiture. L’autoroute A11 est accessible à 3 km. Il y a un tennis, une bibliothèque, un commerce et deux boulangeries à quelques minutes à peine.Elle est à vendre pour la somme de 165 000 €.Contactez notre agence (François HOUDAYER : (Numéro supprimé)) pour toute information sur la maison, sur les démarches à suivre ou sur les modalités de vente. Maine Construction Le Mans vous accompagne dans tous vos projets immobiliers et à toutes les étapes de l’achat.
Louplande
TERRAIN ET MAISONVENTE : maison T3 (83 m²) à LouplandeEMPLACEMENT PRIVILÉGIÉ – MAISON 3 PIÈCES NEUVEEn vente à quelques kilomètres du Mans, nous vous présentons cette maison de 3 pièces de plain-pied de 83 m² bénéficiant d’un emplacement d’exception dans Louplande (72210). Son intérieur propose deux chambres, une cuisine et une salle de bains.Le terrain de la propriété s’étend sur 518 m².La maison est neuve.Cette maison se trouve dans un quartier recherché. Il y a l’École Primaire Publique Mozart à moins de 10 minutes à pied. Niveau transports en commun, on trouve deux gares (Voivres-lès-le-Mans et La Suze-sur-Sarthe) à moins de 10 minutes en voiture. Il y a un accès à l’autoroute A11 à 3 km. Il y a un tennis, une bibliothèque, un commerce et deux boulangeries à quelques minutes du bien.Son prix de vente est de 245 000 €.Contactez François HOUDAYER (tél : (Numéro supprimé)) pour obtenir de plus amples renseignements sur la maison ou sur les modalités de vente. Maine Construction Le Mans est là pour vous accompagner à toutes les étapes de votre projet.
Louplande
TERRAIN ET MAISONMaison F4 (130 m²) en vente à LouplandeEMPLACEMENT PRIVILÉGIÉ – MAISON 4 PIÈCES NEUVEÀ quelques kilomètres du Mans, à vendre bénéficiant d’un emplacement d’exception dans Louplande (72210), votre agence Maine Construction Le Mans est heureuse de vous proposer cette maison de 4 pièces de plain-pied de 130 m².Conçue de plain-pied, elle offre trois chambres, une cuisine et deux salles de bains. Cette maison est neuve.Le terrain du bien s’étend sur 518 m².La maison se situe dans un secteur prisé. L’École Primaire Publique Mozart est implantée à moins de 10 minutes à pied. Niveau transports, il y a deux gares (Voivres-lès-le-Mans et La Suze-sur-Sarthe) à moins de 10 minutes en voiture. L’autoroute A11 est accessible à 3 km. On trouve un tennis, une bibliothèque, un commerce et deux boulangeries à quelques minutes à peine.Elle est à vendre pour la somme de 325 000 €.Prenez contact avec notre constructeur (HOUDAYER François : (Numéro supprimé)) pour toute question sur la propriété, sur les modalités de vente ou sur les démarches à suivre.
Louplande
TERRAIN ET MAISONLouplande : maison F4 (143 m²) en venteEMPLACEMENT PRIVILÉGIÉ – MAISON 4 PIÈCES NEUVEÀ 12 km du Mans, venez découvrir cette maison de 4 pièces de plain-pied de 143 m² et de 518 m² de terrain en vente, bénéficiant d’un emplacement d’exception dans Louplande (72210). Elle compte quatre chambres, une cuisine et deux salles de bains.Cette maison est neuve.La maison se trouve dans un secteur attractif. Il y a l’École Primaire Publique Mozart à moins de 10 minutes à pied. Côté transports en commun, on trouve deux gares (Voivres-lès-le-Mans et La Suze-sur-Sarthe) à moins de 10 minutes en voiture. Il y a un accès à l’autoroute A11 à 3 km. Il y a un tennis, une bibliothèque, un commerce et deux boulangeries à quelques minutes.Son prix de vente est de 345 000 €.Prenez contact avec notre agence (François HOUDAYER : (Numéro supprimé)) pour toute information sur la maison ou sur les démarches à suivre.
Louplande
TERRAIN ET MAISONVENTE d’une maison de 5 pièces (100 m²) à LouplandeEMPLACEMENT PRIVILÉGIÉ – MAISON 5 PIÈCES NEUVEÀ quelques kilomètres du Mans, venez découvrir cette maison de 5 pièces de 100 m² et de 518 m² de terrain en vente bénéficiant d’un emplacement d’exception dans Louplande (72210). Son intérieur dispose de quatre chambres, d’une cuisine et de deux salles de bains.Il s’agit d’une maison de 2 niveaux. Elle est neuve.Cette maison se situe dans un secteur attractif. L’École Primaire Publique Mozart est implantée à moins de 10 minutes à pied. Niveau transports, il y a deux gares (Voivres-lès-le-Mans et La Suze-sur-Sarthe) à moins de 10 minutes en voiture. L’autoroute A11 est accessible à 3 km. On trouve un tennis, une bibliothèque, un commerce et deux boulangeries dans les environs.Elle est proposée à l’achat pour 255 000 €.Contactez notre agence (François HOUDAYER : (Numéro supprimé)) pour tout renseignement sur la propriété ou sur les démarches à suivre. Maine Construction Le Mans vous accompagne à toutes les étapes de votre projet et dans tous vos projets immobiliers.
L’actualité immobilière à Coulans-sur-Gée
27/11/2023
02/11/2023
30/10/2023
20/10/2023
16/10/2023
16/10/2023