Images
Description
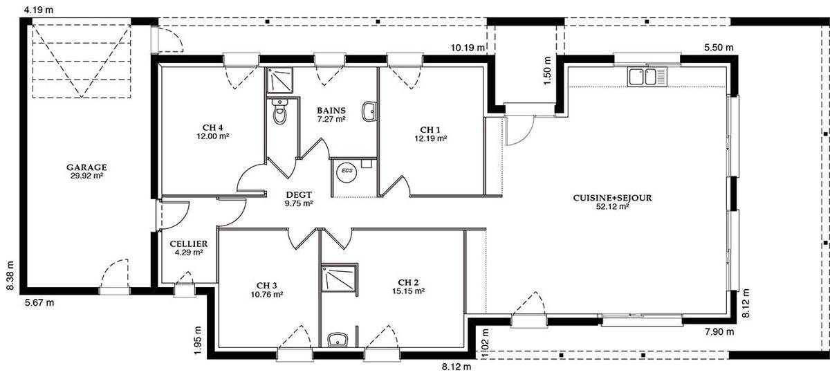
Nous vous proposons cette maison neuve, baptisée Linea, un modèle qui incarne la modernité, le charme et le raffinement. Conçue pour répondre aux attentes des plus exigeants, Linea offre une surface habitable de 95 m², intelligemment répartie entre 3 chambres et une pièce de vie spacieuse, promettant confort et bien-être au quotidien.
Ce modèle se distingue par son architecture audacieuse, avec un voile de béton qui lui confère une allure à la fois moderne et intemporelle, ainsi qu'un garage intégré pour plus de praticité. La structure linéaire de Linea, pensée pour optimiser chaque espace, s'accompagne d'une distribution des pièces favorisant une basse consommation énergétique. Cette maison est donc parfaitement conforme à la norme RE2020, garantissant une performance énergétique de premier plan pour un habitat respectueux de l'environnement.
Les options les plus plébiscitées par nos clients, telles que des solutions d'isolation avancées et des systèmes de chauffage performants, sont disponibles pour personnaliser votre maison selon vos besoins et vos envies. Linea se veut être un havre de paix où modernité rime avec écologie.
Laissez-vous séduire par le cachet unique de Linea, où chaque détail, des portiques à la pergola, en passant par les voiles architecturaux, a été pensé pour offrir un cadre de vie exceptionnel. Cette maison est une invitation à profiter d'un confort quotidien, tout en faisant un choix responsable pour l'avenir de notre planète.
Choisir Linea, c'est opter pour une maison neuve basse consommation, alliant esthétique et performances énergétiques, pour une qualité de vie inégalée. Ne manquez pas cette opportunité de construire la maison de vos rêves, conforme aux dernières normes environnementales. Linea, une maison où il fait bon vivre, aujourd'hui et demain.
Logement susceptibles de vous intéresser
Nous vous proposons de découvrir aussi cette sélection de logements situés à moins de 10km de Vivoin et qui seraient susceptibles de vous intéresser.
Fresnay-sur-Sarthe
TERRAINTerrain de 1 108 m² à vendre à 5 minutes de la HUTTEIDÉALEMENT SITUÉ – PROCHE D’ALENÇONÀ 5 minutes de LA HUTTE (72) à 19 km d’Alençon, projetez la maison de vos rêves sur ce terrain de 1 108 m². Il donne sur un espace vert et bénéficie d’une exposition sud-ouest. Il se trouve dans un quartier convoité. On y trouve une école primaire. Côté transports, il y a deux gares (Vivoin-Beaumont et La Hutte Coulombiers) à moins de 10 minutes en voiture. Il y a un accès à l’autoroute A28 à 6 km.Ce terrain est à vendre pour la somme de 29 250 €. Prenez contact avec Elisa RODRIGUES MORAIS (tél : (Numéro supprimé)) pour toute question sur le terrain. Faites de vos projets immobiliers une réalité avec Maisons France Confort Saint-Saturnin.
Beaumont-sur-Sarthe
TERRAINTerrain de 772 m² en vente à 5 minutes de BEAUMONT SUR SARTHEIDÉALEMENT SITUÉ – PROCHE D’ALENÇONA 5 minutes de BEAUMONT SUR SARTHE (72) à vendre à deux pas d’Alençon, imaginez la maison de vos rêves sur ce terrain de 772 m². Ce terrain, avec vue sur espace vert, bénéficie d’une exposition sud-ouest. Il est situé dans un quartier convoité. Une école primaire y est implantée. Niveau transports, on trouve les gares Vivoin-Beaumont et La Hutte Coulombiers à moins de 10 minutes en voiture. Il y a un accès à l’autoroute A28 à 6 km.Ce terrain est à vendre pour la somme de 20 400 €. Contactez Elisa RODRIGUES MORAIS ((Numéro supprimé)) pour toute information sur le terrain, sur les démarches à suivre ou sur les modalités de vente. Maisons France Confort Saint-Saturnin vous accompagne à toutes les étapes de votre projet et dans tous vos projets immobiliers.
Doucelles
TERRAINVENTE : terrain de 879 m² à 5 minutes de DOUCELLESIDÉALEMENT SITUÉ – PROCHE D’ALENÇONA 5 minutes de DOUCELLES à quelques kilomètres d’Alençon, projetez la maison de vos rêves sur ce terrain de 879 m². Il est exposé au sud-ouest. Il se trouve dans un secteur prisé. On y trouve une école primaire. Niveau transports, il y a deux gares (Vivoin-Beaumont et La Hutte Coulombiers) à moins de 10 minutes en voiture. Il y a un accès à l’autoroute A28 à 6 km.Ce terrain est proposé à l’achat pour 23 175 €. Contactez notre agence (RODRIGUES MORAIS Elisa : (Numéro supprimé)) pour tout renseignement sur ce terrain. Faites de vos projets immobiliers une réalité avec Maisons France Confort Saint-Saturnin.
Piacé
TERRAINTerrain de 886 m² en vente à PiacéPROCHE GARE – PROCHE D’ALENÇONÀ vendre à 19 km d’Alençon à Piacé (72170), grand terrain. Réalisez-y votre projet de construction. Il est exposé au sud-ouest. Il est situé non loin de la gare. Une école primaire est implantée dans le quartier. Niveau transports, il y a deux gares (Vivoin-Beaumont et La Hutte Coulombiers) à moins de 10 minutes en voiture. L’autoroute A28 est accessible à 6 km.Ce terrain est proposé à l’achat pour 23 400 €. N’hésitez pas à prendre contact avec Elisa RODRIGUES MORAIS (tél : (Numéro supprimé)) pour toute question sur le terrain, sur les démarches à suivre ou sur les modalités de vente. Maisons France Confort Saint-Saturnin est là pour vous accompagner à toutes les étapes de votre projet.
Fresnay-sur-Sarthe
TERRAIN ET MAISONVENTE : maison T3 (55 m²) à 5 minutes de LA HUTTEIDÉALEMENT SITUÉE – MAISON 3 PIÈCES NEUVEÀ quelques kilomètres d’Alençon, votre agence Maisons France Confort Saint-Saturnin est heureuse de vous présenter cette maison de 3 pièces de plain-pied de 55 m² idéalement située à 5 minutes de LA HUTTE (72). Son intérieur inclut deux chambres, une cuisine et une salle de bains.Le terrain de la propriété est de 1 108 m².Cette maison est neuve.Cette maison est située dans un secteur attractif. Une école primaire y est implantée. Côté transports en commun, il y a les gares Vivoin-Beaumont et La Hutte Coulombiers à moins de 10 minutes en voiture. L’autoroute A28 est accessible à 6 km.Elle est à vendre pour la somme de 134 850 €.N’hésitez pas à prendre contact avec Elisa RODRIGUES MORAIS ((Numéro supprimé)) pour obtenir de plus amples informations sur le bien. Donnez vie à vos projets immobiliers avec Maisons France Confort Saint-Saturnin.
Fresnay-sur-Sarthe
TERRAIN ET MAISONMaison de 3 pièces (55 m²) à vendre à 5 minutes de LA HUTTE (72)IDÉALEMENT SITUÉE – MAISON 3 PIÈCES NEUVEÀ 19 km d’Alençon, notre agence Maisons France Confort Saint-Saturnin est ravie de vous proposer en vente, idéalement située à 5 minutes de LA HUTTE (72) (72), cette maison de 3 pièces de plain-pied de 55 m².Son intérieur comporte deux chambres, une cuisine et une salle de bains. La maison est neuve.Le terrain du bien est de 1 108 m².Cette maison est située dans un quartier prisé. Une école primaire y est implantée. Niveau transports en commun, on trouve les gares Vivoin-Beaumont et La Hutte Coulombiers à moins de 5 minutes en voiture. On trouve un accès à l’autoroute A28 à 6 km.Son prix de vente est de 142 850 €.Contactez notre constructeur (Elisa RODRIGUES MORAIS : (Numéro supprimé)) pour toute question sur la maison.
Fresnay-sur-Sarthe
TERRAIN ET MAISONA 5 minutes de LA HUTTE (72) : maison de 5 pièces (90 m²) à vendreIDÉALEMENT SITUÉE – MAISON 5 PIÈCES NEUVEÀ vendre à quelques kilomètres d’Alençon, nous vous présentons cette maison de 5 pièces de plain-pied de 90 m² et de 1 108 m² de terrain, idéalement située à 5 minutes de LA HUTTE (72).Conçue de plain-pied, elle offre trois chambres, une cuisine et une salle de bains. Cette maison est neuve.Cette maison est située dans un secteur prisé. Une école primaire y est implantée. Côté transports en commun, il y a deux gares (Vivoin-Beaumont et La Hutte Coulombiers) à moins de 10 minutes en voiture. Il y a un accès à l’autoroute A28 à 6 km.Elle est à vendre pour la somme de 205 000 €.Contactez Elisa RODRIGUES MORAIS ((Numéro supprimé)) pour tout renseignement sur la maison, sur les démarches à suivre ou sur les modalités de vente.
Fresnay-sur-Sarthe
TERRAIN ET MAISONVENTE d’une maison F5 (85 m²) à 5 minutes de LA HUTTE (72)IDÉALEMENT SITUÉE – MAISON 5 PIÈCES NEUVEEn vente à 19 km d’Alençon, nous sommes ravis de vous présenter cette maison de 5 pièces de plain-pied de 85 m² idéalement située à 5 minutes de LA HUTTE (72). Conçue de plain-pied, elle offre trois chambres, une cuisine et une salle de bains.Le terrain du bien s’étend sur 1 108 m².La maison est neuve.La maison se trouve dans un quartier recherché. On y trouve une école primaire. Niveau transports, il y a les gares Vivoin-Beaumont et La Hutte Coulombiers à moins de 10 minutes en voiture. L’autoroute A28 est accessible à 6 km.Elle est à vendre pour la somme de 208 000 €.N’hésitez pas à prendre contact avec Elisa RODRIGUES MORAIS ((Numéro supprimé)) pour toute information sur la propriété ou sur les démarches à suivre.
Fresnay-sur-Sarthe
TERRAIN ET MAISONVENTE : maison F6 (125 m²) à 5 minutes de LA HUTTE (72)IDÉALEMENT SITUÉE – MAISON 6 PIÈCES NEUVEEn vente à quelques kilomètres d’Alençon, nous sommes heureux de vous proposer cette maison de 6 pièces de 125 m² idéalement située à 5 minutes de LA HUTTE (72)). Elle compte quatre chambres, une cuisine et deux salles de bains.Le terrain du bien s’étend sur 1 108 m².Il s’agit d’une maison de 2 niveaux. Elle est neuve.La maison se situe dans un quartier recherché. Une école primaire y est implantée. Niveau transports en commun, il y a deux gares (Vivoin-Beaumont et La Hutte Coulombiers) à moins de 5 minutes en voiture. L’autoroute A28 est accessible à 6 km.Son prix de vente est de 275 000 €.Prenez contact avec Elisa RODRIGUES MORAIS (tél : (Numéro supprimé)) pour toute information sur la maison ou sur les modalités de vente. Maisons France Confort Saint-Saturnin vous accompagne à toutes les étapes de votre projet et dans tous vos projets immobiliers.
L’actualité immobilière à Vivoin
27/11/2023
02/11/2023
30/10/2023
20/10/2023
16/10/2023
16/10/2023