Maison à construire à Amillis (77120)
Images
Description
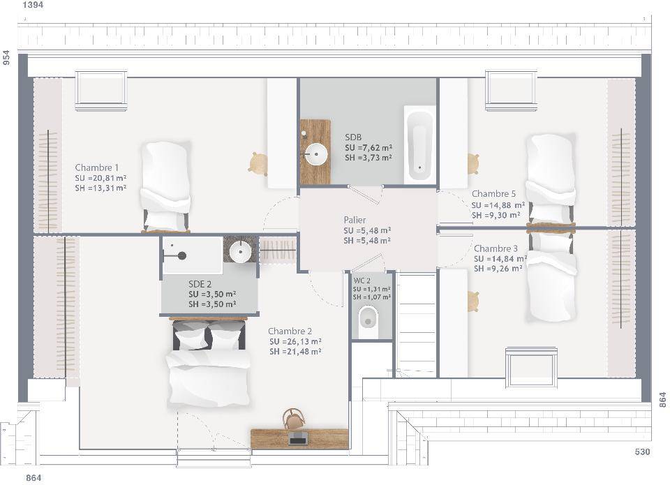
VENTE d'une maison F7 (150 m²) à Amillis
PROCHE DE MEAUX - MAISON 7 PIÈCES NEUVE
À côté du Transilien P (gare de Coulommiers, 1 h de Paris), Maisons France Confort Magny-le-Hongre vous propose à vendre à Amillis (77120), cette maison de 7 pièces de 150 m² et de 300 m² de terrain.
Cette maison possède 2 niveaux. Son intérieur comporte cinq chambres, une cuisine et deux salles de bains. Cette maison est neuve.
Il y a une école primaire dans le quartier. Niveau transports, on trouve la gare Coulommiers à moins de 10 minutes en voiture.
Elle est à vendre pour la somme de 360 000 €.
Prenez contact avec Teddy MELES ((Numéro supprimé)) pour toute information sur le bien, sur les modalités de vente ou sur les démarches à suivre.
Annonce proposée par un Agent Commercial Partenaire.
Logement susceptibles de vous intéresser
Nous vous proposons de découvrir aussi cette sélection de logements situés à moins de 10km de Amillis et qui seraient susceptibles de vous intéresser.
Vaudoy-en-Brie
TERRAINPrix : 99000 €.Sur ce terrain de 377 m² à VAUDOY-EN-BRIE, Maisons Clairval vous propose de réaliser votre projet de construction de maison individuelle.Maisons Clairval propose de construire votre maison neuve avec toutes les prestations suivantes :- Plan sur-mesure et personnalisé de 2 à 6 chambres- Mode de chauffage au choix- Grands choix d'équipements et de prestations- Matériaux de qualité selon les normes en vigueur- Accompagnement dans le choix et l’acquisition du terrain- Construction conforme à la nouvelle RE 2020Demandez une étude gratuite et personnalisée de votre projet de construction sur ce terrain !Contactez Nicolas REBOUL au (Numéro supprimé) ou au (Numéro supprimé) (Maisons Clairval – Agence de Villemoisson).Prix hors frais de notaire. Terrain sélectionné et vu pour vous sous réserve de disponibilité et au prix indiqué par notre partenaire foncier. Conditions et visuels non contractuels.Cette annonce a été créée et diffusée avec le logiciel VITAHOME.
Vaudoy-en-Brie
TERRAINPrix : 99000 €.Sur ce terrain de 356 m² à VAUDOY-EN-BRIE, Maisons Clairval vous propose de réaliser votre projet de construction de maison individuelle.Maisons Clairval propose de construire votre maison neuve avec toutes les prestations suivantes :- Plan sur-mesure et personnalisé de 2 à 6 chambres- Mode de chauffage au choix- Grands choix d'équipements et de prestations- Matériaux de qualité selon les normes en vigueur- Accompagnement dans le choix et l’acquisition du terrain- Construction conforme à la nouvelle RE 2020Demandez une étude gratuite et personnalisée de votre projet de construction sur ce terrain !Contactez Nicolas REBOUL au (Numéro supprimé) ou au (Numéro supprimé) (Maisons Clairval – Agence de Villemoisson).Prix hors frais de notaire. Terrain sélectionné et vu pour vous sous réserve de disponibilité et au prix indiqué par notre partenaire foncier. Conditions et visuels non contractuels.Cette annonce a été créée et diffusée avec le logiciel VITAHOME.
Vaudoy-en-Brie
TERRAINPrix : 103000 €.Sur ce terrain de 367 m² à VAUDOY-EN-BRIE, Maisons Clairval vous propose de réaliser votre projet de construction de maison individuelle.Maisons Clairval propose de construire votre maison neuve avec toutes les prestations suivantes :- Plan sur-mesure et personnalisé de 2 à 6 chambres- Mode de chauffage au choix- Grands choix d'équipements et de prestations- Matériaux de qualité selon les normes en vigueur- Accompagnement dans le choix et l’acquisition du terrain- Construction conforme à la nouvelle RE 2020Demandez une étude gratuite et personnalisée de votre projet de construction sur ce terrain !Contactez Nicolas REBOUL au (Numéro supprimé) ou au (Numéro supprimé) (Maisons Clairval – Agence de Villemoisson).Prix hors frais de notaire. Terrain sélectionné et vu pour vous sous réserve de disponibilité et au prix indiqué par notre partenaire foncier. Conditions et visuels non contractuels.Cette annonce a été créée et diffusée avec le logiciel VITAHOME.
Amillis
TERRAIN ET MAISONVENTE : maison de 5 pièces (90 m²) à AmillisMAISON 5 PIÈCES NEUVE – PROCHE DE MEAUXÀ quelques minutes de la gare de Coulommiers (Paris à 1 h avec le Transilien P), ayez le coup de coeur pour cette maison de 5 pièces de 90 m² en vente à Amillis (77120).Cette maison compte 2 niveaux. Son intérieur dispose de trois chambres, d’une cuisine et d’une salle de bains. Cette maison est neuve.Le terrain du bien s’étend sur 300 m².Il y a une école primaire dans le quartier. Niveau transports en commun, on trouve la gare Coulommiers à moins de 10 minutes en voiture.Elle est proposée à l’achat pour 360 000 €.Contactez Teddy MELES (tél : (Numéro supprimé)) pour plus d’informations sur la maison ou sur les modalités de vente. Concrétisez vos projets immobiliers avec Maisons France Confort Magny-le-Hongre.Annonce proposée par un Agent Commercial Partenaire.
Amillis
TERRAIN ET MAISONAmillis : maison de 5 pièces (90 m²) à vendrePROCHE DE MEAUX – MAISON 5 PIÈCES NEUVEEn vente : à proximité de la gare de Coulommiers (Paris à 1 h par le Transilien P), à Amillis (77120), nous sommes ravis de vous proposer cette maison de 5 pièces de 90 m² et de 300 m² de terrain.Il s’agit d’une maison de 2 niveaux. Son intérieur est composé de trois chambres, d’une cuisine et d’une salle de bains. La maison est neuve.Une école primaire est implantée dans le quartier. Côté transports, il y a la gare Coulommiers à moins de 10 minutes en voiture.Elle est à vendre pour la somme de 330 000 €.N’hésitez pas à prendre contact avec notre agence (Teddy MELES : (Numéro supprimé)) pour plus de renseignements sur cette maison. Maisons France Confort Magny-le-Hongre vous accompagne à toutes les étapes de l’achat et dans toutes vos démarches.Annonce proposée par un Agent Commercial Partenaire.
Amillis
TERRAIN ET MAISONAmillis : maison F5 (90 m²) en ventePROCHE DE MEAUX – MAISON 5 PIÈCES NEUVEÀ proximité du Transilien P (gare de Coulommiers, 1 h de Paris), nous sommes heureux de vous proposer cette maison de 5 pièces de plain-pied de 90 m² et de 300 m² de terrain en vente à Amillis (77120).Conçue de plain-pied, elle est composée de trois chambres, d’une cuisine et d’une salle de bains. La maison est neuve.On trouve une école primaire dans le quartier. Côté transports, il y a la gare Coulommiers à moins de 10 minutes en voiture.Son prix de vente est de 360 000 €.Prenez contact avec Teddy MELES ((Numéro supprimé)) pour toute question sur la maison, sur les modalités de vente ou sur les démarches à suivre. Maisons France Confort Magny-le-Hongre vous accompagne dans tous vos projets immobiliers et à toutes les étapes de votre projet.Annonce proposée par un Agent Commercial Partenaire.
Amillis
TERRAIN ET MAISONVENTE : maison T6 (114 m²) à AmillisMAISON 6 PIÈCES NEUVE – PROCHE DE MEAUXÀ deux pas de la gare de Coulommiers (Paris à 1 h avec le Transilien P), nous sommes heureux de vous présenter cette maison de 6 pièces de 114 m² en vente à Amillis (77120).Cette maison compte 2 niveaux. Son intérieur est composé de cinq chambres, d’une cuisine et de deux salles de bains. Cette maison est neuve.Le terrain du bien est de 300 m².Il y a une école primaire dans le quartier. Niveau transports, on trouve la gare Coulommiers à moins de 10 minutes en voiture.Elle est proposée à l’achat pour 450 000 €.N’hésitez pas à prendre contact avec Teddy MELES (tél : (Numéro supprimé)) pour toute information sur le bien.Annonce proposée par un Agent Commercial Partenaire.
Amillis
TERRAIN ET MAISONVENTE : maison T4 (94 m²) à AmillisPROCHE DE MEAUX – MAISON 4 PIÈCES NEUVEÀ vendre : proche de la gare de Coulommiers (Paris à 1 h par le Transilien P), nous vous proposons cette maison de 4 pièces de plain-pied de 94 m² et de 300 m² de terrain à Amillis (77120).Elle propose trois chambres, une cuisine et deux salles de bains. Cette maison est neuve.Il y a une école primaire dans le quartier. Côté transports, on trouve la gare Coulommiers à moins de 10 minutes en voiture.Elle est à vendre pour la somme de 460 000 €.Prenez contact avec notre agence (MELES Teddy : (Numéro supprimé)) pour toute question sur le bien ou sur les démarches à suivre. Faites de vos projets immobiliers une réalité avec Maisons France Confort Magny-le-Hongre.Annonce proposée par un Agent Commercial Partenaire.
Amillis
TERRAIN ET MAISONVENTE : maison de 7 pièces (104 m²) à AmillisPROCHE DE MEAUX – MAISON 7 PIÈCES NEUVEÀ quelques minutes du Transilien P (gare de Coulommiers, 1 h de Paris), venez découvrir cette maison de 7 pièces de 104 m² en vente à Amillis (77120).Cette maison compte 2 niveaux. Son intérieur offre six chambres, une cuisine et deux salles de bains. Cette maison est neuve.Le terrain de la propriété est de 300 m².Il y a une école primaire dans le quartier. Niveau transports en commun, on trouve la gare Coulommiers à moins de 10 minutes en voiture.Son prix de vente est de 460 000 €.Contactez Teddy MELES ((Numéro supprimé)) pour tout renseignement sur la maison ou sur les démarches à suivre.Annonce proposée par un Agent Commercial Partenaire.
L’actualité immobilière à Amillis
27/11/2023
02/11/2023
30/10/2023
20/10/2023
16/10/2023
16/10/2023