Maison à construire à Évry-Grégy-sur-Yerre (77166)
Images
Description
Contactez Stéphanie SEBAG de l'agence Maisons Evolution de Mareuil-lès-Meaux au (Numéro supprimé) pour avoir plus d'informations sur ce projet
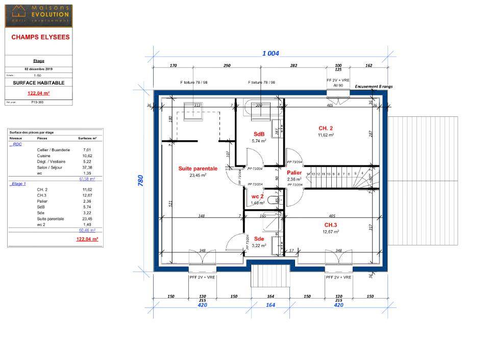
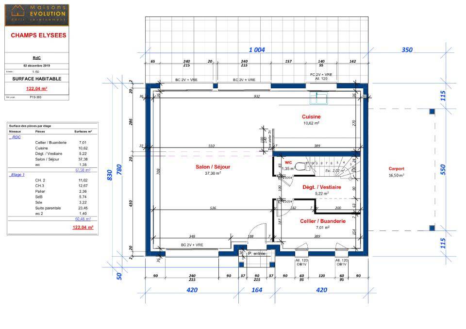
Découvrez cette très jolie maison moderne de 122 m² habitables, aux dernières normes énergétiques, idéalement située sur la commune de EVRY GREGY SUR YERRES
Elle est composée de 3 grandes chambres dont une grande suite parentale avec salle d'eau, d'une seconde salle de bains, de deux WC séparés et d'un grand salon-séjour lumineux avec cuisine ouverte donnant sur un vaste cellier/buanderie. Il est possible d'y ajouter un garage ou un carport.
Les plans sont entièrement modifiables selon vos souhaits, en agence ou visioconférence. Nous vous proposons un véritable accompagnement de qualité tout au long de votre projet.
Dessinons ensemble votre future maison !
Tel : (Numéro supprimé)
Annonce proposée par un Agent Commercial Partenaire.
Logement susceptibles de vous intéresser
Nous vous proposons de découvrir aussi cette sélection de logements situés à moins de 10km de Évry-Grégy-sur-Yerre et qui seraient susceptibles de vous intéresser.
Évry-Grégy-sur-Yerre
TERRAIN ET MAISONContactez Stéphanie SEBAG de l’agence Maisons Evolution de Mareuil-lès-Meaux au (Numéro supprimé) pour avoir plus d’informations sur ce projet.Jolie maison traditionnelle à étage de 100 m² habitables avec garage accolé idéalement située sur la commune de EVRY GREGY SUR YERRESElle est composée de 4 chambres au total (dont une au rez-de-chaussée) d’une ou deux salles de bains, de deux WC, et d’un grand salon-séjour lumineux avec cuisine ouverte.Les plans sont modifiables selon vos souhaits, en agence ou visioconférence. Nous vous proposons un véritable accompagnement de qualité tout au long de votre projet.Dessinons ensemble votre future maison !Tel: (Numéro supprimé)Annonce proposée par un Agent Commercial Partenaire.
Évry-Grégy-sur-Yerre
TERRAIN ET MAISONContactez Stéphanie SEBAG de l’agence Maisons Evolution de Mareuil-lès-Meaux au (Numéro supprimé) pour avoir plus d’informations sur ce projet.Belle et grande maison de 145 m² habitables avec garage intégré (transformable en chambre sur demande) idéalement située sur la commune de EVRY GREGY SUR YERRESElle est composée de 4 ou 5 chambres (dont une spacieuse suite parentale) de 2 ou 3 salles de bains, de deux WC d’une véritable entrée et d’un grand salon-séjour lumineux avec cuisine ouverte donnant sur un cellier puis sur le garage.Le plus : une belle terrasse à l’étage pour profiter des beaux jours !Les plans sont modifiables selon vos souhaits, en agence ou visioconférence. Nous vous proposons un véritable accompagnement de qualité tout au long de votre projet.Dessinons ensemble votre future maison !Tel: (Numéro supprimé)Annonce proposée par un Agent Commercial Partenaire.
Mandres-les-Roses
TERRAIN ET MAISONContactez Stéphanie SEBAG de l’agence Maisons Evolution de Mareuil-lès-Meaux au (Numéro supprimé) pour avoir plus d’informations sur ce projet.Découvrez cette belle et grande maison moderne à étage de 162 m² habitables idéalement située sur la commune de MANDRES-LES-ROSESElle est composée de 5 chambres dont 2 suites parentales avec salle d’eau, d’une troisième salle de bains, de deux WC séparés, d’un cellier, et d’un grand salon-séjour lumineux avec cuisine ouverte. Vous y trouverez également une véritable entrée avec placard.Les plans sont entièrement modifiables selon vos souhaits, en agence ou visioconférence. Nous vous proposons un véritable accompagnement de qualité tout au long de votre projet.Dessinons ensemble votre future maison !Tel : (Numéro supprimé)Annonce proposée par un Agent Commercial Partenaire.
Mandres-les-Roses
TERRAIN ET MAISONContactez Stéphanie SEBAG de l’agence Maisons Evolution de Mareuil-lès-Meaux au (Numéro supprimé) pour avoir plus d’informations sur ce projet.Découvrez cette grande et belle maison à étage de 142 m² habitables idéalement située sur la commune de MANDRES-LES-ROSESElle est composée de 5 chambres dont une suite parentale avec salle d’eau et dressing au rez-de-chaussée, d’une seconde salle de bains, de deux WC séparés, d’un cellier, et d’un grand salon-séjour lumineux avec cuisine ouverte. Vous y trouverez également une véritable entrée avec placard. De plus, cette maison dispose d’un garage intégré.Les plans sont entièrement modifiables selon vos souhaits, en agence ou visioconférence. Nous vous proposons un véritable accompagnement de qualité tout au long de votre projet.Dessinons ensemble votre future maison !Tel : (Numéro supprimé)Annonce proposée par un Agent Commercial Partenaire.
Évry-Grégy-sur-Yerre
TERRAIN ET MAISONContactez Stéphanie SEBAG de l’agence Maisons Evolution de Mareuil-lès-Meaux au (Numéro supprimé) pour avoir plus d’informations sur ce projet.Très jolie maison moderne à combles aménagés de 105 m² habitables avec garage accolé idéalement située sur la commune de EVRY GREGY SUR YERRESElle est composée de 3 chambres au total dont une grande suite parentale avec salle d’eau, d’une seconde salle de bains, de deux WC séparés et d’un grand salon-séjour lumineux avec cuisine ouverte donnant sur un cellier puis sur le garage.Les plans sont entièrement modifiables selon vos souhaits, en agence ou visioconférence. Nous vous proposons un véritable accompagnement de qualité tout au long de votre projet.Dessinons ensemble votre future maison !Tel : (Numéro supprimé)Annonce proposée par un Agent Commercial Partenaire.
Mandres-les-Roses
TERRAIN ET MAISONContactez Stéphanie SEBAG de l’agence Maisons Evolution de Mareuil-lès-Meaux au (Numéro supprimé) pour avoir plus d’informations sur ce projet Découvrez cette très jolie maison moderne de 122 m² habitables, aux dernières normes énergétiques, idéalement située sur la commune de MANDRES-LES-ROSESElle est composée de 3 grandes chambres dont une grande suite parentale avec salle d’eau, d’une seconde salle de bains, de deux WC séparés et d’un grand salon-séjour lumineux avec cuisine ouverte donnant sur un vaste cellier/buanderie. Il est possible d’y ajouter un garage ou un carport.Les plans sont entièrement modifiables selon vos souhaits, en agence ou visioconférence. Nous vous proposons un véritable accompagnement de qualité tout au long de votre projet.Dessinons ensemble votre future maison !Tel : (Numéro supprimé)Annonce proposée par un Agent Commercial Partenaire.
Évry-Grégy-sur-Yerre
TERRAIN ET MAISONContactez Stéphanie SEBAG de l’agence Maisons Evolution de Mareuil-lès-Meaux au (Numéro supprimé) pour avoir plus d’informations sur ce projet Découvrez cette très jolie maison moderne de 122 m² habitables, aux dernières normes énergétiques, idéalement située sur la commune de EVRY GREGY SUR YERRESElle est composée de 3 grandes chambres dont une grande suite parentale avec salle d’eau, d’une seconde salle de bains, de deux WC séparés et d’un grand salon-séjour lumineux avec cuisine ouverte donnant sur un vaste cellier/buanderie. Il est possible d’y ajouter un garage ou un carport.Les plans sont entièrement modifiables selon vos souhaits, en agence ou visioconférence. Nous vous proposons un véritable accompagnement de qualité tout au long de votre projet.Dessinons ensemble votre future maison !Tel : (Numéro supprimé)Annonce proposée par un Agent Commercial Partenaire.
Mandres-les-Roses
TERRAIN ET MAISONContactez Stéphanie SEBAG de l’agence Maisons Evolution de Mareuil-lès-Meaux au (Numéro supprimé) pour avoir plus d’informations sur ce projet.Très jolie maison moderne de 117 m² habitables, aux dernières normes énergétiques, idéalement située sur la commune de MANDRES-LES-ROSESElle est composée de 4 grandes chambres dont 2 suites parentales avec chacune sa salle d’eau, d’une troisième salle de bains, de deux WC séparés et d’un grand salon-séjour lumineux avec cuisine ouverte donnant sur un vaste cellier/buanderie. Il est possible d’y ajouter un garage ou un carport.Les plans sont entièrement modifiables selon vos souhaits, en agence ou visioconférence. Nous vous proposons un véritable accompagnement de qualité tout au long de votre projet.Dessinons ensemble votre future maison !Tel : (Numéro supprimé)Annonce proposée par un Agent Commercial Partenaire.
Mandres-les-Roses
TERRAINVotre agence maisons évolution vous propose ce terrain de 529m² dans la commune de MANDRES-LES-ROSESProche des commerces et des écoles maternelles, primaire et collègeRER D, A et C ainsi que 11 gares à moins de 10 minutes en voiture. Contactez notre agence (Stephanie SEBAG : (Numéro supprimé)) pour toute question sur ce terrain, sur les modalités de vente ou sur les démarches à suivre. Maisons Evolution Mareuil-lès-Meaux vous accompagne à toutes les étapes de votre projet et dans tous vos projets immobiliers.Annonce proposée par un Agent Commercial Partenaire.
L’actualité immobilière à Évry-Grégy-sur-Yerre
27/11/2023
02/11/2023
30/10/2023
20/10/2023
16/10/2023
16/10/2023