Maison à construire à Mandres-les-Roses (94520)
Images
Description
Contactez Stéphanie SEBAG de l'agence Maisons Evolution de Mareuil-lès-Meaux au (Numéro supprimé) pour avoir plus d'informations sur ce projet 
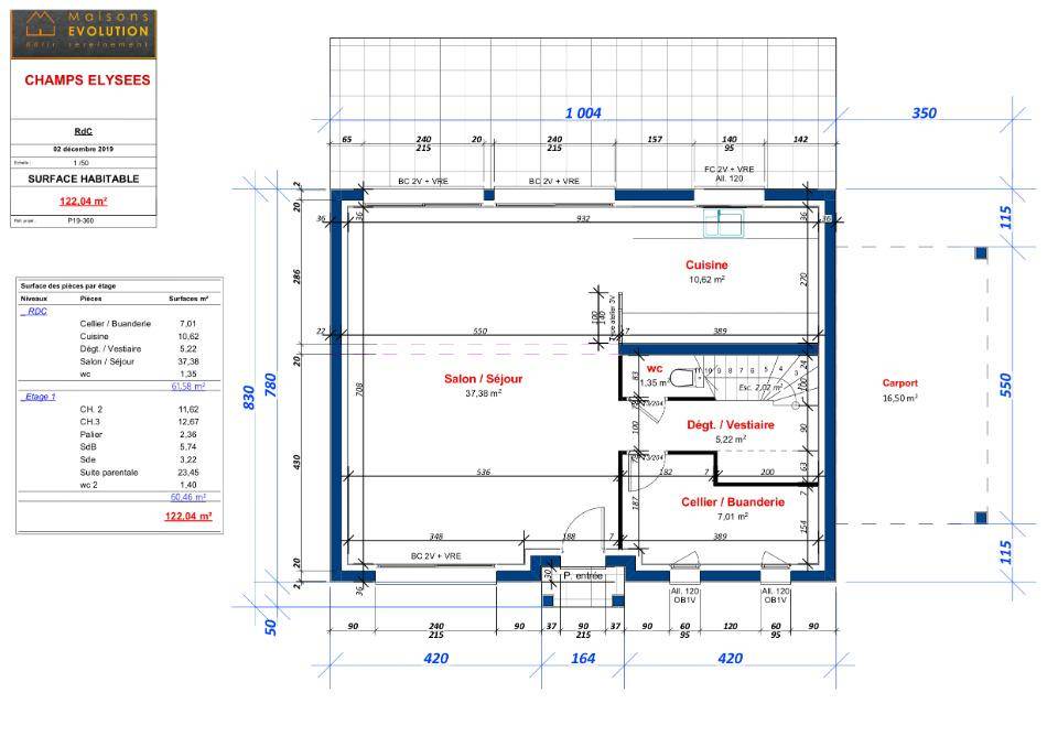
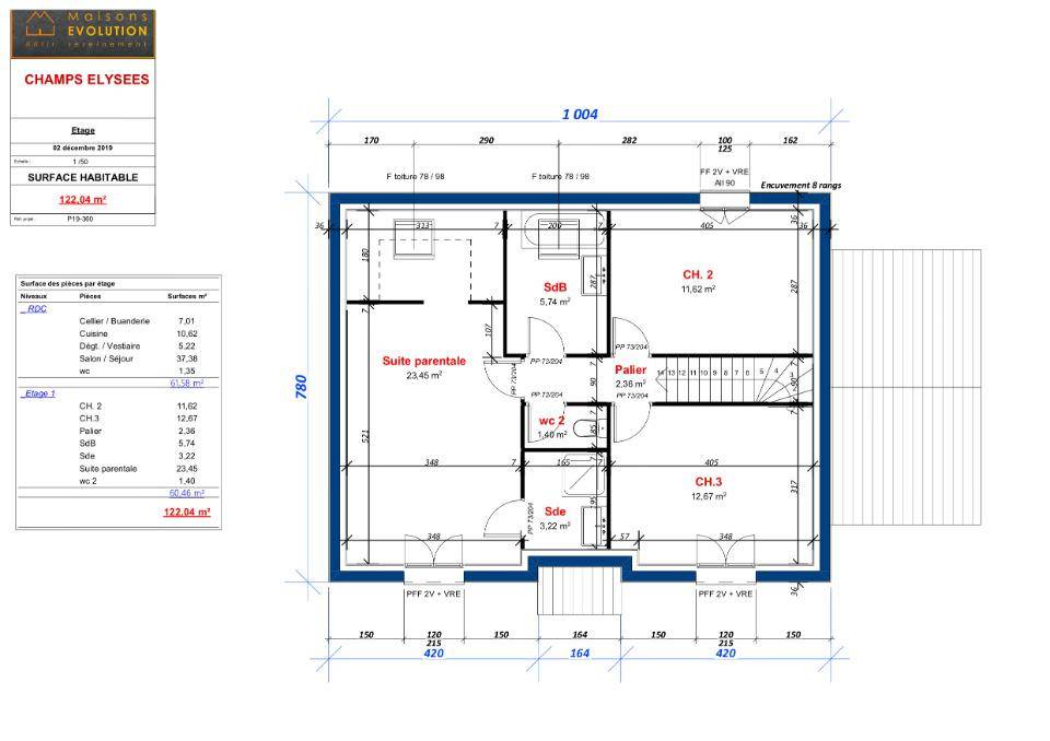
Découvrez cette très jolie maison moderne de 122 m² habitables, aux dernières normes énergétiques, idéalement située sur la commune de MANDRES-LES-ROSES
Elle est composée de 3 grandes chambres dont une grande suite parentale avec salle d'eau, d'une seconde salle de bains, de deux WC séparés et d'un grand salon-séjour lumineux avec cuisine ouverte donnant sur un vaste cellier/buanderie. Il est possible d'y ajouter un garage ou un carport.
Les plans sont entièrement modifiables selon vos souhaits, en agence ou visioconférence. Nous vous proposons un véritable accompagnement de qualité tout au long de votre projet.
Dessinons ensemble votre future maison !
Tel : (Numéro supprimé)
Annonce proposée par un Agent Commercial Partenaire.
Logement susceptibles de vous intéresser
Nous vous proposons de découvrir aussi cette sélection de logements situés à moins de 10km de Mandres-les-Roses et qui seraient susceptibles de vous intéresser.
 
  
 
 Étiolles
TERRAIN ET MAISONA ETIOLLES sur un terrain de 1180 m², Maisons Clairval vous propose de réaliser cette maison neuve d'une surface de 125 m² habitables avec 4 chambres. Informations du terrain : Au cœur de la très prisée commune d'Etiolles, Contact ( (Numéro supprimé)).Réputée pour son cadre de vie exceptionnel entre la Seine et la Forêt de Sénart, découvrez ce magnifique terrain à bâtir de 1200 m².Les atouts en un coup d'œil :Une adresse de premier choix;,Un environnement nature unique : Bordé par la majestueuse Forêt de Sénart.Un espace généreux de 1200 m² pour un projet de vie sans aucun compromis (piscine, grand jardin, etc.).Calme et intimité sur une parcelle à l'abri des regards.Accès rapide : Proximité immédiate des grands axes (N104, A6) et des gares RER D (Évry-Val-de-Seine / Corbeil-Essonnes).Gros potentiel constructible ( jusqu'a 300m² habitable) sans etre accolé.Demandez une étude gratuite et personnalisée de votre projet de construction !Contactez nous au (Numéro supprimé) (Maisons Clairval).Prix avec assurance dommages-ouvrage comprise, VRD non compris, terrain non viabilisé, adaptation non comprise, assainissement non compris, frais de notaire non compris, taxes non comprises, frais divers non compris. Terrain sélectionné et vu pour vous sous réserve de disponibilité et au prix indiqué par notre partenaire foncier. Conditions et visuels non contractuels.Cette annonce a été créée et diffusée avec le logiciel VITAHOME.
 
  
 
 Évry-Grégy-sur-Yerre
TERRAIN ET MAISONContactez Stéphanie SEBAG de l’agence Maisons Evolution de Mareuil-lès-Meaux au (Numéro supprimé) pour avoir plus d’informations sur ce projet.Jolie maison traditionnelle à étage de 100 m² habitables avec garage accolé idéalement située sur la commune de EVRY GREGY SUR YERRESElle est composée de 4 chambres au total (dont une au rez-de-chaussée) d’une ou deux salles de bains, de deux WC, et d’un grand salon-séjour lumineux avec cuisine ouverte.Les plans sont modifiables selon vos souhaits, en agence ou visioconférence. Nous vous proposons un véritable accompagnement de qualité tout au long de votre projet.Dessinons ensemble votre future maison !Tel: (Numéro supprimé)Annonce proposée par un Agent Commercial Partenaire.
 
  
 
 Évry-Grégy-sur-Yerre
TERRAIN ET MAISONContactez Stéphanie SEBAG de l’agence Maisons Evolution de Mareuil-lès-Meaux au (Numéro supprimé) pour avoir plus d’informations sur ce projet.Belle et grande maison de 145 m² habitables avec garage intégré (transformable en chambre sur demande) idéalement située sur la commune de EVRY GREGY SUR YERRESElle est composée de 4 ou 5 chambres (dont une spacieuse suite parentale) de 2 ou 3 salles de bains, de deux WC d’une véritable entrée et d’un grand salon-séjour lumineux avec cuisine ouverte donnant sur un cellier puis sur le garage.Le plus : une belle terrasse à l’étage pour profiter des beaux jours !Les plans sont modifiables selon vos souhaits, en agence ou visioconférence. Nous vous proposons un véritable accompagnement de qualité tout au long de votre projet.Dessinons ensemble votre future maison !Tel: (Numéro supprimé)Annonce proposée par un Agent Commercial Partenaire.
 
  
 
 Mandres-les-Roses
TERRAIN ET MAISONContactez Stéphanie SEBAG de l’agence Maisons Evolution de Mareuil-lès-Meaux au (Numéro supprimé) pour avoir plus d’informations sur ce projet.Découvrez cette belle et grande maison moderne à étage de 162 m² habitables idéalement située sur la commune de MANDRES-LES-ROSESElle est composée de 5 chambres dont 2 suites parentales avec salle d’eau, d’une troisième salle de bains, de deux WC séparés, d’un cellier, et d’un grand salon-séjour lumineux avec cuisine ouverte. Vous y trouverez également une véritable entrée avec placard.Les plans sont entièrement modifiables selon vos souhaits, en agence ou visioconférence. Nous vous proposons un véritable accompagnement de qualité tout au long de votre projet.Dessinons ensemble votre future maison !Tel : (Numéro supprimé)Annonce proposée par un Agent Commercial Partenaire.
 
  
 
 Mandres-les-Roses
TERRAIN ET MAISONContactez Stéphanie SEBAG de l’agence Maisons Evolution de Mareuil-lès-Meaux au (Numéro supprimé) pour avoir plus d’informations sur ce projet.Découvrez cette grande et belle maison à étage de 142 m² habitables idéalement située sur la commune de MANDRES-LES-ROSESElle est composée de 5 chambres dont une suite parentale avec salle d’eau et dressing au rez-de-chaussée, d’une seconde salle de bains, de deux WC séparés, d’un cellier, et d’un grand salon-séjour lumineux avec cuisine ouverte. Vous y trouverez également une véritable entrée avec placard. De plus, cette maison dispose d’un garage intégré.Les plans sont entièrement modifiables selon vos souhaits, en agence ou visioconférence. Nous vous proposons un véritable accompagnement de qualité tout au long de votre projet.Dessinons ensemble votre future maison !Tel : (Numéro supprimé)Annonce proposée par un Agent Commercial Partenaire.
 
  
 
 Évry-Grégy-sur-Yerre
TERRAIN ET MAISONContactez Stéphanie SEBAG de l’agence Maisons Evolution de Mareuil-lès-Meaux au (Numéro supprimé) pour avoir plus d’informations sur ce projet.Très jolie maison moderne à combles aménagés de 105 m² habitables avec garage accolé idéalement située sur la commune de EVRY GREGY SUR YERRESElle est composée de 3 chambres au total dont une grande suite parentale avec salle d’eau, d’une seconde salle de bains, de deux WC séparés et d’un grand salon-séjour lumineux avec cuisine ouverte donnant sur un cellier puis sur le garage.Les plans sont entièrement modifiables selon vos souhaits, en agence ou visioconférence. Nous vous proposons un véritable accompagnement de qualité tout au long de votre projet.Dessinons ensemble votre future maison !Tel : (Numéro supprimé)Annonce proposée par un Agent Commercial Partenaire.
 
  
 
 Mandres-les-Roses
TERRAIN ET MAISONContactez Stéphanie SEBAG de l’agence Maisons Evolution de Mareuil-lès-Meaux au (Numéro supprimé) pour avoir plus d’informations sur ce projet Découvrez cette très jolie maison moderne de 122 m² habitables, aux dernières normes énergétiques, idéalement située sur la commune de MANDRES-LES-ROSESElle est composée de 3 grandes chambres dont une grande suite parentale avec salle d’eau, d’une seconde salle de bains, de deux WC séparés et d’un grand salon-séjour lumineux avec cuisine ouverte donnant sur un vaste cellier/buanderie. Il est possible d’y ajouter un garage ou un carport.Les plans sont entièrement modifiables selon vos souhaits, en agence ou visioconférence. Nous vous proposons un véritable accompagnement de qualité tout au long de votre projet.Dessinons ensemble votre future maison !Tel : (Numéro supprimé)Annonce proposée par un Agent Commercial Partenaire.
 
  
 
 Évry-Grégy-sur-Yerre
TERRAIN ET MAISONContactez Stéphanie SEBAG de l’agence Maisons Evolution de Mareuil-lès-Meaux au (Numéro supprimé) pour avoir plus d’informations sur ce projet Découvrez cette très jolie maison moderne de 122 m² habitables, aux dernières normes énergétiques, idéalement située sur la commune de EVRY GREGY SUR YERRESElle est composée de 3 grandes chambres dont une grande suite parentale avec salle d’eau, d’une seconde salle de bains, de deux WC séparés et d’un grand salon-séjour lumineux avec cuisine ouverte donnant sur un vaste cellier/buanderie. Il est possible d’y ajouter un garage ou un carport.Les plans sont entièrement modifiables selon vos souhaits, en agence ou visioconférence. Nous vous proposons un véritable accompagnement de qualité tout au long de votre projet.Dessinons ensemble votre future maison !Tel : (Numéro supprimé)Annonce proposée par un Agent Commercial Partenaire.
 
  
 
 Mandres-les-Roses
TERRAIN ET MAISONContactez Stéphanie SEBAG de l’agence Maisons Evolution de Mareuil-lès-Meaux au (Numéro supprimé) pour avoir plus d’informations sur ce projet.Très jolie maison moderne de 117 m² habitables, aux dernières normes énergétiques, idéalement située sur la commune de MANDRES-LES-ROSESElle est composée de 4 grandes chambres dont 2 suites parentales avec chacune sa salle d’eau, d’une troisième salle de bains, de deux WC séparés et d’un grand salon-séjour lumineux avec cuisine ouverte donnant sur un vaste cellier/buanderie. Il est possible d’y ajouter un garage ou un carport.Les plans sont entièrement modifiables selon vos souhaits, en agence ou visioconférence. Nous vous proposons un véritable accompagnement de qualité tout au long de votre projet.Dessinons ensemble votre future maison !Tel : (Numéro supprimé)Annonce proposée par un Agent Commercial Partenaire.
L’actualité immobilière à Mandres-les-Roses
 27/11/2023
 
 27/11/2023
 
  02/11/2023
 
 02/11/2023
 
  30/10/2023
 
 30/10/2023
 
  20/10/2023
 
 20/10/2023
 
  16/10/2023
 
 16/10/2023
 
  16/10/2023
 
 16/10/2023
 
  
 
 
 
 
 
  
  
  
  
  
 