Maison à construire à Melun (77000)
Images
Description
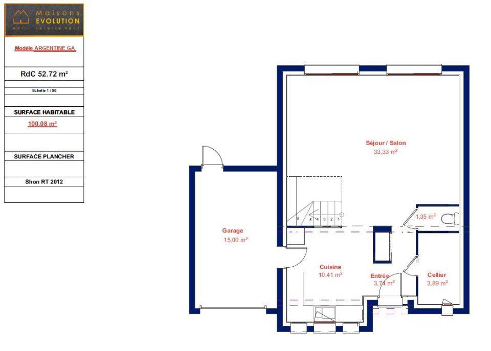
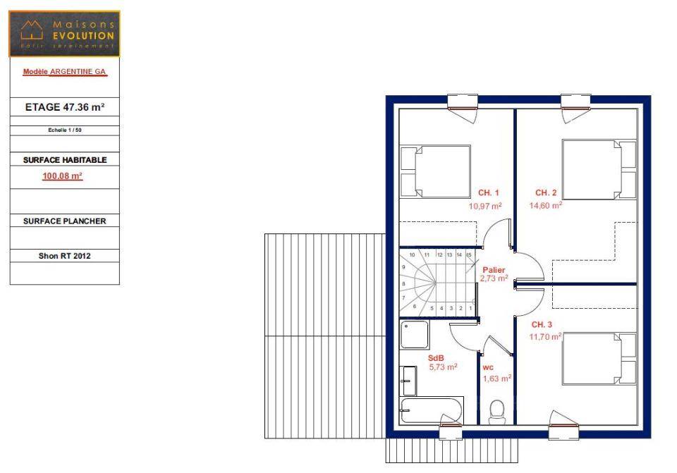
VENTE : maison F4 (100 m²) à Melun
Paris à 30 min (Transilien R) - À découvrir à Melun (77000) : maison neuve 4 pièces en vente, 2 niveaux, 100 m² et 570 m² de terrain. Elle inclut quatre chambres, une cuisine et deux salles de bains.
Proche RER D (Melun), gares, établissements scolaires, bassin de natation, bibliothèque, commerces, boulangeries, supermarchés, poissonnerie et boucheries-charcuteries.
Cette maison de 4 pièces est proposée à l'achat pour 367 900 €.
Prenez contact avec Steeve KANOR (tél : (Numéro supprimé)) pour plus d'informations sur la maison, sur les démarches à suivre ou sur les modalités de vente. Maisons Evolution Tigery est là pour vous accompagner dans tous vos projets immobiliers.
Annonce proposée par un Agent Commercial Partenaire.
Logement susceptibles de vous intéresser
Nous vous proposons de découvrir aussi cette sélection de logements situés à moins de 10km de Melun et qui seraient susceptibles de vous intéresser.

Réau
TERRAIN ET MAISONContactez Stéphanie SEBAG de l’agence Maisons Evolution de Mareuil-lès-Meaux au (Numéro supprimé) pour avoir plus d’informations sur ce projet.Très jolie maison à étage de 124 m² habitables avec garage accolé idéalement située sur la commune de CUISYElle est composée de 5 chambres au total dont une grande suite parentale avec salle d’eau, de 3 salles de bains au total, de deux WC séparés et d’un grand salon-séjour lumineux avec cuisine ouverte donnant sur un cellier puis sur le garage.Les plans sont entièrement modifiables selon vos souhaits, en agence ou visioconférence. Nous vous proposons un véritable accompagnement de qualité tout au long de votre projet.Dessinons ensemble votre future maison !Tel : (Numéro supprimé)Annonce proposée par un Agent Commercial Partenaire.

Réau
TERRAIN ET MAISONContactez Stéphanie SEBAG de l’agence Maisons Evolution de Mareuil-lès-Meaux au (Numéro supprimé) pour avoir plus d’informations sur ce projet Découvrez cette très jolie maison moderne de 122 m² habitables, aux dernières normes énergétiques, idéalement située sur la commune de REAUElle est composée de 3 grandes chambres dont une grande suite parentale avec salle d’eau, d’une seconde salle de bains, de deux WC séparés et d’un grand salon-séjour lumineux avec cuisine ouverte donnant sur un vaste cellier/buanderie. Il est possible d’y ajouter un garage ou un carport.Les plans sont entièrement modifiables selon vos souhaits, en agence ou visioconférence. Nous vous proposons un véritable accompagnement de qualité tout au long de votre projet.Dessinons ensemble votre future maison !Tel : (Numéro supprimé)Annonce proposée par un Agent Commercial Partenaire.

Réau
TERRAIN ET MAISONContactez Stéphanie SEBAG de l’agence Maisons Evolution de Mareuil-lès-Meaux au (Numéro supprimé) pour avoir plus d’informations sur ce projet.Très belle maison d’une superficie de 96 m² habitables avec garage intégré idéalement située sur la commune de REAU Elle est composée de 4 chambres, d’une salle de bains, de deux WC, et d’un grand salon-séjour lumineux avec cuisine ouverte, cellier et garage.Les plans sont modifiables selon vos souhaits, en agence ou visioconférence. Nous vous proposons un véritable accompagnement de qualité tout au long de votre projet.Dessinons ensemble votre future maison !Tel: (Numéro supprimé)Annonce proposée par un Agent Commercial Partenaire.

Réau
TERRAINVotre agence Maisons Evolution de Mareuil-lès-Meaux vous propose ce terrain constructible de 621 m² idéalement situé sur la commune de. Il vous offre une multitude de possibilités pour construire la maison de vos rêves. Ne manquez pas cette opportunité unique d’acquérir un terrain spacieux dans un emplacement prisé. Pour plus d’informations, contactez Stéphanie SEBAG au (Numéro supprimé). Nous vous proposons un véritable accompagnement de qualité tout au long de votre projet. Dessinons ensemble votre future maison.Tel: (Numéro supprimé)Annonce proposée par un Agent Commercial Partenaire.

Réau
TERRAIN ET MAISONContactez Stéphanie SEBAG de l’agence Maisons Evolution de Mareuil-lès-Meaux au (Numéro supprimé) pour avoir plus d’informations sur ce projet.Venez découvrir cette belle et grande maison d’une superficie de 109 m² habitables avec garage intégré idéalement située sur la commune de REAUElle est composée de 4 chambres (dont une suite parentale) de 2 salles de bains, de 2 WC, et d’un grand salon-séjour lumineux avec cuisine ouverte, cellier et garage.Les plans sont modifiables selon vos souhaits, en agence ou visioconférence. Nous vous proposons un véritable accompagnement de qualité tout au long de votre projet.Dessinons ensemble votre future maison !Tel: (Numéro supprimé)Annonce proposée par un Agent Commercial Partenaire.

Livry-sur-Seine
TERRAINSitué à seulement 5 minutes à pied de la gare de Livry-sur-Seine, découvrez ce magnifique terrain entièrement plat en arrière lot de 745 m², dont 19 m² hors clôture avec une entrée façade de 8 m idéal pour simplifier vos travaux et réaliser votre projet immobilier dans les meilleures conditions.Un emplacement privilégié :Livry-sur-Seine est une commune très appréciée pour sa qualité de vie et ses commodités.Accès direct à Paris Gare de Lyon en seulement 42 minutes.Proximité immédiate de l’autoroute A6 pour vos déplacements en voiture.Une commune dynamique avec écoles, commerces et infrastructures pour toute la famille.À deux pas des bords de Seine, parfait pour vos moments de détente et loisirs.Ce terrain est idéal pour concevoir une maison adaptée à vos envies, dans un cadre prisé.Pour plus d’informations ou pour organiser une visite, contactez moi dès maintenant.Cette annonce référence 304081 vous est présentée par votre agent commercial BSK Immobilier PRISCILLIA JOURANDON (EI) immatriculé au RSAC de MELUN (77000) sous le numéro 83765699000020.Prix du bien : 169 000,00 €Les honoraires d’agence sont à la charge du vendeur.Les informations sur les risques auxquels ce bien est exposé sont disponibles sur le site Géorisques : www.georisques.gouv.fr

Vert-Saint-Denis
TERRAINOpportunité RARE sur le secteur !Découvrez ce terrain de 531 m² situé en lot arrière, offrant un cadre de vie exceptionnel au sein d’une rue calme et recherchée de Vert-Saint-Denis.Clôturé sur l’ensemble de sa périphérie, il assure un espace préservé et intime, idéal pour un projet résidentiel. De plus, le terrain est partiellement viabilisé, facilitant ainsi les démarches pour votre future construction.Bénéficiant d’une orientation est-ouest pour la future construction de plain-pied + combles, ce terrain permet une luminosité optimale pour une future habitation. Une grande dépendance est déjà présente, libre à vous de la démolir ou de l’intégrer à votre projet selon vos besoins et envies.Etude G1 déjà réalisée.En photos jointes : Plan d’aménagement + photo aérienne + photos terrain avec dépendance actuelle à démolir ou conserver.d’autres photos sur demande.Atouts supplémentaires :Terrain entièrement clos, offrant intimité et sécuritéOrientation est-ouest pour une luminosité optimaleEnvironnement calme et privilégiéPermis d’aménager validé par la mairie et les ABF, et il sera purgé de tout recours des tiers au moment de la signature du compromis de venteCe terrain est prêt à accueillir votre futur projet de vie. Pour plus d’informations ou pour organiser une visite, n’hésitez pas à me contacter.Cette annonce référence 303115 vous est présentée par votre agent commercial BSK Immobilier DAMIEN FAUCHERE (EIRL) immatriculé au RSAC de MELUN (77000) sous le numéro 82955333800015.Prix du bien : 149 000,00 €Les honoraires d’agence sont à la charge du vendeur.Les informations sur les risques auxquels ce bien est exposé sont disponibles sur le site Géorisques : www.georisques.gouv.fr

Melun
TERRAINBoissise-la-Bertrand : terrain de 530 m² à vendrePROCHE DE CRÉTEILÀ Boissise-la-Bertrand (77350) au pied de la station Le Mée du RER D (35 min de Paris), donnez vie à votre résidence principale ou secondaire sur ce terrain de 530 m². Il y a l’École Primaire les Fontaines à moins de 10 minutes à pied. Niveau transports, on trouve la ligne de RER D (Boissise-Le-Roi) ainsi que 13 gares à moins de 10 minutes en voiture.Il est à vendre pour la somme de 200 000 €. Prenez contact avec notre agence (Félix SOUMARMON : (Numéro supprimé)) pour toute information sur ce terrain, sur les modalités de vente ou sur les démarches à suivre. Concrétisez vos projets immobiliers avec Maisons France Confort Magny-le-Hongre.Annonce proposée par un Agent Commercial Partenaire.

Melun
TERRAIN ET MAISONMaison F5 (90 m²) à vendre à Boissise-la-BertrandPROCHE DE CRÉTEIL – MAISON 5 PIÈCES NEUVEÀ côté de la station Le Mée du RER D (35 min de Paris), nous vous présentons cette maison de 5 pièces de 90 m² et de 530 m² de terrain à vendre à Boissise-la-Bertrand (77350). Son intérieur compte trois chambres, une cuisine et une salle de bains.Cette maison possède 2 niveaux. Elle est neuve.Il y a l’École Primaire les Fontaines à moins de 10 minutes à pied. Niveau transports en commun, on trouve la ligne de RER D (Boissise-Le-Roi) ainsi que 13 gares à moins de 10 minutes en voiture.Elle est à vendre pour la somme de 375 000 €.Contactez Félix SOUMARMON ((Numéro supprimé)) pour toute question sur la propriété, sur les modalités de vente ou sur les démarches à suivre.Annonce proposée par un Agent Commercial Partenaire.
L’actualité immobilière à Melun





