Images
Description
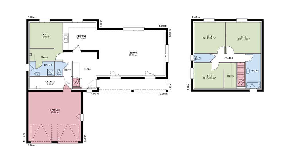
Nous vous proposons cette maison neuve, baptisée ""Barentine"", un modèle de résidence qui allie élégance et fonctionnalité, conçu pour répondre aux attentes des familles modernes. Avec une surface habitable de 115 m², cette maison se distingue par son plan en L, offrant une disposition originale et pratique des espaces de vie.
La ""Barentine"" comprend 3 chambres spacieuses, garantissant confort et intimité à chaque membre de la famille. Au total, la maison se compose de 4 pièces, pensées pour maximiser l'espace et la luminosité. L'une des caractéristiques remarquables de ce modèle est son garage intégré, assurant une transition fluide entre l'espace de vie et l'espace de stationnement, tout en offrant un espace de rangement supplémentaire très pratique.
La maison dispose également d'une deuxième salle de bains, offrant ainsi une commodité supplémentaire et évitant les embouteillages matinaux. Conforme à la norme RE2020, la ""Barentine"" est une maison basse consommation, conçue avec une attention particulière portée à l'efficacité énergétique et à l'impact environnemental. Cela signifie des factures d'énergie réduites et un confort accru toute l'année pour ses habitants.
Les options les plus plébiscitées par nos clients, telles que les menuiseries en aluminium et la domotique, sont disponibles pour personnaliser votre maison selon vos goûts et vos besoins. Ces améliorations non seulement renforcent l'esthétique moderne de la maison, mais améliorent également son efficacité et sa fonctionnalité, rendant la vie quotidienne plus pratique et agréable.
Inspirée du charme provençal, la ""Barentine"" présente une architecture cohérente et attrayante. Son design extérieur peut être personnalisé avec un enduit bicolore, ajoutant une touche d'élégance et de distinction. Que vous optiez pour une toiture à 2 ou 4 pans, cette maison vous propose raffinement et confort.
Découvrez le plaisir de vivre dans une maison qui allie beauté, confort et durabilité.
Logement susceptibles de vous intéresser
Nous vous proposons de découvrir aussi cette sélection de logements situés à moins de 10km de La Gaillarde et qui seraient susceptibles de vous intéresser.
Vénestanville
TERRAINVENTE d’un terrain de 1 200 m² à VénestanvillePROCHE DE DIEPPEGrand terrain à 23 km de la Manche et à quelques kilomètres de Dieppe. De 1 200 m², ce terrain se situe dans Vénestanville (76730). Il y a une école élémentaire dans le quartier. Les autoroutes A29, A150 et A151 et la nationale N27 sont accessibles à moins de 20 km.Il est à vendre pour la somme de 41 000 €. Prenez contact avec Natacha LECLERC (tél : (Numéro supprimé)) pour obtenir de plus amples informations sur ce terrain ou sur les démarches à suivre. Donnez vie à vos projets immobiliers avec Les Maisons Extraco Dieppe.
Vénestanville
TERRAIN ET MAISONVénestanville : maison T4 (85 m²) à vendreMAISON 4 PIÈCES NEUVE – PROCHE DE DIEPPEÀ vendre : à 23 km de la Manche et à deux pas de Dieppe, à Vénestanville (76730), Les Maisons Extraco Dieppe vous propose cette maison de 4 pièces de plain-pied de 85 m² et de 1 200 m² de terrain. Son intérieur se divise en trois chambres, une cuisine et une salle de bains.La maison est neuve.Une école élémentaire est implantée dans le quartier. Les autoroutes A29, A150 et A151 et la nationale N27 sont accessibles à moins de 20 km.Son prix de vente est de 194 000 €.Prenez contact avec notre agence (LECLERC Natacha : (Numéro supprimé)) pour plus de renseignements sur cette maison, sur les modalités de vente ou sur les démarches à suivre.
Vénestanville
TERRAIN ET MAISONMaison de 6 pièces (118 m²) en vente à VénestanvilleMAISON 6 PIÈCES NEUVE – PROCHE DE DIEPPEÀ 23 km de la Manche et à deux pas de Dieppe, en vente à Vénestanville (76730), venez découvrir cette maison de 6 pièces de 118 m². Son intérieur offre quatre chambres, une cuisine et deux salles de bains.Le terrain de la propriété s’étend sur 1 200 m².Il s’agit d’une maison de 2 niveaux. Elle est neuve.Il y a une école élémentaire dans le quartier. Les autoroutes A29, A150 et A151 et la nationale N27 sont accessibles à moins de 20 km.Elle est à vendre pour la somme de 277 000 €.N’hésitez pas à prendre contact avec notre agence (Natacha LECLERC : (Numéro supprimé)) pour tout renseignement sur ce bien ou sur les modalités de vente. Les Maisons Extraco Dieppe est là pour vous accompagner dans tous vos projets immobiliers.
Vénestanville
TERRAIN ET MAISONMaison de 3 pièces (65 m²) à vendre à VénestanvillePROCHE DE DIEPPE – MAISON 3 PIÈCES NEUVEÀ vendre à 23 km de la Manche et à quelques kilomètres de Dieppe, Les Maisons Extraco Dieppe vous propose à Vénestanville (76730), cette maison de 3 pièces de plain-pied de 65 m². Son intérieur comporte deux chambres, une cuisine et une salle de bains.Le terrain du bien est de 1 200 m².Cette maison est neuve.Il y a une école élémentaire dans le quartier. Les autoroutes A29, A150 et A151 et la nationale N27 sont accessibles à moins de 20 km.Elle est proposée à l’achat pour 205 000 €.N’hésitez pas à prendre contact avec notre agence (Natacha LECLERC : (Numéro supprimé)) pour tout renseignement sur la maison ou sur les modalités de vente. Les Maisons Extraco Dieppe vous accompagne dans tous vos projets immobiliers et dans toutes vos démarches.
Autigny
TERRAINVENTE d’un terrain de 1 128 m² à AutignyPROCHE DE DIEPPEÀ Autigny (76740) à 18 km de la Manche et à 21 km de Dieppe, projetez la maison de vos rêves sur ce terrain de 1 128 m². Plusieurs écoles (maternelle, élémentaire, primaire et collège) sont implantées à moins de 10 minutes en voiture. Il y a des bibliothèques, quatre tennis, des commerces, des boulangeries, quatre supermarchés, des boucheries-charcuteries et quatre bureaux de poste à proximité. 2 marchés animent le quartier.Son prix de vente est de 49 000 €. Contactez notre agence (LECLERC Natacha : (Numéro supprimé)) pour toute question sur le terrain, sur les modalités de vente ou sur les démarches à suivre.
Autigny
TERRAIN ET MAISONVENTE : maison F6 (125 m²) à AutignyPROCHE DE DIEPPE – MAISON 6 PIÈCES NEUVEÀ 18 km de la Manche et à deux pas de Dieppe, nous vous proposons à vendre à Autigny (76740), cette maison de 6 pièces de 125 m² et de 1 128 m² de terrain. Son intérieur offre quatre chambres, une cuisine et deux salles de bains.Cette maison compte 2 niveaux. Elle est neuve.Il y a plusieurs écoles (maternelle, élémentaire, primaire et collège) à moins de 10 minutes en voiture. On trouve des bibliothèques, quatre tennis, des commerces, des boulangeries, quatre supermarchés, des boucheries-charcuteries et des épiceries à quelques minutes à peine. 2 marchés animent le quartier.Elle est proposée à l’achat pour 299 900 €.N’hésitez pas à prendre contact avec notre agence (LECLERC Natacha : (Numéro supprimé)) pour tout renseignement sur la maison, sur les modalités de vente ou sur les démarches à suivre. Les Maisons Extraco Dieppe vous accompagne dans tous vos projets immobiliers et à toutes les étapes de l’achat.
Autigny
TERRAIN ET MAISONVENTE : maison T4 (106 m²) à AutignyPROCHE DE DIEPPE – MAISON 4 PIÈCES NEUVEÀ 18 km de la Manche et à 21 km de Dieppe, Les Maisons Extraco Dieppe vous propose à vendre à Autigny (76740), cette maison de 4 pièces de plain-pied de 106 m².Conçue de plain-pied, elle offre trois chambres, une cuisine et une salle de bains. Cette maison est neuve.Le terrain du bien s’étend sur 1 128 m².Il y a plusieurs écoles (maternelle, élémentaire, primaire et collège) à moins de 10 minutes en voiture. On trouve des bibliothèques, quatre tennis, des commerces, des boulangeries, quatre supermarchés, une poissonnerie et des épiceries dans les environs. Enfin, 2 marchés animent les environs.Elle est à vendre pour la somme de 209 000 €.N’hésitez pas à prendre contact avec Natacha LECLERC (tél : (Numéro supprimé)) pour obtenir de plus amples informations sur la maison. Concrétisez vos projets immobiliers avec Les Maisons Extraco Dieppe.
Autigny
TERRAIN ET MAISONAutigny : maison T5 (137 m²) à vendreMAISON 5 PIÈCES NEUVE – PROCHE DE DIEPPEÀ 18 km de la Manche et à 21 km de Dieppe, à vendre à Autigny (76740), laissez vous charmer par cette maison de 5 pièces de 137 m². Son intérieur comporte quatre chambres, une cuisine et une salle de bains.Le terrain de la propriété s’étend sur 1 128 m².C’est une maison de 2 niveaux. Elle est neuve.Il y a plusieurs établissements scolaires (maternelle, élémentaire, primaire et collège) à moins de 10 minutes en voiture. On trouve des bibliothèques, quatre tennis, des commerces, des boulangeries, quatre supermarchés, des boucheries-charcuteries et des épiceries à proximité de la maison. Enfin, 2 marchés animent les environs.Elle est à vendre pour la somme de 319 680 €.N’hésitez pas à prendre contact avec Natacha LECLERC ((Numéro supprimé)) pour plus d’informations sur la maison.
Cailleville
TERRAIN ET MAISONNous vous proposons cette maison neuve, baptisée « »Barentine » », un modèle de résidence qui allie élégance et fonctionnalité, conçu pour répondre aux attentes des familles modernes. Avec une surface habitable de 115 m², cette maison se distingue par son plan en L, offrant une disposition originale et pratique des espaces de vie.La « »Barentine » » comprend 3 chambres spacieuses, garantissant confort et intimité à chaque membre de la famille. Au total, la maison se compose de 4 pièces, pensées pour maximiser l’espace et la luminosité. L’une des caractéristiques remarquables de ce modèle est son garage intégré, assurant une transition fluide entre l’espace de vie et l’espace de stationnement, tout en offrant un espace de rangement supplémentaire très pratique.La maison dispose également d’une deuxième salle de bains, offrant ainsi une commodité supplémentaire et évitant les embouteillages matinaux. Conforme à la norme RE2020, la « »Barentine » » est une maison basse consommation, conçue avec une attention particulière portée à l’efficacité énergétique et à l’impact environnemental. Cela signifie des factures d’énergie réduites et un confort accru toute l’année pour ses habitants.Les options les plus plébiscitées par nos clients, telles que les menuiseries en aluminium et la domotique, sont disponibles pour personnaliser votre maison selon vos goûts et vos besoins. Ces améliorations non seulement renforcent l’esthétique moderne de la maison, mais améliorent également son efficacité et sa fonctionnalité, rendant la vie quotidienne plus pratique et agréable.Inspirée du charme provençal, la « »Barentine » » présente une architecture cohérente et attrayante. Son design extérieur peut être personnalisé avec un enduit bicolore, ajoutant une touche d’élégance et de distinction. Que vous optiez pour une toiture à 2 ou 4 pans, cette maison vous propose raffinement et confort.Découvrez le plaisir de vivre dans une maison qui allie beauté, confort et durabilité.
L’actualité immobilière à La Gaillarde
27/11/2023
02/11/2023
30/10/2023
20/10/2023
16/10/2023
16/10/2023