Maison à construire à Saint-Denis-sur-Scie (76890)
Images
Description
VENTE d'une maison de 5 pièces (90 m²) à Saint-Denis-sur-Scie
MAISON 5 PIÈCES NEUVE - PROCHE DE ROUEN
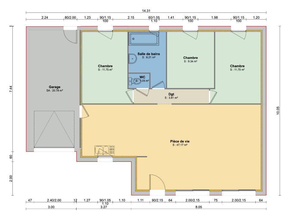
À vendre : à 25 km de la Manche et à 29 km de Rouen, Maisons Balency Boos vous présente à Saint-Denis-sur-Scie (76890), cette maison de 5 pièces de plain-pied de 90 m² et de 1 500 m² de terrain.
Son intérieur inclut trois chambres, une cuisine et une salle de bains. Cette maison est neuve.
Trois établissements scolaires sont implantés à moins de 10 minutes en voiture,, parmi lesquels le Collège René Coty et le Collège Jean Malaurie, tout comme une crèche à moins de 10 minutes à pied. Niveau transports, on trouve les gares Auffay, Saint-Victor-l'Abbaye et Longueville-sur-Scie à moins de 10 minutes en voiture. Les autoroutes A151 et A29 et la nationale N27 sont accessibles à moins de 8 km. Il y a des tennis, des bibliothèques, un bassin de natation, des commerces, trois supermarchés, des boulangeries, une supérette et deux bureaux de poste à quelques minutes du bien. Ne manquez pas le marché Place Blekedé tous les vendredis matin.
Elle est proposée à l'achat pour 209 000 €.
Prenez contact avec Sébastien MASSON (tél : (Numéro supprimé)) pour obtenir de plus amples informations sur la maison ou sur les démarches à suivre. Maisons Balency Boos est là pour vous accompagner dans tous vos projets immobiliers.
Annonce proposée par un Agent Commercial Partenaire.
Logement susceptibles de vous intéresser
Nous vous proposons de découvrir aussi cette sélection de logements situés à moins de 10km de Saint-Denis-sur-Scie et qui seraient susceptibles de vous intéresser.
Frichemesnil
TERRAIN ET MAISONMaison idéalement située à FRICHEMESNIL sur un terrain de 677 m². À proximité, dans le bourg : école, boulangerie, parc pour enfants, bus vert. Cette maison contemporaine bénéficie d’un agencement agréable : – Salon/séjour avec cuisine ouverte de 50 m², avec une grande baie coulissante de 2,80 m en alu, – cellier, – 3 chambres avec placards, – suite parentale avec dressing et douche à l’italienne, – salle de bains avec baignoire et douche, – garage de 20m². Isolation renforcée avec système de chauffage très économique par pompe à chaleur. Maison certifiée RE20. DPE : A / GSE : B.Venez nous rencontrer et visiter notre showroom : Maisons EXTRACO – 11 Rue Jacques Monod, 76130 Mont-Saint-AignanÉtude gratuite auprès de votre conseiller : Floriane LEBOUCHER ((Numéro supprimé))(Premier échange par SMS possible)
Frichemesnil
TERRAIN ET MAISONMaison idéalement située à FRICHEMESNIL sur un terrain de 677 m². À proximité, dans le bourg : école, boulangerie, parc pour enfants, bus vert. Cette maison contemporaine bénéficie d’un agencement agréable : – Salon/séjour avec cuisine ouverte de 50 m², avec une grande baie coulissante de 2,80 m en alu, – cellier, – 3 chambres avec placards, – suite parentale avec dressing et douche à l’italienne, – salle de bains avec baignoire et douche, – garage de 20m². Isolation renforcée avec système de chauffage très économique par pompe à chaleur. Maison certifiée RE20. DPE : A / GSE : B.Venez nous rencontrer et visiter notre showroom : Maisons EXTRACO – 11 Rue Jacques Monod, 76130 Mont-Saint-AignanÉtude gratuite auprès de votre conseiller : Floriane LEBOUCHER ((Numéro supprimé))(Premier échange par SMS possible)
Frichemesnil
TERRAIN ET MAISONMaison idéalement située à FRICHEMESNIL sur un terrain de 677 m². À proximité, dans le bourg : école, boulangerie, parc pour enfants, bus vert. Cette maison contemporaine bénéficie d’un agencement agréable : – Salon/séjour avec cuisine ouverte de 50 m², avec une grande baie coulissante de 2,80 m en alu, – cellier, – 3 chambres avec placards, – suite parentale avec dressing et douche à l’italienne, – salle de bains avec baignoire et douche, – garage de 20m². Isolation renforcée avec système de chauffage très économique par pompe à chaleur. Maison certifiée RE20. DPE : A / GSE : B.Venez nous rencontrer et visiter notre showroom : Maisons EXTRACO – 11 Rue Jacques Monod, 76130 Mont-Saint-AignanÉtude gratuite auprès de votre conseiller : Floriane LEBOUCHER ((Numéro supprimé))(Premier échange par SMS possible)
Frichemesnil
TERRAINÀ FRICHEMESNIL, terrain constructible à acheter.Sur la commune de FRICHEMESNIL, opportunité à saisir avec ce terrain. Vous pourrez exploiter une surface de 677 m2 pour créer votre future maison. N’hésitez pas à contacter Floriane LEBOUCHER ((Numéro supprimé)) des Maisons EXTRACO Mont-Saint-Aignan si vous avez des questions. Premiers échanges par SMS ou mail possible.LEBOUCHER Floriane(Numéro supprimé)
La Crique
TERRAINÀ La Crique, terrain constructible à acheter. Sur la commune de La Crique, opportunité à saisir avec ce terrain.Vous pourrez exploiter une surface de 750 m2 pour créer votre future maison.N’hésitez pas à contacter Justine LEROY ((Numéro supprimé)) des Maisons Extraco Les Essarts si vous avez des questions. Premiers échanges par SMS ou mail possible.
Saint-Denis-sur-Scie
TERRAIN ET MAISONMaison de 4 pièces (60 m²) en vente à Saint-Denis-sur-ScieMAISON 4 PIÈCES NEUVE – PROCHE DE ROUENEn vente : située à 25 km de la Manche et à deux pas de Rouen, nous vous présentons à Saint-Denis-sur-Scie (76890), cette maison de 4 pièces de plain-pied de 60 m². Elle inclut deux chambres, une cuisine et une salle de bains.Le terrain du bien s’étend sur 1 500 m².Cette maison est neuve.On trouve trois établissements scolaires à moins de 10 minutes en voiture, dont le Collège René Coty et le Collège Jean Malaurie et une structure d’accueil pour les enfants en bas âge à moins de 10 minutes à pied. Niveau transports, il y a trois gares (Auffay, Saint-Victor-l’Abbaye et Longueville-sur-Scie) à moins de 10 minutes en voiture. Les autoroutes A151 et A29 et la nationale N27 sont accessibles à moins de 8 km. On trouve des tennis, des bibliothèques, un bassin de natation, des commerces, trois supermarchés, des boulangeries, des boucheries-charcuteries et une supérette dans les environs. Enfin, le marché Place Blekedé a lieu chaque vendredi matin.Elle est à vendre pour la somme de 176 000 €.Contactez Sébastien MASSON (tél : (Numéro supprimé)) pour toute information sur la maison. Maisons Balency Boos vous accompagne dans toutes vos démarches et dans tous vos projets immobiliers.Annonce proposée par un Agent Commercial Partenaire.
Saint-Denis-sur-Scie
TERRAIN ET MAISONMaison de 7 pièces (91 m²) en vente à Saint-Denis-sur-SciePROCHE DE ROUEN – MAISON 7 PIÈCES NEUVEEn vente : à 25 km de la Manche et à deux pas de Rouen, nous vous présentons cette maison de 7 pièces de 91 m² et de 1 500 m² de terrain à Saint-Denis-sur-Scie (76890). Elle comporte quatre chambres, une cuisine et une salle de bains.Cette maison possède 2 niveaux. Elle est neuve.Il y a trois établissements scolaires à moins de 10 minutes en voiture,, comme le Collège René Coty ou le Collège Jean Malaurie et une crèche à moins de 10 minutes à pied. Niveau transports, on trouve trois gares (Auffay, Saint-Victor-l’Abbaye et Longueville-sur-Scie) à moins de 10 minutes en voiture. Les autoroutes A151 et A29 et la nationale N27 sont accessibles à moins de 8 km. Il y a des tennis, des bibliothèques, un bassin de natation, des commerces, trois supermarchés, des boulangeries, quatre épiceries et une supérette à quelques minutes. Le marché Place Blekedé a lieu tous les vendredis matin.Son prix de vente est de 245 000 €.Prenez contact avec notre agence (MASSON Sébastien : (Numéro supprimé)) pour obtenir de plus amples informations sur cette maison, sur les modalités de vente ou sur les démarches à suivre. Maisons Balency Boos est là pour vous accompagner dans tous vos projets immobiliers.Annonce proposée par un Agent Commercial Partenaire.
Saint-Denis-sur-Scie
TERRAIN ET MAISONVENTE d’une maison de 9 pièces (124 m²) à Saint-Denis-sur-ScieMAISON 9 PIÈCES NEUVE – PROCHE DE ROUENÀ 25 km de la Manche et à 29 km de Rouen, votre agence Maisons Balency Boos est heureuse de vous présenter en vente à Saint-Denis-sur-Scie (76890), cette maison de 9 pièces de 124 m². Elle se divise en cinq chambres, une cuisine et trois salles de bains.Le terrain de cette maison est de 1 500 m².Cette maison compte 2 niveaux. Elle est neuve.Trois établissements scolaires sont implantés à moins de 10 minutes en voiture, dont le Collège René Coty et le Collège Jean Malaurie, tout comme une crèche à moins de 10 minutes à pied. Niveau transports en commun, il y a trois gares (Auffay, Saint-Victor-l’Abbaye et Longueville-sur-Scie) à moins de 10 minutes en voiture. Les autoroutes A151 et A29 et la nationale N27 sont accessibles à moins de 8 km. On trouve des tennis, des bibliothèques, un bassin de natation, des commerces, trois supermarchés, des boulangeries, des boucheries-charcuteries et deux bureaux de poste dans les environs. Enfin, le marché Place Blekedé anime le quartier chaque vendredi matin.Son prix de vente est de 264 000 €.Contactez notre constructeur (MASSON Sébastien : (Numéro supprimé)) pour toute question sur cette maison ou sur les démarches à suivre.Annonce proposée par un Agent Commercial Partenaire.
Étaimpuis
TERRAIN ET MAISONA construire : maison T9 (124 m²) à ÉtaimpuisIDÉALEMENT SITUÉE – MAISON 9 PIÈCES NEUVEÀ vendre : à 32 km de la Manche et à deux pas de Rouen, nous vous présentons, idéalement située dans Étaimpuis (76850), cette maison de 9 pièces de 124 m². Son intérieur se divise en cinq chambres, une cuisine et trois salles de bains.Le terrain de la propriété s’étend sur 1 100 m².Cette maison compte 2 niveaux. Elle est neuve.La maison se trouve dans un quartier attractif. Il y a trois établissements scolaires à moins de 10 minutes en voiture, dont le Collège Jean Delacour et le Collège René Coty et une crèche à moins de 10 minutes à pied. Côté transports, on trouve les gares Saint-Victor-l’Abbaye, Clères et Auffay à moins de 10 minutes en voiture. Les autoroutes A151, A29 et A28 et la nationale N27 sont accessibles à moins de 9 km. Il y a des bibliothèques, des tennis, des commerces, des supermarchés, des boulangeries, des épiceries et quatre bureaux de poste à proximité du bien. Enfin, 2 marchés animent le quartier.Son prix de vente est de 244 631 €.Contactez notre agence (RENIER Célia : (Numéro supprimé)) pour tout renseignement sur la maison.Annonce proposée par un Agent Commercial Partenaire.
L’actualité immobilière à Saint-Denis-sur-Scie
27/11/2023
02/11/2023
30/10/2023
20/10/2023
16/10/2023
16/10/2023