Maison à construire à Touffreville-sur-Eu (76910)
Images
Description
Touffreville-sur-Eu : maison F4 (98 m²) à vendre
PROCHE DE DIEPPE - MAISON 4 PIÈCES NEUVE
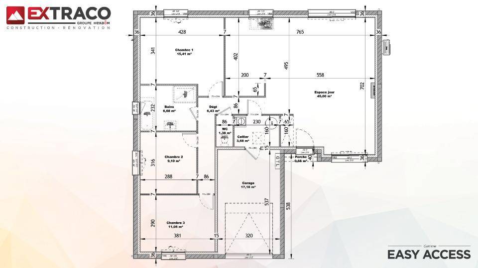
À 9 km de la Manche et à 19 km de Dieppe, nous sommes ravis de vous présenter cette maison de 4 pièces de plain-pied de 98 m² en vente à Touffreville-sur-Eu (76910). Conçue de plain-pied, elle propose trois chambres, une cuisine et une salle de bains.
Le terrain du bien est de 923 m².
Cette maison est neuve.
Il y a une école élémentaire dans le quartier. Niveau transports, on trouve les gares Le Tréport-Mers-les-Bains et Eu à moins de 10 minutes en voiture.
Elle est proposée à l'achat pour 222 500 €.
N'hésitez pas à prendre contact avec Delphine DERULLES ((Numéro supprimé)) pour toute question sur cette maison.
Logement susceptibles de vous intéresser
Nous vous proposons de découvrir aussi cette sélection de logements situés à moins de 10km de Touffreville-sur-Eu et qui seraient susceptibles de vous intéresser.
Petit-Caux
TERRAINTerrain de 500 m² en vente à DerchignyPROCHE DE DIEPPETerrain de 500 m² en vente à 4 km de la Manche et à 8 km de Dieppe. Ce terrain se situe dans Derchigny (76370). Côté transports en commun, il y a la gare Dieppe à moins de 10 minutes en voiture. La nationale N27 est accessible à 16 km. On trouve une bibliothèque à quelques minutes du terrain.Il est proposé à l’achat pour 59 000 €. Contactez Natacha LECLERC ((Numéro supprimé)) pour toute question sur ce terrain, sur les démarches à suivre et sur les modalités de vente. Donnez vie à vos projets immobiliers avec Les Maisons Extraco Dieppe.
Petit-Caux
TERRAIN ET MAISONDerchigny : maison T4 (80 m²) à vendrePROCHE DE DIEPPE – MAISON 4 PIÈCES NEUVEÀ 4 km de la Manche et à quelques kilomètres de Dieppe, nous sommes heureux de vous présenter cette maison de 4 pièces de plain-pied de 80 m² à vendre à Derchigny (76370).Son intérieur offre trois chambres, une cuisine et une salle de bains. Cette maison est neuve.Le terrain du bien s’étend sur 500 m².Niveau transports, il y a la gare Dieppe à moins de 10 minutes en voiture. Il y a un accès à la nationale N27 à 16 km. On trouve une bibliothèque dans les environs.Elle est proposée à l’achat pour 175 200 €.N’hésitez pas à prendre contact avec Natacha LECLERC ((Numéro supprimé)) pour toute information sur la maison ou sur les démarches à suivre. Faites de vos projets immobiliers une réalité avec Les Maisons Extraco Dieppe.
Petit-Caux
TERRAIN ET MAISONDerchigny : maison de 4 pièces (81 m²) en ventePROCHE DE DIEPPE – MAISON 4 PIÈCES NEUVEÀ vendre : à 4 km de la Manche et à quelques kilomètres de Dieppe, Les Maisons Extraco Dieppe vous propose cette maison de 4 pièces de 81 m² à Derchigny (76370). Son intérieur comporte trois chambres, une cuisine et une salle de bains.Le terrain de la propriété est de 500 m².Cette maison compte 2 niveaux. Elle est neuve.Niveau transports, on trouve la gare Dieppe à moins de 10 minutes en voiture. On trouve un accès à la nationale N27 à 16 km. Il y a une bibliothèque dans les environs.Elle est à vendre pour la somme de 202 400 €.Prenez contact avec Natacha LECLERC (tél : (Numéro supprimé)) pour obtenir de plus amples informations sur la maison, sur les modalités de vente ou sur les démarches à suivre. Les Maisons Extraco Dieppe est là pour vous accompagner dans tous vos projets immobiliers.
Petit-Caux
TERRAIN ET MAISONVENTE : maison de 4 pièces (98 m²) à DerchignyPROCHE DE DIEPPE – MAISON 4 PIÈCES NEUVEÀ 4 km de la Manche et à deux pas de Dieppe, Les Maisons Extraco Dieppe vous propose cette maison de 4 pièces de plain-pied de 98 m² et de 500 m² de terrain à Derchigny (76370).Elle comporte trois chambres, une cuisine et une salle de bains. La maison est neuve.Niveau transports en commun, il y a la gare Dieppe à moins de 10 minutes en voiture. Il y a un accès à la nationale N27 à 16 km. On trouve une bibliothèque à quelques minutes à peine.Elle est à vendre pour la somme de 208 520 €.Contactez Natacha LECLERC ((Numéro supprimé)) pour obtenir de plus amples renseignements sur la maison ou sur les démarches à suivre. Concrétisez vos projets immobiliers avec Les Maisons Extraco Dieppe.
Petit-Caux
TERRAINTerrain de 1 000 m² en vente à GrenyPROCHE DE DIEPPEÀ Greny (76630) à vendre à 9 km de la Manche et à deux pas de Dieppe, projetez la maison de vos rêves sur ce terrain de 1 000 m². Plusieurs établissements scolaires (maternelle, élémentaire, primaire et lycée) se trouvent à moins de 10 minutes en voiture, tout comme une crèche à moins de 10 minutes à pied. Il y a des bibliothèques, des tennis, deux bassins de natation, des commerces, des boulangeries, quatre supermarchés, des boucheries-charcuteries et quatre épiceries à proximité.Il est à vendre pour la somme de 50 000 €. Contactez Natacha LECLERC (tél : (Numéro supprimé)) pour toute information sur ce terrain. Les Maisons Extraco Dieppe est là pour vous accompagner dans toutes vos démarches.
Petit-Caux
TERRAIN ET MAISONVENTE : maison F5 (114 m²) à GrenyPROCHE DE DIEPPE – MAISON 5 PIÈCES NEUVEÀ 9 km de la Manche et à 16 km de Dieppe, à vendre à Greny (76630), Les Maisons Extraco Dieppe vous présente cette maison de 5 pièces de plain-pied de 114 m². Conçue de plain-pied, elle se divise en quatre chambres, une cuisine et une salle de bains.Le terrain de la propriété s’étend sur 1 000 m².La maison est neuve.Il y a plusieurs écoles (maternelle, élémentaire, primaire et lycée) à moins de 10 minutes en voiture, tout comme une crèche à moins de 10 minutes à pied. On trouve des bibliothèques, des tennis, deux bassins de natation, des commerces, des boulangeries, quatre supermarchés, quatre épiceries et trois poissonneries dans les environs.Elle est à vendre pour la somme de 201 600 €.Contactez notre agence (LECLERC Natacha : (Numéro supprimé)) pour toute information sur cette maison, sur les modalités de vente ou sur les démarches à suivre. Concrétisez vos projets immobiliers avec Les Maisons Extraco Dieppe.
Petit-Caux
TERRAIN ET MAISONVENTE d’une maison F5 (105 m²) à GrenyPROCHE DE DIEPPE – MAISON 5 PIÈCES NEUVEEn vente : localisée à 9 km de la Manche et à 16 km de Dieppe, à Greny (76630), nous sommes ravis de vous présenter cette maison de 5 pièces de 105 m² et de 1 000 m² de terrain. Son intérieur se divise en quatre chambres, une cuisine et deux salles de bains.Cette maison possède 2 niveaux. Elle est neuve.Il y a plusieurs établissements scolaires (maternelle, élémentaire, primaire et lycée) à moins de 10 minutes en voiture, tout comme une crèche à moins de 10 minutes à pied. On trouve des bibliothèques, des tennis, deux bassins de natation, des commerces, des boulangeries, quatre supermarchés, des boucheries-charcuteries et trois bureaux de poste à proximité du bien.Elle est proposée à l’achat pour 217 500 €.Contactez Natacha LECLERC ((Numéro supprimé)) pour plus de renseignements sur la maison ou sur les démarches à suivre.
Petit-Caux
TERRAIN ET MAISONMaison de 4 pièces (98 m²) à vendre à GrenyPROCHE DE DIEPPE – MAISON 4 PIÈCES NEUVEÀ vendre : à 9 km de la Manche et à quelques kilomètres de Dieppe, Les Maisons Extraco Dieppe vous présente cette maison de 4 pièces de plain-pied de 98 m² et de 1 000 m² de terrain à Greny (76630).Son intérieur propose trois chambres, une cuisine et une salle de bains. Cette maison est neuve.Il y a plusieurs écoles (maternelle, élémentaire, primaire et lycée) à moins de 10 minutes en voiture, tout comme une crèche à moins de 10 minutes à pied. On trouve des bibliothèques, des tennis, deux bassins de natation, des commerces, des boulangeries, quatre supermarchés, trois poissonneries et des boucheries-charcuteries dans les environs.Elle est à vendre pour la somme de 208 900 €.Contactez notre agence (Natacha LECLERC : (Numéro supprimé)) pour toute information sur la maison. Les Maisons Extraco Dieppe vous accompagne dans toutes vos démarches et à toutes les étapes de l’achat.
Petit-Caux
TERRAIN ET MAISONSur ce terrain, nous vous proposons le confort d’une maison neuve aux lignes modernes avec ce projet de construction signé Maisons Cléroises. Nous vous proposons le modèle MONTVILLAISE, une maison de plain-pied de 72 m² habitables, fonctionnelle, lumineuse et conforme à la réglementation RE2020.Idéalement pensée pour accueillir une famille ou un couple, cette maison dispose de 2 belles chambres, d’une salle d’eau moderne et d’une grande pièce de vie traversante de plus de 42 m², avec cuisine ouverte et accès direct au jardin.Prestations incluses :– Menuiseries PVC gris foncé avec volets roulants électriques monobloc– Carrelage grand format 45×45– Pompe à chaleur dernière génération– Tuiles béton Nobilée, pente de toit à 30°– Normes thermiques RE2020Ce projet est personnalisable et vous garantit un excellent rapport qualité/prix. N’attendez plus pour devenir propriétaire d’une maison confortable, économique et durable.?? Contactez-nous dès maintenant pour plus d’informations, étude gratuite et sans engagement.
L’actualité immobilière à Touffreville-sur-Eu
27/11/2023
02/11/2023
30/10/2023
20/10/2023
16/10/2023
16/10/2023