Maison à construire à Vénès (81440)
Images
Description
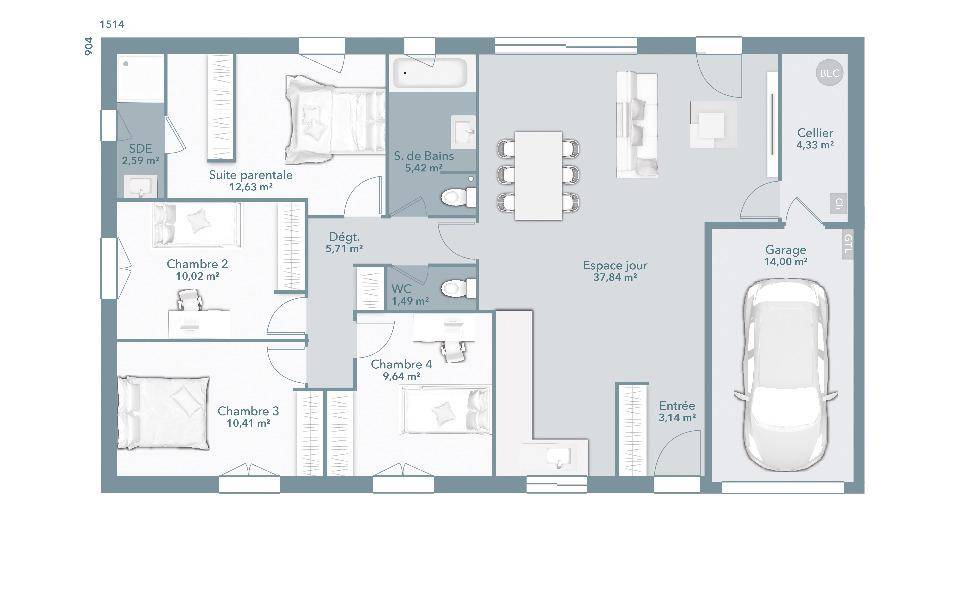
Modèle Optima - Maison de plain-pied de 103 m² - 4 chambres
Maisons France Confort Albi, spécialiste reconnu de la construction traditionnelle et à ossature bois, vous présente le modèle Optima : une maison de plain-pied de 103 m², pensée pour répondre aux attentes des familles modernes en quête de confort, de fonctionnalité et de luminosité.
Une organisation des espaces parfaitement optimisée
Espace jour
Profitez d'une grande pièce de vie traversante de 37 m², regroupant salon, salle à manger et cuisine ouverte, pour un cadre de vie convivial et lumineux.
Un cellier relie intelligemment l'espace cuisine au garage attenant, offrant un accès pratique et des rangements supplémentaires au quotidien.
Espace nuit
L'espace nuit est bien séparé pour plus d'intimité. Il se compose de 3 à 4 chambres selon vos besoins, toutes équipées de placards intégrés.
Vous y trouverez également une suite parentale avec salle d'eau privative, véritable espace de confort pour les parents.
Une maison pensée pour la vie de famille
Chaque volume a été soigneusement étudié pour créer un intérieur harmonieux, fonctionnel et agréable à vivre, avec un agencement fluide et une belle luminosité naturelle dans toutes les pièces. Le modèle Optima est idéal pour créer un cocon familial chaleureux et accueillant.
📞 Contactez dès maintenant Maisons France Confort Albi au (Numéro supprimé) pour découvrir ce modèle et être accompagné dans votre projet de construction personnalisé.
Frais de notaire et frais annexes non inclus dans le prix affiché.
Annonce proposée par un Agent Commercial Partenaire.
Logement susceptibles de vous intéresser
Nous vous proposons de découvrir aussi cette sélection de logements situés à moins de 10km de Vénès et qui seraient susceptibles de vous intéresser.
Réalmont
TERRAIN ET MAISONLe modèle Lou est une maison de plain-pied de 90 m² à l’architecture contemporaine et épurée. Elle s’articule autour de trois chambres, d’une salle de bain et d’un WC séparé. La pièce de vie est fonctionnelle avec une cuisine ouverte sur le séjour de plus de 45m². Enfin, la maison dispose d’un beau garage de plus de 15 m² qui peut accueillir un véhicule. Retrouvez ce terrain d’une surface de 1499m² sur la commune de REALMONT. Idéalement situé et proche des commerces.
Réalmont
TERRAINVenez découvrir ce magnifique terrain plat de 1 499 m², idéalement situé sur les hauteurs de Réalmont, dans un cadre calme, verdoyant et résidentiel.Ce terrain, offre un emplacement privilégié, à proximité immédiate du centre-bourg, des commerces, des écoles et de tous les services.Facile d’accès et bénéficiant d’une belle exposition,Sa situation en retrait de la circulation vous garantit tranquillité et confort de vie, tout en restant proche des axes reliant Albi et Castres.Réalmont est une commune dynamique, appréciée pour sa convivialité, son marché hebdomadaire et sa qualité de vie au cœur du Tarn.Un bien rare sur le secteur, offrant un excellent potentiel pour bâtir la maison dont vous rêvez, dans un environnement agréable et recherché.
Lautrec
TERRAIN ET MAISON🏡 Modèle Actua 95 – Élégance, confort et modernité au quotidienMaisons France Confort Albi, constructeur de maisons traditionnelles et à ossature bois, vous présente le modèle Actua 95 : une maison moderne et raffinée, pensée pour offrir bien-être, luminosité et praticité à toute la famille.Son plan astucieusement agencé optimise chaque mètre carré afin de concilier confort et fonctionnalité dans un style résolument contemporain.✨ Un espace jour convivial et lumineuxAu coeur de la maison, l’espace de vie de 43 m² séduit par sa cuisine ouverte sur un salon-séjour spacieux, baigné de lumière naturelle grâce à de larges ouvertures.Un cellier fonctionnel et des WC indépendants viennent compléter ce rez-de-chaussée, pensé pour simplifier le quotidien.🌙 Un espace nuit intime et bien organiséL’espace nuit se compose d’une suite parentale avec dressing et salle d’eau privative, ainsi que de deux chambres équipées de placards, idéales pour enfants, amis ou bureau.Une salle de bains moderne avec WC vient parfaire cet espace à la fois confortable et harmonieux.🏗️ Un design sobre et contemporainLe garage accolé en façade avant souligne le caractère architectural de la maison tout en apportant praticité et rangements supplémentaires.Ses lignes épurées et ses volumes équilibrés confèrent à l’Actua 95 une allure à la fois moderne et intemporelle, parfaitement adaptée à tout type d’environnement.💬 Les atouts du modèle Actua 95Maison lumineuse et agréable à vivreAgencement fonctionnel et bien penséSuite parentale avec dressing et salle d’eau privativeGarage accolé et architecture contemporainePersonnalisable selon vos goûts et votre mode de vie📞 Donnez vie à votre projet dès aujourd’hui !Contactez Maisons France Confort Albi au (Numéro supprimé) pour plus d’informations ou pour une étude personnalisée de votre maison.ℹ️ Les frais de notaire et autres frais annexes ne sont pas inclus da
Lautrec
TERRAIN ET MAISONModèle Terra 104 – Villa moderne en ossature boisProposée par Maisons France Confort AlbiMaisons France Confort Albi, constructeur de référence en maisons traditionnelles et à ossature bois, vous présente le modèle Terra, une villa contemporaine de 104 m² alliant design moderne, luminosité naturelle et fonctionnalité optimale.Ce modèle a été imaginé pour offrir un confort de vie exceptionnel au quotidien, dans une atmosphère chaleureuse et épurée.🏡 Espace jour – Confort et convivialitéDès l’entrée, laissez-vous séduire par une vaste pièce de vie de 46 m², véritable coeur de la maison.Traversante et baignée de lumière grâce à deux grandes baies vitrées coulissantes et une fenêtre côté cuisine, elle offre une ouverture directe sur le jardin et une ambiance conviviale et lumineuse tout au long de la journée.Un cellier de 5 m², attenant à la cuisine, assure une parfaite fonctionnalité et permet un accès direct au garage intégré de 14 m².Un WC indépendant complète intelligemment cet espace.🛏️ Espace nuit – Calme et intimitéLe coin nuit se compose de :Quatre chambres lumineuses, de 10,44 m² à 11,80 m², idéales pour accueillir toute la famille,Une salle de bains élégante et fonctionnelle, équipée d’une vasque, d’une baignoire et d’un WC.Chaque espace a été pensé pour offrir bien-être, intimité et praticité au quotidien.🌿 Un modèle pensé pour la vie moderneLa villa Terra 104 séduit par son plan optimisé, son esthétique contemporaine et ses excellentes performances énergétiques, caractéristiques de la construction à ossature bois.Ce modèle est idéal pour les familles recherchant une maison durable, confortable et respectueuse de l’environnement, sans compromis sur le style.📞 Coup de coeur garanti !Ne tardez plus à concrétiser votre projet de vie.Contactez Maisons France Confort Albi au (Numéro supprimé) pour obtenir davantage d’informations ou personnaliser votre future villa selon vos envies.ℹᥧ
Lautrec
TERRAIN ET MAISONMaison de plain-pied – Plan fonctionnel et évolutif signé Maisons France Confort AlbiMaisons France Confort Albi vous propose ce modèle de maison de plain-pied à l’agencement optimisé, alliant modernité, fonctionnalité et confort au quotidien.L’habitation s’organise autour d’un espace de vie central de 23,91 m², comprenant un séjour lumineux et une cuisine ouverte. Les ouvertures ont été judicieusement positionnées pour profiter pleinement de la lumière naturelle tout au long de la journée.Le coin nuit accueille deux chambres confortables, de 10,04 m² et 10,12 m², situées côte à côte pour offrir un cadre intime et reposant. Une salle d’eau de 4,56 m², équipée d’une douche, complète cet espace, desservi par un dégagement compact de 0,75 m², conçu pour minimiser les pertes d’espace.Possibilité d’ajouté un garage accolé de 18,09 m², accessible directement depuis la cuisine, idéal pour stationner un véhicule ou créer un espace de rangement supplémentaire.Un plan pensé pour évoluer avec vousGrâce à sa conception intelligente, ce modèle est entièrement évolutif. Il est possible d’envisager des extensions sur les côtés ou à l’arrière, pour ajouter une chambre supplémentaire, un bureau, ou encore une pièce de détente, selon l’évolution de vos besoins.Ce plan modulable en fait une maison durable, qui s’adaptera facilement à tous vos projets de vie.📞 Contactez dès maintenant Maisons France Confort Albi au (Numéro supprimé) pour plus d’informations et concrétisez votre projet de vie.À noter : Les frais de notaire et frais annexes ne sont pas inclus dans le prix indiqué.Annonce proposée par un Agent Commercial Partenaire.
Lautrec
TERRAIN ET MAISONModèle Optima Plain-pied 125 m²Confort familial optimisé Luminosité ErgonomieMaisons France Confort Albi, spécialiste de la construction traditionnelle et à ossature bois, vous présente le modèle Optima, un plain-pied de 125 m² pensé pour la vie de famille : fonctionnalité, circulation fluide et luminosité au coeur du projet.Un plan réfléchi pour le quotidienPièce de vie centrale : un vaste séjour traversant, lumineux et convivial, conçu pour accueillir salon, salle à manger et cuisine ouverte. Les larges ouvertures favorisent la continuité intérieur / extérieur et créent un espace de vie agréable toute l’année.Espace enfants / jour : trois chambres dédiées aux enfants (ou invités) et un bureau agencés pour préserver calme et intimité tout en restant proches de la pièce de vie.Espace parents / nuit : suite parentale privative avec salle d’eau et dressing, offrant un véritable cocon intime et fonctionnel.Praticité : cellier attenant au garage avec accès direct à la cuisine, pour faciliter les allers-retours, le rangement des courses et les usages quotidiens.Atouts fonctionnelsSéparation claire jour / nuit pour un confort acoustique et une meilleure organisation des circulation.Nombreux rangements possibles : placards intégrés, cellier, garage tout est prévu pour une maison ordonnée et facile à vivre.Plain-pied : accessibilité, sécurité et confort pour toutes les étapes de la vie (jeunesse, famille, seniors).Confort, performances et personnalisationConception compatible avec des solutions techniques modernes : isolation performante, systèmes de chauffage performants, et options éco-responsables (pompe à chaleur, panneaux solaires, etc.).Plans modulables : possibilité d’adapter l’organisation intérieure, les finitions et les prestations (cuisine sur mesure, extension de garage, pergola, pose de volets roulants motorisés, etc.) selon vos besoins et votre budget.Pourquoi choisir l’Optima ?Vous recherchez un plain-pied spacieux alliant
Laboutarie
TERRAIN ET MAISONModèle Terra 104 – Villa moderne en ossature boisProposée par Maisons France Confort AlbiMaisons France Confort Albi, constructeur de référence en maisons traditionnelles et à ossature bois, vous présente le modèle Terra, une villa contemporaine de 104 m² alliant design moderne, luminosité naturelle et fonctionnalité optimale.Ce modèle a été imaginé pour offrir un confort de vie exceptionnel au quotidien, dans une atmosphère chaleureuse et épurée.🏡 Espace jour – Confort et convivialitéDès l’entrée, laissez-vous séduire par une vaste pièce de vie de 46 m², véritable coeur de la maison.Traversante et baignée de lumière grâce à deux grandes baies vitrées coulissantes et une fenêtre côté cuisine, elle offre une ouverture directe sur le jardin et une ambiance conviviale et lumineuse tout au long de la journée.Un cellier de 5 m², attenant à la cuisine, assure une parfaite fonctionnalité et permet un accès direct au garage intégré de 14 m².Un WC indépendant complète intelligemment cet espace.🛏️ Espace nuit – Calme et intimitéLe coin nuit se compose de :Quatre chambres lumineuses, de 10,44 m² à 11,80 m², idéales pour accueillir toute la famille,Une salle de bains élégante et fonctionnelle, équipée d’une vasque, d’une baignoire et d’un WC.Chaque espace a été pensé pour offrir bien-être, intimité et praticité au quotidien.🌿 Un modèle pensé pour la vie moderneLa villa Terra 104 séduit par son plan optimisé, son esthétique contemporaine et ses excellentes performances énergétiques, caractéristiques de la construction à ossature bois.Ce modèle est idéal pour les familles recherchant une maison durable, confortable et respectueuse de l’environnement, sans compromis sur le style.📞 Coup de coeur garanti !Ne tardez plus à concrétiser votre projet de vie.Contactez Maisons France Confort Albi au (Numéro supprimé) pour obtenir davantage d’informations ou personnaliser votre future villa selon vos envies.ℹᥧ
Lautrec
TERRAIN ET MAISON✨ Vous rêvez d’une maison de plain-pied moderne, fonctionnelle et lumineuse ?Maisons France Confort Albi, spécialiste de la construction de maisons traditionnelles et à ossature bois, vous présente le modèle Optima – 75 m², une maison pensée pour allier confort, efficacité et modernité.🏡 Modèle Optima – 75 m² : un concentré de bien-êtreCe modèle astucieusement conçu offre une organisation optimale de l’espace :3 chambres avec placards intégrés pour accueillir toute la famille ou créer un bureau,Un vaste espace de vie lumineux, convivial et ouvert,Un cellier pratique pour le rangement et les équipements,Un garage intégré, parfait pour sécuriser votre véhicule ou stocker vos outils.Adaptée aussi bien aux jeunes couples actifs qu’aux retraités souhaitant une vie simple et confortable au quotidien, la maison Optima séduit par sa praticité et son élégance contemporaine.📍 Un emplacement idéalProfitez d’un cadre de vie agréable dans un secteur dynamique, à proximité immédiate des commerces, écoles et services.👉 Ne repoussez plus votre projet de vie !📞 Contactez dès maintenant notre agence Maisons France Confort Albi au (Numéro supprimé)pour obtenir plus d’informations ou planifier un rendez-vous personnalisé.ℹ️ Frais de notaire et frais annexes non inclus dans le prix annoncé.Annonce proposée par un Agent Commercial Partenaire.
Laboutarie
TERRAIN ET MAISON🏡 Modèle Natura – Maison de plain-pied de 110 m² au design en L contemporainMaisons France Confort Albi, constructeur reconnu pour son savoir-faire en maisons traditionnelles et à ossature bois, vous présente le modèle Natura : une maison de plain-pied contemporaine de 110 m², au design en L à la fois élégant et fonctionnel.Pensée pour offrir confort, esthétisme et praticité, la Natura séduit par sa distribution fluide et son équilibre parfait entre les espaces jour et nuit.✨ Un espace de vie convivial et lumineuxDès l’entrée, laissez-vous séduire par une vaste pièce de vie de 43 m², réunissant salon, salle à manger et cuisine ouverte dans une atmosphère chaleureuse et moderne.Les deux grandes baies vitrées positionnées en façades opposées offrent une luminosité traversante exceptionnelle, créant une connexion naturelle avec le jardin et une sensation d’espace renforcée.🌙 Un espace nuit conçu pour le bien-êtreL’espace nuit, parfaitement indépendant, abrite une suite parentale avec dressing intégré et salle d’eau privative, garantissant intimité et confort.Un couloir fonctionnel dessert également trois chambres supplémentaires, idéales pour les enfants, les invités ou un bureau, ainsi qu’une grande salle de bains familiale, alliant élégance et praticité.🚗 Des espaces pensés pour le quotidienUn garage intégré de 15 m², accessible directement depuis l’intérieur, vient compléter ce plan harmonieux. Il offre un espace de rangement pratique et sécurisant, idéal pour le confort au quotidien.💡 Les atouts du modèle NaturaArchitecture contemporaine en L, alliant esthétique et intimitéPièce de vie traversante de 43 m², ouverte sur le jardinSuite parentale indépendante avec dressing et salle d’eau privativeGarage intégré et nombreux espaces de rangementMaison fonctionnelle, élégante et évolutive, adaptée à tous les styles de vie❤️ L’esprit NaturaLe modèle Natura est idéal pour les familles à l
L’actualité immobilière à Vénès
27/11/2023
02/11/2023
30/10/2023
20/10/2023
16/10/2023
16/10/2023