Maison à construire à Haravilliers (95640)
Images
Description
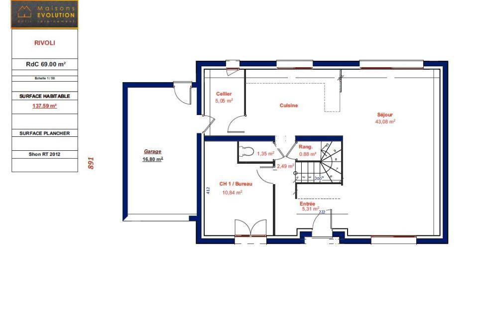
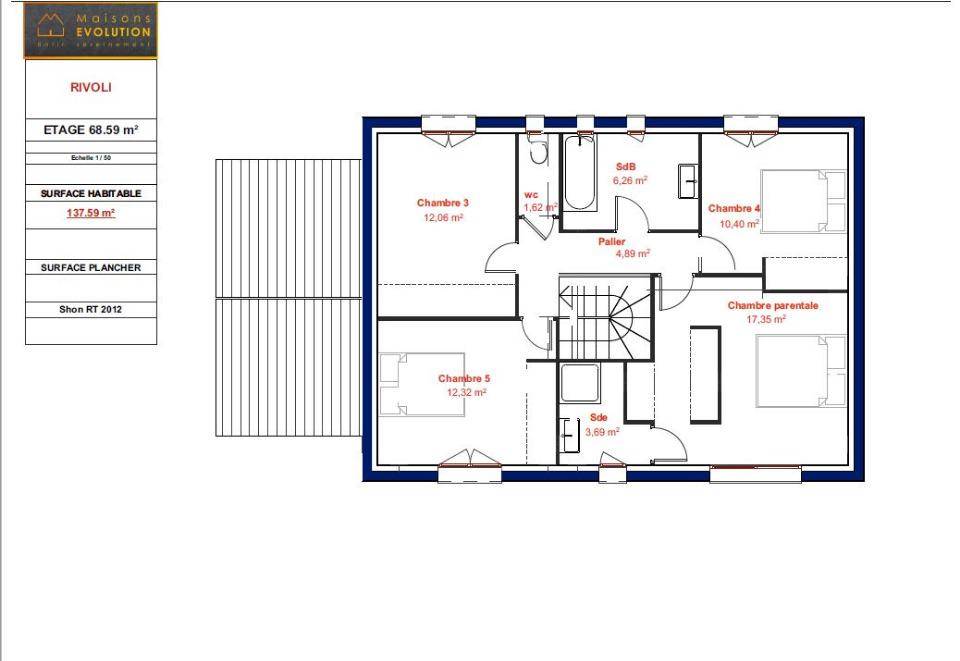
À vendre - Maison neuve 4 pièces de 110 m² à Haravilliers (95640)
IDÉALEMENT SITUÉE - PROCHE GARE & ÉCOLES - ENVIRONNEMENT CALME
À seulement 55 minutes de Paris grâce au Transilien J (gare de Chars à proximité), découvrez cette maison neuve de 110 m², située dans un quartier recherché de Haravilliers.
Cette maison à étage se compose de :
4 chambres confortables
Une cuisine fonctionnelle
Deux salles de bains
Le tout sur un terrain de 623 m², idéal pour profiter d'un bel espace extérieur.
L'École Primaire Les Hameaux est accessible à pied en moins de 10 minutes, et quatre gares se trouvent à moins de 10 minutes en voiture, offrant une excellente desserte.
Prix de vente : 400 000 €
Pour plus d'informations ou pour organiser une visite, contactez Julie BALAY au 06 puis 20 46 puis 53 puis 01.
Maisons Évolution Cormeilles-en-Parisis vous accompagne dans toutes les étapes de votre projet, de la conception à la remise des clés.
Logement susceptibles de vous intéresser
Nous vous proposons de découvrir aussi cette sélection de logements situés à moins de 10km de Haravilliers et qui seraient susceptibles de vous intéresser.
Marines
TERRAIN ET MAISON🏡 Votre projet Terrain + Maison à Bouconvillers (60)Dans un lotissement de 21 lots, découvrez ce terrain à bâtir de 489 m², entièrement viabilisé, avec une façade de 14,60 ml. Parfait pour accueillir une maison de plain-pied moderne et fonctionnelle.Nous vous proposons une maison de 60 m² habitables, idéale pour un premier achat ou une vie de plain-pied :1 chambre confortablePièce de vie ouverte et lumineuseSalle de bain fonctionnelleGarage accolé pour plus de praticitéPlan simple, compact et optimisé👉 Projet complet Terrain + Maison + Frais annexes: 255 000 €Un projet accessible, clé en main, dans un cadre paisible et recherché.Contactez XAVIER DOS SANTOS pour une étude personnalisée de votre future maison au (Numéro supprimé)
Marines
TERRAIN ET MAISON🏡 Votre projet Terrain + Maison à Bouconvillers (60)Saisissez l’opportunité de construire sur un terrain entièrement viabilisé de 489 m², situé dans un lotissement de 21 lots, avec une façade de 14,60 ml offrant une belle possibilité d’implantation.Nous vous proposons une maison familiale de 115 m² habitables, parfaitement pensée pour le confort et la fonctionnalité :Suite parentale au rez-de-chaussée avec dressing et salle d’eau3 chambres à l’étage, idéales pour enfants, famille ou télétravailSalle de bain familiale à l’étage2 WC séparés (RDC + Étage)Grande pièce de vie lumineuse, ouverte et convivialeArchitecture moderne, plan personnalisable selon vos enviesGarage accolé👉 Projet complet Terrain + Maison + Frais annexes: 350 000 €Un projet clé en main pour une vie sereine dans un environnement calme et recherché.Contactez XAVIER DOS SANTOS pour une étude personnalisée et découvrir toutes les possibilités de votre future maison au (Numéro supprimé)
Amblainville
TERRAIN ET MAISONAmblainville : maison de 6 pièces (105 m²) en venteMAISON 6 PIÈCES NEUVE – PROCHE D’ARGENTEUILÀ vendre : à deux pas d’Argenteuil, nous vous présentons cette maison de 6 pièces de 105 m² et de 510 m² de terrain à Amblainville (60110).Il s’agit d’une maison de 2 niveaux. Elle se divise en quatre chambres, une cuisine et deux salles de bains. Cette maison est neuve.Il y a des établissements scolaires maternelles et élémentaires dans le quartier. Côté transports en commun, on trouve cinq gares à moins de 10 minutes en voiture. Il y a un accès à l’autoroute A16 à 3 km. Il y a une bibliothèque, un tennis, une boulangerie et un bureau de poste à quelques minutes du bien.Elle est à vendre pour la somme de 290 000 €.Contactez notre agence (Antoine FLIPPE : (Numéro supprimé)) pour toute question sur la maison ou sur les démarches à suivre. Maisons Balency Pierrelaye est là pour vous accompagner à toutes les étapes de votre projet.Annonce proposée par un Agent Commercial Partenaire.
Marines
TERRAINVENTE : terrain de 516 m² à MarinesIDÉALEMENT SITUÉ – PROCHE D’ARGENTEUILÀ quelques minutes de la gare de Santeuil-Le Perchay (Paris à 55 min par le Transilien J) à Marines (95640), grand terrain. Réalisez-y votre résidence principale ou secondaire. Dans un quartier convoité, ce terrain idéalement situé est proche des écoles et des commerces. L’École Élémentaire Paul Cézanne, l’École Maternelle les Murgers et le Collège des Hautiers sont implantés à moins de 10 minutes à pied. Côté transports, il y a six gares à moins de 10 minutes en voiture. On trouve une bibliothèque, des commerces, deux boulangeries, un supermarché, deux épiceries et un bureau de poste à quelques minutes à peine.Son prix de vente est de 146 000 €. Prenez contact avec Gilles BOREAU (tél : (Numéro supprimé)) pour tout renseignement sur le terrain, sur les modalités de vente ou sur les démarches à suivre. Les Maisons Extraco Chambourcy est là pour vous accompagner à toutes les étapes de l’achat.
Amblainville
TERRAINVENTE : terrain de 510 m² à AmblainvillePROCHE D »ARGENTEUILGrand terrain à quelques kilomètres d »Argenteuil. De 510 m², ce terrain se situe dans Amblainville (60110). Ce terrain est proche des écoles et des commerces. Il y a des établissements scolaires maternelles et élémentaires dans le quartier. Niveau transports, on trouve cinq gares à moins de 10 minutes en voiture. On trouve un accès à l »autoroute A16 à 3 km. Il y a une bibliothèque, un tennis, une boulangerie et un bureau de poste à proximité.Ce terrain est à vendre pour la somme de 98 000 €. Contactez Antoine FLIPPE ((Numéro supprimé)) pour toute question sur le terrain ou sur les modalités de vente. Concrétisez vos projets immobiliers avec Maisons Balency Pierrelaye.Annonce proposée par un Agent Commercial Partenaire.
Marines
TERRAIN ET MAISONVENTE : maison de 6 pièces (114 m²) à MarinesIDÉALEMENT SITUÉE – MAISON 6 PIÈCES NEUVEÀ proximité de la gare de Santeuil-Le Perchay (Paris à 55 min par le Transilien J), laissez vous charmer par cette maison de 6 pièces de 114 m² et de 516 m² de terrain à vendre idéalement située dans Marines (95640). Elle offre cinq chambres, une cuisine et deux salles de bains.Cette maison comporte 2 niveaux. Elle est neuve.Cette maison se trouve dans un secteur recherché. L’École Élémentaire Paul Cézanne, l’École Maternelle les Murgers et le Collège des Hautiers sont implantés à moins de 10 minutes à pied. Niveau transports, il y a six gares à moins de 10 minutes en voiture. On trouve une bibliothèque, des commerces, deux boulangeries, un supermarché, un bureau de poste et deux épiceries dans les environs.Son prix de vente est de 328 400 €.N’hésitez pas à prendre contact avec notre agence (Gilles BOREAU : (Numéro supprimé)) pour toute information sur la maison.
Marines
TERRAIN ET MAISON🏡 Votre projet Terrain + Maison à Bouconvillers (60)Dans un lotissement de 21 lots, profitez d’un terrain entièrement viabilisé de 489 m², avec une belle façade de 14,60 ml – idéal pour accueillir votre future maison familiale.Nous vous proposons une maison de 105 m² habitables, au style moderne et optimisé :Suite parentale au rez-de-chaussée avec dressing et salle d’eau3 chambres à l’étage1 salle de bain familiale à l’étageAucun garage, pour une implantation simple et fonctionnellePièce de vie lumineuse, plan modulable selon vos envies👉 Projet complet Terrain + Maison + Frais annexes: 325 000 €Un projet clé en main pour vous installer dans un environnement calme et recherché.Contactez XAVIER DOS SANTOS pour plus d’informations ou une étude personnalisée de votre maison sur mesure, au (Numéro supprimé).
Marines
TERRAIN ET MAISONMaison T5 (85 m²) à vendre à MarinesIDÉALEMENT SITUÉE – MAISON 5 PIÈCES NEUVEEn vente : à proximité du Transilien J (gare de Santeuil-Le Perchay, 55 min de Paris), idéalement située dans Marines (95640), ayez le coup de coeur pour cette maison de 5 pièces de 85 m² et de 516 m² de terrain. Son intérieur compte trois chambres, une cuisine et une salle de bains.Cette maison possède 2 niveaux. Elle est neuve.La maison se situe dans un quartier recherché. L’École Élémentaire Paul Cézanne, l’École Maternelle les Murgers et le Collège des Hautiers sont implantés à moins de 10 minutes à pied. Niveau transports, on trouve six gares à moins de 10 minutes en voiture. Il y a une bibliothèque, des commerces, deux boulangeries, un supermarché, deux épiceries et un bureau de poste dans les environs.Son prix de vente est de 307 200 €.Contactez notre agence (Gilles BOREAU : (Numéro supprimé)) pour toute question sur la maison ou sur les démarches à suivre.
Hénonville
TERRAINÀ Vendre : Terrain Exceptionnel de 613 m² – Idéal pour Votre Future Maison ! ??Situé dans un environnement prisé, ce magnifique terrain de 613 m² offre un cadre naturel rare et recherché. Parfait pour les personnes souhaitant construire une maison confortable et entièrement sur mesure.- Projet de construction avec notre partenaireLa vente inclut la possibilité de construire votre future maison avec notre partenaire, entreprise reconnue pour la qualité de ses réalisations, son accompagnement sur mesure et son expertise dans l’habitat durable.Vous pourrez bénéficier :- D’un accompagnement complet (plans, permis, construction)- D’une maison personnalisée selon vos goûts et besoins- D’un projet clé en main en toute sérénité- Localisation :Environnement paisible, proche des commodités, écoles, commerces, axes routiers, tout en restant à l’écart de la foule.- Viabilités :Le terrain dispose des viabilités TAE déjà raccordéEau / Electricité / Telecom prêt à être raccordés? Une opportunité rare pour concrétiser votre projet de vie !Contactez Gérald AFONSO au 06 / 98 / 03 / 84 /87 dès maintenant pour plus d’informations, une visite ou une étude personnalisée. Les honoraires sont à la charge du vendeur.Les informations sur les risques auxquels ce bien est exposé sont disponibles sur le site Géorisques : www. georisques. gouv. fr.Contactez Gérald AFONSO Entrepreneur Individuel, Agent commercial OptimHome (RSAC N(Numéro supprimé) Greffe de COMPIEGNE) (Numéro supprimé) (réf. 598279 )
L’actualité immobilière à Haravilliers
27/11/2023
02/11/2023
30/10/2023
20/10/2023
16/10/2023
16/10/2023