Maison à construire à Vallangoujard (95810)
Images
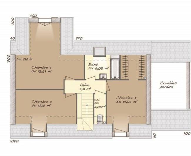
Description
VENTE d'une maison de 6 pièces (114 m²) à Vallangoujard
EMPLACEMENT PRIVILÉGIÉ - MAISON 6 PIÈCES NEUVE
À deux pas du Transilien H (gare de L'Isle-Adam-Parmain, 50 min de Paris), à vendre bénéficiant d'un emplacement privilégié dans Vallangoujard (95810), nous vous proposons cette maison de 6 pièces de 114 m². Elle compte quatre chambres, une cuisine et deux salles de bains.
Le terrain du bien est de 450 m².
Il s'agit d'une maison de 2 niveaux. Elle est neuve.
La maison se situe dans un secteur recherché. Il y a l'École Primaire Publique Grangeon à moins de 10 minutes à pied. Niveau transports, on trouve 13 gares à moins de 10 minutes en voiture. Il y a un tennis et une bibliothèque à quelques minutes du logement.
Elle est à vendre pour la somme de 337 200 €.
Contactez notre agence (TALAMONI Christophe : (Numéro supprimé)) pour toute information sur la maison, sur les démarches à suivre ou sur les modalités de vente.
Annonce proposée par un Agent Commercial Partenaire.
Logement susceptibles de vous intéresser
Nous vous proposons de découvrir aussi cette sélection de logements situés à moins de 10km de Vallangoujard et qui seraient susceptibles de vous intéresser.
Vallangoujard
TERRAIN ET MAISONVallangoujard : maison T4 (60 m²) à vendreEMPLACEMENT PRIVILÉGIÉ – MAISON 4 PIÈCES NEUVEEn vente : à quelques minutes du Transilien H (gare de L’Isle-Adam-Parmain, 50 min de Paris), laissez vous charmer par cette maison de 4 pièces de plain-pied de 60 m² bénéficiant d’un emplacement d’exception dans Vallangoujard (95810). Son intérieur est composé de deux chambres, d’une cuisine et d’une salle de bains.Le terrain de la maison s’étend sur 450 m².Cette maison est neuve.Cette propriété se situe dans un quartier recherché. L’École Primaire Publique Grangeon se trouve à moins de 10 minutes à pied. Niveau transports, il y a 13 gares à moins de 10 minutes en voiture. Il y a un tennis et une bibliothèque à quelques minutes à peine.Son prix de vente est de 239 400 €.Contactez Christophe TALAMONI ((Numéro supprimé)) pour obtenir de plus amples informations sur la maison.Annonce proposée par un Agent Commercial Partenaire.
Vallangoujard
TERRAINVENTE : terrain de 450 m² à VallangoujardEMPLACEMENT PRIVILÉGIÉ – PROCHE DE SAINT-DENISÀ deux pas de la gare de L’Isle-Adam-Parmain (Paris à 50 min avec le Transilien H) à Vallangoujard (95810), terrain de 450 m². Réalisez-y la maison de vos rêves. Il donne sur un espace vert et est orienté au sud. Dans un quartier prisé, ce terrain bénéficiant d’un emplacement privilégié est proche des commerces et des écoles. L’École Primaire Publique Grangeon est implantée à moins de 10 minutes à pied. Niveau transports en commun, on trouve 13 gares à moins de 10 minutes en voiture. Il y a un tennis et une bibliothèque dans les environs.Il est à vendre pour la somme de 90 000 €. Contactez notre agence (Christophe TALAMONI : (Numéro supprimé)) pour plus d’informations sur le terrain. Maisons Balency Baillet-en-France vous accompagne dans tous vos projets immobiliers et dans toutes vos démarches.Annonce proposée par un Agent Commercial Partenaire.
L'Isle-Adam
TERRAIN ET MAISONMaison de 9 pièces (242 m²) à vendre à L’Isle-AdamIDÉALEMENT SITUÉE – MAISON 9 PIÈCES NEUVEÀ vendre : à côté du Transilien H (gare de L’Isle-Adam-Parmain, 50 min de Paris), nous vous proposons cette maison de 9 pièces de 242 m² et de 700 m² de terrain avec vue sur jardin idéalement située dans L’Isle-Adam (95290). Son intérieur est composé de cinq chambres, d’une cuisine et de trois salles de bains.Il s’agit d’une maison de 2 niveaux. Elle est neuve.La maison se trouve dans un quartier prisé. L’École Élémentaire Parc de Cassan et l’École Maternelle Chantefleur sont implantées à moins de 10 minutes à pied. Niveau transports, il y a 23 gares à moins de 10 minutes en voiture. On trouve une bibliothèque, deux commerces, un supermarché, une boulangerie et trois boucheries-charcuteries à proximité du bien.Son prix de vente est de 893 000 €.N’hésitez pas à prendre contact avec Christophe TALAMONI (tél : (Numéro supprimé)) pour toute information sur le bien, sur les démarches à suivre ou sur les modalités de vente. Maisons Balency Baillet-en-France est là pour vous accompagner à toutes les étapes de l’achat.Annonce proposée par un Agent Commercial Partenaire.
L'Isle-Adam
TERRAIN ET MAISONL’Isle-Adam : maison de 8 pièces (200 m²) à vendreIDÉALEMENT SITUÉE – MAISON 8 PIÈCES NEUVEÀ proximité du Transilien H (gare de L’Isle-Adam-Parmain, 50 min de Paris), en vente idéalement située dans L’Isle-Adam (95290), nous sommes heureux de vous proposer cette maison de 8 pièces de 200 m² et de 700 m² de terrain. Son intérieur offre cinq chambres, une cuisine et deux salles de bains.Cette maison comporte 2 niveaux. Elle est neuve.Cette maison est située dans un secteur attractif. Il y a l’École Élémentaire Parc de Cassan et l’École Maternelle Chantefleur à moins de 10 minutes à pied. Niveau transports en commun, on trouve 23 gares à moins de 10 minutes en voiture. Il y a une bibliothèque, deux commerces, un supermarché, une boulangerie et trois boucheries-charcuteries dans les environs.Son prix de vente est de 843 092 €.Contactez Christophe TALAMONI (tél : (Numéro supprimé)) pour toute question sur la maison. Concrétisez vos projets immobiliers avec Maisons Balency Baillet-en-France.Annonce proposée par un Agent Commercial Partenaire.
Champagne-sur-Oise
TERRAIN ET MAISONChampagne-sur-Oise : maison de 4 pièces (83 m²) en venteIDÉALEMENT SITUÉE – MAISON 4 PIÈCES NEUVEEn vente : proche du Transilien H (50 min de Paris), idéalement située dans Champagne-sur-Oise (95660), nous sommes heureux de vous présenter cette maison de 4 pièces de plain-pied de 83 m² et de 260 m² de terrain. Son intérieur est composé de trois chambres, d’une cuisine et d’une salle de bains.Cette maison est neuve.La maison est située dans un secteur prisé. Des établissements scolaires primaires y sont implantés. Niveau transports, il y a 12 gares à moins de 10 minutes en voiture. Il y a une bibliothèque à quelques minutes à peine.Son prix de vente est de 290 000 €.N’hésitez pas à prendre contact avec Christophe TALAMONI (tél : (Numéro supprimé)) pour toute information sur la maison, sur les démarches à suivre ou sur les modalités de vente.Annonce proposée par un Agent Commercial Partenaire.
Champagne-sur-Oise
TERRAIN ET MAISONMaison de 8 pièces (145 m²) en vente à Champagne-sur-OiseIDÉALEMENT SITUÉE – MAISON 8 PIÈCES NEUVEEn vente : à deux pas de la gare (Paris à 50 min par le Transilien H), nous vous présentons, idéalement située dans Champagne-sur-Oise (95660), cette maison de 8 pièces de 145 m². Elle comporte cinq chambres, une cuisine et trois salles de bains.Le terrain du bien s’étend sur 260 m².C’est une maison de 2 niveaux. Elle est neuve.La maison se situe dans un quartier prisé. On y trouve des écoles maternelles et élémentaires. Niveau transports, on trouve 12 gares à moins de 10 minutes en voiture. Il y a une bibliothèque à quelques minutes à peine.Son prix de vente est de 389 320 €.N’hésitez pas à prendre contact avec notre agence (Christophe TALAMONI : (Numéro supprimé)) pour tout renseignement sur la maison ou sur les modalités de vente.Annonce proposée par un Agent Commercial Partenaire.
L'Isle-Adam
TERRAIN ET MAISONL’Isle-Adam : maison T9 (186 m²) en venteIDÉALEMENT SITUÉE – MAISON 9 PIÈCES NEUVEEn vente : à deux pas de la gare de L’Isle-Adam-Parmain (Paris à 50 min par le Transilien H), laissez vous charmer par, idéalement située dans L’Isle-Adam (95290), cette maison de 9 pièces de 186 m² et de 700 m² de terrain. Son intérieur se divise en quatre chambres, une cuisine et deux salles de bains.Cette maison compte 2 niveaux. Elle est neuve.La maison est située dans un quartier prisé. L’École Élémentaire Parc de Cassan et l’École Maternelle Chantefleur se trouvent à moins de 10 minutes à pied. Côté transports en commun, il y a 23 gares à moins de 10 minutes en voiture. On trouve une bibliothèque, deux commerces, un supermarché, une boulangerie et trois boucheries-charcuteries à quelques minutes à peine.Elle est proposée à l’achat pour 814 000 €.N’hésitez pas à prendre contact avec Christophe TALAMONI (tél : (Numéro supprimé)) pour obtenir de plus amples renseignements sur la maison, sur les modalités de vente ou sur les démarches à suivre. Maisons Balency Baillet-en-France est là pour vous accompagner à toutes les étapes de l’achat.Annonce proposée par un Agent Commercial Partenaire.
Vallangoujard
TERRAIN ET MAISONVENTE d’une maison de 6 pièces (114 m²) à VallangoujardEMPLACEMENT PRIVILÉGIÉ – MAISON 6 PIÈCES NEUVEÀ deux pas du Transilien H (gare de L’Isle-Adam-Parmain, 50 min de Paris), à vendre bénéficiant d’un emplacement privilégié dans Vallangoujard (95810), nous vous proposons cette maison de 6 pièces de 114 m². Elle compte quatre chambres, une cuisine et deux salles de bains.Le terrain du bien est de 450 m².Il s’agit d’une maison de 2 niveaux. Elle est neuve.La maison se situe dans un secteur recherché. Il y a l’École Primaire Publique Grangeon à moins de 10 minutes à pied. Niveau transports, on trouve 13 gares à moins de 10 minutes en voiture. Il y a un tennis et une bibliothèque à quelques minutes du logement.Elle est à vendre pour la somme de 337 200 €.Contactez notre agence (TALAMONI Christophe : (Numéro supprimé)) pour toute information sur la maison, sur les démarches à suivre ou sur les modalités de vente.Annonce proposée par un Agent Commercial Partenaire.
Champagne-sur-Oise
TERRAIN ET MAISONMaison de 6 pièces (117 m²) à vendre à Champagne-sur-OiseIDÉALEMENT SITUÉE – MAISON 6 PIÈCES NEUVEEn vente : au pied du Transilien H (50 min de Paris), nous sommes ravis de vous proposer, idéalement située dans Champagne-sur-Oise (95660), cette maison de 6 pièces de plain-pied de 117 m². Elle inclut quatre chambres, une cuisine et deux salles de bains.Le terrain du bien est de 260 m².Cette maison est neuve.La maison est située dans un quartier attractif. On y trouve des écoles primaires. Niveau transports en commun, il y a 12 gares à moins de 10 minutes en voiture. On trouve une bibliothèque dans les environs.Elle est proposée à l’achat pour 369 800 €.Prenez contact avec notre agence (Christophe TALAMONI : (Numéro supprimé)) pour toute information sur la maison.Annonce proposée par un Agent Commercial Partenaire.
L’actualité immobilière à Vallangoujard
27/11/2023
02/11/2023
30/10/2023
20/10/2023
16/10/2023
16/10/2023