Maison à construire à Lorgues (83510)
Images
Description
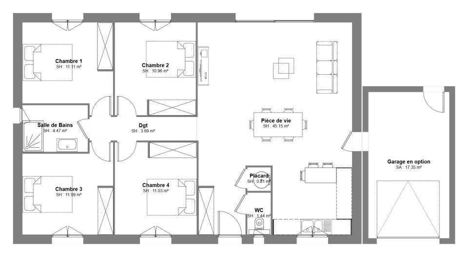
Votre villa neuve clé en main à 345 000 euros à Draguignan
Maisons France Confort agence de Trans en Provence vous propose une belle villa de plain-pied située dans un environnement cadre campagne à proximité de toutes les commodités sur un terrain plat de 1200m² au calme.
Confort, modernité et performance :
Grand espace de vie lumineux
Cuisine ouverte contemporaine
4 chambres spacieuses
Une salle de bains moderne idéale pour toute la famille
Volets roulants électriques
Système domotique pour un quotidien simplifié
Performance énergétique RE2020 : Grâce à une isolation renforcée et un chauffage économique, cette villa vous assure un confort optimal tout au long de l'année.
Projet clé en main à 345 000 euros Ce prix comprend le terrain, la maison et les frais de raccordement.
Pour une étude personnalisée, contactez Véronique CHAUVET au (Numéro supprimé)
Maisons France Confort, constructeur familial depuis 1919. Leader en France de la maison individuelle sur mesure.
Logement susceptibles de vous intéresser
Nous vous proposons de découvrir aussi cette sélection de logements situés à moins de 10km de Lorgues et qui seraient susceptibles de vous intéresser.
Lorgues
TERRAIN83510 – LORGUES – QUARTIER CALME et NATUREL- TERRAIN CONSTRUCTIBLE – 753.0 M² – BELLE OPPORTUNITÉ À SAISIR!efficity, l’agence qui estime votre bien en ligne, vous propose ce terrain VIABILISE constructible de 725 m2 avec une surface utile de 576 m2 et une surface plancher de 135 m2Il est idéalement situé Proche du centre ville et des installations sportives, dans un nouveau petit lotissement.Dans un environnement calme et paisible jonché d’oliviers, son exposition Sud Sud-Est garantit une luminosité optimale tout au long de la journée. Les informations sur les risques auxquels ce bien est exposé sont disponibles sur le site Georisque : georisques. gouv. fr Gregory Pierret – EI – est Agent Commercial mandataire en immobilier, immatriculé au Registre Spécial des Agents Commerciaux du Tribunal de Commerce de draguignan sous le n(Numéro supprimé).Siège social du mandant : effiCity, 48 avenue de Villiers – 75017 PARIS – Société par Actions Simplifiée, société au capital de 132 373,05 euros, immatriculée au RCS Paris 497 617 746 et titulaire de la Carte professionnelle CPI 7501 2015 000 002 025 – CCI Paris IDF – Caisse de Garantie : GALIAN Assurances 89 rue de la Boétie 75008 Paris
Draguignan
TERRAINProjet de construction à DraguignanÀ seulement 5 minutes du centre ville de Draguignan, venez découvrir ce beau terrain constructible de 1654m². Situé dans un environnement paisible, ce terrain vous offre un cadre campagne tout en restant à 5 minutes des commerces, des écoles et services de la villeIl réunit de nombreux atouts pour concrétiser votre projet :- 2 beaux plateaux pour construire et aménager votre future maison en toute simplicité.- Grâce à sa position dominante, vous profiterez d’une jolie vue dégagée sur la ville.- Avec ses 1654m², vous aurez l’espace nécessaire pour créer une villa confortable, avec jardin paysager et piscine.- Les viabilités à proximité (eau, EDF, tout-à-l’égout) facilitent le lancement rapide de votre projet de construction.- Idéal pour un projet familiale. L’emprise au sol de 248m² permet d’y projeter un beau projet de construction .Ce terrain rare à la vente conjugue praticité et authenticité. Il constitue l’opportunité idéale pour bâtir votre villa sur mesure.Pour tous renseignements et une étude personnalisée de votre projet de construction, contactez Véronique Chauvet au (Numéro supprimé).Maisons France Confort agence de Trans en Provence, constructeur de maisons individuelles leader en France. Entreprise familiale fondée en 1919.
Draguignan
TERRAIN ET MAISONProjet de construction à DraguignanVenez découvrir cette belle villa neuve de 120m² habitable sur un terrain de 1654m² idéalement situé au calme, à proximité des commodités.Cette villa se compose d’un bel espace de vie avec une cuisine ouverte, un cellier, 4 chambres dont une suite parentale avec sa salle d’eau privative et son dressing, et une seconde salle de bains qui vient complété ce bien. Vous aurez la possibilité d’y ajouter un garage si vous le souhaitez. De belles prestations sont prévues tels que les volets roulants électriques, les menuiseries couleur anthracite, la toiture 4 pans, un pack domotique et pour votre confort la climatisation sur l’ensemble de la maison. La maison répond aux normes RE2020.Projet clefs en mains à 410 000 euros incluant la maison, le terrain ainsi que les frais de raccordements.Pour tous renseignements et une étude personnalisée, contacter Véronique CHAUVET au (Numéro supprimé). Maisons France Confort entreprise familiale fondée en 1919, leader en France dans la construction de maisons individuelles.
Draguignan
TERRAIN ET MAISONProjet de construction à DraguignanCoup de coeur pour cette belle villa neuve de 113m² habitable sur un terrain de 1654m² à proximité des commodités. Cette villa offre une vaste pièce de vie climatisée de 45m² avec cuisine ouverte. L’agencement de cet espace ouvrant par une grande baie sur le jardin, lui confère une ambiance chaleureuse. 4 chambres dont une suite parentale en rez de chaussée avec sa salle d’eau privative et son dressing, de nombreux espaces de rangements et une salle de bains familiale complètent harmonieusement ce bien.Notre avis : les volumes, la situation et les prestations de cette villa lui donnent tout son charme et sa rareté. Villa neuve entièrement climatisée aux normes RE2020 avec la possibilité d’y ajouter un garage.Son prix clefs en mains 428 000 euros incluant la villa, le terrain, ainsi que le coût des raccordements.Pour tous renseignements et une étude personnalisée, contactez Véronique CHAUVET au (Numéro supprimé)Maisons France Confort agence de Trans en Provence constructeur de maisons individuelles leader en France. Entreprise familiale fondée en 1919.
Draguignan
TERRAIN ET MAISONDraguignan – Votre villa de 100m² habitable à 366 000 euros sur un terrain de 1654m²Maisons France Confort agence de Trans en Provence vous propose une belle villa de plain-pied située dans un environnement de qualité, à 5 minutes des commodités, sur un terrain de 1654m² offrant une jolie vue dégagée.Confort, modernité et performance :Grand espace de vie lumineuxCuisine ouverte contemporaine4 chambres spacieusesUne salle de bains moderne idéale pour toute la familleVolets roulants électriquesSystème domotique pour un quotidien simplifiéPerformance énergétique RE2020 : Grâce à une isolation renforcée et un chauffage économique, cette villa vous assure un confort optimal tout au long de l’année.Projet clé en main à 366 000 euros Ce prix comprend le terrain, la maison et les frais de raccordement.Pour une tous renseignements et une étude personnalisée, contactez Véronique CHAUVET au (Numéro supprimé)Maisons France Confort constructeur de maisons individuelles leader en France. Entreprise familiale fondée en 1919.
Lorgues
TERRAIN ET MAISONVotre villa neuve clé en main à 345 000 euros à DraguignanMaisons France Confort agence de Trans en Provence vous propose une belle villa de plain-pied située dans un environnement cadre campagne à proximité de toutes les commodités sur un terrain plat de 1200m² au calme.Confort, modernité et performance :Grand espace de vie lumineuxCuisine ouverte contemporaine4 chambres spacieusesUne salle de bains moderne idéale pour toute la familleVolets roulants électriquesSystème domotique pour un quotidien simplifiéPerformance énergétique RE2020 : Grâce à une isolation renforcée et un chauffage économique, cette villa vous assure un confort optimal tout au long de l’année.Projet clé en main à 345 000 euros Ce prix comprend le terrain, la maison et les frais de raccordement.Pour une étude personnalisée, contactez Véronique CHAUVET au (Numéro supprimé)Maisons France Confort, constructeur familial depuis 1919. Leader en France de la maison individuelle sur mesure.
Taradeau
TERRAIN ET MAISONA TARADEAU sur un terrain de 800 m², VILLAS PRISME vous propose de réaliser votre projet de construction de maison individuelle d'une surface de 118 m² habitables avec 3 chambres.Avec VILLAS PRISME, vous pouvez personnaliser votre projet de maison sur mesure :- Plan et distribution- Système de chauffage au choix- Prestations et équipements selon vos souhaits : carrelages, faïence, menuiseries, salles de bains…- Mode constructif et matériaux selon les normes en vigueur Informations du terrain : Très joli lotissement de 4 grands lotsEntièrement viabiliséA voirDemandez une étude gratuite et personnalisée de votre projet de construction !Contactez Odile CHARLANNES au (Numéro supprimé) (Villas Prisme – Agence de La Valette).Prix avec assurance dommages-ouvrage comprise, hors VRD, terrain viabilisé, frais de notaire non compris, frais divers non compris. Terrain sélectionné et vu pour vous sous réserve de disponibilité et au prix indiqué par notre partenaire foncier. Non mandaté pour la vente du terrain. Visuels non contractuels.Cette annonce a été créée et diffusée avec le logiciel VITAHOME.
Draguignan
TERRAIN ET MAISONVous souhaitez vivre sur la commune de Draguignan sur un terrain de 900m² dans un quartier calme non loin du centre ville et hôpital? Venez construire avec Natacha de Maisons France Confort cette jolie maison de 89m² composée de trois chambres, une pièce de vie avec sa cuisine ouverte. Un garage intégré complète également cette maison. Le prix comprend le terrain, la maison (voir descriptif lors du rendez-vous), provision terrassement. Le prix ne comprend pas: frais de notaire, aménagements intérieurs (voir lors du RDV), aménagements extérieurs, taxes et raccordements. Vous souhaitez en savoir plus sur ce projet ou en élaborer un à votre image? Contactez vite Natacha Espinosa de Maison France Confort au (Numéro supprimé).
Taradeau
TERRAINTrès joli lotissement de 4 grands lotsEntièrement viabiliséA voirPrix : 175000 €.Sur ce terrain de 800 m² à TARADEAU, VILLAS PRISME vous propose de réaliser votre projet de construction de maison individuelle.Avec VILLAS PRISME, vous pouvez personnaliser votre projet de maison sur mesure :- Plan et distribution- Système de chauffage au choix- Prestations et équipements selon vos souhaits : carrelages, faïence, menuiseries, salles de bains…- Mode constructif et matériaux selon les normes en vigueur Demandez une étude gratuite et personnalisée de votre projet de construction sur ce terrain à TARADEAU ! Prix hors frais de notaire. Terrain sélectionné et vu pour vous sous réserve de disponibilité et au prix indiqué par notre partenaire foncier. Non mandaté pour la vente du terrain. Visuels non contractuels.Cette annonce a été créée et diffusée avec le logiciel VITAHOME.
L’actualité immobilière à Lorgues
27/11/2023
02/11/2023
30/10/2023
20/10/2023
16/10/2023
16/10/2023