Maison à construire à Montfavet (84140)
Images
Description
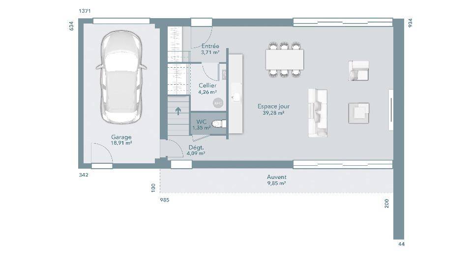
Avignon : maison F5 (100 m²) en vente
IDÉALEMENT SITUÉE - MAISON 5 PIÈCES NEUVE
En vente : à 43 km de la côte méditerranéenne, nous vous proposons cette maison de 5 pièces de 100 m² et de 700 m² de terrain idéalement située dans Avignon (84000). Elle propose trois chambres, une cuisine et trois salles de bains.
Cette maison possède 2 niveaux. Elle est neuve.
Cette maison se trouve dans un quartier prisé. Il y a des établissements scolaires du primaire et du secondaire à moins de 10 minutes à pied, deux crèches, tout comme une université à proximité : l'université Avignon Université. Niveau transports, on trouve sept gares à moins de 10 minutes en voiture. L'autoroute A7 et les nationales N7 et N129 sont accessibles à moins de 10 km. Il y a des boulangeries, des commerces, trois supermarchés, deux bureaux de poste et deux poissonneries dans les environs. Enfin, 2 marchés animent le quartier.
Elle est à vendre pour la somme de 649 000 €.
Contactez notre agence (Julien FANTOZZI : (Numéro supprimé)) pour toute information sur la maison, sur les démarches à suivre ou sur les modalités de vente. Maisons France Confort Le Pontet vous accompagne dans tous vos projets immobiliers et dans toutes vos démarches.
Logement susceptibles de vous intéresser
Nous vous proposons de découvrir aussi cette sélection de logements situés à moins de 10km de Avignon et qui seraient susceptibles de vous intéresser.
Sorgues
TERRAINVENTE d’un terrain de 900 m² à SorguesIDÉALEMENT SITUÉ – VUE SANS VIS-À-VISEn vente à quelques kilomètres d’Avignon à Sorgues (84700), grand terrain. Réalisez-y votre projet de construction. Ce terrain, avec une exposition sud, profite d’une vue sans vis-à-vis. Dans un secteur convoité, ce terrain idéalement situé est proche des commerces et des écoles. Plusieurs écoles (maternelle, primaire et collège) sont implantées à moins de 10 minutes à pied. Niveau transports en commun, on trouve huit gares à moins de 10 minutes en voiture. Il y a un accès à l’autoroute A7 à 4 km. Il y a un tennis, une bibliothèque, des commerces, des boulangeries, trois supermarchés, un bureau de poste et trois boucheries-charcuteries dans les environs. Ne manquez pas le marché Centre-Ville chaque dimanche matin.Ce terrain est à vendre pour la somme de 175 000 €. Contactez Julien FANTOZZI ((Numéro supprimé)) pour obtenir de plus amples informations sur le terrain. Maisons France Confort Le Pontet vous accompagne dans tous vos projets immobiliers et à toutes les étapes de l’achat.
Sorgues
TERRAIN ET MAISONSorgues : maison T4 (80 m²) à vendreIDÉALEMENT SITUÉE – MAISON 4 PIÈCES NEUVEÀ vendre à quelques kilomètres d’Avignon, nous vous présentons, idéalement située dans Sorgues (84700), cette maison de 4 pièces de plain-pied de 80 m² et de 900 m² de terrain. Elle se divise en trois chambres, une cuisine et une salle de bains.Cette maison est neuve.Cette maison se trouve dans un secteur recherché. Plusieurs établissements scolaires (maternelle, primaire et collège) sont implantés à moins de 10 minutes à pied. Niveau transports, on trouve huit gares à moins de 10 minutes en voiture. L’autoroute A7 est accessible à 4 km. Il y a un tennis, une bibliothèque, des commerces, des boulangeries, trois supermarchés, trois boucheries-charcuteries et deux épiceries à quelques minutes à peine. Le marché Centre-Ville a lieu tous les dimanches matin.Son prix de vente est de 319 000 €.N’hésitez pas à prendre contact avec Julien FANTOZZI (tél : (Numéro supprimé)) pour obtenir de plus amples informations sur la maison, sur les démarches à suivre ou sur les modalités de vente. Maisons France Confort Le Pontet vous accompagne à toutes les étapes de votre projet et dans tous vos projets immobiliers.
Sorgues
TERRAIN ET MAISONMaison F6 (130 m²) en vente à SorguesIDÉALEMENT SITUÉE – MAISON 6 PIÈCES NEUVEÀ deux pas d’Avignon, en vente idéalement située dans Sorgues (84700), notre agence Maisons France Confort Le Pontet est heureuse de vous proposer cette maison de 6 pièces de 130 m². Son intérieur propose quatre chambres, une cuisine et trois salles de bains.Le terrain de cette maison s’étend sur 900 m².C’est une maison de 2 niveaux. Elle est neuve.La maison se trouve dans un secteur recherché. Plusieurs établissements scolaires (maternelle, primaire et collège) sont implantés à moins de 10 minutes à pied. Côté transports, on trouve huit gares à moins de 10 minutes en voiture. L’autoroute A7 est accessible à 4 km. Il y a un tennis, une bibliothèque, des commerces, des boulangeries, trois supermarchés, deux épiceries et trois boucheries-charcuteries dans les environs. Le marché Centre-Ville anime le quartier tous les dimanches matin.Son prix de vente est de 445 000 €.Prenez contact avec Julien FANTOZZI (tél : (Numéro supprimé)) pour plus de renseignements sur la maison ou sur les modalités de vente.
Sorgues
TERRAIN ET MAISONMaison de 4 pièces (95 m²) en vente à SorguesIDÉALEMENT SITUÉE – MAISON 4 PIÈCES NEUVEÀ vendre : à deux pas d’Avignon, venez découvrir cette maison de 4 pièces de plain-pied de 95 m² idéalement située dans Sorgues (84700).Elle inclut trois chambres, une cuisine et deux salles de bains. Cette maison est neuve.Le terrain de la propriété s’étend sur 900 m².La maison est située dans un secteur convoité. Il y a plusieurs écoles (maternelle, primaire et collège) à moins de 10 minutes à pied. Niveau transports, on trouve huit gares à moins de 10 minutes en voiture. L’autoroute A7 est accessible à 4 km. Il y a un tennis, une bibliothèque, des commerces, des boulangeries, trois supermarchés, trois boucheries-charcuteries et deux épiceries dans les environs. Ne manquez pas le marché Centre-Ville chaque dimanche matin.Elle est proposée à l’achat pour 339 000 €.Prenez contact avec notre agence (Julien FANTOZZI : (Numéro supprimé)) pour tout renseignement sur la maison et sur les modalités de vente.
Sorgues
TERRAIN ET MAISONVENTE d’une maison de 4 pièces (73 m²) à SorguesIDÉALEMENT SITUÉE – MAISON 4 PIÈCES NEUVEÀ vendre à deux pas d’Avignon, notre agence Maisons France Confort Le Pontet est ravie de vous présenter, idéalement située dans Sorgues (84700), cette maison de 4 pièces de plain-pied de 73 m².Conçue de plain-pied, elle se divise en trois chambres, une cuisine et une salle de bains. Cette maison est neuve.Le terrain de la propriété s’étend sur 900 m².La maison est située dans un quartier convoité. Plusieurs établissements scolaires (maternelle, primaire et collège) sont implantés à moins de 10 minutes à pied. Côté transports en commun, il y a huit gares à moins de 10 minutes en voiture. On trouve un accès à l’autoroute A7 à 4 km. On trouve un tennis, une bibliothèque, des commerces, des boulangeries, trois supermarchés, deux épiceries et un bureau de poste dans les environs. Le marché Centre-Ville a lieu tous les dimanches matin.Elle est proposée à l’achat pour 289 000 €.Contactez Julien FANTOZZI ((Numéro supprimé)) pour toute question sur la maison. Maisons France Confort Le Pontet vous accompagne dans toutes vos démarches et dans tous vos projets immobiliers.
Sorgues
TERRAINFiche N°Id-TCT165919 : SORGUES Fiche BC165919 : Sorgues, Terrain de 162 m2 – – Equipements annexes : – chauffage : Aucun – Plus d’informations disponibles sur demande… – Mentions légales : Proposé à la vente à 60000 Euros (honoraires à la charge du vendeur) – Reseau Immo-Diffusion Sorgues – Pour plus d’informations, contactez notre secrétariat au (Numéro supprimé) (Appel gratuit ou prix d’une communication locale) – Les informations sur les risques auxquels ce bien est exposé sont disponibles sur le site Géorisques : www.georisques.gouv.fr
Noves
TERRAINA VENDRE – Commune de NOVES – Marie Line et Emmanuel vous présentent un TERRAIN A BATIR. Parcelle de 679 m², emprise au sol de 30% – Libre constructeur. A visiter rapidement!Pour visiter et vous accompagner dans votre projet, contactez Marie Line URVOY, au (Numéro supprimé) ou au (Numéro supprimé)Selon l’article L.561.5 du Code Monétaire et Financier, pour l’organisation de la visite, la présentation d’une pièce d’identité vous sera demandée.Prix de vente de: 151000 euros honoraires inclus – 140 000 euros honoraires exclus – honoraires de 11000 euros à la charge des acquéreurs.Cette présente annonce a été rédigée sous la responsabilité éditoriale de Marie Line URVOY agissant sous le statut d’agent commercial immatriculé au RSAC TARASCON 434 911 863 auprès de SAS PROPRIETES PRIVEES, au capital de 44 920 euros, ZAC LE CHÊNE FERRÉ – 44 ALLÉE DES CINQ CONTINENTS 44120 VERTOU; SIRET 487 624 777 00040, RCS Nantes. Carte Professionnelle Transactions sur immeubles et fonds de commerce (T) et Gestion immobilière (G) n° CPI 4401 2016 000 010 388 délivrée par la CCI Nantes – Saint Nazaire. Compte séquestre n(Numéro supprimé)67 BPA SAINT-SEBASTIEN-SUR-LOIRE (44230). Garantie GALIAN-SMABTP – 89 rue de la Boétie, 75008 Paris – n°28137 J pour 2 000 000 euros pour T et 120 000 euros pour G. Assurance responsabilité civile professionnelle par GALIAN-SMABTP n° de police 28137.JMandat réf : 421487. – Le professionnel garantit et sécurise votre projet immobilier. (7.86 % honoraires TTC à la charge de l’acquéreur.) Marie Line URVOY (EI) Agent Commercial – Numéro RSAC : TARASCON 434 911 863 – .
Châteaurenard
TERRAINMaison France Confort et ses partenaires fonciers : vous proposent ce projet de construction sur la commune de Châteaurenard, dans un environnement calme et résidentiel, avec une vue totalement dégagée. Idéalement situé entre Avignon, Arles et Salon-de-Provence, à seulement 20 minutes de la gare TGV, ce terrain de 360 m² , saura vous séduire par son cadre et sa proximité avec les commodités du centre.Exemple de réalisation : TERRAIN + MAISONMaison de 3 chambresBelle pièce de vie de 35 m² Prix : 288 000 € (hors frais de notaire et taxes)Ce projet est totalement personnalisable selon vos envies : plan, agencement, prestations…Nous vous accompagnons du premier rendez-vous jusqu’à la remise des clés, dans le cadre d’un contrat de construction de maisons individuelles (CCMI) offrant toutes les garanties légales.Profitez des dernières opportunités sur ce secteur recherché.Toute notre équipe vous accueille à notre agence de Salon-de-Provence et reste à votre écoute au (Numéro supprimé) ou (Numéro supprimé) pour concrétiser votre projet.Maison France Confort – Votre partenaire de confiance pour construire sereinement.
Châteaurenard
TERRAIN ET MAISONMaison France Confort et ses partenaires fonciers : vous proposent ce projet de construction sur la commune de Châteaurenard, dans un environnement calme et résidentiel, avec une vue totalement dégagée. Idéalement situé entre Avignon, Arles et Salon-de-Provence, à seulement 20 minutes de la gare TGV, ce terrain de 350 m² , saura vous séduire par son cadre et sa proximité avec les commodités du centre.Exemple de réalisation : TERRAIN + MAISONMaison de 3 chambresBelle pièce de vie de 35 m² Prix : 288 000 € (hors frais de notaire et taxes)Ce projet est totalement personnalisable selon vos envies : plan, agencement, prestations…Nous vous accompagnons du premier rendez-vous jusqu’à la remise des clés, dans le cadre d’un contrat de construction de maisons individuelles (CCMI) offrant toutes les garanties légales.Profitez des dernières opportunités sur ce secteur recherché.Toute notre équipe vous accueille à notre agence de Salon-de-Provence et reste à votre écoute au (Numéro supprimé) ou (Numéro supprimé) pour concrétiser votre projet.Maison France Confort – Votre partenaire de confiance pour construire sereinement.
L’actualité immobilière à Avignon
27/11/2023
02/11/2023
30/10/2023
20/10/2023
16/10/2023
16/10/2023