Maison à construire à Monteux (84170)
Images
Description
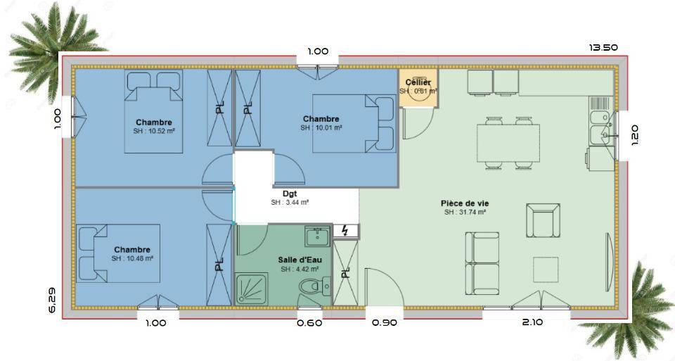
Maison de 4 pièces (71 m²) à vendre à Althen-des-Paluds
Quartier recherché - À découvrir à Althen-des-Paluds (84210) : maison neuve 4 pièces en vente, 71 m² et 570 m² de terrain. Conçue de plain-pied, elle comporte trois chambres, une cuisine et une salle de bains.
Proche gares, écoles, crèche, tennis, commerces, boulangerie, bureau de poste et supérette. Autoroute A7 accessible à 6 km. Avignon à 12 km.
Cette maison de 4 pièces est proposée à l'achat pour 285 000 €.HORS FRAIS DE NOTAIRE
Contactez Pierre GIMENEZ ((Numéro supprimé)) pour tout renseignement sur la maison ou sur les modalités de vente.
Logement susceptibles de vous intéresser
Nous vous proposons de découvrir aussi cette sélection de logements situés à moins de 10km de Monteux et qui seraient susceptibles de vous intéresser.
Sorgues
TERRAINVENTE d’un terrain de 900 m² à SorguesIDÉALEMENT SITUÉ – VUE SANS VIS-À-VISEn vente à quelques kilomètres d’Avignon à Sorgues (84700), grand terrain. Réalisez-y votre projet de construction. Ce terrain, avec une exposition sud, profite d’une vue sans vis-à-vis. Dans un secteur convoité, ce terrain idéalement situé est proche des commerces et des écoles. Plusieurs écoles (maternelle, primaire et collège) sont implantées à moins de 10 minutes à pied. Niveau transports en commun, on trouve huit gares à moins de 10 minutes en voiture. Il y a un accès à l’autoroute A7 à 4 km. Il y a un tennis, une bibliothèque, des commerces, des boulangeries, trois supermarchés, un bureau de poste et trois boucheries-charcuteries dans les environs. Ne manquez pas le marché Centre-Ville chaque dimanche matin.Ce terrain est à vendre pour la somme de 175 000 €. Contactez Julien FANTOZZI ((Numéro supprimé)) pour obtenir de plus amples informations sur le terrain. Maisons France Confort Le Pontet vous accompagne dans tous vos projets immobiliers et à toutes les étapes de l’achat.
Sorgues
TERRAIN ET MAISONSorgues : maison T4 (80 m²) à vendreIDÉALEMENT SITUÉE – MAISON 4 PIÈCES NEUVEÀ vendre à quelques kilomètres d’Avignon, nous vous présentons, idéalement située dans Sorgues (84700), cette maison de 4 pièces de plain-pied de 80 m² et de 900 m² de terrain. Elle se divise en trois chambres, une cuisine et une salle de bains.Cette maison est neuve.Cette maison se trouve dans un secteur recherché. Plusieurs établissements scolaires (maternelle, primaire et collège) sont implantés à moins de 10 minutes à pied. Niveau transports, on trouve huit gares à moins de 10 minutes en voiture. L’autoroute A7 est accessible à 4 km. Il y a un tennis, une bibliothèque, des commerces, des boulangeries, trois supermarchés, trois boucheries-charcuteries et deux épiceries à quelques minutes à peine. Le marché Centre-Ville a lieu tous les dimanches matin.Son prix de vente est de 319 000 €.N’hésitez pas à prendre contact avec Julien FANTOZZI (tél : (Numéro supprimé)) pour obtenir de plus amples informations sur la maison, sur les démarches à suivre ou sur les modalités de vente. Maisons France Confort Le Pontet vous accompagne à toutes les étapes de votre projet et dans tous vos projets immobiliers.
Sorgues
TERRAIN ET MAISONMaison F6 (130 m²) en vente à SorguesIDÉALEMENT SITUÉE – MAISON 6 PIÈCES NEUVEÀ deux pas d’Avignon, en vente idéalement située dans Sorgues (84700), notre agence Maisons France Confort Le Pontet est heureuse de vous proposer cette maison de 6 pièces de 130 m². Son intérieur propose quatre chambres, une cuisine et trois salles de bains.Le terrain de cette maison s’étend sur 900 m².C’est une maison de 2 niveaux. Elle est neuve.La maison se trouve dans un secteur recherché. Plusieurs établissements scolaires (maternelle, primaire et collège) sont implantés à moins de 10 minutes à pied. Côté transports, on trouve huit gares à moins de 10 minutes en voiture. L’autoroute A7 est accessible à 4 km. Il y a un tennis, une bibliothèque, des commerces, des boulangeries, trois supermarchés, deux épiceries et trois boucheries-charcuteries dans les environs. Le marché Centre-Ville anime le quartier tous les dimanches matin.Son prix de vente est de 445 000 €.Prenez contact avec Julien FANTOZZI (tél : (Numéro supprimé)) pour plus de renseignements sur la maison ou sur les modalités de vente.
Sorgues
TERRAIN ET MAISONMaison de 4 pièces (95 m²) en vente à SorguesIDÉALEMENT SITUÉE – MAISON 4 PIÈCES NEUVEÀ vendre : à deux pas d’Avignon, venez découvrir cette maison de 4 pièces de plain-pied de 95 m² idéalement située dans Sorgues (84700).Elle inclut trois chambres, une cuisine et deux salles de bains. Cette maison est neuve.Le terrain de la propriété s’étend sur 900 m².La maison est située dans un secteur convoité. Il y a plusieurs écoles (maternelle, primaire et collège) à moins de 10 minutes à pied. Niveau transports, on trouve huit gares à moins de 10 minutes en voiture. L’autoroute A7 est accessible à 4 km. Il y a un tennis, une bibliothèque, des commerces, des boulangeries, trois supermarchés, trois boucheries-charcuteries et deux épiceries dans les environs. Ne manquez pas le marché Centre-Ville chaque dimanche matin.Elle est proposée à l’achat pour 339 000 €.Prenez contact avec notre agence (Julien FANTOZZI : (Numéro supprimé)) pour tout renseignement sur la maison et sur les modalités de vente.
Sorgues
TERRAIN ET MAISONVENTE d’une maison de 4 pièces (73 m²) à SorguesIDÉALEMENT SITUÉE – MAISON 4 PIÈCES NEUVEÀ vendre à deux pas d’Avignon, notre agence Maisons France Confort Le Pontet est ravie de vous présenter, idéalement située dans Sorgues (84700), cette maison de 4 pièces de plain-pied de 73 m².Conçue de plain-pied, elle se divise en trois chambres, une cuisine et une salle de bains. Cette maison est neuve.Le terrain de la propriété s’étend sur 900 m².La maison est située dans un quartier convoité. Plusieurs établissements scolaires (maternelle, primaire et collège) sont implantés à moins de 10 minutes à pied. Côté transports en commun, il y a huit gares à moins de 10 minutes en voiture. On trouve un accès à l’autoroute A7 à 4 km. On trouve un tennis, une bibliothèque, des commerces, des boulangeries, trois supermarchés, deux épiceries et un bureau de poste dans les environs. Le marché Centre-Ville a lieu tous les dimanches matin.Elle est proposée à l’achat pour 289 000 €.Contactez Julien FANTOZZI ((Numéro supprimé)) pour toute question sur la maison. Maisons France Confort Le Pontet vous accompagne dans toutes vos démarches et dans tous vos projets immobiliers.
Aubignan
TERRAINAubignan : terrain de 500 m² en venteQUARTIER RECHERCHÉ – VUE DÉGAGÉETerrain de 500 m² en vente à deux pas d’Avignon. Ce terrain se situe niché dans un quartier convoité d’Aubignan (84810). Ce terrain, orienté au sud, profite d’une vue dégagée. Dans un secteur recherché, ce terrain est proche des écoles et des commerces. Il y a des écoles maternelles et élémentaires dans la commune et dont l’École Primaire la Garenne. Niveau transports en commun, on trouve les gares Carpentras et Monteux à moins de 10 minutes en voiture. L’autoroute A7 et la nationale N7 sont accessibles à moins de 16 km. Il y a un tennis, une bibliothèque, des commerces, trois boulangeries, un supermarché, deux boucheries-charcuteries et deux épiceries dans les environs.Il est proposé à l’achat pour 139 000 €. N’hésitez pas à prendre contact avec Julien FANTOZZI ((Numéro supprimé)) pour plus d’informations sur le terrain. Maisons France Confort Le Pontet est là pour vous accompagner à toutes les étapes de l’achat.
Aubignan
TERRAIN ET MAISONMaison F4 (95 m²) en vente à AubignanQUARTIER RECHERCHÉ – MAISON 4 PIÈCES NEUVEÀ vendre à quelques kilomètres d’Avignon, nous sommes heureux de vous proposer cette maison de 4 pièces de plain-pied de 95 m² et de 500 m² de terrain située dans un secteur convoité d’Aubignan (84810).Elle propose trois chambres, une cuisine et deux salles de bains. Cette maison est neuve.La maison est située dans un quartier prisé. On y trouve des établissements scolaires maternelles et élémentaires ainsi que dont l’École Primaire la Garenne. Niveau transports en commun, on trouve les gares Carpentras et Monteux à moins de 10 minutes en voiture. L’autoroute A7 et la nationale N7 sont accessibles à moins de 16 km. Il y a un tennis, une bibliothèque, des commerces, trois boulangeries, un supermarché, deux boucheries-charcuteries et deux épiceries à quelques minutes à peine.Elle est à vendre pour la somme de 295 000 €.Contactez Julien FANTOZZI ((Numéro supprimé)) pour obtenir de plus amples renseignements sur la maison. Maisons France Confort Le Pontet est là pour vous accompagner à toutes les étapes de l’achat.
Aubignan
TERRAIN ET MAISONAubignan : maison T5 (90 m²) à vendreQUARTIER RECHERCHÉ – MAISON 5 PIÈCES NEUVEÀ vendre à quelques kilomètres d’Avignon, située dans un quartier recherché d’Aubignan (84810), Maisons France Confort Le Pontet vous propose cette maison de 5 pièces de plain-pied de 90 m² et de 500 m² de terrain. Conçue de plain-pied, elle compte trois chambres, une cuisine et deux salles de bains.Cette maison est neuve.La maison est située dans un secteur attractif. Des écoles maternelles et élémentaires y sont implantées et, comme l’École Primaire la Garenne. Niveau transports en commun, il y a deux gares (Carpentras et Monteux) à moins de 10 minutes en voiture. L’autoroute A7 et la nationale N7 sont accessibles à moins de 16 km. On trouve un tennis, une bibliothèque, des commerces, trois boulangeries, un supermarché, deux épiceries et deux boucheries-charcuteries à quelques minutes du bien.Elle est proposée à l’achat pour 279 000 €.Prenez contact avec notre agence (Julien FANTOZZI : (Numéro supprimé)) pour plus de renseignements sur la maison, sur les modalités de vente ou sur les démarches à suivre.
Aubignan
TERRAIN ET MAISONAubignan : maison de 5 pièces (90 m²) en venteQUARTIER RECHERCHÉ – MAISON 5 PIÈCES NEUVEÀ deux pas d’Avignon, nous sommes ravis de vous proposer cette maison de 5 pièces de plain-pied de 90 m² dans un quartier recherché d’Aubignan (84810). Elle dispose de trois chambres, d’une cuisine et de deux salles de bains.Le terrain de cette maison s’étend sur 500 m².La maison est neuve.La maison se situe dans un secteur attractif. On y trouve des écoles maternelles et élémentaires ainsi que dont l’École Primaire la Garenne. Niveau transports en commun, il y a deux gares (Carpentras et Monteux) à moins de 10 minutes en voiture. L’autoroute A7 et la nationale N7 sont accessibles à moins de 16 km. On trouve un tennis, une bibliothèque, des commerces, trois boulangeries, un supermarché, deux boucheries-charcuteries et deux épiceries dans les environs.Elle est à vendre pour la somme de 289 000 €.Contactez Julien FANTOZZI (tél : (Numéro supprimé)) pour toute question sur la propriété ou sur les modalités de vente.
L’actualité immobilière à Monteux
27/11/2023
02/11/2023
30/10/2023
20/10/2023
16/10/2023
16/10/2023