Images
Description
Sur ce terrain, nous vous proposons cette magnifique maison contemporaine de 90,57 m², offrant un cadre de vie idyllique où modernité, confort et nature se rencontrent harmonieusement. Avec ses volumes optimisés, elle est idéale pour une famille à la recherche de bien-être et de sérénité.
Un intérieur spacieux et lumineux
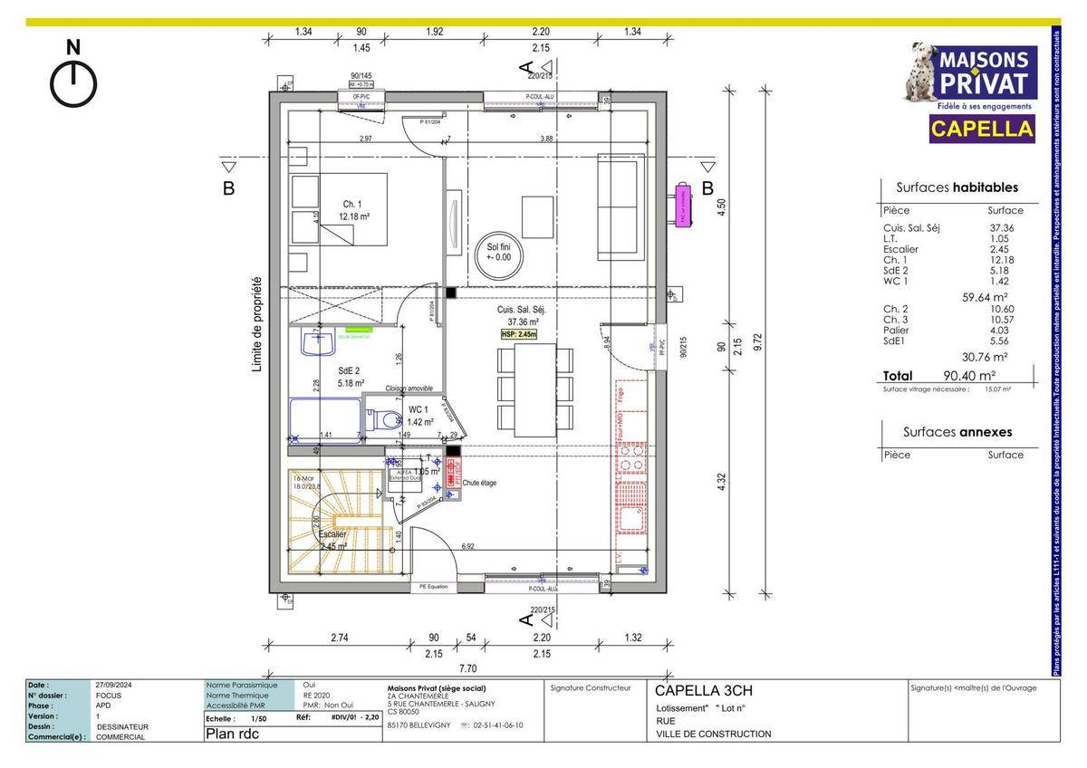
Dès l’entrée, laissez-vous séduire par un grand espace de vie ouvert de 37 m², baigné de lumière grâce à ses larges baies vitrées offrant une vue imprenable sur le jardin et la piscine. La cuisine moderne et fonctionnelle s’intègre parfaitement à l’espace de réception, créant une atmosphère chaleureuse et conviviale.
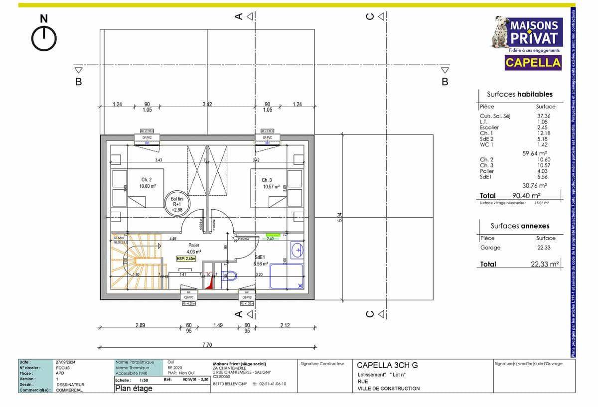
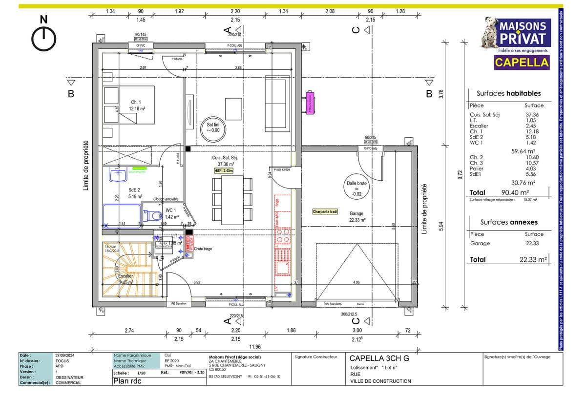
Au rez-de-chaussée, vous trouverez une suite parentale de 12,18 m², parfaite pour plus d’intimité, une grande pièce de vie de 37 m² avec cuisine ouverte, salon et salle à manger, ainsi qu’une salle d’eau et des WC séparés. Le garage de 22,55 m², accessible directement depuis la maison, offre un espace de rangement idéal.
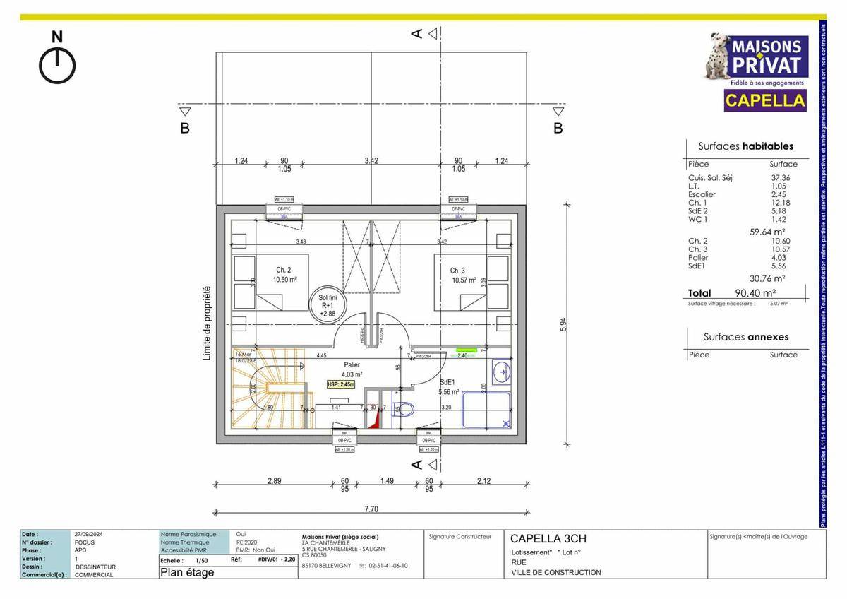
À l’étage, deux chambres confortables de 10,70 m² et 10,74 m² offrent un espace de vie agréable pour les enfants ou les invités. Une salle d’eau spacieuse de 5,56 m² et un palier pouvant être aménagé en bureau ou en espace détente complètent cet étage.
* Prix indiqué hors branchements, hors sanitaires, hors revêtement des sols et des murs. Assurance dommages ouvrages incluse.
Logement susceptibles de vous intéresser
Nous vous proposons de découvrir aussi cette sélection de logements situés à moins de 10km de Les Sables-d'Olonne et qui seraient susceptibles de vous intéresser.
Sainte-Foy
TERRAINNous sommes ravis de vous présenter ce terrain à vendre, d’une superficie généreuse de 533 m², situé à Sainte-Foy dans la magnifique Vendée. Ce terrain, en second rideau, offre une belle platitude et permet une construction facile, idéal pour la réalisation de votre futur projet de maison. Profitez d’un emplacement privilégié, sans vis-à-vis, qui vous garantit tranquillité et intimité, tout en étant proche de toutes les commodités. Sainte-Foy, appartenant à la région dynamique des Pays de la Loire, est une ville qui séduit par son ambiance authentique et son cadre de vie agréable. Avec ses attractions locales, ses commerces de proximité et ses services variés, cette ville est idéale pour les familles à la recherche de confort et de convivialité. Vous serez à quelques minutes des plages de la côte vendéenne, des marchés locaux et d’une multitude d’activités de loisirs qui sauront ravir petits et grands. Ne laissez pas passer cette opportunité unique d’acquérir un terrain au potentiel exceptionnel. Contactez-nous dès maintenant pour plus d’informations et envisagez de donner vie à votre projet de construction ! À noter qu’en tant que constructeur, nous ne sommes pas mandatés pour réaliser la vente de ce terrain.
Les Sables-d'Olonne
TERRAINÀ la recherche d’un emplacement idéal pour réaliser votre rêve de construction ? Ne cherchez pas plus loin ! Ce terrain de 349 m² viabilisé, situé dans le lotissement prisé du Quartier de la Pironnière, vous offre une opportunité unique de bâtir la maison de vos rêves. Viabilisé et prêt à recevoir votre projet de construction, ce terrain bénéficie d’une situation privilégiée à proximité de la mer, dans un quartier très recherché des Sables d’Olonne. C’est le moment parfait pour investir dans un cadre de vie idyllique qui allie confort et bien-être. Idéalement situé en Vendée, au cœur du Pays de la Loire, Château-d’Olonne enjolive son patrimoine par de nombreuses attractions locales. À seulement 500 mètres de la côte, ce secteur est renommé pour sa qualité de vie, ses plages et ses paysages à couper le souffle. Le quartier La Pironnière est apprécié pour sa tranquillité et son atmosphère conviviale, tout en étant proche des commodités indispensables et des activités de plein air qui font la renommée de la région. Restaurants, boutiques et lieux de loisirs complètent l’attrait de ce cadre exceptionnel. N’attendez plus pour réaliser votre projet et découvrir le potentiel de ce terrain. Saisissez cette occasion rare et imaginez la maison qui vous correspondra parfaitement, dans un environnement de rêve. À noter qu’en tant que constructeur, nous ne sommes pas mandatés pour réaliser la vente de ce terrain.
Les Sables-d'Olonne
TERRAIN ET MAISONSur ce terrain, nous vous proposons cette magnifique maison contemporaine de 90,57 m², offrant un cadre de vie idyllique où modernité, confort et nature se rencontrent harmonieusement. Avec ses volumes optimisés, elle est idéale pour une famille à la recherche de bien-être et de sérénité.Un intérieur spacieux et lumineuxDès l’entrée, laissez-vous séduire par un grand espace de vie ouvert de 37 m², baigné de lumière grâce à ses larges baies vitrées offrant une vue imprenable sur le jardin et la piscine. La cuisine moderne et fonctionnelle s’intègre parfaitement à l’espace de réception, créant une atmosphère chaleureuse et conviviale.Au rez-de-chaussée, vous trouverez une suite parentale de 12,18 m², parfaite pour plus d’intimité, une grande pièce de vie de 37 m² avec cuisine ouverte, salon et salle à manger, ainsi qu’une salle d’eau et des WC séparés. Le garage de 22,55 m², accessible directement depuis la maison, offre un espace de rangement idéal.À l’étage, deux chambres confortables de 10,70 m² et 10,74 m² offrent un espace de vie agréable pour les enfants ou les invités. Une salle d’eau spacieuse de 5,56 m² et un palier pouvant être aménagé en bureau ou en espace détente complètent cet étage.* Prix indiqué hors branchements, hors sanitaires, hors revêtement des sols et des murs. Assurance dommages ouvrages incluse.
Les Sables-d'Olonne
TERRAINTerrain viabilisé de 330 m² aux Sables-d’Olonne, idéalement situé dans un secteur recherché, environnement calme et agréable. // Réf. : T213663. Prix terrain : 140 500 €, hors frais d'agence et de notaire à la charge de l'acquéreur. Ce terrain vous est proposé, par nos partenaires fonciers, dans le cadre d'un projet de construction avec nous. Les informations sur les risques auxquels ce bien est exposé sont disponibles sur le site Géorisques (www.georisques.gouv.fr).
Les Sables-d'Olonne
TERRAINTerrain viabilisé de 330 m² aux Sables-d’Olonne, idéalement situé dans un secteur recherché, environnement calme et agréable. // Réf. : T213663. Prix terrain : 140 500 €, hors frais d'agence et de notaire à la charge de l'acquéreur. Ce terrain vous est proposé, par nos partenaires fonciers, dans le cadre d'un projet de construction avec nous. Les informations sur les risques auxquels ce bien est exposé sont disponibles sur le site Géorisques (www.georisques.gouv.fr).
Sainte-Foy
TERRAIN ET MAISONSur ce terrain, nous vous proposons ce modèle de maison qui incarne l’harmonie parfaite entre fonctionnalité et adaptabilité, elle est conçue pour répondre à vos besoins présents tout en anticipant vos projets futurs.Le cœur de cette maison est une pièce de vie spacieuse et lumineuse de 30 m², judicieusement aménagée pour maximiser le confort et l’utilité. Cet espace multifonctionnel combine un salon / séjour accueillant, et une cuisine ouverte moderne. Les grandes fenêtres baignent la pièce de lumière naturelle, créant une atmosphère chaleureuse et accueillante, idéale pour se détendre ou recevoir des invités.À côté de la pièce de vie se trouvent une chambre et une salle d’eau.Adossé à la maison, un garage de 34 m.² offre un espace pratique pour garer un véhicule ou stocker des équipements. La conception de cette maison intègre dès le départ la possibilité d’évolution. Lorsque le moment sera venu d’agrandir, l’atelier actuel pourra être aménagé en une chambre avec salle d’eau ou dressing. Cette transformation est facilitée par une infrastructure prévue pour accueillir les installations sanitaires nécessaires. Cette flexibilité permet d’adapter la maison à l’évolution de votre famille ou de vos besoins sans compromis sur le confort ou la qualité de vie.En résumé, cette maison évolutive est une solution idéale pour ceux qui cherchent à investir dans un habitat adaptable et durable. * Prix indiqué hors branchements, hors sanitaires, hors revêtement des sols et des murs. Assurance dommages ouvrages incluse.
Les Sables-d'Olonne
TERRAIN ET MAISONTerrain viabilisé de 330 m² aux Sables-d’Olonne, idéalement situé dans un secteur recherché, environnement calme et agréable. Idéale pour une première acquisition, cette charmante maison de plain-pied vous accueille dans un très bel espace de vie baigné de lumière grâce à sa baie vitrée. Elle vous offre également deux chambres, une salle de bains et des wc séparés. Le garage est intégré à la maison et communique avec le cellier. Pour vous assurer un confort de vie et conformément à la RE2025, nous avons choisi un mode de chauffage par PAC + plancher chauffant, volets roulants électriques. Prix hors fourniture et pose : des appareils sanitaires (sauf système de chauffage et d'eau chaude sanitaire), du carrelage et de la faïence, des revêtements de sol dans les chambres. Hors décoration et aménagement intérieur et peinture. Hors raccordements, frais de notaire et dommage ouvrage. // Réf. : 2563-213663-SBI. Prix terrain : 140 500 €, hors frais d'agence à la charge de l'acquéreur. Ce terrain vous est proposé, par nos partenaires fonciers, dans le cadre d'un projet de construction avec nous. Les informations sur les risques auxquels ce bien est exposé sont disponibles sur le site Géorisques (www.georisques.gouv.fr). Prix maison : 110 893 €.
Les Sables-d'Olonne
TERRAIN ET MAISONTerrain viabilisé de 330 m² aux Sables-d’Olonne, idéalement situé dans un secteur recherché, environnement calme et agréable. Laissez-vous Séduire par cette Maison de Rêve ! Optez pour le confort et la fonctionnalité avec cette magnifique maison de plain-pied en L, spécialement conçue pour répondre à toutes vos attentes. Un espace de vie baigné de lumière : Vaste séjour traversant pour une luminosité optimale avec cuisine ouverte pour des moments conviviaux, accès direct au cellier pour un rangement pratique. Un espace nuit bien pensé : 1 suite parentale avec dressing et salle de bains, 2 chambres avec placards, une seconde salle de bains et des wc séparés. Pour vous assurer un confort de vie et conformément à la RE2025, nous avons choisi un mode de chauffage par PAC + plancher chauffant, volets roulants électriques. Prix hors fourniture et pose : des appareils sanitaires (sauf système de chauffage et d'eau chaude sanitaire), du carrelage et de la faïence, des revêtements de sol dans les chambres. Hors décoration et aménagement intérieur et peinture. Hors raccordements, frais de notaire et dommage ouvrage. // Réf. : 2545-213663-SBI. Prix terrain : 140 500 €, hors frais d'agence à la charge de l'acquéreur. Ce terrain vous est proposé, par nos partenaires fonciers, dans le cadre d'un projet de construction avec nous. Les informations sur les risques auxquels ce bien est exposé sont disponibles sur le site Géorisques (www.georisques.gouv.fr). Prix maison : 139 925 €.
Les Sables-d'Olonne
TERRAINMagnifique terrain à bâtir de 840 m² situé à Olonne-sur-Mer (85).Ce beau terrain plat est idéal pour construire une jolie maison vendéenne. Les grands terrains sont rares sur le secteur, profitez de cette opportunité unique !Il bénéficie également d'une localisation proche des transports, facilitant vos déplacements.Prix : 200000 €.Contactez-nous au (Numéro supprimé) (ALLIANCE PROMOTION)Prix hors frais de notaire. Terrain sélectionné par ALLIANCE PROMOTION. Visuels non contractuels. Voir détails en agence.Cette annonce a été créée et diffusée avec le logiciel VITAHOME.
L’actualité immobilière à Les Sables-d'Olonne
27/11/2023
02/11/2023
30/10/2023
20/10/2023
16/10/2023
16/10/2023