Images
Description
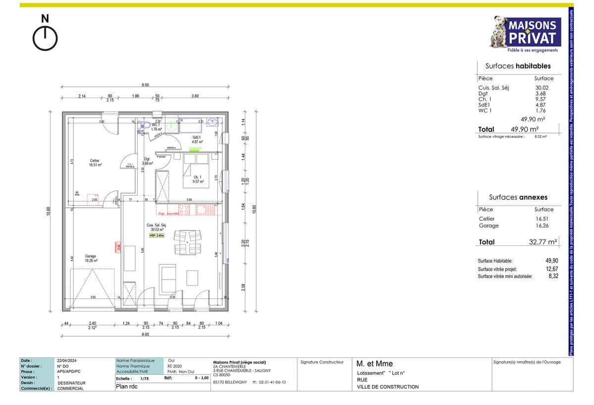
Sur ce terrain, nous vous proposons ce modèle de maison qui incarne l'harmonie parfaite entre fonctionnalité et adaptabilité, elle est conçue pour répondre à vos besoins présents tout en anticipant vos projets futurs.
Le cœur de cette maison est une pièce de vie spacieuse et lumineuse de 30 m², judicieusement aménagée pour maximiser le confort et l'utilité. Cet espace multifonctionnel combine un salon / séjour accueillant, et une cuisine ouverte moderne. Les grandes fenêtres baignent la pièce de lumière naturelle, créant une atmosphère chaleureuse et accueillante, idéale pour se détendre ou recevoir des invités.
À côté de la pièce de vie se trouvent une chambre et une salle d’eau.
Adossé à la maison, un garage de 34 m.² offre un espace pratique pour garer un véhicule ou stocker des équipements.
La conception de cette maison intègre dès le départ la possibilité d'évolution. Lorsque le moment sera venu d'agrandir, l'atelier actuel pourra être aménagé en une chambre avec salle d'eau ou dressing. Cette transformation est facilitée par une infrastructure prévue pour accueillir les installations sanitaires nécessaires. Cette flexibilité permet d'adapter la maison à l'évolution de votre famille ou de vos besoins sans compromis sur le confort ou la qualité de vie.
En résumé, cette maison évolutive est une solution idéale pour ceux qui cherchent à investir dans un habitat adaptable et durable.
* Prix indiqué hors branchements, hors sanitaires, hors revêtement des sols et des murs. Assurance dommages ouvrages incluse.
Logement susceptibles de vous intéresser
Nous vous proposons de découvrir aussi cette sélection de logements situés à moins de 10km de Sainte-Foy et qui seraient susceptibles de vous intéresser.
Les Achards
TERRAIN ET MAISONSur ce terrain, nous vous proposons cette superbe maison de plain-pied, alliant confort, modernité et praticité, idéale pour une famille en quête de bien-être.Avec son agencement optimisé, cette maison vous offre une spacieuse pièce de vie baignée de lumière naturelle, comprenant un séjour convivial et une cuisine ouverte fonctionnelle, parfaite pour des moments en famille ou entre amis.L’espace nuit se compose de trois belles chambres offrant confort et sérénité, d’une salle d’eau moderne et de WC séparés pour plus de praticité.Un garage intégré vient compléter ce bien, idéal pour stationner un véhicule ou disposer d’un espace de rangement supplémentaire.
Talmont-Saint-Hilaire
TERRAINTerrain viabilisé de 408 m² à Talmont-Saint-Hilaire (85), situé dans un environnement calme et recherché. À proximité des commerces, écoles, port de Bourgenay et des plages. // Réf. : T213665. Prix terrain : 143 200 €, hors frais d'agence et de notaire à la charge de l'acquéreur. Ce terrain vous est proposé, par nos partenaires fonciers, dans le cadre d'un projet de construction avec nous. Les informations sur les risques auxquels ce bien est exposé sont disponibles sur le site Géorisques (www.georisques.gouv.fr).
Talmont-Saint-Hilaire
TERRAINTerrain viabilisé de 408 m² à Talmont-Saint-Hilaire (85), situé dans un environnement calme et recherché. À proximité des commerces, écoles, port de Bourgenay et des plages. // Réf. : T213665. Prix terrain : 143 200 €, hors frais d'agence et de notaire à la charge de l'acquéreur. Ce terrain vous est proposé, par nos partenaires fonciers, dans le cadre d'un projet de construction avec nous. Les informations sur les risques auxquels ce bien est exposé sont disponibles sur le site Géorisques (www.georisques.gouv.fr).
Sainte-Foy
TERRAINNous sommes ravis de vous présenter ce terrain à vendre, d’une superficie généreuse de 533 m², situé à Sainte-Foy dans la magnifique Vendée. Ce terrain, en second rideau, offre une belle platitude et permet une construction facile, idéal pour la réalisation de votre futur projet de maison. Profitez d’un emplacement privilégié, sans vis-à-vis, qui vous garantit tranquillité et intimité, tout en étant proche de toutes les commodités. Sainte-Foy, appartenant à la région dynamique des Pays de la Loire, est une ville qui séduit par son ambiance authentique et son cadre de vie agréable. Avec ses attractions locales, ses commerces de proximité et ses services variés, cette ville est idéale pour les familles à la recherche de confort et de convivialité. Vous serez à quelques minutes des plages de la côte vendéenne, des marchés locaux et d’une multitude d’activités de loisirs qui sauront ravir petits et grands. Ne laissez pas passer cette opportunité unique d’acquérir un terrain au potentiel exceptionnel. Contactez-nous dès maintenant pour plus d’informations et envisagez de donner vie à votre projet de construction ! À noter qu’en tant que constructeur, nous ne sommes pas mandatés pour réaliser la vente de ce terrain.
Les Sables-d'Olonne
TERRAINÀ la recherche d’un emplacement idéal pour réaliser votre rêve de construction ? Ne cherchez pas plus loin ! Ce terrain de 349 m² viabilisé, situé dans le lotissement prisé du Quartier de la Pironnière, vous offre une opportunité unique de bâtir la maison de vos rêves. Viabilisé et prêt à recevoir votre projet de construction, ce terrain bénéficie d’une situation privilégiée à proximité de la mer, dans un quartier très recherché des Sables d’Olonne. C’est le moment parfait pour investir dans un cadre de vie idyllique qui allie confort et bien-être. Idéalement situé en Vendée, au cœur du Pays de la Loire, Château-d’Olonne enjolive son patrimoine par de nombreuses attractions locales. À seulement 500 mètres de la côte, ce secteur est renommé pour sa qualité de vie, ses plages et ses paysages à couper le souffle. Le quartier La Pironnière est apprécié pour sa tranquillité et son atmosphère conviviale, tout en étant proche des commodités indispensables et des activités de plein air qui font la renommée de la région. Restaurants, boutiques et lieux de loisirs complètent l’attrait de ce cadre exceptionnel. N’attendez plus pour réaliser votre projet et découvrir le potentiel de ce terrain. Saisissez cette occasion rare et imaginez la maison qui vous correspondra parfaitement, dans un environnement de rêve. À noter qu’en tant que constructeur, nous ne sommes pas mandatés pour réaliser la vente de ce terrain.
Talmont-Saint-Hilaire
TERRAINNous vous présentons un terrain d’une surface de 324 m², idéalement situé dans un lotissement prisé de Talmont-Saint-Hilaire. Ce terrain viabilisé propose une opportunité rare pour votre projet de construction de maison, bénéficiant d’une situation ensoleillée et d’un cadre de vie agréable. Le dernier lot disponible dans ce lotissement offre un emplacement exceptionnel, parfait pour réaliser la maison de vos rêves. Talmont-Saint-Hilaire, située en Vendée dans la région Pays de la Loire, est une commune riche en attraits. À proximité immédiate, vous trouverez de nombreux commerces et services, facilitant le quotidien des futurs propriétaires. La qualité de vie est inégalée, entre la plage, les sentiers côtiers et les paysages naturels. Ce cadre enchanteur et convivial est propice à la création d’un foyer chaleureux et accueillant. Ne laissez pas passer cette occasion unique d’acquérir un terrain au cœur d’une commune dynamique et attractive. Nous vous encourageons à envisager ce terrain prometteur, qui combine à la fois une localisation privilégiée et un véritable potentiel pour votre futur chez-vous. N’attendez plus pour saisir cette opportunité d’achat unique! À noter qu’en tant que constructeur, nous ne sommes pas mandatés pour réaliser la vente de ce terrain.
Les Sables-d'Olonne
TERRAIN ET MAISONSur ce terrain, nous vous proposons cette magnifique maison contemporaine de 90,57 m², offrant un cadre de vie idyllique où modernité, confort et nature se rencontrent harmonieusement. Avec ses volumes optimisés, elle est idéale pour une famille à la recherche de bien-être et de sérénité.Un intérieur spacieux et lumineuxDès l’entrée, laissez-vous séduire par un grand espace de vie ouvert de 37 m², baigné de lumière grâce à ses larges baies vitrées offrant une vue imprenable sur le jardin et la piscine. La cuisine moderne et fonctionnelle s’intègre parfaitement à l’espace de réception, créant une atmosphère chaleureuse et conviviale.Au rez-de-chaussée, vous trouverez une suite parentale de 12,18 m², parfaite pour plus d’intimité, une grande pièce de vie de 37 m² avec cuisine ouverte, salon et salle à manger, ainsi qu’une salle d’eau et des WC séparés. Le garage de 22,55 m², accessible directement depuis la maison, offre un espace de rangement idéal.À l’étage, deux chambres confortables de 10,70 m² et 10,74 m² offrent un espace de vie agréable pour les enfants ou les invités. Une salle d’eau spacieuse de 5,56 m² et un palier pouvant être aménagé en bureau ou en espace détente complètent cet étage.* Prix indiqué hors branchements, hors sanitaires, hors revêtement des sols et des murs. Assurance dommages ouvrages incluse.
Grosbreuil
TERRAINDécouvrez ce terrain à vendre d’une surface de 350m², situé dans la charmante commune de Grosbreuil, au coeur de la Vendée. Ce bien rare, non viabilisé, est idéal pour un projet de construction de maison, avec le potentiel de créer la demeure de vos rêves. Le terrain bénéficie d’une exposition est/ouest, ce qui vous permettra de profiter de belles lumières toute la journée. Ne manquez pas cette opportunité d’acquérir le dernier lot disponible dans cette zone prisée. Grosbreuil, dans le département de la Vendée, est une commune dynamique offrant un cadre de vie agréable et paisible tout en étant proche des commodités. L’emplacement est idéal, avec des commerces à proximité facilitant votre quotidien. La région, tournée vers la nature, est également proche de magnifiques plages, faisant de cet endroit un véritable havre de paix, parfait pour les amoureux de la mer et des grands espaces. De plus, sa position géographique dans les Pays de la Loire vous offre un accès facile aux attractions locales, ce qui renforce l’attrait de ce terrain pour les futurs propriétaires. Ce terrain offre un potentiel immense et représente une opportunité unique d’investir dans un cadre de vie qualitatif. N’hésitez pas à envisager ce projet qui pourrait réaliser vos envies d’habitat sur mesure. À noter qu’en tant que constructeur, nous ne sommes pas mandatés pour réaliser la vente de ce terrain.
Les Sables-d'Olonne
TERRAINTerrain viabilisé de 330 m² aux Sables-d’Olonne, idéalement situé dans un secteur recherché, environnement calme et agréable. // Réf. : T213663. Prix terrain : 140 500 €, hors frais d'agence et de notaire à la charge de l'acquéreur. Ce terrain vous est proposé, par nos partenaires fonciers, dans le cadre d'un projet de construction avec nous. Les informations sur les risques auxquels ce bien est exposé sont disponibles sur le site Géorisques (www.georisques.gouv.fr).
L’actualité immobilière à Sainte-Foy
27/11/2023
02/11/2023
30/10/2023
20/10/2023
16/10/2023
16/10/2023