Images
Description
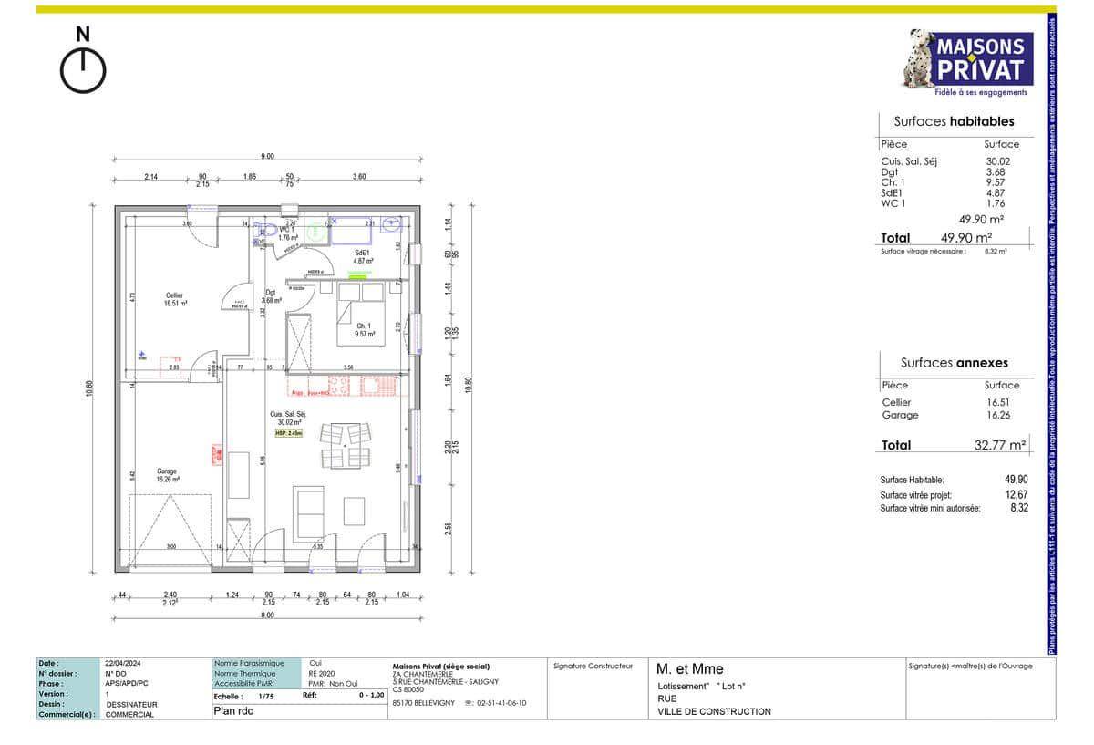
Sur ce terrain, nous vous proposons ce modèle de maison qui incarne l'harmonie parfaite entre fonctionnalité et adaptabilité, elle est conçue pour répondre à vos besoins présents tout en anticipant vos projets futurs.
Le cœur de cette maison est une pièce de vie spacieuse et lumineuse de 30 m², judicieusement aménagée pour maximiser le confort et l'utilité. Cet espace multifonctionnel combine un salon / séjour accueillant, et une cuisine ouverte moderne. Les grandes fenêtres baignent la pièce de lumière naturelle, créant une atmosphère chaleureuse et accueillante, idéale pour se détendre ou recevoir des invités.
À côté de la pièce de vie se trouvent une chambre et une salle d’eau.
Adossé à la maison, un garage de 34 m.² offre un espace pratique pour garer un véhicule ou stocker des équipements.
La conception de cette maison intègre dès le départ la possibilité d'évolution. Lorsque le moment sera venu d'agrandir, l'atelier actuel pourra être aménagé en une chambre avec salle d'eau ou dressing. Cette transformation est facilitée par une infrastructure prévue pour accueillir les installations sanitaires nécessaires. Cette flexibilité permet d'adapter la maison à l'évolution de votre famille ou de vos besoins sans compromis sur le confort ou la qualité de vie.
En résumé, cette maison évolutive est une solution idéale pour ceux qui cherchent à investir dans un habitat adaptable et durable.
* Prix indiqué hors branchements, hors sanitaires, hors revêtement des sols et des murs. Assurance dommages ouvrages incluse.
Logement susceptibles de vous intéresser
Nous vous proposons de découvrir aussi cette sélection de logements situés à moins de 10km de Sainte-Foy et qui seraient susceptibles de vous intéresser.

Vairé
TERRAINNous avons le plaisir de vous présenter un terrain d’exception à vendre, situé à Vairé dans le département de la Vendée, région des Pays de la Loire. Avec une surface généreuse de 540 m², ce terrain viabilisé est parfait pour la réalisation de votre projet de construction de maison. Profitez d’une rare opportunité d’acquérir le dernier terrain disponible dans ce secteur prisé, idéal pour construire la maison de vos rêves dans un cadre paisible et ensoleillé. Le terrain bénéficie d’une localisation privilégiée au cœur de Vairé, à proximité immédiate des commerces et des services indispensables au quotidien. La ville offre un accès rapide aux axes routiers importants et se trouve à quelques pas des magnifiques plages de la côte vendéenne. En plus de sa sécurité, la commune dispose d’écoles à proximité, ce qui en fait un lieu de vie idéal pour les familles. Ne manquez pas cette opportunité unique d’investir dans un environnement attractif et dynamique. Ce terrain représente une occasion en or pour réaliser votre projet immobilier. N’attendez plus pour envisager cette belle opportunité d’achat ! À noter qu’en tant que constructeur, nous ne sommes pas mandatés pour réaliser la vente de ce terrain.

Vairé
TERRAIN ET MAISONSur ce terrain, nous vous proposons cette maison neuve : la Lucéenne, un modèle de plain-pied en forme de L, conçu pour offrir un confort optimal dans un espace de 90 m². Idéale pour les couples et les jeunes familles, cette maison basse consommation est conforme à la RE2020, garantissant des économies d’énergie et un respect de l’environnement.La Lucéenne se distingue par ses trois chambres spacieuses et ses quatre pièces bien agencées. Le grand et lumineux séjour-salon-cuisine, partiellement cloisonné, est parfait pour des moments conviviaux en famille. Les baies coulissantes en aluminium apportent une luminosité naturelle exceptionnelle, créant une atmosphère chaleureuse et accueillante.Les options les plus demandées par nos clients sont également disponibles pour personnaliser votre maison selon vos besoins : aménagement du garage, menuiseries en aluminium et domotique pour un confort moderne et pratique.Construite par Maisons Privat, un constructeur centenaire reconnu pour ses excellents avis clients dans la région, la Lucéenne est une demeure parfaite pour les primo-accédants ou les retraités. Avec des espaces à vivre optimisés et un garage accolé de taille généreuse, cette maison vous offre tout le nécessaire et même le superflu dans un espace raisonné.Ne manquez pas cette opportunité unique de devenir propriétaire d’une maison neuve, basse consommation et conforme aux dernières normes environnementales. Contactez-nous dès aujourd’hui pour plus d’informations et pour visiter notre modèle Lucéenne.

Vairé
TERRAINOffrez-vous un coin de paradis avec ce superbe terrain à vendre situé à Vairé, en Vendée, d’une superficie de 540 m², entièrement viabilisé et prêt à accueillir votre projet de construction. Ce terrain se distingue par sa situation ensoleillée et son emplacement idéal pour bâtir la maison de vos rêves. Profitez d’un cadre de vie agréable et paisible, tout en étant à proximité de toutes les commodités nécessaires au quotidien. Vairé est une charmante commune du département de la Vendée, qui bénéficie d’un cadre de vie exceptionnel grâce à sa proximité avec la mer et ses multiples attractions locales. Vous trouverez dans les environs immédiats un accès rapide aux commerces, aux transports en commun et aux écoles, notamment un collège et un lycée. Ce lieu de vie privilégié offre également de nombreuses possibilités de loisirs, ce qui en fait une opportunité rare pour ceux qui recherchent un bel emplacement pour leur future maison. N’attendez plus pour découvrir le potentiel de ce terrain et envisager de réaliser votre projet immobilier dans un environnement de qualité. C’est une occasion unique à ne pas manquer ! À noter qu’en tant que constructeur, nous ne sommes pas mandatés pour réaliser la vente de ce terrain.

Vairé
TERRAIN ET MAISONSur ce terrain, nous vous proposons cette maison neuve : la Dompierroise, une maison au concept original et agréable. La Dompierroise est une intéressante maison traditionnelle de plain-pied dont l’originalité tient au fait qu’elle se compose de deux corps de bâtiment en décalé. Ce qui permet une délimitation des espaces intéressante et une organisation optimisée. Avec une surface de 90 m², cette maison dispose de 4 chambres et de 4 pièces, offrant ainsi un espace de vie confortable et fonctionnel pour toutes les configurations familiales.Déclinée en versions allant du T3 au T5, la Dompierroise s’adapte totalement à la composition de votre famille. Du plus petit au plus grand modèle, vous trouverez la même organisation pratique de l’intérieur, avec un salon-séjour-cuisine spacieux. Un grand garage intégré est inclus, quelle que soit la version, et un porche accueillant complète l’ensemble.Ceux qui ont aimé ce modèle ont également retenu ces options :- Enduit bi-ton pour une façade élégante et personnalisée.- Plancher chauffant pour un confort thermique optimal.- Sous-sol pour un espace de rangement supplémentaire ou un atelier.Cette maison neuve est basse consommation et conforme à la RE2020, garantissant ainsi des performances énergétiques exceptionnelles et un respect des normes environnementales les plus récentes.Le constructeur de cette maison est Maisons Privat, un constructeur centenaire avec les meilleurs avis clients de la région. Faites confiance à leur expertise et à leur savoir-faire pour réaliser votre projet de vie.

Vairé
TERRAINDécouvrez ce terrain exceptionnel situé à Vairé, en Vendée, d’une superficie de 540 m². Viabilisé et prêt à accueillir votre projet de construction, ce terrain offre une opportunité unique de devenir propriétaire dans un cadre verdoyant et ensoleillé. Idéal pour bâtir la maison de vos rêves, il constitue un investissement de choix pour les familles en quête de qualité de vie. Avec la proximité des commerces et des écoles, vous apprécierez la praticité de vivre dans ce quartier qui combine calme et commodités. Vairé, niché au cœur du département de la Vendée, bénéficie d’une localisation privilégiée à proximité des axes routiers majeurs, facilitant ainsi vos déplacements. La ville se distingue par son ambiance conviviale et sa sécurité, avec des infrastructures modernes et des espaces verts propices aux loisirs. De plus, la mer n’est qu’à quelques encablures, vous offrant une multitude d’activités balnéaires à portée de main. Ce territoire est le lieu idéal pour construire votre havre de paix, tout en profitant des attraits de la région Pays de la Loire. Ne manquez pas cette occasion unique d’acquérir le dernier terrain disponible dans ce secteur prisé. Prenez contact dès maintenant pour envisagez votre futur projet en toute sérénité. À noter qu’en tant que constructeur, nous ne sommes pas mandatés pour réaliser la vente de ce terrain.

Vairé
TERRAIN ET MAISONSur ce terrain, nous vous proposons cette maison neuve : la Poiréenne, une maison qui vous offre sa singularité et son confort.Charmant pavillon de plain-pied, l’atout de choc de la Poiréenne tient dans l’originalité de ses formes asymétriques. Cette configuration permet d’isoler l’espace nuit dans une aile indépendante. Il sera possible d’ouvrir la pièce de vie sur 3 façades pour garantir un maximum de lumière et de chaleur à ses heureux propriétaires.Avec sa forme en T, vous profiterez au maximum de l’espace disponible de la profondeur de votre terrain. Les chambres sont réunies autour d’un dégagement qui comprend également la salle d’eau avec une douche italienne et des WC séparés. Côté jour, la Poiréenne vous propose un salon-séjour avec cuisine semi-ouverte, communiquant avec le garage.La surface habitable de 80 m² est totalement adaptable à vos envies. L’ajout d’une charpente traditionnelle au garage de taille généreuse est une option fréquemment retenue par les acquéreurs de cette maison. Ceci vous permettra l’aménagement d’un faux grenier avec un plancher bois.Les caractéristiques principales de cette maison incluent des baies coulissantes, des volets roulants, et la possibilité d’opter pour une baie à galandage. Cette maison neuve est basse consommation et conforme à la RE2020, garantissant ainsi des performances énergétiques optimales.Maisons Privat, constructeur centenaire avec les meilleurs avis clients de la région, vous propose cette maison qui allie confort, modernité et économies d’énergie. Ne manquez pas cette opportunité unique de devenir propriétaire d’une maison qui répond à toutes vos attentes.

Sainte-Foy
TERRAINNous vous proposons ce magnifique terrain à vendre d’une superficie de 399 m², idéalement situé à Sainte-Foy, dans le département de la Vendée. Ce terrain viabilisé, prêt à accueillir un projet de construction de maison, constitue une opportunité en or pour bâtir votre future habitation dans un cadre de vie exceptionnel. Sainte-Foy se distingue par son ambiance paisible et conviviale, offrant un équilibre parfait entre vie rurale et dynamisme local. Ne manquez pas cette occasion unique de concrétiser votre projet immobilier dans un environnement privilégié. Ce terrain à Sainte-Foy représente un potentiel à exploiter et une chance d’investir dans un cadre serein et attractif. À noter qu’en tant que constructeur, nous ne sommes pas mandatés pour réaliser la vente de ce terrain.

Sainte-Foy
TERRAIN ET MAISONSur cet terrain, nous vous proposons cette maison évolutive, conçue pour aujourd’hui et pensée pour demainCe modèle de maison incarne l’harmonie parfaite entre fonctionnalité et adaptabilité, offrant un cadre de vie agréable qui évolue avec vos besoins.Au cœur de cette maison, une spacieuse pièce de vie baignée de lumière naturelle grâce à ses larges ouvertures. Ce séjour chaleureux, avec sa cuisine ouverte moderne, constitue un espace idéal pour partager des moments en famille ou entre amis.À proximité, une chambre et une salle d’eau offrent un espace nuit fonctionnel et pratique.Adossé à la maison, un garage de presque 58m² représente bien plus qu’un simple espace de stationnement. Conçu pour évoluer, il peut être transformé en un véritable espace de vie supplémentaire. En fonction de vos besoins, cet espace pourra accueillir jusqu’à trois chambres et une seconde salle d’eau, apportant ainsi une solution idéale pour agrandir votre maison sans contrainte majeure.Grâce à une conception intelligente et anticipée, cette maison s’adapte à votre mode de vie, que ce soit pour accueillir une famille grandissante, créer un espace de travail ou offrir un confort supplémentaire à vos proches.En choisissant cette maison évolutive, vous investissez dans un habitat durable, adaptable et conçu pour le bien-être de toute votre famille.

Sainte-Foy
TERRAINBienvenue sur ce terrain exceptionnel de 384 m², situé au cœur du lotissement de Sainte-Foy dans le département de la Vendée (85150). Ce terrain viabilisé offre une opportunité rare pour concrétiser votre projet de construction de maison sur mesure dans un cadre paisible et agréable. Grâce à ses équipements et à son environnement calme, ce terrain présente toutes les caractéristiques uniques propices à l’épanouissement familial. N’attendez plus pour découvrir le potentiel extraordinaire de ce terrain et envisager la maison de vos rêves. Une occasion unique à saisir pour construire un foyer qui vous ressemble?! À noter qu’en tant que constructeur, nous ne sommes pas mandatés pour réaliser la vente de ce terrain.
L’actualité immobilière à Sainte-Foy





