Images
Description
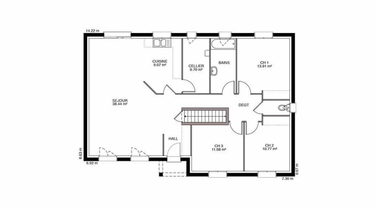
Sur ce terrain, nous vous proposons cette maison neuve : la Dompierroise, une maison au concept original et agréable.
La Dompierroise est une intéressante maison traditionnelle de plain-pied dont l’originalité tient au fait qu’elle se compose de deux corps de bâtiment en décalé. Ce qui permet une délimitation des espaces intéressante et une organisation optimisée. Avec une surface de 90 m², cette maison dispose de 4 chambres et de 4 pièces, offrant ainsi un espace de vie confortable et fonctionnel pour toutes les configurations familiales.
Déclinée en versions allant du T3 au T5, la Dompierroise s’adapte totalement à la composition de votre famille. Du plus petit au plus grand modèle, vous trouverez la même organisation pratique de l’intérieur, avec un salon-séjour-cuisine spacieux. Un grand garage intégré est inclus, quelle que soit la version, et un porche accueillant complète l’ensemble.
Ceux qui ont aimé ce modèle ont également retenu ces options :
- Enduit bi-ton pour une façade élégante et personnalisée.
- Plancher chauffant pour un confort thermique optimal.
- Sous-sol pour un espace de rangement supplémentaire ou un atelier.
Cette maison neuve est basse consommation et conforme à la RE2020, garantissant ainsi des performances énergétiques exceptionnelles et un respect des normes environnementales les plus récentes.
Le constructeur de cette maison est Maisons Privat, un constructeur centenaire avec les meilleurs avis clients de la région. Faites confiance à leur expertise et à leur savoir-faire pour réaliser votre projet de vie.
Logement susceptibles de vous intéresser
Nous vous proposons de découvrir aussi cette sélection de logements situés à moins de 10km de Vairé et qui seraient susceptibles de vous intéresser.

Vairé
TERRAINNous avons le plaisir de vous présenter un terrain d’exception à vendre, situé à Vairé dans le département de la Vendée, région des Pays de la Loire. Avec une surface généreuse de 540 m², ce terrain viabilisé est parfait pour la réalisation de votre projet de construction de maison. Profitez d’une rare opportunité d’acquérir le dernier terrain disponible dans ce secteur prisé, idéal pour construire la maison de vos rêves dans un cadre paisible et ensoleillé. Le terrain bénéficie d’une localisation privilégiée au cœur de Vairé, à proximité immédiate des commerces et des services indispensables au quotidien. La ville offre un accès rapide aux axes routiers importants et se trouve à quelques pas des magnifiques plages de la côte vendéenne. En plus de sa sécurité, la commune dispose d’écoles à proximité, ce qui en fait un lieu de vie idéal pour les familles. Ne manquez pas cette opportunité unique d’investir dans un environnement attractif et dynamique. Ce terrain représente une occasion en or pour réaliser votre projet immobilier. N’attendez plus pour envisager cette belle opportunité d’achat ! À noter qu’en tant que constructeur, nous ne sommes pas mandatés pour réaliser la vente de ce terrain.

Vairé
TERRAIN ET MAISONSur ce terrain, nous vous proposons cette maison neuve : la Lucéenne, un modèle de plain-pied en forme de L, conçu pour offrir un confort optimal dans un espace de 90 m². Idéale pour les couples et les jeunes familles, cette maison basse consommation est conforme à la RE2020, garantissant des économies d’énergie et un respect de l’environnement.La Lucéenne se distingue par ses trois chambres spacieuses et ses quatre pièces bien agencées. Le grand et lumineux séjour-salon-cuisine, partiellement cloisonné, est parfait pour des moments conviviaux en famille. Les baies coulissantes en aluminium apportent une luminosité naturelle exceptionnelle, créant une atmosphère chaleureuse et accueillante.Les options les plus demandées par nos clients sont également disponibles pour personnaliser votre maison selon vos besoins : aménagement du garage, menuiseries en aluminium et domotique pour un confort moderne et pratique.Construite par Maisons Privat, un constructeur centenaire reconnu pour ses excellents avis clients dans la région, la Lucéenne est une demeure parfaite pour les primo-accédants ou les retraités. Avec des espaces à vivre optimisés et un garage accolé de taille généreuse, cette maison vous offre tout le nécessaire et même le superflu dans un espace raisonné.Ne manquez pas cette opportunité unique de devenir propriétaire d’une maison neuve, basse consommation et conforme aux dernières normes environnementales. Contactez-nous dès aujourd’hui pour plus d’informations et pour visiter notre modèle Lucéenne.

Vairé
TERRAINOffrez-vous un coin de paradis avec ce superbe terrain à vendre situé à Vairé, en Vendée, d’une superficie de 540 m², entièrement viabilisé et prêt à accueillir votre projet de construction. Ce terrain se distingue par sa situation ensoleillée et son emplacement idéal pour bâtir la maison de vos rêves. Profitez d’un cadre de vie agréable et paisible, tout en étant à proximité de toutes les commodités nécessaires au quotidien. Vairé est une charmante commune du département de la Vendée, qui bénéficie d’un cadre de vie exceptionnel grâce à sa proximité avec la mer et ses multiples attractions locales. Vous trouverez dans les environs immédiats un accès rapide aux commerces, aux transports en commun et aux écoles, notamment un collège et un lycée. Ce lieu de vie privilégié offre également de nombreuses possibilités de loisirs, ce qui en fait une opportunité rare pour ceux qui recherchent un bel emplacement pour leur future maison. N’attendez plus pour découvrir le potentiel de ce terrain et envisager de réaliser votre projet immobilier dans un environnement de qualité. C’est une occasion unique à ne pas manquer ! À noter qu’en tant que constructeur, nous ne sommes pas mandatés pour réaliser la vente de ce terrain.

Vairé
TERRAIN ET MAISONSur ce terrain, nous vous proposons cette maison neuve : la Dompierroise, une maison au concept original et agréable. La Dompierroise est une intéressante maison traditionnelle de plain-pied dont l’originalité tient au fait qu’elle se compose de deux corps de bâtiment en décalé. Ce qui permet une délimitation des espaces intéressante et une organisation optimisée. Avec une surface de 90 m², cette maison dispose de 4 chambres et de 4 pièces, offrant ainsi un espace de vie confortable et fonctionnel pour toutes les configurations familiales.Déclinée en versions allant du T3 au T5, la Dompierroise s’adapte totalement à la composition de votre famille. Du plus petit au plus grand modèle, vous trouverez la même organisation pratique de l’intérieur, avec un salon-séjour-cuisine spacieux. Un grand garage intégré est inclus, quelle que soit la version, et un porche accueillant complète l’ensemble.Ceux qui ont aimé ce modèle ont également retenu ces options :- Enduit bi-ton pour une façade élégante et personnalisée.- Plancher chauffant pour un confort thermique optimal.- Sous-sol pour un espace de rangement supplémentaire ou un atelier.Cette maison neuve est basse consommation et conforme à la RE2020, garantissant ainsi des performances énergétiques exceptionnelles et un respect des normes environnementales les plus récentes.Le constructeur de cette maison est Maisons Privat, un constructeur centenaire avec les meilleurs avis clients de la région. Faites confiance à leur expertise et à leur savoir-faire pour réaliser votre projet de vie.

Vairé
TERRAINDécouvrez ce terrain exceptionnel situé à Vairé, en Vendée, d’une superficie de 540 m². Viabilisé et prêt à accueillir votre projet de construction, ce terrain offre une opportunité unique de devenir propriétaire dans un cadre verdoyant et ensoleillé. Idéal pour bâtir la maison de vos rêves, il constitue un investissement de choix pour les familles en quête de qualité de vie. Avec la proximité des commerces et des écoles, vous apprécierez la praticité de vivre dans ce quartier qui combine calme et commodités. Vairé, niché au cœur du département de la Vendée, bénéficie d’une localisation privilégiée à proximité des axes routiers majeurs, facilitant ainsi vos déplacements. La ville se distingue par son ambiance conviviale et sa sécurité, avec des infrastructures modernes et des espaces verts propices aux loisirs. De plus, la mer n’est qu’à quelques encablures, vous offrant une multitude d’activités balnéaires à portée de main. Ce territoire est le lieu idéal pour construire votre havre de paix, tout en profitant des attraits de la région Pays de la Loire. Ne manquez pas cette occasion unique d’acquérir le dernier terrain disponible dans ce secteur prisé. Prenez contact dès maintenant pour envisagez votre futur projet en toute sérénité. À noter qu’en tant que constructeur, nous ne sommes pas mandatés pour réaliser la vente de ce terrain.

Vairé
TERRAIN ET MAISONSur ce terrain, nous vous proposons cette maison neuve : la Poiréenne, une maison qui vous offre sa singularité et son confort.Charmant pavillon de plain-pied, l’atout de choc de la Poiréenne tient dans l’originalité de ses formes asymétriques. Cette configuration permet d’isoler l’espace nuit dans une aile indépendante. Il sera possible d’ouvrir la pièce de vie sur 3 façades pour garantir un maximum de lumière et de chaleur à ses heureux propriétaires.Avec sa forme en T, vous profiterez au maximum de l’espace disponible de la profondeur de votre terrain. Les chambres sont réunies autour d’un dégagement qui comprend également la salle d’eau avec une douche italienne et des WC séparés. Côté jour, la Poiréenne vous propose un salon-séjour avec cuisine semi-ouverte, communiquant avec le garage.La surface habitable de 80 m² est totalement adaptable à vos envies. L’ajout d’une charpente traditionnelle au garage de taille généreuse est une option fréquemment retenue par les acquéreurs de cette maison. Ceci vous permettra l’aménagement d’un faux grenier avec un plancher bois.Les caractéristiques principales de cette maison incluent des baies coulissantes, des volets roulants, et la possibilité d’opter pour une baie à galandage. Cette maison neuve est basse consommation et conforme à la RE2020, garantissant ainsi des performances énergétiques optimales.Maisons Privat, constructeur centenaire avec les meilleurs avis clients de la région, vous propose cette maison qui allie confort, modernité et économies d’énergie. Ne manquez pas cette opportunité unique de devenir propriétaire d’une maison qui répond à toutes vos attentes.

Landevieille
TERRAINNous vous proposons un terrain de 512 m², situé à Landevieille, offrant une excellente opportunité pour accueillir votre future maison. Ce terrain, bien orienté et au potentiel inestimable, vous permettra de réaliser un projet de construction répondant à vos désirs. Situé dans un environnement calme et entouré d’une nature préservée, il est parfait pour profiter d’un cadre de vie agréable et serein. Idéalement positionné à seulement quelques pas des commerces et à 5 minutes de la charmante station balnéaire de Brétignolles-sur-Mer, ce terrain vous permet de bénéficier de toutes les commodités nécessaires au quotidien. La Ville de Landevieille se trouve dans le département de la Vendée, au cœur de la région des Pays de la Loire, connue pour ses paysages côtiers et ses attractions touristiques. De plus, vous profiterez d’activités variées à proximité, telles que des plages, des sentiers de randonnée et des installations sportives, le tout contribuant à un mode de vie dynamique et attractif. Ne manquez pas cette occasion unique d’investir dans un terrain avec un fort potentiel. Contactez-nous dès aujourd’hui pour explorer cette formidable opportunité d’achat. À noter qu’en tant que constructeur, nous ne sommes pas mandatés pour réaliser la vente de ce terrain.

Landevieille
TERRAIN ET MAISONSur ce terrain, nous vous proposons cette maison de plain-pied au design contemporain, idéale pour un confort de vie au quotidien. Ses deux chambres offrent un espace nuit cosy, tandis que la vaste pièce de vie de plus de 35 m² réunit cuisine ouverte, salle à manger et salon, baignés de lumière naturelle. Vous profiterez également d’une salle d’eau moderne et d’un WC indépendant, pensés pour simplifier votre quotidien.Le garage de plus de 20 m² constitue un atout majeur pour stationner votre véhicule en toute sécurité ou aménager un espace de bricolage. Son architecture élégante, soulignée par une toiture à double pente, s’intègre harmonieusement à l’environnement. Ne manquez pas cette belle opportunité?: chaque détail a été soigneusement étudié pour vous garantir une qualité de vie incomparable.

Landevieille
TERRAINNous vous proposons un terrain d’une superbe surface de 512 m², idéalement situé à Landevieille, en Vendée. Ce terrain, non viabilisé, représente une opportunité parfaite pour donner vie à votre projet de construction de maison. Profitez d’un cadre paisible tout en restant à proximité de la dynamique ville de Brétignolles-sur-Mer, qui regorge de possibilités pour les futurs propriétaires. Située dans le département de la Vendée, en Pays de la Loire, Landevieille bénéficie d’une position privilégiée à seulement deux pas des commerces locaux et à quelques minutes de la splendide côte atlantique. Les amoureux de la nature apprécieront les nombreuses attractions locales, notamment les plages et les sentiers de randonnée, qui font de cette région un lieu de vie privilégié. Ne perdez pas l’opportunité de découvrir cet environnement qui allie sérénité et commodités. Ce terrain offre un potentiel indéniable pour tous ceux qui envisagent de réaliser leur rêve de construction. N’attendez plus pour saisir cette chance unique dans un cadre enchanteur. À noter qu’en tant que constructeur, nous ne sommes pas mandatés pour réaliser la vente de ce terrain.
L’actualité immobilière à Vairé





