Images
Description
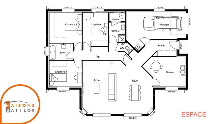
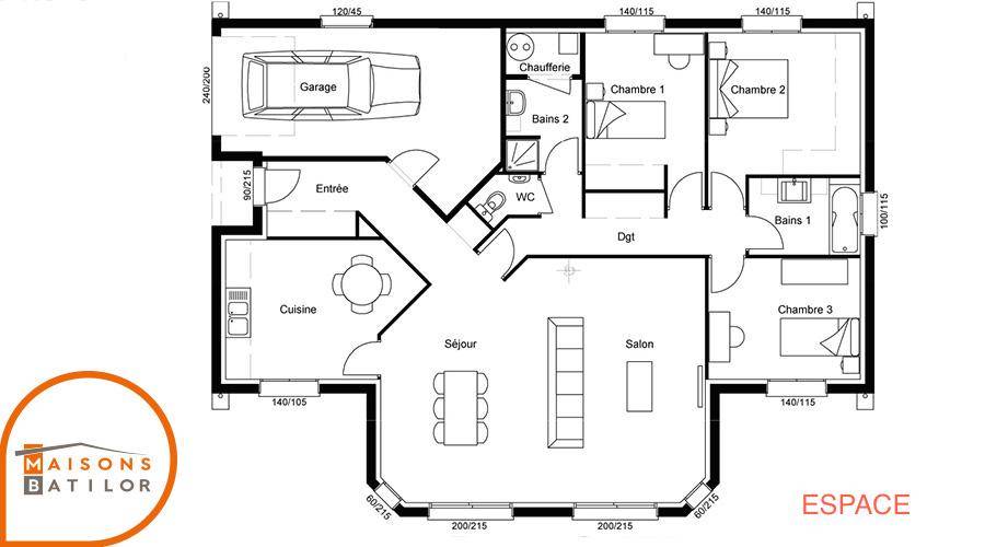
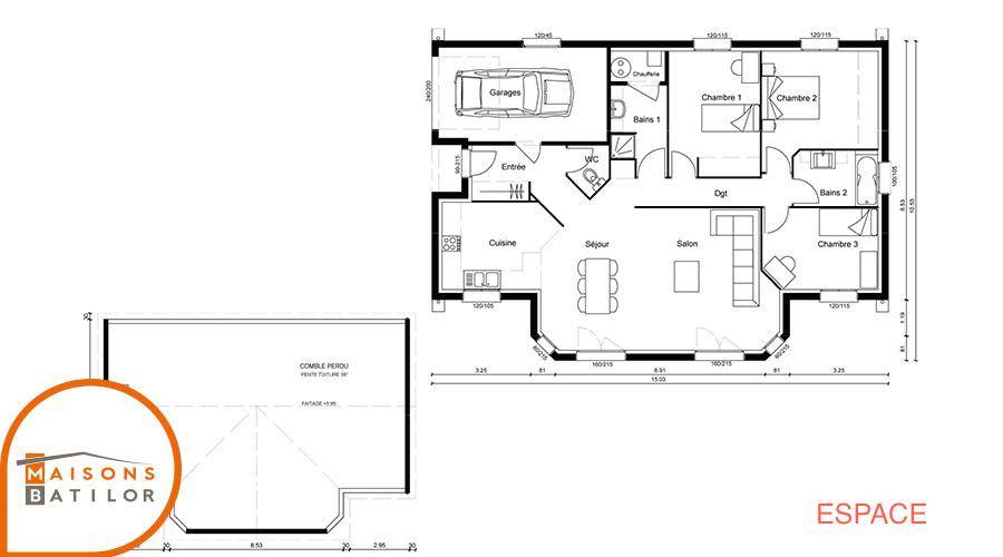
Nous vous proposons cette maison neuve, baptisée Espace, un modèle qui allie design et fonctionnalité, tout en affichant un charme très britannique. Avec une surface habitable de 106 m², cette maison est conçue pour maximiser l'espace et le confort de ses habitants. Elle se compose de 4 pièces, dont 3 chambres spacieuses, et bénéficie de deux salles de bains, garantissant ainsi une commodité optimale pour toute la famille.
L'un des atouts majeurs de ce modèle est son bow window, une fenêtre en saillie qui non seulement enrichit l'esthétique de la maison avec une touche d'élégance britannique, mais assure également une excellente luminosité dans les pièces de vie. Cette caractéristique, combinée à une construction principalement en briques, confère à la maison une isolation thermique et acoustique de qualité supérieure.
La maison Espace est également conçue pour répondre aux attentes les plus exigeantes en termes d'écologie et d'économie d'énergie. Elle est conforme à la réglementation thermique 2020 (RE2020), ce qui en fait une habitation basse consommation. Ce critère, de plus en plus recherché, assure non seulement un confort de vie inégalé tout au long de l'année, mais aussi des économies significatives sur les factures d'énergie.
Parmi les options les plus plébiscitées par nos clients et disponibles pour ce modèle, vous trouverez des aménagements supplémentaires pour personnaliser et optimiser votre espace selon vos besoins et vos envies.
En choisissant la maison Espace, vous optez pour une demeure de standing, écologique et économique, qui saura s'adapter à votre mode de vie tout en respectant l'environnement. Cette maison est une invitation à vivre dans un espace conçu pour le bien-être de ses occupants, où chaque détail a été pensé pour allier confort, esthétique et performance énergétique.
N'attendez plus pour faire de la maison Espace le lieu de vos futurs souvenirs. Contactez-nous pour plus d'informations et débutons ensemble le projet de votre nouvel
Logement susceptibles de vous intéresser
Nous vous proposons de découvrir aussi cette sélection de logements situés à moins de 10km de Cleurie et qui seraient susceptibles de vous intéresser.
Dommartin-lès-Remiremont
TERRAINDécouvrez ce terrain à vendre d’une superficie de 1098 m², situé dans la charmante commune de Dommartin-lès-Remiremont, dans le département des Vosges. Ce terrain, viabilisé, offre un cadre idéal pour réaliser votre projet de construction de maison. Sa localisation avantageuse en fait un lieu parfait pour bâtir votre foyer dans un environnement paisible, tout en offrant toutes les commodités nécessaires à un cadre de vie agréable. Dommartin-lès-Remiremont est une ville du Grand Est qui saura séduire les amateurs de nature et de tranquillité. À proximité des majestueuses Vosges, vous pourrez profiter d’un cadre naturel exceptionnel tout en bénéficiant de l’accès aux commerces locaux, aux écoles et aux services essentiels. La ville est également proche des attractions comme les sentiers de randonnée et les stations de ski, rendant ce terrain unique et plein de potentiel pour les amoureux de la vie en plein air. Ce terrain représente une opportunité rare d’investir dans un espace où vos rêves de construction peuvent prendre vie. Ne laissez pas passer cette chance unique d’acquérir un bien dans un cadre idyllique ! À noter qu’en tant que constructeur, nous ne sommes pas mandatés pour réaliser la vente de ce terrain.
Dommartin-lès-Remiremont
TERRAIN ET MAISONNous vous proposons cette maison neuve, baptisée Lubéronne, qui incarne l’élégance et le confort moderne tout en s’inspirant du charme intemporel provençal. Avec une surface généreuse de 135 m², cette demeure est conçue pour répondre aux attentes des plus exigeants, alliant fonctionnalité et esthétique.La Lubéronne se distingue par sa tour caractéristique, offrant une avancée architecturale remarquable, et sa galerie, qui invite à la détente et à la contemplation des paysages environnants. Le double garage spacieux assure un confort pratique au quotidien, répondant ainsi aux besoins de stationnement et de rangement.Cette maison est composée de 4 chambres confortables, regroupées dans la tour pour préserver l’intimité de chacun, et de 4 pièces lumineuses, dont une partie jour significative qui baigne l’espace de vie en lumière naturelle, créant une atmosphère chaleureuse et accueillante.Les options les plus plébiscitées, telles que les menuiseries en aluminium, la domotique pour une maison connectée et un crépis coloré, sont disponibles pour personnaliser votre maison selon vos goûts et vos besoins. Ces éléments ajoutent une touche de modernité et de confort, faisant de la Lubéronne un lieu de vie unique et personnalisé.Construite dans le respect des normes de la RE2020, cette maison neuve est synonyme de basse consommation, garantissant ainsi une efficacité énergétique optimale et un respect de l’environnement. Ce choix responsable contribue à réduire les dépenses énergétiques tout en offrant un cadre de vie sain et agréable.La Lubéronne, avec son style provençal revisité et ses prestations de qualité, est proposée en 3 plans différents, permettant de s’adapter à vos projets de vie et à vos envies. Faites le choix d’une maison qui allie tradition et innovation, pour un quotidien empreint de bien-être.
Saint-Amé
TERRAINNous vous proposons à la vente un magnifique terrain d’une surface généreuse de 1200 m², idéalement viabilisé et prêt à accueillir votre projet de construction de maison. Situé à Saint-Amé, une charmante commune des Vosges, ce terrain offre une belle opportunité pour bâtir un foyer adapté à vos besoins. En plein cœur de la région Grand Est, Saint-Amé se distingue par son ambiance conviviale et son cadre de vie agréable, faisant de cette ville un lieu privilégié pour s’installer. Saint-Amé bénéficie d’un emplacement stratégique, à proximité des commodités locales, telles que des commerces, des écoles et des services de santé. Les amateurs de nature apprécieront les paysages environnants et les nombreuses activités de plein air proposées dans les Vosges. Cette région est également connue pour son riche patrimoine culturel et ses événements festifs tout au long de l’année. En choisissant ce terrain, vous vous offrez l’opportunité de vivre dans un environnement où le quotidien rime avec bien-être et convivialité. Ce terrain représente un potentiel exceptionnel pour donner vie à vos rêves. Ne laissez pas passer cette occasion unique d’investir à Saint-Amé! À noter qu’en tant que constructeur, nous ne sommes pas mandatés pour réaliser la vente de ce terrain.
Saint-Amé
TERRAIN ET MAISONNous vous proposons cette maison neuve, baptisée Plénitude, un modèle qui incarne l’harmonie parfaite entre confort moderne et respect de l’environnement. Avec une surface généreuse de 99 m², cette maison en L est conçue pour offrir une expérience de vie unique, alliant esthétique et fonctionnalité.La Plénitude se distingue par son architecture en L, permettant une distinction naturelle entre l’espace jour et l’espace nuit, tout en restant sur un plan de plain-pied pour un confort optimal. Ce modèle comprend 4 chambres spacieuses, promettant intimité et tranquillité pour chaque membre de la famille, ainsi que 4 pièces bien agencées pour maximiser l’espace de vie commun.L’intégration d’un garage, directement accessible depuis la maison, ajoute une commodité indéniable, tandis que la construction en briques garantit non seulement une esthétique intemporelle mais aussi une solidité à toute épreuve.Mais ce qui rend la Plénitude véritablement exceptionnelle, c’est son engagement envers la durabilité. Conforme à la norme RE2020, cette maison neuve est une véritable prouesse en matière de basse consommation énergétique. Elle est conçue pour minimiser son impact sur l’environnement tout en assurant un confort maximal à ses habitants, été comme hiver.Les options les plus plébiscitées par nos clients, telles que des solutions d’isolation avancées et des systèmes de chauffage performants, sont disponibles pour personnaliser votre maison selon vos besoins et vos envies.Choisir la Plénitude, c’est opter pour une maison qui allie élégance, confort et responsabilité environnementale. C’est la promesse d’un foyer où il fait bon vivre, conçu pour s’adapter à votre mode de vie et respecter la planète. Découvrez comment cette maison peut devenir le cadre idyllique de votre quotidien.
Saint-Nabord
TERRAINÀ vendre, magnifique terrain viabilisé de 1200 m² situé dans la charmante commune de Saint-Nabord, au cœur des Vosges, dans la région Grand Est. Cet espace exceptionnel offre une belle opportunité pour concrétiser votre projet de construction de maison. Avec son environnement paisible et verdoyant, ce terrain est idéalement positionné pour accueillir votre futur foyer, tout en bénéficiant d’une infrastructure moderne et de services de qualité à proximité. Saint-Nabord est une ville dynamique qui saura vous séduire par ses atouts. Avec ses attractions locales, ses commerces diversifiés, ses écoles et ses installations sportives, la commune offre un cadre de vie agréable et pratique pour toute la famille. Situé à proximité des somptueuses forêts vosgiennes et des activités de plein air, vous serez conquis par la beauté des paysages environnants et la richesse des loisirs disponibles. Ce terrain représente une belle opportunité d’investir dans un cadre de vie à la fois tranquille et animé. N’attendez plus pour saisir cette opportunité unique de construire la maison de vos rêves à Saint-Nabord. Ce terrain promet de nombreuses possibilités et un potentiel certain. Contactez-nous dès aujourd’hui pour en savoir plus?! À noter qu’en tant que constructeur, nous ne sommes pas mandatés pour réaliser la vente de ce terrain.
Saint-Nabord
TERRAIN ET MAISONNous vous proposons cette maison neuve, baptisée Lubéronne, qui incarne l’élégance et le confort moderne tout en s’inspirant du charme intemporel provençal. Avec une surface généreuse de 135 m², cette demeure est conçue pour répondre aux attentes des plus exigeants, alliant fonctionnalité et esthétique.La Lubéronne se distingue par sa tour caractéristique, offrant une avancée architecturale remarquable, et sa galerie, qui invite à la détente et à la contemplation des paysages environnants. Le double garage spacieux assure un confort pratique au quotidien, répondant ainsi aux besoins de stationnement et de rangement.Cette maison est composée de 4 chambres confortables, regroupées dans la tour pour préserver l’intimité de chacun, et de 4 pièces lumineuses, dont une partie jour significative qui baigne l’espace de vie en lumière naturelle, créant une atmosphère chaleureuse et accueillante.Les options les plus plébiscitées, telles que les menuiseries en aluminium, la domotique pour une maison connectée et un crépis coloré, sont disponibles pour personnaliser votre maison selon vos goûts et vos besoins. Ces éléments ajoutent une touche de modernité et de confort, faisant de la Lubéronne un lieu de vie unique et personnalisé.Construite dans le respect des normes de la RE2020, cette maison neuve est synonyme de basse consommation, garantissant ainsi une efficacité énergétique optimale et un respect de l’environnement. Ce choix responsable contribue à réduire les dépenses énergétiques tout en offrant un cadre de vie sain et agréable.La Lubéronne, avec son style provençal revisité et ses prestations de qualité, est proposée en 3 plans différents, permettant de s’adapter à vos projets de vie et à vos envies. Faites le choix d’une maison qui allie tradition et innovation, pour un quotidien empreint de bien-être.
Saint-Amé
TERRAINOffrez-vous l’opportunité de posséder un terrain exceptionnel de 664 m², situé dans la charmante commune de Saint-Amé, dans le département des Vosges. Ce terrain, entièrement viabilisé, est idéal pour un projet de construction de maison. Sa surface généreuse permet de concevoir un espace de vie à la fois fonctionnel et agréable, tout en s’inscrivant harmonieusement dans le cadre naturel environnant. Saint-Amé, nichée au cœur de la région Grand Est, offre un cadre de vie agréable avec un mélange parfait d’animations locales et de tranquillité. Les amoureux de la nature apprécieront les paysages pittoresques des Vosges, avec de nombreuses possibilités de randonnées et d’activités de plein air à proximité. De plus, cette commune est dotée de toutes les commodités nécessaires, telles que supermarchés, écoles et services de santé, assurant un quotidien confortable aux futurs habitants. La proximité avec des villes dynamiques et les axes de transport facilite également l’accès aux ressources régionales et aux activités culturelles. Ce terrain, avec tout son potentiel, représente une opportunité unique de réaliser vos rêves de construction dans un environnement enchanteur. Ne manquez pas cette chance d’investir dans un cadre exceptionnel où il fera bon vivre. À noter qu’en tant que constructeur, nous ne sommes pas mandatés pour réaliser la vente de ce terrain.
Saint-Amé
TERRAIN ET MAISONNous vous proposons cette maison neuve, baptisée Vésontia, un modèle qui allie élégance, fonctionnalité et respect de l’environnement. Avec une surface généreuse de 109 m², cette maison de plain-pied en forme de L est conçue pour s’adapter harmonieusement à la vie de famille, tout en offrant des espaces de vie conviviaux et bien organisés.La Vésontia se distingue par ses 4 chambres spacieuses et ses 4 pièces lumineuses, promettant confort et intimité à chaque membre de la famille. Le garage intégré assure une transition fluide entre l’extérieur et l’intérieur, tandis que le porche d’entrée accueille vos invités avec élégance et simplicité.Conscients des besoins variés de nos clients, nous offrons la possibilité de personnaliser votre maison avec des options très demandées telles qu’un Car Port supplémentaire, un garage plus spacieux ou même un sous-sol, permettant ainsi de créer un espace qui reflète véritablement votre style de vie et vos préférences.Avec 7 déclinaisons de base, la Vésontia est une invitation à concevoir une maison sur mesure à petit prix. Que vous rêviez d’un grand séjour pour vos réunions de famille, d’une suite parentale pour plus d’intimité, ou d’un bureau pour travailler en toute tranquillité, ce modèle s’adapte à toutes vos envies.Au-delà de son design attrayant et de sa flexibilité, la Vésontia est une maison écolo de basse consommation, conforme à la réglementation thermique 2020 (RE2020). Cela signifie que vous bénéficierez non seulement d’un confort optimal en toutes saisons, mais aussi d’économies significatives sur vos factures d’énergie.Choisir la Vésontia, c’est opter pour une maison qui respecte l’environnement tout en répondant à vos attentes de confort, de style et de fonctionnalité. Faites le premier pas vers la maison de vos rêves et laissez-nous vous accompagner dans cette belle aventure.
Cleurie
TERRAINDécouvrez ce terrain viabilisé de 850 m², idéalement situé dans la charmante commune de Cleurie, dans le département des Vosges. Ce terrain offre une opportunité unique pour concrétiser votre projet de construction de maison, au cœur d’un environnement paisible bénéficiant d’une belle exposition. Laissez libre cours à votre créativité et imaginez votre futur chez-vous dans cet écrin de verdure propice à la détente et à l’épanouissement familial. Cleurie, dans la région Grand Est, est une municipalité qui allie le charme rural à la praticité moderne. Vous serez séduit par la proximité de nombreuses attractions locales, telles que des sentiers de randonnée et des aménagements pour les activités de plein air. Les commodités, incluant écoles, commerces et services de santé, sont à portée de main, garantissant une vie quotidienne agréable et pratique. Ne manquez pas l’occasion de vivre dans un environnement qui sait combiner tranquillité et dynamisme. Ce terrain représente une opportunité rêvée pour ceux qui souhaitent investir dans leur futur. N’attendez plus pour envisager ce projet captivant?! À noter qu’en tant que constructeur, nous ne sommes pas mandatés pour réaliser la vente de ce terrain.
L’actualité immobilière à Cleurie
27/11/2023
02/11/2023
30/10/2023
20/10/2023
16/10/2023
16/10/2023