Images
Description
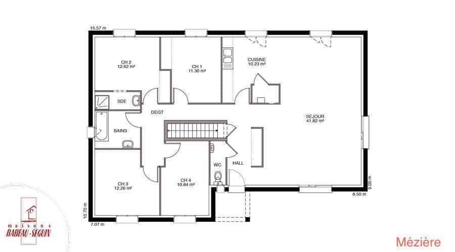
Sur ce terrain, nous vous proposons cette maison neuve, modèle Mézière, conçue par Babeau-Seguin, constructeur offrant le meilleur rapport qualité/prix du marché. Avec une surface de 108 m², cette maison basse consommation, conforme à la RE2020, saura répondre à toutes vos attentes.
La Mézière se distingue par son plan en L, disponible en version 2 pans ou 4 pans, et ses 4 chambres spacieuses réparties sur 4 pièces. Grâce à ses nombreuses versions, elle sait séduire et s’adapter aux besoins de chacun, ce qui fait de la Mézière une véritable maison sur mesure.
Les options les plus demandées par nos clients, telles que les menuiseries en aluminium, la domotique, ainsi que le garage ou le sous-sol, sont disponibles pour personnaliser votre maison selon vos envies et besoins.
Véritable coup de cœur pour de nombreux clients Babeau-Seguin, la Mézière est facilement modifiable, ce qui justifie pleinement son succès. Craquerez-vous aussi pour elle ?
N'attendez plus pour découvrir cette maison qui répondra aux besoins de nombreuses familles. Contactez-nous pour plus d'informations et pour organiser une visite.
Logement susceptibles de vous intéresser
Nous vous proposons de découvrir aussi cette sélection de logements situés à moins de 10km de Courlon-sur-Yonne et qui seraient susceptibles de vous intéresser.
Barbey
TERRAINTerrain de 1 417 m² à vendre à BarbeyEMPLACEMENT PRIVILÉGIÉ – PROCHE DE SENSÀ Barbey (77130) à proximité de la gare de Montereau (Paris à 60 min avec le Transilien R), donnez vie à votre projet immobilier sur ce terrain de 1 417 m². Il se situe dans un quartier attractif. Il y a des établissements scolaires (de la maternelle au lycée) à moins de 10 minutes en voiture, tout comme quatre crèches à moins de 10 minutes à pied. Côté transports, on trouve trois gares (Villeneuve-la-Guyard, Champigny sur Yonne et Montereau) à moins de 10 minutes en voiture. On trouve des tennis, des bibliothèques, un bowling, un bassin de natation, des commerces, des boulangeries, des supermarchés, des boucheries-charcuteries et des bureaux de poste à quelques minutes du bien.Il est proposé à l’achat pour 88 000 €. Prenez contact avec Anne DELOHEN (tél : (Numéro supprimé)) pour plus d’informations sur ce terrain, sur les modalités de vente ou sur les démarches à suivre. Maisons France Confort Nemours est là pour vous accompagner dans tous vos projets immobiliers.Annonce proposée par un Agent Commercial Partenaire.
Villeneuve-la-Guyard
TERRAINVENTE : terrain de 460 m² à Villeneuve-la-GuyardEMPLACEMENT PRIVILÉGIÉ – PROCHE DE MONTEREAU FAULT YONNE À vendre à 24 km de Sens à Villeneuve-la-Guyard (89340), terrain de 460 m². Dans un secteur attractif, ce terrain bénéficiant d’un emplacement privilégié est proche des écoles et des commerces. Il y a l’École Élémentaire Jean-Baptiste Chauveau, l’École Maternelle Rosa Bonheur et le Collège Claude Debussy dans la commune. Côté transports, on trouve trois gares (Champigny sur Yonne, Villeneuve-la-Guyard et Pont-sur-Yonne) à moins de 10 minutes en voiture. Il y a un accès à l’autoroute A5 à 9 km. Il y a un commerce dans les environs.Son prix de vente est de 45 000 €. Contactez Anne DELOHEN (tél : (Numéro supprimé)) pour tout renseignement sur ce terrain. Donnez vie à vos projets immobiliers avec Maisons France Confort Nemours.Annonce proposée par un Agent Commercial Partenaire.
Barbey
TERRAIN ET MAISONBarbey : maison F5 (90 m²) en venteEMPLACEMENT PRIVILÉGIÉ – MAISON 5 PIÈCES NEUVEÀ proximité du Transilien R (gare de Montereau, 60 min de Paris), nous sommes heureux de vous présenter cette maison de 5 pièces de plain-pied de 90 m² en vente, bénéficiant d’un emplacement d’exception dans Barbey (77130).Elle compte trois chambres, une cuisine et une salle de bains. Cette maison est neuve.Le terrain du bien s’étend sur 1 417 m².La maison se trouve dans un secteur recherché. Il y a des établissements scolaires du primaire et du secondaire à moins de 10 minutes en voiture, tout comme quatre structures d’accueil pour les enfants en bas âge à moins de 10 minutes à pied. Niveau transports en commun, on trouve les gares Villeneuve-la-Guyard, Champigny sur Yonne et Montereau à moins de 10 minutes en voiture. Il y a des tennis, des bibliothèques, un bowling, un bassin de natation, des commerces, des boulangeries, des supermarchés, des bureaux de poste et une supérette à quelques minutes du logement.Son prix de vente est de 253 400 €.Contactez Anne DELOHEN (tél : (Numéro supprimé)) pour toute information sur la maison. Donnez vie à vos projets immobiliers avec Maisons France Confort Nemours.Annonce proposée par un Agent Commercial Partenaire.
Barbey
TERRAIN ET MAISONVENTE d’une maison T6 (125 m²) à BarbeyEMPLACEMENT PRIVILÉGIÉ – MAISON 6 PIÈCES NEUVEEn vente : proche de la gare de Montereau (Paris à 60 min par le Transilien R), venez découvrir cette maison de 6 pièces de 125 m² et de 1 417 m² de terrain bénéficiant d’un emplacement d’exception dans Barbey (77130). Elle inclut quatre chambres, une cuisine et deux salles de bains.C’est une maison de 2 niveaux. Elle est neuve.La maison se trouve dans un quartier attractif. Il y a tous les types d’établissements scolaires (de la maternelle au lycée) à moins de 10 minutes en voiture, tout comme quatre structures d’accueil pour les enfants en bas âge à moins de 10 minutes à pied. Niveau transports, on trouve les gares Villeneuve-la-Guyard, Champigny sur Yonne et Montereau à moins de 10 minutes en voiture. Il y a des tennis, des bibliothèques, un bowling, un bassin de natation, des commerces, des boulangeries, des supermarchés, des bureaux de poste et une poissonnerie à quelques minutes de la maison.Elle est proposée à l’achat pour 348 700 €.Contactez notre agence (DELOHEN Anne : (Numéro supprimé)) pour tout renseignement sur la maison ou sur les démarches à suivre. Concrétisez vos projets immobiliers avec Maisons France Confort Nemours.Annonce proposée par un Agent Commercial Partenaire.
Barbey
TERRAIN ET MAISONVENTE : maison de 5 pièces (90 m²) à BarbeyEMPLACEMENT PRIVILÉGIÉ – MAISON 5 PIÈCES NEUVEProche du Transilien R (gare de Montereau, 60 min de Paris), Maisons France Confort Nemours vous présente à vendre, bénéficiant d’un emplacement privilégié dans Barbey (77130), cette maison de 5 pièces de 90 m² et de 1 417 m² de terrain. Son intérieur offre quatre chambres, une cuisine et deux salles de bains.Il s’agit d’une maison de 2 niveaux. Elle est neuve.Cette maison se trouve dans un quartier recherché. Des établissements scolaires de tous niveaux sont implantés à moins de 10 minutes en voiture, tout comme quatre structures d’accueil pour les enfants en bas âge à moins de 10 minutes à pied. Niveau transports en commun, on trouve les gares Villeneuve-la-Guyard, Champigny sur Yonne et Montereau à moins de 10 minutes en voiture. Il y a des tennis, des bibliothèques, un bowling, un bassin de natation, des commerces, des boulangeries, des supermarchés, une poissonnerie et des épiceries à quelques minutes du bien.Elle est proposée à l’achat pour 275 800 €.N’hésitez pas à prendre contact avec notre agence (Anne DELOHEN : (Numéro supprimé)) pour obtenir de plus amples informations sur la maison, sur les modalités de vente ou sur les démarches à suivre. Maisons France Confort Nemours vous accompagne dans tous vos projets immobiliers et à toutes les étapes de votre projet.Annonce proposée par un Agent Commercial Partenaire.
Villeneuve-la-Guyard
TERRAIN ET MAISONMaison F6 (89 m²) en vente à Villeneuve-la-GuyardEMPLACEMENT PRIVILÉGIÉ – MAISON 6 PIÈCES NEUVEÀ vendre : à deux pas de Sens, bénéficiant d’un emplacement privilégié dans Villeneuve-la-Guyard (89340), nous sommes ravis de vous présenter cette maison de 6 pièces de 89 m² et de 460 m² de terrain.Il s’agit d’une maison de 2 niveaux. Son intérieur inclut quatre chambres, une cuisine et une salle de bains. La maison est neuve.La maison se situe dans un secteur prisé. On y trouve l’École Élémentaire Jean-Baptiste Chauveau, l’École Maternelle Rosa Bonheur et le Collège Claude Debussy. Niveau transports, on trouve trois gares (Champigny sur Yonne, Villeneuve-la-Guyard et Pont-sur-Yonne) à moins de 10 minutes en voiture. Il y a un accès à l’autoroute A5 à 9 km. Il y a un commerce à quelques minutes.Elle est à vendre pour la somme de 205 700 €.Prenez contact avec Anne DELOHEN ((Numéro supprimé)) pour toute question sur la propriété ou sur les démarches à suivre.Annonce proposée par un Agent Commercial Partenaire.
Villeneuve-la-Guyard
TERRAIN ET MAISONMaison F3 (71 m²) en vente à Villeneuve-la-GuyardEMPLACEMENT PRIVILÉGIÉ – MAISON 3 PIÈCES NEUVEEn vente : localisée à quelques kilomètres de Sens, nous sommes ravis de vous proposer cette maison de 3 pièces de plain-pied de 71 m², bénéficiant d’un emplacement privilégié dans Villeneuve-la-Guyard (89340).Elle offre deux chambres, une cuisine et une salle de bains. La maison est neuve.Le terrain du bien est de 460 m².Cette maison se situe dans un secteur prisé. L’École Élémentaire Jean-Baptiste Chauveau, l’École Maternelle Rosa Bonheur et le Collège Claude Debussy y sont implantés. Niveau transports en commun, on trouve les gares Champigny sur Yonne, Villeneuve-la-Guyard et Pont-sur-Yonne à moins de 10 minutes en voiture. On trouve un accès à l’autoroute A5 à 9 km. Il y a un commerce à quelques minutes.Elle est proposée à l’achat pour 183 900 €.Contactez Anne DELOHEN (tél : (Numéro supprimé)) pour toute information sur la maison.Annonce proposée par un Agent Commercial Partenaire.
Villeneuve-la-Guyard
TERRAIN ET MAISONVilleneuve-la-Guyard : maison de 5 pièces (90 m²) en venteEMPLACEMENT PRIVILÉGIÉ – MAISON 5 PIÈCES NEUVEEn vente : à quelques kilomètres de Sens, bénéficiant d’un emplacement privilégié dans Villeneuve-la-Guyard (89340), ayez le coup de coeur pour cette maison de 5 pièces de 90 m². Son intérieur est composé de trois chambres, d’une cuisine et d’une salle de bains.Le terrain de la propriété s’étend sur 460 m².Il s’agit d’une maison de 2 niveaux. Elle est neuve.Cette maison se trouve dans un secteur attractif. On y trouve l’École Élémentaire Jean-Baptiste Chauveau, l’École Maternelle Rosa Bonheur et le Collège Claude Debussy. Niveau transports, il y a trois gares (Champigny sur Yonne, Villeneuve-la-Guyard et Pont-sur-Yonne) à moins de 10 minutes en voiture. Il y a un accès à l’autoroute A5 à 9 km. On trouve un commerce à quelques minutes du logement.Elle est à vendre pour la somme de 221 800 €.Contactez notre agence (DELOHEN Anne : (Numéro supprimé)) pour obtenir de plus amples renseignements sur la maison ou sur les modalités de vente. Maisons France Confort Nemours vous accompagne à toutes les étapes de votre projet et dans tous vos projets immobiliers.Annonce proposée par un Agent Commercial Partenaire.
Villeneuve-la-Guyard
TERRAIN ET MAISONVilleneuve-la-Guyard : maison de 4 pièces (60 m²) à vendreEMPLACEMENT PRIVILÉGIÉ – MAISON 4 PIÈCES NEUVEÀ vendre à 24 km de Sens, nous vous présentons cette maison de 4 pièces de plain-pied de 60 m², bénéficiant d’un emplacement d’exception dans Villeneuve-la-Guyard (89340).Elle est composée de deux chambres, d’une cuisine et d’une salle de bains. Cette maison est neuve.Le terrain de la propriété s’étend sur 460 m².La maison se situe dans un secteur convoité. On y trouve l’École Élémentaire Jean-Baptiste Chauveau, l’École Maternelle Rosa Bonheur et le Collège Claude Debussy. Niveau transports, il y a trois gares (Champigny sur Yonne, Villeneuve-la-Guyard et Pont-sur-Yonne) à moins de 10 minutes en voiture. Il y a un accès à l’autoroute A5 à 9 km. On trouve un commerce à quelques minutes du logement.Son prix de vente est de 169 000 €.Contactez Anne DELOHEN ((Numéro supprimé)) pour tout renseignement sur le bien. Concrétisez vos projets immobiliers avec Maisons France Confort Nemours.Annonce proposée par un Agent Commercial Partenaire.
L’actualité immobilière à Courlon-sur-Yonne
27/11/2023
02/11/2023
30/10/2023
20/10/2023
16/10/2023
16/10/2023