Images
Description
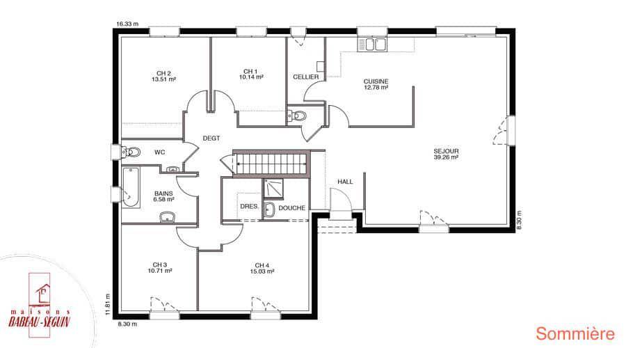
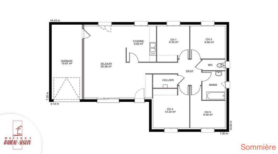
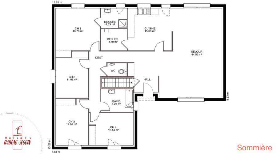
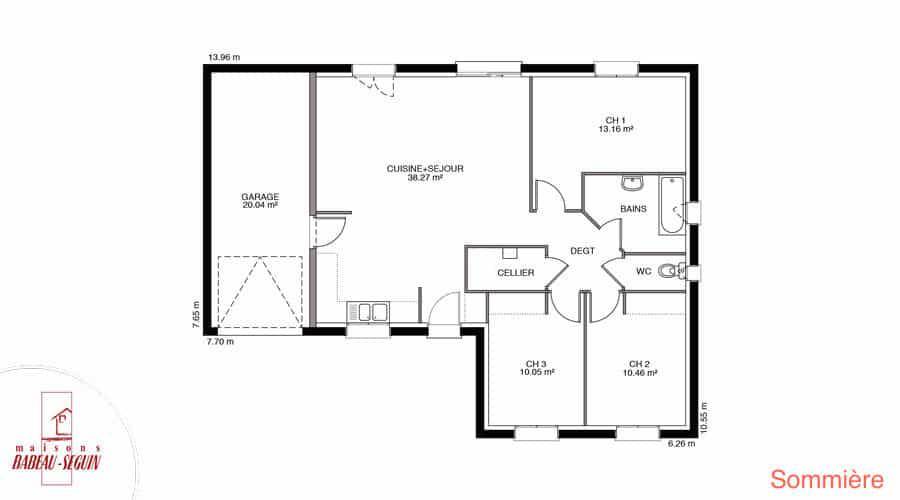
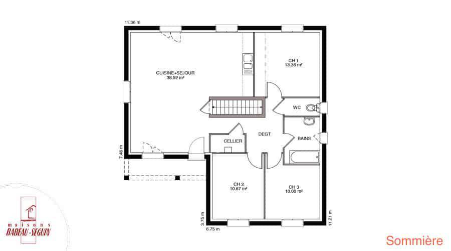
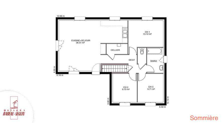
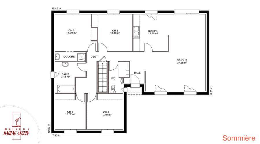
Sur ce terrain, nous vous proposons cette maison neuve, la Sommière, conçue par Babeau-Seguin, constructeur offrant le meilleur rapport qualité/prix du marché. Avec une surface de 107 m², cette maison moderne en L se distingue par son design élégant et ses nombreuses options de personnalisation.
La Sommière dispose de 4 chambres spacieuses et de 4 pièces, offrant un espace de vie confortable et fonctionnel pour toute la famille. Vous avez la possibilité de choisir entre un toit à 2 pans ou à 4 pans, selon vos préférences esthétiques et architecturales. De plus, cette maison peut être équipée d'un garage ou d'un sous-sol, selon vos besoins spécifiques.
Cette maison neuve est basse consommation et conforme à la RE2020, garantissant une performance énergétique optimale et des économies sur vos factures d'énergie. La Sommière est disponible en plus de 10 versions, allant d'une surface de 78 m² à 148 m², ce qui en fait la maison plain-pied la plus déclinée de toute notre gamme.
Avec ou sans garage intégré, avec ou sans galerie, la Sommière s’adapte parfaitement aux besoins et aux attentes de chacun. Nous lui décernons sans hésitation le prix de la maison sur mesure !
Ne manquez pas cette opportunité unique de faire construire une maison qui répondra à toutes vos attentes et vous offrira un cadre de vie exceptionnel. Contactez-nous dès maintenant pour plus d'informations et pour découvrir toutes les options disponibles pour personnaliser votre future maison Sommière.
Logement susceptibles de vous intéresser
Nous vous proposons de découvrir aussi cette sélection de logements situés à moins de 10km de Villebougis et qui seraient susceptibles de vous intéresser.

Saint-Valérien
TERRAIN ET MAISONSur ce terrain, nous vous proposons cette maison neuve, la Sommière, conçue par Babeau-Seguin, constructeur offrant le meilleur rapport qualité/prix du marché. Avec une surface de 107 m², cette maison moderne en L se distingue par son design élégant et ses nombreuses options de personnalisation.La Sommière dispose de 4 chambres spacieuses et de 4 pièces, offrant un espace de vie confortable et fonctionnel pour toute la famille. Vous avez la possibilité de choisir entre un toit à 2 pans ou à 4 pans, selon vos préférences esthétiques et architecturales. De plus, cette maison peut être équipée d’un garage ou d’un sous-sol, selon vos besoins spécifiques.Cette maison neuve est basse consommation et conforme à la RE2020, garantissant une performance énergétique optimale et des économies sur vos factures d’énergie. La Sommière est disponible en plus de 10 versions, allant d’une surface de 78 m² à 148 m², ce qui en fait la maison plain-pied la plus déclinée de toute notre gamme.Avec ou sans garage intégré, avec ou sans galerie, la Sommière s’adapte parfaitement aux besoins et aux attentes de chacun. Nous lui décernons sans hésitation le prix de la maison sur mesure !Ne manquez pas cette opportunité unique de faire construire une maison qui répondra à toutes vos attentes et vous offrira un cadre de vie exceptionnel. Contactez-nous dès maintenant pour plus d’informations et pour découvrir toutes les options disponibles pour personnaliser votre future maison Sommière.

Nailly
TERRAIN ET MAISONSur ce terrain, nous vous proposons cette maison neuve Perrière de 97 m². Ce modèle design de plain-pied possède deux hauteurs de toits qui cassent la monotonie de la façade, offrant ainsi une esthétique moderne et attrayante. Avec ses 3 chambres et ses 4 pièces, cette maison familiale par excellence saura vous séduire.La Perrière est une maison traditionnelle possédant une avancée de toit qui vient protéger les portes-fenêtres de la façade avant et la porte d’entrée. Ce modèle peut être agrémenté d’un garage ou d’un sous-sol disponible en option, selon vos besoins et préférences.Construite par Babeau-Seguin, constructeur offrant le meilleur rapport qualité/prix du marché, cette maison neuve est basse consommation et conforme à la RE2020, garantissant ainsi des performances énergétiques optimales et un confort de vie inégalé.Disposant d’un très bon rapport qualité/prix et de tout le savoir-faire Babeau-Seguin, la Perrière est un modèle de maison à prix réduit sans pour autant être une maison low-cost. Cerise sur le gâteau ? Le plan est personnalisable en fonction de votre mode de vie !Ne manquez pas cette opportunité unique de construire la maison de vos rêves sur ce terrain. Contactez-nous dès maintenant pour plus d’informations et pour découvrir toutes les options disponibles pour personnaliser votre future maison Perrière.

Villebougis
TERRAINGrâce à nos partenaires fonciers : Nous vous proposons ce magnifique terrain à vendre d’une surface généreuse de 2092 m², idéalement situé dans la charmante commune de Villebougis, Yonne. Ce terrain plat, ensoleillé et offrant une vue dégagée, est un véritable écrin de nature, parfait pour accueillir votre projet de construction de maison. Profitez d’un cadre champêtre propice au bien-être et à la sérénité, tout en étant à proximité de commodités essentielles. Ce terrain présente des caractéristiques uniques qui en font une opportunité à ne pas manquer. Villebougis, située dans le département de l’Yonne, bénéficie d’une localisation privilégiée alliant tranquillité et accès facile à la vie urbaine. La commune offre un cadre de vie agréable, avec des commerces à proximité, ainsi que des transports facilitant vos déplacements. Les habitants apprécient le charme des paysages environnants et la qualité de vie qu’offre cette belle région de Bourgogne. En outre, les attractions locales, telles que les promenades en pleine nature et les activités culturelles des villes voisines, ajoutent une dimension supplémentaire à ce cadre de vie. Ce terrain représente une occasion exceptionnelle pour construire la maison de vos rêves dans un environnement enchanteur. N’attendez plus pour concrétiser votre projet, contactez-nous dès aujourd’hui pour plus d’informations et ne manquez pas cette chance d’investir dans un lieu de vie privilégié !

Villebougis
TERRAIN ET MAISONSur ce terrain, nous vous proposons cette maison neuve, la Sommière, conçue par Babeau-Seguin, constructeur offrant le meilleur rapport qualité/prix du marché. Avec une surface de 107 m², cette maison moderne en L se distingue par son design élégant et ses nombreuses options de personnalisation.La Sommière dispose de 4 chambres spacieuses et de 4 pièces, offrant un espace de vie confortable et fonctionnel pour toute la famille. Vous avez la possibilité de choisir entre un toit à 2 pans ou à 4 pans, selon vos préférences esthétiques et architecturales. De plus, cette maison peut être équipée d’un garage ou d’un sous-sol, selon vos besoins spécifiques.Cette maison neuve est basse consommation et conforme à la RE2020, garantissant une performance énergétique optimale et des économies sur vos factures d’énergie. La Sommière est disponible en plus de 10 versions, allant d’une surface de 78 m² à 148 m², ce qui en fait la maison plain-pied la plus déclinée de toute notre gamme.Avec ou sans garage intégré, avec ou sans galerie, la Sommière s’adapte parfaitement aux besoins et aux attentes de chacun. Nous lui décernons sans hésitation le prix de la maison sur mesure !Ne manquez pas cette opportunité unique de faire construire une maison qui répondra à toutes vos attentes et vous offrira un cadre de vie exceptionnel. Contactez-nous dès maintenant pour plus d’informations et pour découvrir toutes les options disponibles pour personnaliser votre future maison Sommière.

Villebougis
TERRAINNous sommes ravis de vous présenter ce terrain à vendre d’une superficie de 1068 m², parfaitement adapté pour la construction de votre future maison. Situé dans la charmante commune de Villebougis, ce terrain non viabilisé offre un cadre de vie paisible et ensoleillé, idéal pour familles ou investisseurs. Avec un terrain plat et au calme, vous pourrez réaliser tous vos projets de construction en toute sérénité. Le Plan Local d’Urbanisme (PLU) non contraignant est un atout supplémentaire, vous offrant la flexibilité nécessaire pour imaginer la maison de vos rêves. Villebougis, nichée dans le département de l’Yonne en Bourgogne-Franche-Comté, est une commune qui saura vous séduire par son ambiance rurale et ses atouts. Environnement verdoyant et beauté naturelle raffinée font de cet endroit un havre de paix, tout en étant à proximité des grandes artères d’accès autoroutiers. Dans les environs, vous trouverez des écoles, des commerces de proximité et de nombreuses options de loisirs pour toute la famille. Cette localisation offre ainsi un cadre de vie agréable, conjuguant calme et accessibilité. Ne laissez pas passer cette occasion unique de construire la maison de vos rêves sur ce terrain au potentiel indéniable. Contactez-nous pour plus d’informations et pour envisager votre futur projet dans ce cadre idyllique. À noter qu’en tant que constructeur, nous ne sommes pas mandatés pour réaliser la vente de ce terrain.

Villebougis
TERRAIN ET MAISONSur ce terrain, nous vous proposons cette maison neuve : la Focus Cosy. Conçue par Babeau-Seguin, constructeur offrant le meilleur rapport qualité/prix du marché, cette maison de 79 m² est idéale pour les familles à la recherche d’un logement confortable et économique.La Focus Cosy se distingue par son design contemporain et ses finitions soignées. Avec ses 4 pièces, dont 3 chambres, cette maison de plain-pied offre un espace de vie bien pensé et harmonieux. Le vaste séjour-cuisine est un lieu convivial où il fait bon vivre, tandis que l’espace nuit garantit tranquillité et intimité.L’un des atouts majeurs de cette maison est son garage intégré, qui ajoute une touche de praticité supplémentaire. L’enduit bi-ton de la façade apporte une touche esthétique moderne et élégante.Cette maison neuve est également basse consommation et conforme à la RE2020, ce qui en fait un choix écologique et économique. Les options les plus demandées par nos clients, telles que les menuiseries en aluminium, peuvent être intégrées pour encore plus de confort et de modernité.En choisissant la Focus Cosy, vous optez pour une maison accessible à tous les budgets, sans compromis sur les équipements. Avec ses performances énergétiques et écologiques de pointe, cette maison bénéficie des dernières innovations technologiques et de toute l’expertise des Maisons Babeau-Seguin.Ne manquez pas cette opportunité de réaliser votre rêve de maison à un prix incroyablement attractif. La Focus Cosy est une maison pratique et élégante où votre famille se sentira immédiatement chez elle.

Villebougis
TERRAINNous vous proposons un terrain exceptionnel à Villebougis, 89150, dans l’Yonne en Bourgogne-Franche-Comté. Avec une surface généreuse, ce terrain plat et ensoleillé est idéal pour réaliser votre projet de construction de maison. Son ambiance tranquille et ses caractéristiques uniques en font un lieu de vie parfait pour les familles ou les personnes en quête de paix et de sérénité. Le PLU non contraignant offre une flexibilité pour vos projets, vous permettant de concrétiser vos rêves d’habitat en toute liberté. Situé dans un cadre enchanteur, le terrain bénéficie d’une localisation stratégique avec un accès facile aux routes principales et à l’autoroute. Villebougis est une commune charmante qui offre diverses commodités telles que des écoles à proximité, garantissant ainsi un cadre de vie confortable pour les familles. Profitez de la tranquillité de la campagne tout en restant proche des attractions locales. Que vous souhaitiez explorer la beauté de la Bourgogne ou bénéficier des services à proximité, ce terrain est le point de départ idéal pour votre projet de vie. Ne manquez pas cette occasion unique d’acquérir un terrain rempli de potentiel à Villebougis. Contactez-nous dès aujourd’hui pour envisager votre futur chez-vous dans un cadre idyllique. À noter qu’en tant que constructeur, nous ne sommes pas mandatés pour réaliser la vente de ce terrain.

Villebougis
TERRAIN ET MAISONSur ce terrain, nous vous proposons cette maison neuve : la Focus Cosy. Conçue par Babeau-Seguin, constructeur offrant le meilleur rapport qualité/prix du marché, cette maison de 79 m² est idéale pour les familles à la recherche d’un logement confortable et économique.La Focus Cosy se distingue par son design contemporain et ses finitions soignées. Avec ses 4 pièces, dont 3 chambres, cette maison de plain-pied offre un espace de vie bien pensé et harmonieux. Le vaste séjour-cuisine est un lieu convivial où il fait bon vivre, tandis que l’espace nuit garantit tranquillité et intimité.L’un des atouts majeurs de cette maison est son garage intégré, qui ajoute une touche de praticité supplémentaire. L’enduit bi-ton de la façade apporte une touche esthétique moderne et élégante.Cette maison neuve est également basse consommation et conforme à la RE2020, ce qui en fait un choix écologique et économique. Les options les plus demandées par nos clients, telles que les menuiseries en aluminium, peuvent être intégrées pour encore plus de confort et de modernité.En choisissant la Focus Cosy, vous optez pour une maison accessible à tous les budgets, sans compromis sur les équipements. Avec ses performances énergétiques et écologiques de pointe, cette maison bénéficie des dernières innovations technologiques et de toute l’expertise des Maisons Babeau-Seguin.Ne manquez pas cette opportunité de réaliser votre rêve de maison à un prix incroyablement attractif. La Focus Cosy est une maison pratique et élégante où votre famille se sentira immédiatement chez elle.

Saint-Sérotin
TERRAINNous vous proposons à la vente un magnifique terrain de 1 747 m² situé à Saint-Sérotin, au cœur du département de l’Yonne en Bourgogne-Franche-Comté. Ce terrain plat, non viabilisé, est une toile vierge idéale pour la construction de votre maison de rêve. Profitez d’une qualité de vie exceptionnelle grâce à son cadre champêtre et bénéficiez d’un prix attractif. De plus, le Plan Local d’Urbanisme (PLU) non contraignant permet une grande flexibilité dans vos projets de construction. Saint-Sérotin, charmant village de l’Yonne, est réputé pour sa sérénité et sa convivialité. Dans un rayon proche, vous trouverez des écoles, garantissant un cadre agréable pour les familles. Les amoureux de la nature apprécieront ses paysages verdoyants. De plus, la ville offre des commodités indispensables tout en conservant l’authenticité d’un village bourguignon. Entre ses traditions, ses événements locaux et son accessibilité, ce secteur promet un cadre de vie paisible et épanouissant. Ce terrain représente une opportunité unique pour envisager la réalisation de votre projet immobilier dans un environnement de charme. N’hésitez pas à nous contacter pour explorer cette possibilité. À noter qu’en tant que constructeur, nous ne sommes pas mandatés pour réaliser la vente de ce terrain.
L’actualité immobilière à Villebougis





